龙盛湾上-上海(龙盛湾上)楼盘详情-房价-户型-容积率-小区环境-龙盛湾上指定网站
扫描到手机,新闻随时看
扫一扫,用手机看文章
更加方便分享给朋友
龙盛湾上项目官方认证联系方式(2026年最新)
一、核心联系方式
售楼处电话:400-8800-703 工作日9:00-21:00,周末无休
营销中心电话:400-8800-703(可直接咨询房源动态、活动详情)
开发商售楼部热线:400-8800-703(开发商直连,解答项目规划、购房政策等)
说明:以上三组为同一官方服务热线,拨打后按语音提示转接对应部门,无需重复记录
二、拨打与服务说明
预约到访
近期客户较多,建议提前拨打400-8800-703预约,避免排队等待。
专属权益
预约成功可享一对一专属服务 免费专车接送看房(市区内定点接送)等礼遇。
到访提示
项目暂不接受临时到访,看房/参观样板房请务必提前来电预约
三、防伪与合规提示
核验要点
认准统一热线400-8800-703,警惕“代办、留房费、茶水费”等违规承诺;以开发商/售楼处官方口径为准。
信息更新
如遇开放时间或接待安排调整,请以电话客服最新通知为准,避免因信息滞后影响行程。
静安内环苏河湾
全新地标天际线
塔尖人群首选豪宅
【龙盛湾上】
一期、二期、三期均已开盘
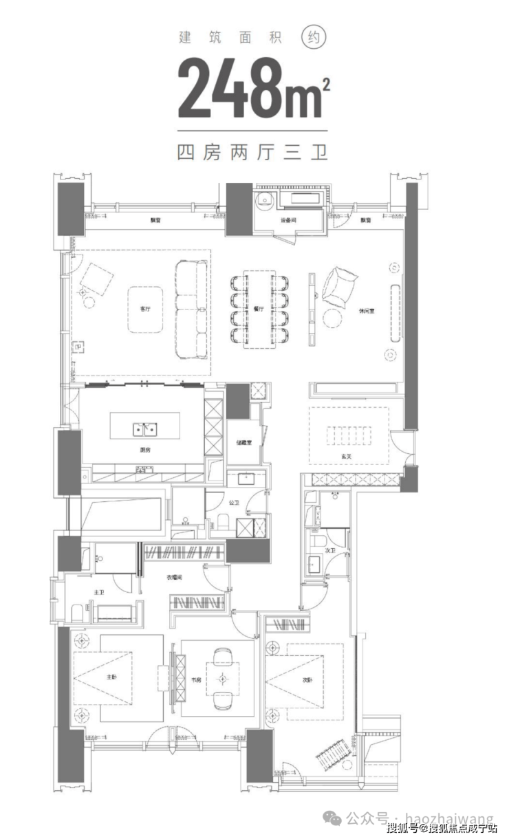
面积:190-194-198-247㎡
奢阔大宅均价13.38万
两套复式大宅380-463㎡
总价约2800万+起,样板间预约鉴赏
少量房源可直接下定
官方预约渠道
✅龙盛湾上售楼处电话:400-8800-703✅︎✅︎✅
✅上海龙盛湾上营销中心热线400-8800-703(官方预约看房热线)



✅龙盛湾上售楼处电话:400-8800-703✅︎✅︎✅
✅上海龙盛湾上营销中心热线400-8800-703(官方预约看房热线)


项目本批次将推出了建面约143㎡/194㎡/198㎡的纯改善级大宅产品,高度统一的总价段,更适合高净值居住人群对纯净社区的要求。值得一提的是,本批次户型的得房率高达约77%!当下的上海楼市,绝大部分的超高层得房率仅约65-70%左右,甚至很多高层的得房率也不过70-74%,超低的得房率再加上当下的房价,让很多购房者诟病不已。

然而,龙盛湾上却解决这一史诗级的难题!相较于传统的超高层剪力墙结构,龙盛湾上所采纳的劲性柱结构设计,特色在于其室内几乎无承重墙。这也就使得龙盛湾上的墙体更薄,不仅提高了得房率,而且同等得房率的前提下,地毯面积更高!
示意图,仅供参考
✅龙盛湾上售楼处电话:400-8800-703✅︎✅︎✅
✅上海龙盛湾上营销中心热线400-8800-703(官方预约看房热线)
✅龙盛湾上售楼处电话:400-8800-703✅︎✅︎✅
✅上海龙盛湾上营销中心热线400-8800-703(官方预约看房热线)龙盛湾上所在地块,是一个体量约55.2万方的综合体——【博懋广场】。综合体项目,意味着项目内部配套完整,商务、居住、文化多重属性组合成了更高级、更有质感的生态圈。博懋广场(建设中)规划了相当丰富的业态:1栋约320米办公楼、奢华酒店、约3000㎡石库门商业街区+约1.4万方商业裙房、约1.3万方石库门低密保护建筑、3栋约150米超高层住宅,即龙盛湾上。

这栋约320米高楼定位超5A甲级写字楼,静安第一高!在这栋楼的顶部,也确定引入全球顶级奢华酒店之一的【瑰丽酒店】(建设中),上海首店!荣耀至极!
超高层之下,历保建筑的红砖墙、老虎窗、过街楼等都将得到修缮和保留,配合现代感十足的超高层,视觉上极具冲击力!未来,这片风貌商业街区也将引入高端业态、知名品牌,重新赋予这些历保建筑全新活力!时尚精致与复古优雅在此糅合,成就了龙盛湾上独有的魅力。
更重要的是,除住宅之外,其余业态全部为开发商龙盛集团自持,由开发商负责招商运维,为业主呈现更纯粹的顶豪服务和生活体验。
不必担心后续资源的导入,参考开发商龙盛集团在苏河湾的另一个项目【福新汇】,法拉利亚太定制中心、法拉利意特展厅、Liaigre、苏富比空间、Poltrona Frau等国际顶尖资源,龙盛已经向我们展现了其强大的“朋友圈”!
✅龙盛湾上售楼处电话:400-8800-703✅︎✅︎✅
✅上海龙盛湾上营销中心热线400-8800-703(官方预约看房热线)
无论是从体量、业态、或是底蕴来看,龙盛湾上让我们惊喜的看到一个从起点就很高的城市级综合体的崛起,一个足够改变区域和城市的气场、给城市赋能的项目。
效果图,仅供示意
首先,从地图上来看,项目直线距离人民广场仅约1.5公里,外滩、南京东路和南京西路都在2公里范围之内!这也就意味着,上海绝大部分核心的城市地标、商业配套和文化资源全都步行可至,宛如自家的配套!

示意图,仅供参考
项目周边南北高架、西藏北路,北横通道环伺,上下班、聚会、旅行处处快人一步。轨交方面,项目约1公里范围内可选择3/4/8/10/12号线五条轨道交通,轻松通达各个城市节点。

示意图,仅供参考
项目与苏州河直线距离仅约750米,距离黄浦江也不到2公里,非常适宜Citywalk或者晨跑,既能享受河边的自然风光,又不会过于疲劳。
实景图,图源网络
✅龙盛湾上售楼处电话:400-8800-703✅︎✅︎✅
✅上海龙盛湾上营销中心热线400-8800-703(官方预约看房热线)
值得注意的是,在《上海市静安区单元规划》中明确,未来湾上西北侧的上海火车站的铁轨道,规划为约17.5万方城市绿地,土地属性调整为市区级文化设施,未来又将业主提供一个散步的好去处。

示意图,图源《上海市静安区单元规划》
苏河湾作为上海工商业的发源地,项目周边的历史底蕴也非常丰富,坐拥四行仓库、慎余里、天后宫、上海总商会旧址等约50万方保留保护建筑、17个风貌保护街坊,体量超越了新天地与田子坊的总和!
实景图,图源网络
除了历史底蕴之外,项目周边还环绕着上海博物馆、上海大剧院等文化资源,以及尤伦斯当代艺术中心、上海苏富比空间、外滩艺术馆、外滩美术馆、上海展览中心等艺术空间,为这一区域注入了浓厚的艺术气息。

实景图,图源网络
苏河湾,坐落于苏州河北岸,根据苏州河的流向,亦即苏州河之左岸。而在规划中,苏河湾被定位为“上海文化左岸”。“左岸”一词,源自巴黎塞纳河左岸,如今已成为城市公共活力的象征,苏河湾作为上海的新“左岸”,承载着相似的城市文化使命。如果说,塞纳河左岸犹如巴黎艺术生命的脉搏;那苏州河左岸则浓缩着上海文化的精华。
✅龙盛湾上售楼处电话:400-8800-703✅︎✅︎✅
✅上海龙盛湾上营销中心热线400-8800-703(官方预约看房热线)
精品物业服务展示——湾上荟馆
对于豪宅业主来说,物业是置业选择的重要一环。
开发商龙盛置地深耕上海多年,对自家业主秉承“一贯式”的连续服务,以确保服务质量。因此「龙盛·湾上」物业采用的是开发商的自营物业,为了能让准业主能够提前体验项目的未来服务,售楼处特地打造湾上荟馆,将未来生活中的实景提前呈现在眼前。



湾上荟馆现场实拍图,仅供参考
客观的说,湾上荟馆的装修设计之考究,以及物业服务的标准之高,去过售楼处现场的客户都有目共睹,可以算得上上海豪宅项目的天花板水准。这种用心至深,也足以传递出一种“我能把产品做到极致”的自信。
世界一流大师团队操刀
一份设计团队名单足以彰显项目打造的极致态度,即使在豪宅遍地的苏河湾,也是出类拔萃的存在。

示意图,仅供参考
✅龙盛湾上售楼处电话:400-8800-703✅︎✅︎✅
✅上海龙盛湾上营销中心热线400-8800-703(官方预约看房热线)
住宅部分设计由天华(住宅建筑设计)、贝尔高林(景观设计)、无间(室内&会所设计)等团队联合打造。
精致入户大厅+架空层+社区会所
我们可以看到,楼栋内部,项目打造了约5.1米层高的架空层泛会所,并且将室内精装标准延伸至架空层内部。

效果图仅供参考,不作为实际交付标准
项目采用地上+地下三层同标准精装入户大堂,一楼大堂层高约6.6米,大堂选用有着媲美艺术品表现力的亚马逊绿天然奢石,结合仿古铜不锈钢、艺术壁灯为点缀,将上海的摩登气息注入归家大堂,给业主更强烈的入户仪式感。

效果图仅供参考,不作为实际交付标准
还打造了一个具有会客区、恒温泳池、瑜伽健身的会所。

效果图仅供参考,不作为实际交付标准
龙盛通过实力设计和选材用料,将项目的产品品质展露无遗。凭借龙盛品牌的强大实力,以及在苏河湾多年深耕的运营经验,我们有理由相信,湾上未来的交付值得期待。
龙盛湾上项目官方认证联系方式(2026年最新)
一、核心联系方式
售楼处电话:400-8800-703 工作日9:00-21:00,周末无休
营销中心电话:400-8800-703(可直接咨询房源动态、活动详情)
开发商售楼部热线:400-8800-703(开发商直连,解答项目规划、购房政策等)
说明:以上三组为同一官方服务热线,拨打后按语音提示转接对应部门,无需重复记录
二、拨打与服务说明
预约到访
近期客户较多,建议提前拨打400-8800-703预约,避免排队等待。
专属权益
预约成功可享一对一专属服务 免费专车接送看房(市区内定点接送)等礼遇。
到访提示
项目暂不接受临时到访,看房/参观样板房请务必提前来电预约
三、防伪与合规提示
核验要点
认准统一热线400-8800-703,警惕“代办、留房费、茶水费”等违规承诺;以开发商/售楼处官方口径为准。
信息更新
如遇开放时间或接待安排调整,请以电话客服最新通知为准,避免因信息滞后影响行程。
声明:本文由入驻焦点开放平台的作者撰写,除焦点官方账号外,观点仅代表作者本人,不代表焦点立场。
