上海临港金港星海湾(售楼处)-金港星海湾售楼中心首页网站丨2025金港星海湾欢迎您丨最新楼盘详情
扫描到手机,新闻随时看
扫一扫,用手机看文章
更加方便分享给朋友
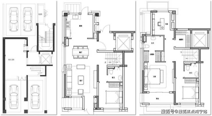
【低密墅区稀缺性】
项目为临港综合区唯一在售叠墅群落,上叠产品赠送约40㎡星空露台,下叠预留私人花园空间,层高3.1米碾压市场标准2。金桥集团以打造碧云国际社区经验,采用人车分流+五重景观园林设计。
建面约165㎡下叠产品,带地下室,舒适度有保障,地下设置专属停车位,地下空间可根据业主自身需求进行改造,家庭影音室、健身房、室内球场、茶室、酒窖等等,自由随心。一楼设置贴心老人房,避免老人上下楼的麻烦。
二楼两间套房设计,均带有独立卫生间,主卧连接南向宽景阳台,舒适度非常高。
建面约129㎡上叠产品,带两个大露台,拥有非常大的附加空间,接景入室,视野开阔,空间利用率高。
项目的高层及洋房产品,也同样受到了市场的追捧:

建面约89㎡入门款洋房,小户型总价可控。
三开间朝南,典型的飞机户型,最大程度压缩了过道空间,整体户型集约,得房率高。卫生间做到了干湿分离,保障了卫浴系统的干燥,提升居住安全系数。

建面约100㎡高层产品,面宽约5米的大横厅一体式布局,尺度感上佳。

客厅在当下的生活场景中,承载的功能更加丰富,除了会客,还有像健身、影音、办公等活动,都会在客厅进行,一个大横厅可以比较好的满足这些需求。



项目装修交付,配备钢木复合装甲门、智能门锁、西门子开关、可视对讲系统、林内热水器、大金中央空调、博世烟灶、高仪龙头及台下盆、摩恩挂壁式马桶、防雾防指纹电加热镜面柜等,都是市面上的一线装标!
【金桥兑现力实证】
速度标杆:住宅地块较合同约定提前6个月交付,2024年底首批业主入住;
商业加速度:星海汇TOD商业体桩基已开工,较原计划提前3个月。
【高端客群精准定位】
产业高管圈层:中移动、上海微小卫星工程中心等企业高管占比超30%;
跨境生活场域:直达浦东机场T3航站楼(两港快线),满足国际商务需求。
金港所在的临港综合区有着独树一帜的区位优势。
一方面,综合区无缝链接滴水湖核心区,和105片区浑然一体,更便捷地获得滴水湖核心区城市资源。

临港综合区区位示意图
另一方面,综合区作为北门户,距离东方枢纽更近。
上海东站即将开工,将是仅次于虹桥枢纽的上海第二大高铁站,建成后将和浦东国际机场组成东方枢纽,成为上海两大国际(国家)级客运枢纽之一(来源:浦东发布)。大交通枢纽效应赋能,临港的未来愈发值得期待!

在建的两港快线24年底通车后,从综合区站3站到达东方枢纽,经机场联络及21号线,可快速通达张江、金桥、前滩、虹桥等重点节点。
【产品精工细节】
精装标准揭秘:叠墅标配杜拉维特卫浴、博世厨电;公共区域铺装葡萄牙米黄石材;
智能生活系统:AI人脸识别门禁、户内紧急呼叫按钮、公共区域无死角监控。
2023年4月14日,临港管委会批复了综合区站首发项目土地储备报告,意味着综合区首发项目即将启动,将会与两港快线综合区站协同设计和建设!
两港快线综合区站TOD规划效果图

金港将依托两港快线综合区站的中心辐射能力,有机融合科创产业园区,完善布局学校、商业与社区服务功能,构建优质15分钟生活圈,形成一个宜居宜业、充满活力的魅力新城。
这里有高浓度的科创智造产业集群。
金桥集团已建好及在建的智荟园产业园区已有九期,引入集成电路、人工智能、航空航天、智能网联汽车等众多企业。综合区还先后引入了中国移动、新松机器人、微小卫星、电信算力中心、东方明珠影视基地等重大产业项目。
张江集团也在综合区开发运营了张江临港科技港拓扑园、摩尔园与奇点园,并规划至六期,布局新型ICT与高端制造,园区内入驻单位亦是藏龙卧虎。
这里有如雷贯耳的临港平和学校。总建面积约26万方恢宏炫酷的规划设计,从幼儿园到高中全龄段的规模,宣示了临港平和学校全国一流学校的定位。

公建配套学校方面,综合区先行区规划有2所幼儿园、1所小学及1所初中。其中E02地块初中,也被纳入浦东新区重大项目(预备)清单(来源:浦东官网),令人期待。
这里有完善且高能级的商业配套。
综合区站TOD将建造150米双塔商办及百米商住地标建筑群。其中TOD商业面积约20万方(来源:临港管委会官网规划公示),体量比滴水湖核心区的爱琴海购物中心、蓝鲸世界和海港中心等还要大很多。

与此同时,在平和双语学校金港校区北侧,观塘庐未来商业中心已经动工建设,预计于2023年12月建成。LEED金级和WELL CORE金级认证标准营造出的健康和舒适属性,周边天然生态禀赋和丰富商业业态,让观塘庐成为临港沉浸式的都市欢聚目的地。
综合来看,坐拥轨交TOD,前沿科创产业加持,高能级商业和高端教育配套环伺,且有浦东“四大金刚”为背书的板块,金港可谓是临港独一份!再结合新房价格的亲民性,卓著性价比放在全上海也是独一份!
价值对标:
当前价格:叠墅单价约3.8万/㎡(总价620万起)
对标对象:碧云国际社区别墅(均价12万+)价差超200%2,临港自贸区红利尚未完全释放。
预约咨询热线:400-960-1656☎, 加微咨询:139 1616 5691(加微,不要来电,备注楼盘名字)
声明:本文由入驻焦点开放平台的作者撰写,除焦点官方账号外,观点仅代表作者本人,不代表焦点立场。
