保利·海上印 (售楼处)首页网站保利·海上印 售楼中心|2025年评测-房价户型|商圈配套-保利·海上印首页网站(2025最新)保利·海上印 楼盘评测最新价格户型配套
扫描到手机,新闻随时看
扫一扫,用手机看文章
更加方便分享给朋友
4月30号,位于闵行梅陇板块的保利海上印项目开盘,仅仅只用了1小时全部售罄,销售额10亿。这个数据,不出意外,应该破了今年上海外环外的首开去化速度纪录。
保利海上印首批房源开启认购,首日认购率就突破了190%。最终的认购率达到了230%,104套房源吸引了248组客户认筹,最终入围积分51.8分。
即便是在市场表现领先的上海都依旧称得上是现象级别的热销,出现了一个外环外的项目之上。这样一个项目,如果说热度来自于板块,那么这两年来,整个春申,热度比得上保利海上印的,几乎没有。
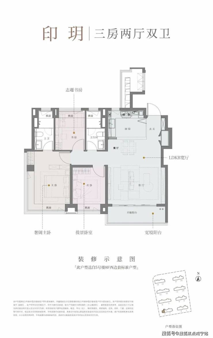
建面约110㎡3房2厅2卫几个核心亮点:
1.客餐厅一体化,面宽约4.85米
2. 5个飘窗拓展面积
3. S墙巧妙运用隐藏冰箱
4. 主卧实现约270度采光
上海这个面积段的产品,普遍很难做到如此面面俱到。
没想到起步户型空间感就如此惊人,层高3.1米+面宽约4.85米,再加上客餐厅一体化设计,形成一个LDKG宽厅空间,尺度感完全不像是百平左右三房。
S墙的设计非常巧妙,将冰箱嵌入到客厅玄关旁的墙体中,既方便了日常拿饮料、水果,也解放了厨房空间。
飘窗的赠送更是奢侈,主卧约270度转角飘窗,实现采光和景观自由。
并且不同于传统的60厘米宽度飘窗,保利置业通过建筑优化,实现错层设计并拓展到75(50+25)厘米,引发了收纳的质变反应。

建面约131㎡4房2厅2卫,几个核心亮点:
1. 四开间朝南+真南北透通
2. 7个飘窗拓展空间
3. IMAX宽幕阳台
4. 超级主卧约270度采光
改善级四房更是质感满满,南北透通的LDKG超级宽厅,带来了IMAX级别视野。
独立玄关设计,不仅实现收纳空间的自由,也满足了业主对隐私性的需求。
厨房利用飘窗拓展空间,主卧尺度感更加惊人,业主完全可以规划出独立的衣帽间区域。
建面约152㎡4房2厅2卫,亮点也不少,实现超大横厅+主卧浴缸配置+套房式主卧。
作为终极改善户型,它满足了三代同堂的多元化需求。
尤其是酒店式套房主卧,自带步入式衣帽间和浴缸主卫,直接将主人的尊贵感拉满
保利海上印对空间的拓展几乎到了极致,无论是飘窗赠送面积、收纳系统考量,都满足了改善客户的切实需求。
除了标杆户型,保利海上印的空间质感堪称标杆,完全是比肩内环豪宅的标准。

先是品牌,东芝空调、地暖、霍尼韦尔新风系统三大件齐全。
竟标配豪宅专属的厨房八件套包括Miele油烟机/灶台/洗碗机,博世冰箱,3M末端净水、欧普凉霸、瑞美热水器、高仪厨盆及龙头。
卫生间也同样高标准,五金洁具及淋浴花洒使用德国高仪,主卫无水箱智能马桶、台盆使用科勒,贴心配置女主人最爱的美妆冰箱。

在产品细节方面,保利・海上印同样很用心。厨房采用光面岩板墙、主卧地板采用人字拼工艺、主卫地砖通铺…
又或者将原先颜色较深的110户型主卧背景墙升级调整为现代简约风格,与室内壁纸的融合和一体性更搭。
这样标杆的户型、装标,将助力保利海上印,在未来二手房市场一骑绝尘。
保利海上印即闵行区MHP0-0303单元01-28-01a地块,为保利置业于2024年11月27日七批次土拍中竞得的地块,地块总价25.9亿,楼面价48665元/㎡,堪称「梅陇地王」。

项目位于安高申陇院东侧,项目楼下紧挨着的就是闵行一梯队学校之一的莘松中学新校区。

地块周边实景:
项目位于闵行梅陇板块的核心位置。
梅陇周边有3大国家级产业区、5大科创中心、12大科创园、3000+企业,直线距离约7公里范围内拥有漕河泾开发区、紫竹高新技术产业园等科创基地。

梅陇还有15号线(已通车)、19号线(在建中)、机场联络线(即将通车)3轨交汇。再加上虹梅路高架直插中环外环,南侧银都路越江隧道2024年年底建成后,可直通“浦东金色中环”。

项目距离地铁15号线景西路站约800米,拥有虹梅高架路、沪金高速等快速路。
商业方面,项目周边有兴梅路尚乐坊、绚荟城、海梦一方、麦多生活广场等成熟商业,还有四大TOD将带区级商业中心。
教育方面,闵行实验小学是闵行公办的优质学校,莘松中学与项目几乎是门对门的距离。
医疗方面,步行到复旦大学附属中山医院(闵行梅陇院区)也不过400多米,可为全家人的健康保驾护航!
声明:本文由入驻焦点开放平台的作者撰写,除焦点官方账号外,观点仅代表作者本人,不代表焦点立场。
