大华公园柏翠(上海大华公园柏翠)首页网站丨大华公园柏翠楼盘详情-价格-户型-配套
扫描到手机,新闻随时看
扫一扫,用手机看文章
更加方便分享给朋友


独属于千万级豪宅的资源
就在大华公园柏翠业主的生活圈内
关于大华公园柏翠的地段,我们总结了几点:
第一,康宁路-万荣路+南北高架+1号线,迅捷直达全城CBD的交通。
大华公园柏翠售楼处预约热线:400-8800-703不仅距离上海城心非常的近,项目周边更是拥有多种交通出行方式。
轨交方面,项目周边有1号线。
尤其对于工作在大宁的小伙伴来说,1号线3站就是上海马戏城,大宁核心区。接下来还有苏河湾、南京西路、人民广场、外滩等区域,都在业主的生活圈内。
除了轨交外,项目售楼处预约热线:400-8800-703周边还有康宁路-万荣路,直达大宁核心商圈。还有南北高架+中环+内环的王炸级自驾线路,上海所有的核心CBD都在大华公园柏翠业主的生活圈内。
即使你将来换工作,不管单位在哪里,都能从容应对。
第二,千万级豪宅才能享受的商业资源,大华公园柏翠一脚油门,即可享受。
大宁为什么能卖的那么贵,很大一点原因是因为这里的繁华。
约56万平大宁音乐广场、约25万平大宁国际商业广场、约30万平大宁久光百货,静安大融城等商场一路连缀。
静安除了南京西路外的第二个顶级商圈,就坐落于此。
超百万方的商业体量,让这个区域成为了北境当之无愧的商业中心,也成为了内中环更更繁华的区域。

住在大宁、享受大宁的商业资源已经成为了无数千万富豪们的共同心愿。而这些促使了大宁金茂府、静安府以及大宁新地块这些价格在约12万/㎡以上的高端豪宅。
而这些商业资源,全部都在大华公园柏翠售楼处预约热线:400-8800-703一脚油门的范围内。

而同样想享受大宁高端商业资源的新房项目,总价起码约千万起。
除了大宁带来的商业配套外,项目周边教育氛围浓厚,周边拥有包括陈伯吹实验幼儿园(上海市示范幼儿园)、陈伯吹实验小学,华师大宝山实验学校等学校。
另外,小胖君去现场看了一下,项目正南侧一墙之隔,还有九年一贯制公办学校在建设中。
免责声明:以上教育资源整理仅代表楼盘与学校的距离,该房屋所在项目暂未划分学区,开发商不对项目交房后所属学区、学校做任何承诺。教育资源分配或学校/学区划分以及学校的具体招生规则等请以政府相关主管部门、教育机构公开的最新信息为准。
另外,生态方面,项目坐拥五大公园:约80万方伟岸绿境环抱,包括千亩绿境(约60万方绿化在侧),约3万方庙行公园、约4.2万方共和公园,约2.7万方三泉公园、约9.3万方彭浦四季公园等。
这样的生态能级,媲美“新江湾湿地公园、世纪公园、长风公园”等,拥享“自然生态+稀臻难寻”双重价值属性。
第三,遍地千万级豪宅的上海中环,出了一个约6.3万/㎡的品质新房。
在上海,尤其是浦西,环线依旧是判断地段价值的真理。
而大华公园柏翠售楼处预约热线:400-8800-703距离中环线直线约3km,整个中环线旁的新房,如今的新房均价起码约9万/㎡起,约900万起的门槛让人望而生畏。
这是目前上海中环旁的地段价值,约600万级买到大华公园柏翠售楼处预约热线:400-8800-703,是真正的进阶改善置业。
所以,不管是从地段的便捷度、潜力还是价值,大华公园柏翠的地段都是同级别中的王者。
约600万级没有比TA地段更好的。

约80米门头、星级酒店大堂、内外双公园...
比肩千万级豪宅的公区
社区方面项目的示范区即将实景呈现。
小胖君认为,这可能会是上海600万级最卷的高品质项目之一。我们从几个方面来解析一下:
第一,社区的天赋!
大华公园柏翠售楼处预约热线:400-8800-703西侧是60多万方的规划绿地,接近1.5个长风公园大小。而项目是一个容积率约2.2的全17F以下低密小高层社区。
在叠加项目距离静安直线约400米的地段,这几乎就是一个位于城市中央、生长在森林里的低密大居。
这样的社区天赋在如今高楼林立的上海,代表着最高等级的舒适度。
第二,社区的仪式感!
项目在归家动线上特别打造了“三进式”归家礼序,并且每一层归家礼序的打造,都是按照千万级豪宅才有的规格。
一进:宽约80米、高约6米的气派大门。
并且在选材上选用来自吴哥窟的进口石材,尽显静谧奢华的气质。
主入口利用108片伯爵灰大理石打造12座景墙单元,辅以香槟色不锈钢修饰。
整体迎宾空间耗材约1800片大理石,这样的大门规格、石材用料以及用心程度,无不体现出大华公园柏翠对标豪宅的决心。
二进:围合庭院。
庭院由4处归家通道、8扇造型屏风和1座水景雕塑的一体化设计打造而成,由此开始拉开了低密森氧居住生活的大幕,这是市面上其他新房所没有的高规格。
用料上,庭院两侧设计师选用大理石与镂空铝板虚实结合,利用2层柏翠造型铝线条错拼而成,更显精致;
整个顶面采用以香槟金回字形金属格栅疏密相间模拟水波荡漾;
在灯光设计中,选用色温3500K的钻石灯。
这样的设计和用料,在600万级的新房市场中,简直是降维打击。
效果图,仅供参考
三进:宅门。
归家大堂能给业主更尊贵归家体验的同时,也能作为柏翠业主专属的城市会客厅。
整座大堂外墙采用伯爵灰大理石满铺高墙,电动门镶嵌宝格绿奢石,实现无感通行;
内墙材料选用来自保加利亚的维纳多石材,整块大理石圆弧拉槽,这是顶级豪宅才有的用料和细节。
大堂接待台选用产自意大利山脉的宝格绿奢石一体打造而成。
大堂的屏风玻璃内夹极为细腻的绢丝。
这些用料和最终呈现出来的浓郁海派氛围,是对大华集团实力和匠心最好的体现。
第三,社区的水景!
上海的新房很少有水景,即使是豪宅同样如此。一方面是水景的造价实在是昂贵,另外一方面是水景的维护是非常考验物业的。
但大华公园柏翠售楼处预约热线:400-8800-703为了更好的给业主呈现更好的景观效果,利用12级叠水、2座树池、9步水上汀步,运用六重造景的手法打造近500平的中央水景!
效果图,仅供参考
并且将中心场地抬高1米,在水系池底通铺1300多片的PRADA绿石(仿石砖)、精选斜飘乌桕、造型紫薇等名贵树种...
不实地看一下这个中央水景,你真的不会明白为了大华公园柏翠,开发商到底付出了多少的心血。
第四,社区的艺术感!
在中央水景的南侧,大华公园柏翠售楼处预约热线:400-8800-703还用一颗柏翠树型的构筑物形成独具艺术气质的“大树咖啡厅”,不仅拔高了社区的整体审美艺术和品味,也可供业主闲时聊天赏景、遛宠遛娃。
效果图,仅供参考
不难看出,大华公园柏翠不仅卷用料,更在审美艺术、生活方式上接轨国际前沿,拔升了高端住宅的品味和调性。
特别是艺术范,高净值买家阅尽繁华后普遍具备很高的审美品味,“大树咖啡厅”最能满足他们的需求。
第五,地上地下双精装大堂!
单元大堂门头精选欧亚核心产区的古堡灰大理石,左右两侧为对称生长柏翠超级符号的香槟色金属线条。
大堂两侧采用自然组团,选用早樱、红枫、丛生胡柚、海桐球等搭配蓝紫色调的花境,给业主一种穿越森林的归家体验。
效果图,仅供参考
第六,极尽奢华的地下车库!

纯粹低密小高层
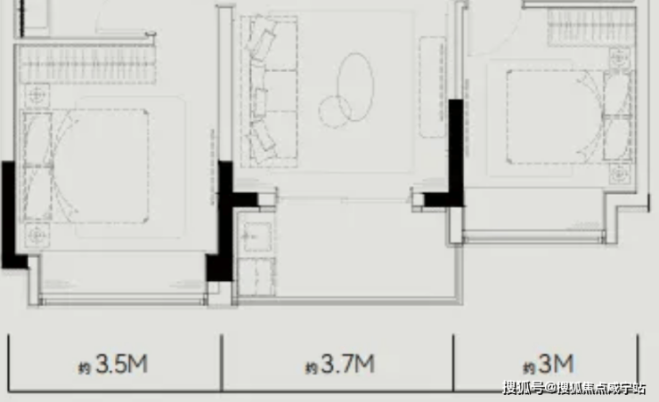
建面约101-142㎡3-4房,尺度感惊人!
关于户型,小胖君认为这可能是目前上海市面上,更具尺度感+舒适度的TOP级户型!
首先,项目整个社区由4栋16层、10栋17层小高层组成,是纯粹的低密小高层住宅。
一方面, 小高层在近期的上海市场中非常稀缺,尤其是在中环线上的位置上,小高层住宅凤毛麟角。
但另外一方面,小高层天然的高得房率、私密性和居住舒适度也保证了这个产品的受欢迎程度。
换句话说,大华公园柏翠售楼处预约热线:400-8800-703的产品力,从天赋上就已经与其他项目拉开了差距。
其次,产品上:项目建面约101-124㎡房源一梯两户、建面约142㎡两梯两户。
而这意味着,大部分的房源均是无连廊的设计,将带来更高的采光通透度、更好的通风以及更高的得房率。
再加上项目飞机户型的设计,室内几乎0空间浪费,即使是小户型也有超高的尺度感。
具体来看:
建面约101㎡3房2卫户型,非常标准的飞机户型。
三开间朝南整体约11.5米的面宽。什么概念呢?
上海这些年其实也有不少三开间朝南的飞机户型,但都不如了大华公园柏翠。
例如以下这个:总价约千万左右,建面约104㎡的房源。
这个项目凭借着出色的户型,获得了不少高净值人群的青睐,但他约104㎡的户型南向面宽只有10.2米,比大华公园柏翠约101㎡的户型还小了约1.3米。
别小看这约1.3米,整体的尺度感完全不同。

更重要的是,项目是大横厅+超大阳台的设计。撑起气场的同时,也能为家庭带来更多的生活想象。
另外,南北通透+3房5飘窗的设计,保证了户型的通风以及视野。
超大的U型厨房十分宽绰,让切配煮更加合理从容。
细节方面,次卫的干湿分离也能保证室内的干燥,入户的玄关、主卧的套房,保证了主人的私密空间。
这个户型拥有一个“好户型”的所有特质,上车必看的首选户型!
样板间看房视频独家首发!
建面约124㎡的4房2卫户型,通常来说是紧凑型的户型。
但得益于无连廊+飞机户型带来的高得房率,这个户型的尺度感非常惊人。
就拿餐厅而言,这个户型可以放下一个5-6人的圆桌,可以满足一大家子围坐大圆桌吃饭的需求。
另外,项目是4房中少有的4开间朝南、3房朝南的设计,采光度十分出色。
真正一步到位的改善型4房产品,大横厅的设计,
四开间朝南+大横厅,约15.4米的南向面宽堪比别墅。
大横厅也可以灵活运用在各种生活场景,例如作为妈妈的瑜伽室、孩子的游乐天地等,都是很好的选择。
这样的户型,能满足各个家庭成员的需求!
最后,还有一点:项目将标配国际家装大牌、臻选精奢材质、把关精细施工,悉心规划4大定制系统、100+精工细节,精琢非凡空间。

声明:本文由入驻焦点开放平台的作者撰写,除焦点官方账号外,观点仅代表作者本人,不代表焦点立场。
