天潼里 (官方售楼处) 官网 - 天潼里销售中心 - 环境 - 户型 - 价格 - 地址 - 楼盘详情 - 配套 - 电话 - 交房时间 - 配套 - 电话 - 交房时间
扫描到手机,新闻随时看
扫一扫,用手机看文章
更加方便分享给朋友
上海虹口外滩天潼里售楼处电话:400-8800-703【预约看房热线】外滩天潼里售楼处电话:4008800703【售楼处电话/地址】外滩天潼里售楼处电话:400-880-0703【开发商认证】
上海·外滩一手新房
外滩·距离外白渡桥260米
全新一手豪宅【天潼里】
建面约458-551㎡大平层
建面约320-349㎡叠加别墅
建面约500-900㎡合院别墅
全新551㎡大平层样板房
以及别墅样板房
正式开放预约
上海虹口外滩天潼里
售楼处电话:400-8800-703(预约看房热线)
上海外滩天潼里官方售楼处电话:拨打4008800703即可咨询楼盘详情_房价、户型、周边配套及交通、地址
Shanghai Hongkou Bund Tiantongli
Sales office phone: 400-8800-703 (appointment and property viewing hotline)
The official sales office for Tiantongli on the Bund in Shanghai can be reached by dialing 4008800703 for inquiries about property details, including housing prices, layouts, surrounding amenities, transportation, and address

上海虹口外滩天潼里售楼处电话:400-8800-703【预约看房热线】外滩天潼里售楼处电话:4008800703【售楼处电话/地址】外滩天潼里售楼处电话:400-880-0703【开发商认证】
风貌小高层
建面约458-551㎡7800万起
叠加别墅24套
建面约270-330㎡5800万起
27套风貌合院别墅(天潼里)
地上建面约525-907㎡
(地上地下加起来约1500-2000㎡)
合院别墅总价1.5亿左右起
天潼里位于内环内北外滩核心,天潼路近乍浦路口,独占江(黄浦江)河(苏州河)交汇上佳钻石地段,距离外白渡桥仅200余米。
上海虹口外滩天潼里售楼处电话:400-8800-703【预约看房热线】外滩天潼里售楼处电话:4008800703【售楼处电话/地址】外滩天潼里售楼处电话:400-880-0703【开发商认证】
项目建造历史风貌高层、多层和里弄住宅,另有少量商业、美术馆和酒店式公寓。
天潼里售楼处电话:400-8800-703 住宅产品户型图特别多,达到42种。包含面积段约209-641㎡高层住宅,面积段约231-400㎡多层住宅,面积段约㎡高层住宅270-330㎡叠加别墅,面积段约525-907㎡合院别墅。
共124套住宅单元,从图示来看,全部是风貌住宅产品。以下为首开楼栋图示,73套小高层+27套合院别墅+24套叠加别墅:
让我们来看看部分户型图,先是小高层平墅:
(458-551平米超级大平层)
上海虹口外滩天潼里售楼处电话:400-8800-703【预约看房热线】外滩天潼里售楼处电话:4008800703【售楼处电话/地址】外滩天潼里售楼处电话:400-880-0703【开发商认证】
全新 551㎡样板房
上海虹口外滩天潼里售楼处电话:400-8800-703【预约看房热线】外滩天潼里售楼处电话:4008800703【售楼处电话/地址】外滩天潼里售楼处电话:400-880-0703【开发商认证】
上海虹口外滩天潼里售楼处电话:400-8800-703【预约看房热线】外滩天潼里售楼处电话:4008800703【售楼处电话/地址】外滩天潼里售楼处电话:400-880-0703【开发商认证】
上海虹口外滩天潼里售楼处电话:400-8800-703【预约看房热线】外滩天潼里售楼处电话:4008800703【售楼处电话/地址】外滩天潼里售楼处电话:400-880-0703【开发商认证】
01|通厅揽景,天幕如卷
三面全明贯通厅,接驳城市天际线的剧场式生活场景
约270度三面环幕式开窗,打通阳台、客厅、餐厅与厨房,形成约19.1米南向与22.1米东向的超宽视野面宽。空间如画轴展开,面朝陆家嘴天际线,营造如剧场般的奢阔视觉感受。
02|奢阔阳台,南得尺度
南向巨幕级双阳台布局,生活场景随光线延展
户型配置约10.8米客厅阳台与约8.3米主卧阳台,南向布局让自然光与景观最大化融入日常生活,在起居与私密空间中形成连续的舒展界面,真正实现自然与生活的双重联动。
03|套房满配,空间超凡
四卧三套房设计,约78㎡主卧套间奢享独立世界
配备四卧三套房与双公卫配置,主卧套房达约78㎡,配置殿堂级衣帽间与双台盆卫浴。三间套房均设独立衣帽间,其中两间配有阳台,全方位满足居者的尊贵私密与生活仪式感。
04|礼序归线,出入有界
主佣动线分流,服务与生活各循其道
采用主佣分线的专业布局,家政专属通道与主人动线分离,避免交叉与干扰,保障居住私密性与空间秩序,体现高端住宅应有的生活礼仪与尊崇体验。
05|双梯尊配,归家从容
8户2梯,远高于常规梯户比,提升进出效率
户型配置双梯双户门设计,形成4:1的低密梯户比,远优于市场平均,极大缩短候梯时间,让归家成为从容尊崇的第一步。
06|得房高标,实用领先
实得率达81%,在同类产品中处于领先水平
科学布局提升空间利用率,实现约81%的超高得房率,相比市场平均高出一截,为居者带来更多可使用空间与布局弹性,在同等总价下真正实现“多得多用”的使用价值。
叠加别墅介绍:(下叠和上叠)
上海虹口外滩天潼里售楼处电话:400-8800-703【预约看房热线】外滩天潼里售楼处电话:4008800703【售楼处电话/地址】外滩天潼里售楼处电话:400-880-0703【开发商认证】
下叠别墅,是城市别墅生活的隐奢表达。沿街独立门牌,不仅昭示归家仪式,更在迎宾会客之间,展露门第的从容与尊贵。
01|独立门牌,尽显门第风范
沿街独立门牌,构筑家族化的身份标识。归家有序,待客有仪,于出入之间尽呈居者品味。
02|南北双入户,兼顾礼仪与私密
南向礼仪门迎宾,北向私密入户,动静有序,便捷自如,彰显居者从容气度。
03|近30㎡私家庭院,阳光与私密兼得
约2.2m围墙设计,既保留私密,又引光入室,于内外之间构建生活的层次感。
04|约10.5米南向面宽,开阔横向尺度
南向宽幕引光入室,赋予居住以通透的仪式感。
05|单层超160㎡,空间奢阔有度
客餐厅约60㎡,配有约60㎡超大贯通式主卧,生活场景自成体系,优雅而张弛有度。
全套房布局,让家人各得其所,舒适与私密兼得。
06|郎阔格局,空间随心定义
约3.5m与3.6m层高递进延展,纵深之中蕴含尊崇尺度。
基本无承重墙设计,空间可自由定义,生活随心铺陈。
超1:1实得赠送比,让空间更丰盈、体验更进阶。
07|地下空间,功能无限延展
地下层均配采光井,舒适度保障;约6.7m层高可容纳酒窖、会所等多元功能,承载生活的更多想象。
上海虹口外滩天潼里售楼处电话:400-8800-703【预约看房热线】外滩天潼里售楼处电话:4008800703【售楼处电话/地址】外滩天潼里售楼处电话:400-880-0703【开发商认证】
上叠别墅,是一种生活姿态。居于更高一隅,揽尽城市的光影流转。在喧嚣之上,自成一方私域天地。
01|双露台·一阳台,延展自然的呼吸
南北双向开阔布局,北向露台近10米,城市景观与自然相融。
休闲露台对话城市天际线,于阳光与风景之间,重拾生活的轻盈。
02|约10.5米南向面宽,采光极佳
横向展开的空间尺度,让阳光洒满每一处生活场景,晨昏之间皆是风景。
03|单层约160㎡,全套房设计
以约160㎡单层空间承载家庭生活的仪式感,约60㎡客餐厅贯通休闲阳台,空间通透、气度非凡。全套房设计,保证每位居者的私密与舒适,礼序有致、功能齐备。
04|自由改动,基本无承重
内部结构灵动,可根据家庭需求自由规划,空间使用无界。
赠送约3.2米层高地下室,生活可能由此倍增。
05|奢阔层高,演绎空间的尊崇感
三层约3.5m、四层约3.6m层高,纵向空间感更显阔绰,舒居尺度跃然呈现。
上海虹口外滩天潼里售楼处电话:400-8800-703【预约看房热线】外滩天潼里售楼处电话:4008800703【售楼处电话/地址】外滩天潼里售楼处电话:400-880-0703【开发商认证】
上海虹口外滩天潼里售楼处电话:400-8800-703【预约看房热线】外滩天潼里售楼处电话:4008800703【售楼处电话/地址】外滩天潼里售楼处电话:400-880-0703【开发商认证】
外滩正核板块唯一在售新房
苏州河黄浦江「一江一河」交汇原点
距外白渡桥约200米,步行约5分钟至外滩万国建筑群
与陆家嘴三件套隔江对望,坐享丰盈配套
接下来介绍 525平合院别墅:
上海虹口外滩天潼里售楼处电话:400-8800-703【预约看房热线】外滩天潼里售楼处电话:4008800703【售楼处电话/地址】外滩天潼里售楼处电话:400-880-0703【开发商认证】
近年来,上海在城市更新方面既注重保护原有城市肌理,又着重发展历史风貌建筑。这一方式虽然创造了一个多元且尊重历史的城市景观,但这些新开发的风貌住宅项目也代表着一种有别于中国传统房地产市场的新方向。
Lilong Living
里弄生活
江南绞圈房与西式联排住宅
Jiangnan Courtyard House & Western Townhouse
里弄房屋,也称为石库门,是中国传统四合院与西方联排住宅的独特融合,体现了海派建筑的跨文化特色传统。中国传统四合院强调内向的水平空间,而西方联排住宅则以外向的垂直空间为特色。这种建筑设计的融合反映了十九世纪至二十世纪初上海开放进取的国际精神。
Return to the Courtyard
栖息院落
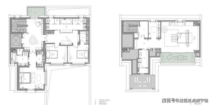
1层设计平面
1F Floor plan
上海虹口外滩天潼里售楼处电话:400-8800-703【预约看房热线】外滩天潼里售楼处电话:4008800703【售楼处电话/地址】外滩天潼里售楼处电话:400-880-0703【开发商认证】
入户体验始于私家庭院。在高密度的城市环境中,庭院为住宅提供了一处解压之地,一缕新鲜空气。因此,在平面布局上,我们将所有重要空间布置在庭院周边,以充分利用庭院空间。
庭院
Courtyard
上海虹口外滩天潼里售楼处电话:400-8800-703【预约看房热线】外滩天潼里售楼处电话:4008800703【售楼处电话/地址】外滩天潼里售楼处电话:400-880-0703【开发商认证】
从庭院地面层,可以看到客厅和餐厅的内部空间。客厅在立面上向内凹陷,形成了一条有遮盖的走廊,通向房屋定制的深铜色入户大门。
入户门
Entry Door
入户空间由一个简约的门厅和楼梯厅组成,门厅配有控制台和嵌入式衣柜。以多功能圆桌为中心的楼梯厅连接着楼梯、电梯、客用卫生间和客厅。空间采用白色洞石搭配特制染色的胡桃木,其浅色调与洞石和谐呼应,同时保留了胡桃木独特的纹理特征。
上海虹口外滩天潼里售楼处电话:400-8800-703【预约看房热线】外滩天潼里售楼处电话:4008800703【售楼处电话/地址】外滩天潼里售楼处电话:400-880-0703【开发商认证】
楼梯厅
Stair Hall
在客厅中,两个展示架巧妙地将空间分隔成主客厅区和休闲室,营造出一个与建筑尺度交相辉映的层次空间。
上海虹口外滩天潼里售楼处电话:400-8800-703【预约看房热线】外滩天潼里售楼处电话:4008800703【售楼处电话/地址】外滩天潼里售楼处电话:400-880-0703【开发商认证】
上海虹口外滩天潼里售楼处电话:400-8800-703【预约看房热线】外滩天潼里售楼处电话:4008800703【售楼处电话/地址】外滩天潼里售楼处电话:400-880-0703【开发商认证】
这样的布局提供了多样的就座选择——主客厅区保持其开阔大气,与庭院浑然一体;而配备了吧台并可俯瞰北侧小庭院的休闲室,则营造出温馨私密的氛围。
正式客厅
Formal Living Room
餐厅四角以高光烤漆板为基准,营造出庄重感。空间一侧临近中庭,另一侧毗邻西侧小庭院。
上海虹口外滩天潼里售楼处电话:400-8800-703【预约看房热线】外滩天潼里售楼处电话:4008800703【售楼处电话/地址】外滩天潼里售楼处电话:400-880-0703【开发商认证】
餐厅
Dining Room
一面贯穿地下室至阁楼七层的整体白色洞石墙体构成建筑主轴。楼梯采用纯净简约的设计,作为连接整个住宅的核心元素,与每层的风格相得益彰。
上海虹口外滩天潼里售楼处电话:400-8800-703【预约看房热线】外滩天潼里售楼处电话:4008800703【售楼处电话/地址】外滩天潼里售楼处电话:400-880-0703【开发商认证】
上海虹口外滩天潼里售楼处电话:400-8800-703【预约看房热线】外滩天潼里售楼处电话:4008800703【售楼处电话/地址】外滩天潼里售楼处电话:400-880-0703【开发商认证】
1-4层楼梯间
1-4F Staircase
深铜色的栏杆和扶手融合传统与现代语汇,演变出一种当代型态,与现代白色洞石相映成趣,营造出优雅纯粹的意境。
Master of the Courtyard
大隐隐于市
整个三层都属于主卧套间。我们非常重视这一层空间的秩序感和流线,并尝试了多种方案。最终我们没有将主卧室空间直接紧贴面向庭院的窗户,而是借鉴上海老洋房的做法,在中间增加了一个过渡空间——‘阳光房’。
这个空间不仅解决了整层的交通动线,更重要的是,考虑到里弄建筑之间的紧密距离,通过将最私密的卧室区域与大窗户分开来确保居住者的隐私。同时为了确保主卧室区域能获得充足的自然光,我们使用折叠百叶门来分隔主空间和阳光房。
上海虹口外滩天潼里售楼处电话:400-8800-703【预约看房热线】外滩天潼里售楼处电话:4008800703【售楼处电话/地址】外滩天潼里售楼处电话:400-880-0703【开发商认证】
3层设计平面
3F Floor plan
主卧入口
Master Bedroom Entrance
上海虹口外滩天潼里售楼处电话:400-8800-703【预约看房热线】外滩天潼里售楼处电话:4008800703【售楼处电话/地址】外滩天潼里售楼处电话:400-880-0703【开发商认证】
上海虹口外滩天潼里售楼处电话:400-8800-703【预约看房热线】外滩天潼里售楼处电话:4008800703【售楼处电话/地址】外滩天潼里售楼处电话:400-880-0703【开发商认证】
主卧室空间
Main Bedroom Space
床边的读书角落
Reading Corner
“阳光房“
上海虹口外滩天潼里售楼处电话:400-8800-703【预约看房热线】外滩天潼里售楼处电话:4008800703【售楼处电话/地址】外滩天潼里售楼处电话:400-880-0703【开发商认证】
“Sunroom“
深色烟熏橡木搭配Eric Morris定制的黄铜五金件,将上海石库门的韵味和气质在精致的细节中得到完美诠释。
主卫
Master Bathroom
上海虹口外滩天潼里售楼处电话:400-8800-703【预约看房热线】外滩天潼里售楼处电话:4008800703【售楼处电话/地址】外滩天潼里售楼处电话:400-880-0703【开发商认证】
Courtyard Living
庭院生活
2&4层设计平面
2&4F Floor plan
二层设有儿童区和父母房间。所有房间都围绕庭院布置,以充分利用景观视野。我们还将楼梯厅空间改造成家庭图书馆——在这个原本私密的楼层创造了一个公共空间。这为家庭成员增加了除客厅和地下室之外的又一互动空间,强化了我们对现代上海家庭——更多交通和爱的理念。
家庭书房
Family Library
上海虹口外滩天潼里售楼处电话:400-8800-703【预约看房热线】外滩天潼里售楼处电话:4008800703【售楼处电话/地址】外滩天潼里售楼处电话:400-880-0703【开发商认证】
上海虹口外滩天潼里售楼处电话:400-8800-703【预约看房热线】外滩天潼里售楼处电话:4008800703【售楼处电话/地址】外滩天潼里售楼处电话:400-880-0703【开发商认证】
父母卧房&儿童卧房
Parents’and Kid’s Bedrooms
儿童卫生间
Kid’s Bathroom
四层阁楼是大女儿的卧室。这里的斜顶启发我们在空间内打造了一个木质小屋;配备私人浴室和衣帽间,还有一个露天阳台,仿佛这充满阳光的一层就是个独立公寓。
Endless Interior
室内的"室内"
地下室层是娱乐和家庭聚会的主要空间,因此,我们将空间设计得更现代和随意。也正是在这里,我们突破了室内空间中跨文化对话的界限。
地下设计平面
Basement Floor plan
尽管有明确的结构分区和限制,我们还是将地下室视为一个整体空间。我们的方法是在空间中植入一个“町屋”(日本传统商住建筑)。
上海虹口外滩天潼里售楼处电话:400-8800-703【预约看房热线】外滩天潼里售楼处电话:4008800703【售楼处电话/地址】外滩天潼里售楼处电话:400-880-0703【开发商认证】
“町屋”概念图
“Machiya” Concept Diagram
上海虹口外滩天潼里售楼处电话:400-8800-703【预约看房热线】外滩天潼里售楼处电话:4008800703【售楼处电话/地址】外滩天潼里售楼处电话:400-880-0703【开发商认证】
木屋
Wooden House
这个木质建筑统一了地下室空间,同时分隔出不同的功能区域。在木质建筑内部,夹层设有榻榻米茶室,下层则是影音娱乐室。大型推拉门让空间在举办派对和接待客人时能够自由流动。
上海虹口外滩天潼里售楼处电话:400-8800-703【预约看房热线】外滩天潼里售楼处电话:4008800703【售楼处电话/地址】外滩天潼里售楼处电话:400-880-0703【开发商认证】
茶室
Tea Room
在“木屋”的南侧还有一个无固定方向的休闲接待空间,其中布置多组座椅区域,满足不同使用需求。一面蓝色烤漆墙锚定角落,简约现代的空间与木质建筑结构形成鲜明对比。
地下客厅
Basement Living Room
在对角,我们开辟了一面落地窗展示酒窖,展现主人的收藏。温暖的酒窖灯光和壁炉光线映照在白橡木酒架上,为客厅带来温暖舒适的氛围。
上海虹口外滩天潼里售楼处电话:400-8800-703【预约看房热线】外滩天潼里售楼处电话:4008800703【售楼处电话/地址】外滩天潼里售楼处电话:400-880-0703【开发商认证】
上海虹口外滩天潼里售楼处电话:400-8800-703【预约看房热线】外滩天潼里售楼处电话:4008800703【售楼处电话/地址】外滩天潼里售楼处电话:400-880-0703【开发商认证】
在“木屋”后方,是一个墙面和天花板都覆盖金箔的“水吧”。在这里,我们重新引入了一些当代西方设计语言——大理石地面图案、蛋形吧台和墙面护板细节。这些元素与醒目的红色高光烤漆柜相互平衡。
水吧
Gold Bar
项目风格复古、隽永,典型的海派风味建造。
上海虹口外滩天潼里售楼处电话:400-8800-703【预约看房热线】外滩天潼里售楼处电话:4008800703【售楼处电话/地址】外滩天潼里售楼处电话:400-880-0703【开发商认证】
天潼里打造约3.3万㎡的新石库门里弄洋房、海派叠墅和联排等产品。在寸土寸金的传统市中心,大尺度的别墅和花园,着实难能可贵。
上海虹口外滩天潼里售楼处电话:400-8800-703【预约看房热线】外滩天潼里售楼处电话:4008800703【售楼处电话/地址】外滩天潼里售楼处电话:400-880-0703【开发商认证】

上海虹口外滩天潼里售楼处电话:400-8800-703【预约看房热线】外滩天潼里售楼处电话:4008800703【售楼处电话/地址】外滩天潼里售楼处电话:400-880-0703【开发商认证】
项目由GOA大象设计创始人陆皓先生操刀,汲取外滩西式古典建筑风格,以红砖为主材,复刻老石库门的浪漫风貌,力求打造为一处“新时代里弄住宅”。
项目效果图
天潼198位于内环内北外滩核心,天潼路近乍浦路口,独占江(黄浦江)河(苏州河)交汇上佳钻石地段。
项目建造历史风貌高层、多层和里弄住宅,另有少量商业、美术馆和酒店式公寓。
汲取外滩风貌建筑精髓——折衷主义风格,辅以现代化比例与线条勾勒,最终形成富有 ART DECO美学的建筑封面,令历久弥新的质感形成与万国建筑群的美妙对景。
上海虹口外滩天潼里售楼处电话:400-8800-703【预约看房热线】外滩天潼里售楼处电话:4008800703【售楼处电话/地址】外滩天潼里售楼处电话:400-880-0703【开发商认证】
项目风格复古、隽永,典型的海派风味建造。
天潼198将打造约3.3万㎡的新石库门里弄洋房、海派叠墅和联排等产品。在寸土寸金的传统市中心,大尺度的别墅和花园,着实难能可贵。
上海虹口外滩天潼里售楼处电话:400-8800-703【预约看房热线】外滩天潼里售楼处电话:4008800703【售楼处电话/地址】外滩天潼里售楼处电话:400-880-0703【开发商认证】
项目由GOA大象设计创始人陆皓先生操刀,汲取外滩西式古典建筑风格,以红砖为主材,复刻老石库门的浪漫风貌,力求打造为一处“新时代里弄住宅”。
上海虹口外滩天潼里售楼处电话:400-8800-703【预约看房热线】外滩天潼里售楼处电话:4008800703【售楼处电话/地址】外滩天潼里售楼处电话:400-880-0703【开发商认证】
项目效果图
「天潼198」位于北外滩核心区,距离外白渡桥非常近,外滩可以步行达,享受外滩的顶级配套。
右下地块即为项目位置
「天潼198」地处乍浦路天潼路,周边城市界面非常不错。
上海虹口外滩天潼里售楼处电话:400-8800-703【预约看房热线】外滩天潼里售楼处电话:4008800703【售楼处电话/地址】外滩天潼里售楼处电话:400-880-0703【开发商认证】
新湖地块位置
作为虹口北外滩的上佳地段,「天潼」坐享北外滩4平方公里的城市规划,更是成为了媲美陆家嘴的中央活动区,直面黄浦江+外滩,拥有特别的优势!
其实,说豪宅,我们经常提到陆家嘴,因为上海已经有一个成熟的可供模仿与超越的全球规划模板。但实际上,到目前为止,真正可以称为世界级规划的在上海只有三个:苏河湾、外滩和北外滩!
世界级规划区域
要知道,相比于其他版块,北外滩发展后劲尤其强势,特别在2021年7月份上海市人民政府发布“北外滩4平方公里热土开发机制”后,规划从纸上走向落地, 未来的北外滩,更将成为规划承诺兑现的高地。
上海虹口外滩天潼里售楼处电话:400-8800-703【预约看房热线】外滩天潼里售楼处电话:4008800703【售楼处电话/地址】外滩天潼里售楼处电话:400-880-0703【开发商认证】
白玉兰广场
国际金融航运新中心
苏宁宝丽嘉
上海虹口外滩天潼里售楼处电话:400-8800-703【预约看房热线】外滩天潼里售楼处电话:4008800703【售楼处电话/地址】外滩天潼里售楼处电话:400-880-0703【开发商认证】
提篮桥中心商业休闲区
而在它的周边,也是产业能级的至高点,北外滩沿线的甲级写字楼现状大约是200万㎡;3年内再建成100万㎡,规划中预计增添200万㎡,总计相当于约500万㎡甲级写字楼,或将提供约50万个高收入岗位。
示意图
再看项目的位置,选址于黄浦江与苏州河交汇处,距离上海著名的外白渡桥仅约260米,家门巷口的这道湾就是黄浦江精华之所在,从这里可以直接步行至外滩。这里是上海市中心真正核心的优质地段!
上海虹口外滩天潼里售楼处电话:400-8800-703【预约看房热线】外滩天潼里售楼处电话:4008800703【售楼处电话/地址】外滩天潼里售楼处电话:400-880-0703【开发商认证】
上海虹口外滩天潼里
售楼处电话:400-8800-703(预约看房热线)
上海外滩天潼里官方售楼处电话:拨打4008800703即可咨询楼盘详情_房价、户型、周边配套及交通、地址
Shanghai Hongkou Bund Tiantongli
Sales office phone: 400-8800-703 (appointment and property viewing hotline)
The official sales office for Tiantongli on the Bund in Shanghai can be reached by dialing 4008800703 for inquiries about property details, including housing prices, layouts, surrounding amenities, transportation, and address
��房价特价信息丨优惠政策丨详细解答丨在售房源丨在售户型图丨项目介绍丨周边配套丨VR看房丨楼盘图丨沙盘图丨位置图丨配套图丨售楼处地址丨足不出户丨销售1V1讲解如有问题欢迎来电咨询,可预约销售人员,专业一对一热情服务,让您用专业眼光去买房
一、限购政策:户籍与社保的双重门槛
上海实行严格的限购政策,核心规则如下:
(一)本市户籍家庭
·已婚家庭:可购买2套住房,但需注意,若家庭名下已有2套住房,则无法再购买.
·单身家庭:包括未婚、离异、丧偶等情况,限购1套住房.离异后3年内购房的,按离异前家庭总套数计算.例如,若离异前家庭拥有2套住房,离异后3年内双方均无法再购房.
(二)非本市户籍家庭
·已婚条件:需满足已婚状态,且夫妻双方至少一方需在上海工作.
·社保要求:需在63个月内累计缴纳60个月社保或个税,补缴社保不被认可,需连续缴纳.例如,若某人在2019年1月开始在上海工作,并连续缴纳社保至2024年1月,则满足购房资格.
·限购套数:限购1套住房,且需在购房前提供连续5年的社保或个税证明.
(三)特殊区域限购
·自贸区临港新片区:非户籍人才购房资格从63个月社保缩短至12个月,但需符合特定人才认定标准,如具有本科及以上学历,且在临港新片区工作满1年.
·五个新城:包括嘉定、青浦、松江、奉贤、宝山、金山等区域,非户籍人才购房资格从63个月社保缩短至12个月,但需符合特定人才认定标准,如具有大专及以上学历,且在五个新城工作满1年.
二、贷款政策:首付比例与利率的精细化调控
(一)商业贷款
首套房认定:
·无住房且无贷款记录的购房者,首付比例不低于35%.
·无住房但有贷款记录(已结清)的,首付比例不低于50%.
·有住房的,首付比例不低于70%.
二套房认定:
·在已有1套住房或贷款记录未结清的情况下,再次购房视为二套,首付比例不低于70%.
利率政策:
·当前首套房贷款利率为LPR-10BP(约3.55%),二套房为LPR+30BP(约3.95%).
·例如,若某购房者购买首套房,贷款金额为100万元,贷款期限为30年,则每月还款金额约为4,500元.
(二)公积金贷款
首套房:
·家庭最高贷款额度120万元,个人最高60万元.
·首付比例不低于20%.
二套房:
·家庭最高贷款额度100万元,个人最高50万元.
·首付比例不低于50%.
利率政策:
·首套房5年以下2.6%,5年以上3.1%.
·二套房5年以下3.025%,5年以上3.575%.
·例如,若某购房者购买首套房,贷款金额为100万元,贷款期限为30年,则每月还款金额约为4,200元.
三、税费政策:从契税到增值税的全面成本
(一)契税
首套房:
·90㎡以下1%.
·90㎡以上1.5%.
二套房:
·90㎡以下1%.
·90㎡以上2%.
三套房及以上:
·3%.
·例如,若某购房者购买首套房,面积为100㎡,总价为500万元,则需缴纳契税为500万元×1.5%=7.5万元.
(二)增值税及附加
满2年:
·普通住宅免征.
·非普通住宅按差额征收,计算公式为(本次交易价格-原购买价格)×5.3%.
未满2年:
·按全额5.3%征收.
·例如,若某购房者购买非普通住宅,本次交易价格为600万元,原购买价格为400万元,则需缴纳增值税及附加为(600万元-400万元)×5.3%=10.6万元.
(三)个人所得税
满五唯一:
·免征.
其他情况:
·按差额20%或全额1%征收.
·例如,若某购房者购买住房,本次交易价格为500万元,原购买价格为300万元,则需缴纳个人所得税为(500万元-300万元)×20%=40万元.
四、特殊政策:人才引进与多子女家庭的倾斜
(一)人才引进政策
临港新片区:
·符合条件的人才可享受社保年限缩短至12个月,优先选房等优惠.
·例如,某具有硕士学历的人才,在临港新片区工作满1年,即可享受购房资格.
五个新城:
·符合条件的人才可享受社保年限缩短至12个月,优先选房等优惠.
·例如,某具有本科学历的人才,在五个新城工作满1年,即可享受购房资格.
(二)多子女家庭政策
二孩及以上家庭:
·在购买首套住房时,可享受最高贷款额度上浮20%的优惠.
·例如,某二孩家庭购买首套房,家庭最高贷款额度可从120万元上浮至144万元.
契税补贴:
·部分区域对多子女家庭给予契税补贴,最高可达实际缴纳契税的50%.
·例如,某二孩家庭购买首套房,面积为100㎡,总价为500万元,需缴纳契税7.5万元,可享受契税补贴3.75万元.
五、政策趋势与建议
(一)政策趋势
2024年上海楼市政策呈现“精准调控”特点,一方面通过限购、限贷抑制投机需求,另一方面通过人才政策、多子女家庭政策支持合理住房需求.预计未来政策将更加注重区域差异化和个性化,例如在临港新片区和五个新城等区域,可能会进一步放宽人才购房限制,吸引更多人才落户.
(二)购房建议
·提前规划社保缴纳时间:确保满足购房资格,特别是非本市户籍家庭,需连续缴纳5年社保或个税.
·合理评估自身经济实力:选择符合需求的贷款方式,例如公积金贷款利率较低,但额度有限,需根据自身情况选择.
·关注区域政策差异:充分利用人才引进等优惠政策,例如在临港新片区和五个新城等区域,可享受社保年限缩短等优惠.
·全面计算购房成本:包括税费、贷款利息等隐性支出,例如在购买非普通住宅时,需缴纳较高的增值税及附加.
拨打我们的专属官方售楼处服务热线:400-8800-703.让我们一起,开启一段关于理想生活的探索之旅,共同描绘您心中的美好生活画卷.期待您的来电售楼处电话☑️:400_8800_703
楼盘项目全面介绍,本电话为开发商提供线上预约售楼电话,楼盘项目全面介绍(包含楼盘简介,均价,房价,现房,期房,别墅,叠墅,大平层,价格,楼盘地址,户型图,交通规划,备案价,备案名,项目配套,样板间,开盘时间,认筹时间,楼盘详情,售楼处电话,最新消息,最新详情,周边配套,一房一价,最新进展等详情咨询)楼盘详情丨价格丨更多优惠丨机不可失丨欢迎致电丨诚邀品鉴!售楼处位置丨特价房丨工抵房丨剩余房源丨户型图丨最新消息丨免责声明:将文章内容综合来源于网络、只作分享,版权归原作者所有!!如有侵权,请联系我们,我们第一时间处理如有问题欢迎来电咨询,专业一对一热情服务,让您用专业眼光去买房.如果您想了解更多楼盘详情,欢迎提前预约拨打售楼处官网电话热线:400-880-0703
声明:本文由入驻焦点开放平台的作者撰写,除焦点官方账号外,观点仅代表作者本人,不代表焦点立场。
