松江洞泾华发海上都荟优缺点解析,卖点-松江洞泾华发海上都荟附近有墓地吗?

咸宁楼市发布 2024-07-02 17:13:57
用手机看
扫描到手机,新闻随时看

扫一扫,用手机看文章
更加方便分享给朋友

**教育资源丰富**:-项目周边有多所优质学校,包括民办爱朗双语幼儿园、公办洞泾百鸟幼儿园、售楼处热线:400-885-1063如有问题欢迎9年一贯制的洞泾外国语实验学校等。根据项目设计方案显示,拟建56幢4…

华发海上都荟二期房价,松江洞泾华发海上都荟楼盘简介,华发海上都荟楼盘解析9/12号线西延伸(在建中)双地铁房松江洞泾华发海上都荟优缺点解析,卖点-松江洞泾华发海上都荟附近有墓地吗?

上海西南新一代高品质封面之作

华发·海上都荟二期

建面约101㎡高层三房

建面约90-136㎡叠加

均价49100元/㎡,总价401万起!

开盘热销中!

线上接待预约中!!

华发海上都荟二期房价,松江洞泾华发海上都荟楼盘简介,华发海上都荟楼盘解析

松江洞泾华发海上都荟优缺点解析,卖点-松江洞泾华发海上都荟附近有墓地吗?

售楼处热线:400-885-1063

如有问题欢迎来电咨询,来电即可享受买房优惠!

加微信咨询:180 1720 3845(加微信,不要来电,备注楼盘名字)

直接电话拨打400-885-1063

每日沪房网签快报丨展开动画

松江洞泾华发海上都荟优缺点解析,卖点-松江洞泾华发海上都荟附近有墓地吗?售楼处热线:400-885-1063如有问题欢迎

### 松江洞泾华发海上都荟优缺点

#### 优点:

1. **交通便利**:

- 项目紧邻9号线和12号线(西延伸在建)双轨交,距离地铁洞泾站直线距离仅约700米,未来出行非常便捷。

- 12号线西延伸预计2027年底开通试运营,将有效分流9号线客流量,并快速通达多个核心区域。

2. **价格优势**:

- 整盘联动价约5万/㎡,相较于周边板块具有较高的性价比。

- 首开高层均价约4.53万/㎡,对于预算有限的购房者来说,是难得的置业机会。

3. **教育资源丰富**:

- 项目周边有多所优质学校,包括民办爱朗双语幼儿园、公办洞泾百鸟幼儿园、9年一贯制的洞泾外国语实验学校等。

4. **商业配套齐全**:

- 项目直线距离约2.2公里即可到达松江印象城等大型商业综合体,满足日常购物娱乐需求。

5. **环境优美**:

- 东边临河,西边靠近佘山旅游度假区,居住环境舒适。

6. **产品规划合理**:

- 项目规划有高层和叠墅产品,满足不同购房者的需求。叠墅产品得房率高,空间可塑性强,适合多代人共居。

7. **开发商实力强**:

- 华发作为国企,在项目开发和交付方面具有较高的信誉和保障。

#### 缺点:

1. **周边开发缓慢**:

- 项目周边部分区域仍处于开发阶段,配套设施尚未完全成熟。

2. **工业区影响**:

- 沈砖南路以南是工业区,可能会对居住环境产生一定影响。

### 松江洞泾华发海上都荟附近墓地情况松江洞泾华发海上都荟优缺点解析,卖点-松江洞泾华发海上都荟附近有墓地吗?售楼处热线:400-885-1063如有问题欢迎

- 根据公开信息,洞泾附近存在陵园和公墓,如丁仙园距离洞泾约1753米,回民公墓距离洞泾较远(超过10公里)。这些墓地虽然存在,但距离华发海上都荟项目有一定距离,对日常居住影响有限。

### 华发海上都荟值得买吗?

综合考虑华发海上都荟的优缺点以及周边情况,该项目在交通、价格、教育、商业等方面均表现出色,具有较高的性价比和居住价值。虽然周边开发尚未完全成熟,但随着时间推移和规划的逐步落实,配套设施将不断完善。

因此,对于追求交通便利、价格适中、教育资源丰富、居住环境舒适的购房者来说,华发海上都荟是一个值得考虑的选择。当然,购房者在做出决定前还需根据自身需求和实际情况进行综合考虑和权衡。

### 松江洞泾华发海上都荟优缺点

#### 优点:

1. **交通便利**:

- 项目紧邻9号线和12号线(西延伸在建)双轨交,距离地铁洞泾站直线距离仅约700米,未来出行非常便捷。

- 12号线西延伸预计2027年底开通试运营,将有效分流9号线客流量,并快速通达多个核心区域。

2. **价格优势**:

- 整盘联动价约5万/㎡,相较于周边板块具有较高的性价比。

- 首开高层均价约4.53万/㎡,对于预算有限的购房者来说,是难得的置业机会。

3. **教育资源丰富**:

- 项目周边有多所优质学校,包括民办爱朗双语幼儿园、公办洞泾百鸟幼儿园、松江洞泾华发海上都荟优缺点解析,卖点-松江洞泾华发海上都荟附近有墓地吗?售楼处热线:400-885-1063如有问题欢迎9年一贯制的洞泾外国语实验学校等。

4. **商业配套齐全**:

- 项目直线距离约2.2公里即可到达松江印象城等大型商业综合体,满足日常购物娱乐需求。

5. **环境优美**:

- 东边临河,西边靠近佘山旅游度假区,居住环境舒适。

6. **产品规划合理**:

- 项目规划有高层和叠墅产品,满足不同购房者的需求。叠墅产品得房率高,空间可塑性强,适合多代人共居。

7. **开发商实力强**:

- 华发作为国企,在项目开发和交付方面具有较高的信誉和保障。

#### 缺点:

1. **周边开发缓慢**:

- 项目周边部分区域仍处于开发阶段,配套设施尚未完全成熟。

2. **工业区影响**:

- 沈砖南路以南是工业区,可能会对居住环境产生一定影响。

### 松江洞泾华发海上都荟附近墓地情况

- 根据公开信息,洞泾附近存在陵园和公墓,如丁仙园距离洞泾约1753米,回民公墓距离洞泾较远(超过10公里)。这些墓地虽然存在,但距离华发海上都荟项目有一定距离,对日常居住影响有限。

### 华发海上都荟值得买吗?

综合考虑华发海上都荟的优缺点以及周边情况,该项目在交通、价格、教育、商业等方面均表现出色,具有较高的性价比和居住价值。虽然周边开发尚未完全成熟,但随着时间推移和规划的逐步落实,配套设施将不断完善。

因此,对于追求交通便利、价格适中、教育资源丰富、居住环境舒适的购房者来说,华发海上都荟是一个值得考虑的选择。当然,购房者在做出决定前还需根据自身需求和实际情况进行综合考虑和权衡。

华发海上都荟二期已于4月29日开盘销售,本次开盘推出300套高层住宅、叠加房源,建面约84-136㎡,其中高层住宅房源带装修,均价45784元/㎡,叠拼房源毛坯,均价60981元/㎡,二期整体均价50370元/㎡,一房一价。本次认购入围比<1.3:1,无需积分详情请咨询售楼处。

首期在售建面约84-136㎡,包含高层住宅和叠拼,松江洞泾华发海上都荟优缺点解析,卖点-松江洞泾华发海上都荟附近有墓地吗?售楼处热线:400-885-1063如有问题欢迎其中高层住宅房源带装修,均价约45284元/㎡,叠拼均价60631元/㎡,首期整体均价49100元/㎡,一房一价,详情请咨询售楼处。

松江洞泾华发海上都荟优缺点解析,卖点-松江洞泾华发海上都荟附近有墓地吗?售楼处热线:400-885-1063如有问题欢迎

华发海上都荟二期房价,松江洞泾华发海上都荟楼盘简介,华发海上都荟楼盘解析

售楼处热线:400-885-1063

如有问题欢迎来电咨询,来电即可享受买房优惠!

加微信咨询:180 1720 3845(加微信,不要来电,备注楼盘名字)

直接电话拨打400-885-1063

在上海新房市场不温不火的背景下,双地铁口红盘华发海上都荟的首开可谓给市场打了剂强心剂!

项目首开现场人气爆棚,热度非凡,松江洞泾华发海上都荟优缺点解析,卖点-松江洞泾华发海上都荟附近有墓地吗?售楼处热线:400-885-1063如有问题欢迎堪称一场全市级的盛宴。

项目首开当月劲销7成,约200余套房源名花有主,总销金额高达约11.5亿

项目推荐 · 理由松江洞泾华发海上都荟优缺点解析,卖点-松江洞泾华发海上都荟附近有墓地吗?

售楼处热线:400-885-1063

如有问题欢迎来电咨询,来电即可享受买房优惠!

加微信咨询:180 1720 3845(加微信,不要来电,备注楼盘名字)

直接电话拨打400-885-1063

项目推荐理由丨展开动画

华发海上都荟二期房价,松江洞泾华发海上都荟楼盘简介,华发海上都荟楼盘解析

售楼处热线:400-885-1063

如有问题欢迎来电咨询,来电即可享受买房优惠!

加微信咨询:180 1720 3845(加微信,不要来电,备注楼盘名字)

直接电话拨打400-885-1063

内容提要:

*01.基本信息

*02.推售信息

*03.周边配套

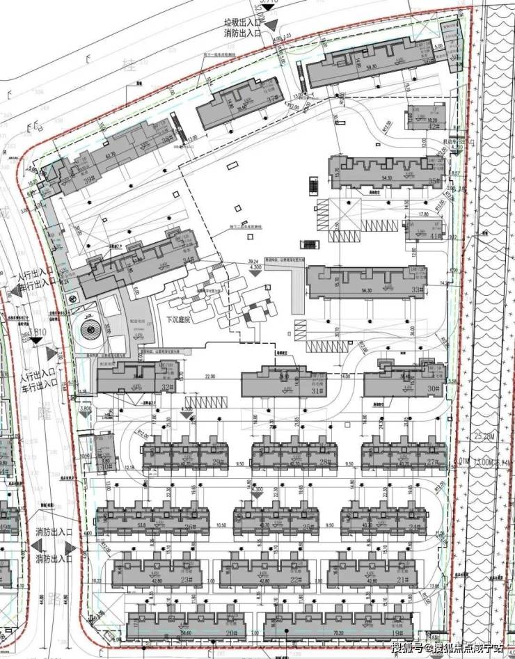
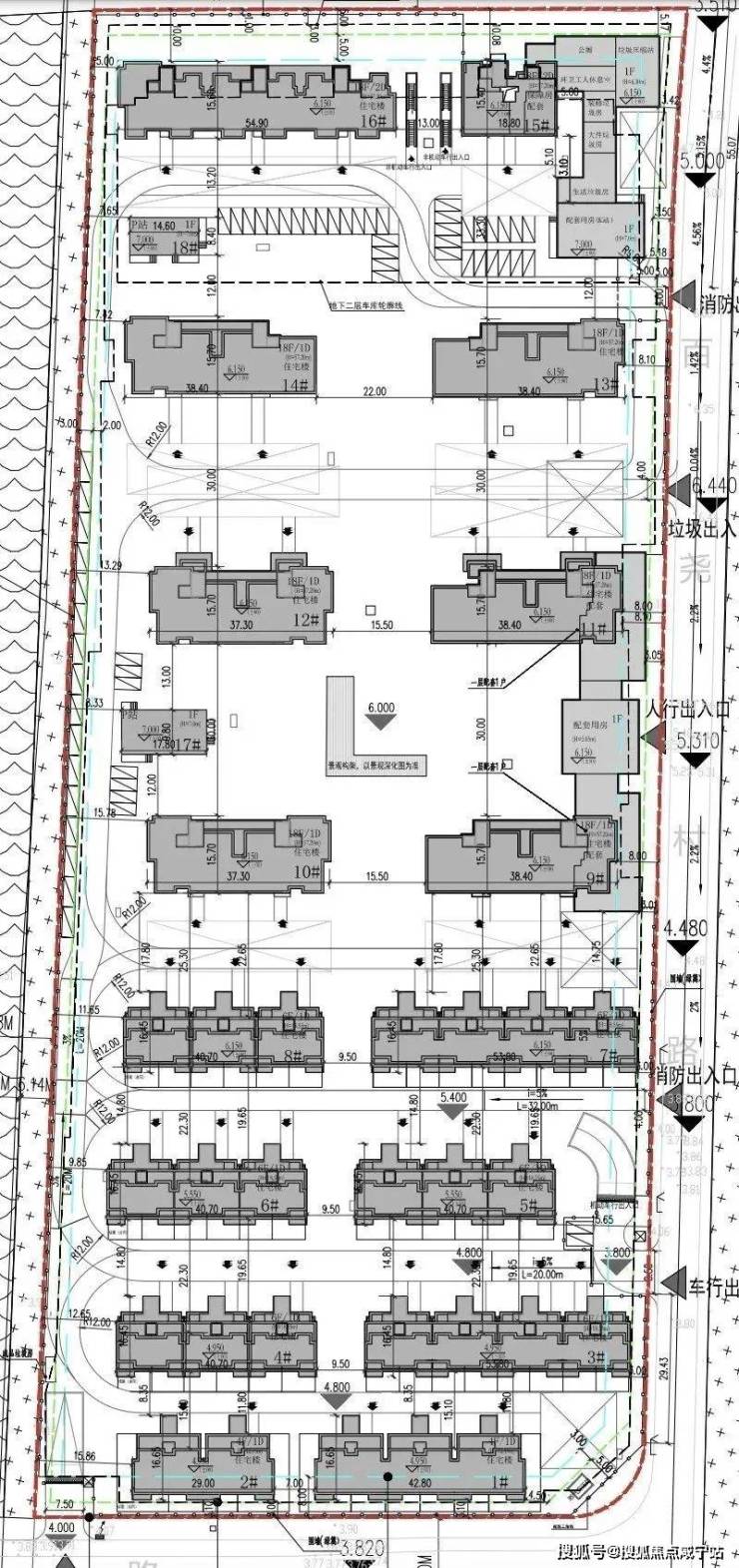
2023年7月11日,上海二批次土拍,华发以总价706310万元成交松江区洞泾镇SJS30006单元04-04、05-01、05-05号地块,地块出让面积130113.2㎡,容积率2.1,溢价率10%,楼板价25850元/㎡,房地联动价50000元/㎡。

项目四至范围,东至百尧村路、南至联营村路、西至04-03地块、北至城桂路。

根据土地转让合同显示,

松江洞泾华发海上都荟优缺点解析,卖点-松江洞泾华发海上都荟附近有墓地吗?

售楼处热线:400-885-1063

如有问题欢迎来电咨询,来电即可享受买房优惠!

加微信咨询:180 1720 3845(加微信,不要来电,备注楼盘名字)

直接电话拨打400-885-1063

04-04地块的规划住宅套数下限为942套05-01地块的规划住宅套数下限为1055套05-05地块的规划住宅套数下限为735套

总体量超过了2700套,是个超大体量盘。

根据项目设计方案显示,拟建56幢4-18F的住宅、保障房以及其他配套用房,松江洞泾华发海上都荟优缺点解析,卖点-松江洞泾华发海上都荟附近有墓地吗?售楼处热线:400-885-1063如有问题欢迎其产品为高层&洋房&叠加的组合。

松江洞泾华发海上都荟优缺点解析,卖点-松江洞泾华发海上都荟附近有墓地吗?售楼处热线:400-885-1063如有问题欢迎

华发海上都荟二期房价,松江洞泾华发海上都荟楼盘简介,华发海上都荟楼盘解析

售楼处热线:400-885-1063

如有问题欢迎来电咨询,来电即可享受买房优惠!

加微信咨询:180 1720 3845(加微信,不要来电,备注楼盘名字)

直接电话拨打400-885-1063

具体经济指标如下:

三块地的各自规划如下:

04-04地块的门位于东面与南面,根据设计方案显示,有8栋18层高高楼,6栋6层楼栋以及6栋4层高楼栋。18层高度约为57.2m,6层为18.55m,4层为12.55m。

05-01地块的门位于西面与东南角,根据设计方案显示,有9栋18层高高楼,6栋6层楼栋以及5栋4层高楼栋。18层高度约为57.2m,6层为18.55m,4层为12.55m。

华发海上都荟二期房价,松江洞泾华发海上都荟楼盘简介,华发海上都荟楼盘解析

售楼处热线:400-885-1063

如有问题欢迎来电咨询,来电即可享受买房优惠!

加微信咨询:180 1720 3845(加微信,不要来电,备注楼盘名字)

直接电话拨打400-885-1063

05-05地块的门位于西南角与东面,根据设计方案显示,有一栋保障房、7栋18层高高楼、松江洞泾华发海上都荟优缺点解析,卖点-松江洞泾华发海上都荟附近有墓地吗?售楼处热线:400-885-1063如有问题欢迎6栋6层楼栋以及2栋4层高楼栋。18层高度约为57.2m,6层为18.55m,4层为12.55m,保障房也为18层,高度为57.2m。

华发海上都荟二期房价,松江洞泾华发海上都荟楼盘简介,华发海上都荟楼盘解析

售楼处热线:400-885-1063

如有问题欢迎来电咨询,来电即可享受买房优惠!

加微信咨询:180 1720 3845(加微信,不要来电,备注楼盘名字)

直接电话拨打400-885-1063

进入“「 华发·海上都荟」”预约看房通道

案场销售会第一时间与您联系

9/12号线西延伸(在建中)双地铁房,上海西南新一代高品质封面之作,松江洞泾华发海上都荟优缺点解析,卖点-松江洞泾华发海上都荟附近有墓地吗?售楼处热线:400-885-1063如有问题欢迎华发·海上都荟二期,建面约101㎡高层三房,建面约90-136㎡叠加,均价49100元/㎡,总价401万起!开盘热销中!

户型图赏鉴

松江洞泾华发海上都荟优缺点解析,卖点-松江洞泾华发海上都荟附近有墓地吗?

售楼处热线:400-885-1063

如有问题欢迎来电咨询,来电即可享受买房优惠!

加微信咨询:180 1720 3845(加微信,不要来电,备注楼盘名字)

直接电话拨打400-885-1063

叠墅户型图赏鉴

华发海上都荟二期房价,松江洞泾华发海上都荟楼盘简介,华发海上都荟楼盘解析

售楼处热线:400-885-1063

如有问题欢迎来电咨询,来电即可享受买房优惠!

加微信咨询:180 1720 3845(加微信,不要来电,备注楼盘名字)

直接电话拨打400-885-1063

松江洞泾华发海上都荟优缺点解析,卖点-松江洞泾华发海上都荟附近有墓地吗?售楼处热线:400-885-1063如有问题欢迎

松江洞泾华发海上都荟优缺点解析,卖点-松江洞泾华发海上都荟附近有墓地吗?

售楼处热线:400-885-1063

如有问题欢迎来电咨询,来电即可享受买房优惠!

加微信咨询:180 1720 3845(加微信,不要来电,备注楼盘名字)

直接电话拨打400-885-1063

声明:本文由入驻焦点开放平台的作者撰写,除焦点官方账号外,观点仅代表作者本人,不代表焦点立场。