七宝天安1号2024年最新消息,七宝天安1号楼盘首页网站,天安1号售楼处电话
扫描到手机,新闻随时看
扫一扫,用手机看文章
更加方便分享给朋友

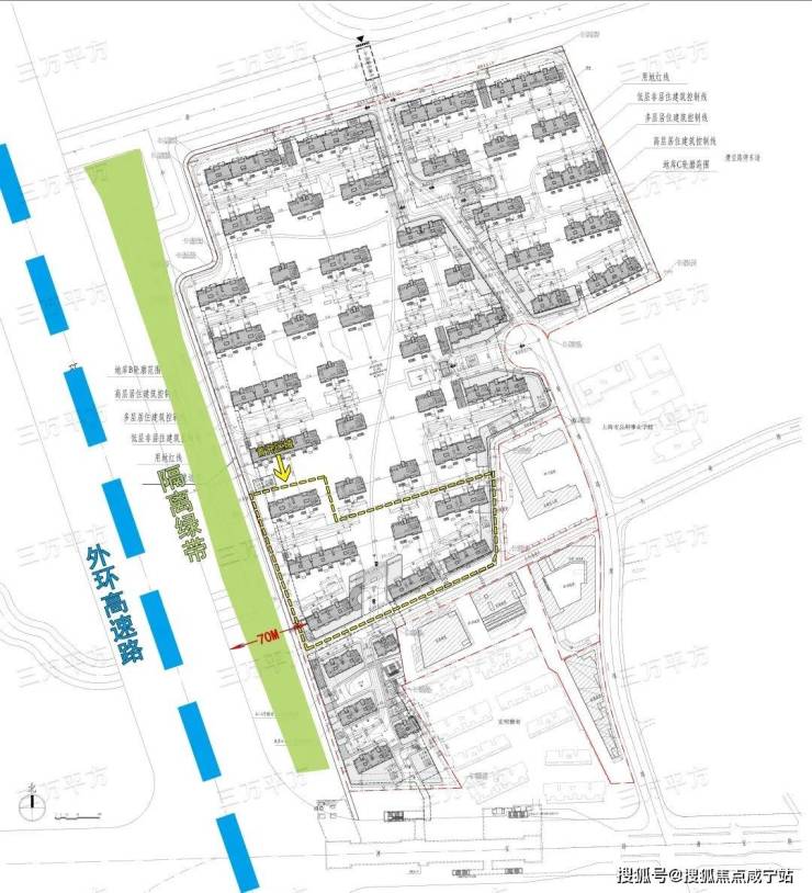
天安1号项目处于外环内静安新城板块,七宝镇。所处的闵行七宝不仅是历史悠久的古镇,也是当前上海发展较为成熟的板块之一。
项目周边城市界面现代化,七宝正好是上海西南方向的十字路口地带,东临徐汇漕河泾,西北是当前发展如火如荼的大虹桥,南面莘庄副城区,东北紧邻传统富人区古北和古北辐射区金虹桥。

七宝天安1号2024年最新消息,七宝天安1号楼盘首页网站,天安1号售楼处电话
既能连接新兴国家规划区,又能承接传统商务富人区,加之便捷的交通,成熟完善的城市配套,这里也成为整个外环沿线房价最高的区域之一。
(1) 教育王牌
作为闵行的教育重地,七宝的教育可以说是它的板块王牌,同时也是当地房价的压舱石。不少购房者都是冲着七宝的学区而来,而七宝的教育实力也是有目共睹。
项目附近有七宝实验小学、七宝实验中学、七宝德怀特高级中学等,都算是区域内不错的学校。已知项目一期在2021年对口的是七宝实验小学,属于闵行小学中的第一梯队。(二期具体对口以教育局官方发布为准)

(2) 产业发展及其他配套
项目周边国际化生活氛围浓郁,毗邻金汇、龙柏,古北三大国际住区板块,辐射漕河泾高新开发区和大虹桥商务区的高端商务和产业客群。
在闵行已经划入主城区、七莘一线成为发展主轴的背景下,发展前景更加乐观。
商业:万象城、爱琴海、井亭天地三大商业地标,韩国街、宝龙城、七宝万科广场、新九星城(在建)都在项目周边,步行可达或是轨交1站直达。
交通:天安1号紧邻地铁9号线星中路站,直线约300米,靠近外环高速,可通过延安高架、沪闵高架等主干道快速到达虹桥国际机场、徐家汇等地。
医疗:距离项目最近的是上海市闵行区中医医院(二甲),直线约2公里。
生态:项目左拥闵行体育公园、闵行文化公园二大城市公园及北面蒲汇塘天然水系,加起来有约1905亩的超大城市绿肺。



(3) 总价
我们结合近期的楼盘信息,将所有楼盘落位在地图上。由下图信息可以看出,上海内中环核心地带联动价非常高,均在11万/㎡之上;
外环外的价格在8万以下,6万至7万居多,但是位置都相对较偏,远离市中心;
天安1号位于外环至中环地段,预估新房联动价在9万/㎡左右,周边交通便利,配套设施也比较完善;对于那些既接受不了市中心核心圈10几万/㎡的高房价,又不想住在外环偏僻地段的人来说,性价比绝对很高。

天安一号项目西侧紧邻外环高速路,距离外环漕宝路立交桥也很近,周边噪音影响因素比较多,所以噪音会是许多朋友担心的问题。
然而,实际受到噪音影响其实没有大家认为的那么严重。原因有以下几点:
一,项目楼栋距外环高速路约70米,距离较远,噪音削弱了很多
二,外环高速路装有隔音板,噪音源得到控制
三,楼栋与外环高速路之间有绿化隔离带
另外窗户采用四玻两腔等隔音配置可大大减弱噪音影响。所以总的来说,只有离外环高速路最近的西侧楼栋受噪音影响较大,越往东侧,受噪音的影响越小,项目东边的楼栋可以说对实际的生活几乎没多大影响。
但对噪音十分敏感的人,还是建议慎选临近外环高速路户型。

(1) 楼距层高
项目采用8-13层的低楼层设计,却有30-40米的楼间距,这个在周边新房中还是比较少见的。优点就是极大地提升了居住的舒适度和私密性,提供更开阔的视野享受更完整的景观,居室的日照时间和通风效果也能够得到保证。
低楼层建筑结构相对稳定,抗震能力强,安全性更高。在自然灾害和意外事件发生时居民更容易迅速逃生。
(2) 人车分流
车辆进入小区后可立即进入地库,完全不与路面的行人冲突,实现人车分流,实际体验会很好,不过西南角B-1号楼与地库紧邻,会受到一定的干扰。
(3) 外立面
项目特邀美国SOM规划事务所、美国SWA景观设计、MDO室内设计等全球享誉盛名的顾问公司。建筑外立面为现代简约风格,使用铝板搭配大面积的玻璃材质,从效果图上来看确实审美在线。



以下户型分析均是在网传户型的基础上制作的,仅供参考,待官方户型发布我们会持续更新
(1) 整体户型分析
一,首开楼栋全部是南北通透户型,132㎡户型是一梯两户,150㎡户型和175㎡户型都是一梯一户户型,得房率较高。
二,132㎡户型和150㎡户型都有一个卧室临近电梯井,虽然设计了隔音材料,但是随着使用年限的增加,电梯产生的噪音和震动会越来越严重,对此敏感的人在户型选择上应该慎重考虑。
三,该项目的特点“L”型飘窗设计是为了外立面效果做的削减,实际使用空间是减少了,这个没有站在使用者的角度上去考虑,比较形式主义。
(2) 公共部分和入户分析
132㎡户型核心筒是一部电梯加一楼梯配置,同向入户,隐私性较好
底图源于海派新房
150㎡户型核心筒两部电梯加一楼梯配置,但是有一户的入户门在楼梯入口附近,私密性不如另外一户
底图源于海派新房
175㎡户型核心筒两部电梯加一楼梯配置,同向入户,两户都有独立电梯厅,隐私性及居住体验感较好
底图源于海派新房
(3) 户内分析
175㎡B1户型:3+1房双套房,主卧空间大且带五件套;餐客厅一体,西厨餐桌靠近一个操作台,洗手比较方便;侧边大阳台,飘窗数量多,视野上能够欣赏周边景观,且保证采光通风良好
注:户型图来自新房摇号助手
175㎡B2户型:南向飞机户户型,主卧同样宽敞带五件套,还有个独立衣帽间;次卫在入口增加了一道门,私密性较好,近似于三个套房。
注:户型图来自海派新房
150㎡C1户型:四室两厅两卫配置,三开间朝南飞机户型,主卫五件套配置在这个面积段非常不错;户型全明,全屋飘窗设计;该户型是项目里受噪音影响最大的,按理来说这个面积段不应该是这个位置,这点不太合理。
注:户型图来自新房摇号助手
150㎡C2户型:四室两厅两卫配置,三开间朝南飞机户型,主卫五件套配置很豪华;户型全明,全屋飘窗设计,实际使用会很舒适。主卫和客卫窗户均开向天井,通风采光性能不佳,有点遗憾。
注:户型图来自海派新房
150㎡C3户型:三室两厅两卫配置,三开间朝南飞机户型,主卧空间宽敞,有独立衣帽间,主卫五件套配置,在这个面积段非常不错,;户型全明,全屋飘窗设计,实际使用会很舒适。没有同其他户型一样设置四方,而是主打居住体验只设计了三房,但各房间的尺寸很舒适,居住体验感较好。
注:户型图来自海派新房
150㎡C4户型:三室两厅两卫配置,三开间朝南飞机户型,主卫五件套配置豪华;创造性的增加了一个西餐厅,但对实际居住体验提升不大,而且后期想改造成卧室难度较大,算是败笔;客厅旁的次卧入口空间太窄,家具进出较为不便;主卫和客卫开窗都朝向天井,通风采光性能较弱。
注:户型图来自新房摇号助手
131-135㎡D1户型:户型全明;主卧宽大带独卫五件套;次卧正对着玄关,在传统住宅观念上不太合理;
注:户型图来自新房摇号助手
131-135㎡D2户型:中户,飘窗数量多室内整体采光通风条件好;主卧宽大带独卫五件套,但是是主卫开向天井,不利于卫生间空气流通;
声明:本文由入驻焦点开放平台的作者撰写,除焦点官方账号外,观点仅代表作者本人,不代表焦点立场。
