上海闵行象屿天宸雅颂-(象屿天宸雅颂)首页网站-2025象屿天宸雅颂最新房价+户型图+小区环境+配套
扫描到手机,新闻随时看
扫一扫,用手机看文章
更加方便分享给朋友
项目信息
10月25日,上海第六批涉住地块供地中,闵行区MHP0-1316单元01-03、01-02、03-02地块,竞得房企为象屿。
项目位于闵行浦江镇,东至浦星公路,南至姚家浜,西至大寨河,北至昌林路,距离8号线沈杜公路站步行仅约350-600米左右!

象屿·天宸雅颂同频上海至臻奢宅,构建“六维雅境”产品体系,打造建面约89-139㎡精装平层、低密叠墅和宋风联排,为当代理想生活高定精奢主义,更新城市划界之作。
铝板弧形立面
天空之镜:精致铝板装饰+通透大窗的美学立面设计,打造弧面窄框艺术之镜
流线韵律:弧线同频超流体美学,让建筑流淌出黄浦江的奔腾韵律

浮岛美学园林
一座绿意浮岛围合出一方栖心之处,层层递进的秩序之美,传递生活与归心的仪式感。
林岛漫步:围绕中央景观,以现代艺术手法,打造森林岛屿景观
循水归岸:呼应外部天然水系,内部设置特色水景,串联不同节点
闲庭雅致:以树木、水系与局部连廊体系融合,共同组建起社区与居所之间的联通介质

莫奈花园会所
象屿天宸雅颂集萃品味、艺术、圈层为一体的约2500m莫奈花园会所,随心际遇相逢等高精神。
游心·泳池/律动·健身房/正念·瑜伽室/森活·水吧区 /时宴·私宴厅/思坐·休息区

一栋一域聚场
约3000m架空层作为园区中的第二客厅,在室内外交叠过渡的空间中,以自然之景点缀,以生活之悦充盈,营造全龄共享的丰盛聚场。全景双舱奢宅

比建筑更昂贵的,是窗外无垠的风光,象屿地产户型设计遵循“以人为本的理念,让物理空间更懂生活,让每一方寸皆成为承载家的温情。
观景双舱:室内两大270°弧面转角,作为为观景双舱,营造多感官沉浸式环景视野
空间平权:L/D/K分域设计,让家人亲密而有界;独立三卧,承载完整起居功能;相互渗透的U型餐厨空间,给居家/聚会带来新鲜体会
3S墙收纳:部分户型设计3S墙,让收纳隐于无形,设置内嵌式冰箱、隐藏式衣橱等

全臻装宋风墅
溯源宋式文化之韵,以现代极简手法呈现中式画意,将宋代风雅生活平移至今,共同赋予宋风联排的人文意蕴。
宋式美学:取古韵予现形,转译东方三段式建筑形态,打造“宋式极简风格
檐顶画意:溯源宋式文化之韵,以现代手法呈现中式画意
高质肌理:雅金质感与建筑整体的金属框线连接,共同赋予建筑人文意蕴
引光入界:大面玻璃窗设计,激活室内尺度,体验通透光感
据了解,项目将推出建面约89㎡、107㎡、128㎡、140m高层3-4房,约145-155m叠墅,约190-230m联排,共计约1140套!
规划方案如下:


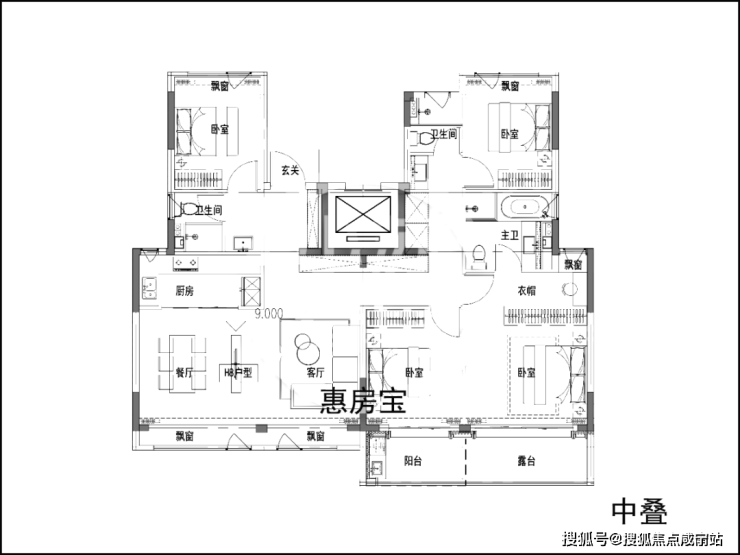
地块实景如下:叠墅户型图如下:(过程稿仅供参考, 以开发商官宣为准)



高层户型图如下:(过程稿,以开发商发布为准)
「约89㎡ 3房2厅1卫」象屿天宸雅颂「约107㎡ 3房2厅2卫」


「约107㎡ 3房2厅2卫」

「约128㎡ 3房2厅2卫」

「约140㎡ 4房2厅2卫」

板块信息江河之上 一脉前滩 新浦江中心
“一江一河”战略:共赴上海高光时刻
浦江恒流,上海恒新。上海迈向卓越全球城市的进程,始终沿着黄浦江展开。黄浦江作为上海重要功能轴,至2035年将黄浦江沿岸打造成为彰显上海城市核心竞争力的黄金水岸和具有国际影响力的世界级城市会客厅。国际前滩:世界级中央公共活动区样板

如果说上海是中国面向世界的一个重要窗口,那么前滩将是未来上海面向世界的一个窗口。前滩前瞻性地整合了商业、居住、体育、文化、教育、休闲等多方优质资源,正在变得更宜居、更便利、更国际化,将会打造成“世界级中央公共活动区样板区”。
前滩太古里、香格里拉酒店、前滩L+PLAZA陆家嘴广场等已经成为上海的新地标,区域能级叠加升级,价值不言而喻,未来将带动直线距离约9公里的新浦江中心全速发展。

新浦江中心:上海中心城辐射区 前滩南门户
作为上海中心城辐射区,闵行六大地区中心之一,前滩南门户,浦东四大城镇圈之一,浦江地区中心占据特有的平台区位优势。新浦江中心规划

新浦江中心沿袭闵东文创中心定位,以蓝绿环绕为基底,历史人文为内涵,产业更新为驱动,新浦江中心将衔接闵行与浦东新区,打造黄浦江沿岸崭新的生态交织、文化自信、产城融合能量聚集地。新浦江新中心将围绕沈杜公路TOD打造创智总部湾、大型商业、艺术街区、文化展览、滨水码头、高端住宅等,以世界前沿Live-Work-PlayShop模式,为上海打造高度复合等职住平衡10分钟生活圈。

8号线TOD枢纽,贯通城市脉搏
轨交通达 8号线: 沈杜公路站6站直达前滩;浦江线,通达南部区域公共枢纽 BRT、浦江13路、浦江3路、浦江16路、闵行12路、闵行38路闵行42路、江五线、南申专线、闵行10路、浦江9路、闵行10路、浦江11路、浦江8路等

自驾出行 浦星公路、沈杜公路、南北高架、外环高速、中环路、S32申嘉湖高速城市商业,演经高阶烟火

家门口 沈杜公路大型TOD商业(规划中)
近场域 浦江城市生活广场、前滩太古里、印象汇、上海浦江欢乐颂
辐射圈 世博源、人民广场自然森境,沉浸城市绿洲

滨江漫步 约5.2km滨江岸线之旅
公园效应 浦江郊野公园占地约15.29公里,上海第一个成为国家4A级旅游景区的郊野公园
亲水体验 大寨河与姚家浜L型水系,晓烟湖 .(规划中)全龄教育,孕育书香气息

幼儿园·协和海富幼儿园·荷花池世博幼儿园
中小学
象屿天宸雅颂民办·向明中学·协和双语尚音学校
公立·上海师大附属第三小学·浦江第一中学·上海师大附属中学 ·浦江第二小学

2024年10月,闵行区浦锦街道MHP0-1304单元17-06地块(协和教育园区)由上海上报协和实业发展有限公司取得土地使用权。
该地块东至规划浦申南路,南至昌林路,西至用地红线,北至丰收河,规划用途为教育科研设计用地。经了解,学校办学规模含9班幼儿园、30班小学、20班初中。


该项目主要建设内容包括新建1幢中小学教学楼、1幢幼儿园、1幢食堂体育馆综合楼、1幢宿舍楼、地下1层车库及相应附属工程。
项目总建筑面积约45430平方米(以审定的规划设计方案为准),其中地上建筑面积约40022平方米,地下建筑面积约5408平方米。

医疗环伺,护航家人健康
象屿天宸雅颂三甲医院·仁济医院 (南院区)·复旦大学附属眼耳鼻喉科医院 (.江院区)
社区医院 闵行区浦江社区卫生服务中心

售楼处电话:4008800703【售楼中心热线】营销中心热线400-8800-703售楼处地址400-8800-703,楼盘项目全面介绍,本电话为开发商提供线上预约售楼电话,楼盘项目全面介绍(包含楼盘简介,均价,房价,现房,期房,别墅,叠墅,大平层,价格,楼盘地址,户型图,交通规划,备案价,备案名,项目配套,样板间,开盘时间,认筹时间,楼盘详情,售楼处电话,最新消息,最新详情,周边配套,一房一价,最新进展等详情咨询)楼盘详情丨价格丨更多优惠丨机不可失丨欢迎致电丨诚邀品鉴!售楼处位置丨特价房丨工抵房丨剩余房源丨户型图丨最新消息丨免责声明:将文章内容综合来源于网络、只作分享,版权归原作者所有!!如有侵权,请联系我们,我们第一时间处理如有问题欢迎来电咨询,专业一对一热情服务,让您用专业眼光去买房。如果您想了解更多楼盘详情,欢迎提前预约拨打万科中兴傲舍售楼处电话☎400-8800-703✔✔✔
1契税 先说说契税,这可是买房的头号“敌人”。
适用对象:买方(对,就是你)
税率:根据房屋面积和购房情况不同,税率也不一样:首套房,面积在90平方米以下:1%
首套房,面积超过90平方米:1.5%二套房:3%
计算公式:契税 = 房屋成交价 × 契税税率举个栗子:假如你买了一套100万元的房子,而且是首套房,面积在90平方米以下,那么契税是:
契税=100万元×1%
契税
网签那些事儿
在中国,买房要网签,就是去房管局备案。网签保证交易透明和安全,但也有人想着能不能在这儿动点小心思,比如低报成交价。这样能省点税钱,不过啊,万一被税务部门逮住了,那可是要补税罚款的,信用记录还会受影响。所以,咱们还是老老实实交税吧,别因小失大。
网签那些事儿
6.2增值税及附加税 接下来是增值税,这部分是卖家要交的。
适用对象:卖方
税率:房子买了不到2年:5.6%(含附加税);买了2年以上:免征。
计算公式:买了不到2年:增值税 = 房屋成交价 ÷ 1.05 × 5%
附加税 = 增值税 × 12%举个栗子:假如你卖的是一套100万元的房子,而且买了不到2年,那么增值税和附加税是:增值税=100万元÷1.05×5附加税=4.76万元×12总共得交:5.33万元
增值税及附加税
6.3个人所得税 这个税也是卖家要交的。
适用对象:卖方
税率:20%
计算公式:个人所得税 = (房屋成交价 - 房屋原值 - 相关费用) × 20%
举个栗子:假如你卖的房子成交价是100万元,原值是60万元,相关费用是5万元,那么个人所得税是:
个人所得税=(100万元−60万元−5万元)×20
其他费用
6.4其他费用 土地增值税
适用对象:卖方税率根据房屋购置年份和地段不同而不同。
印花税适用对象:买卖双方各0.05%计算公式:印花税 = 房屋成交价 × 0.05%
中介费一般按房屋成交价的2%~3%计算,由买卖双方协商承担。偷偷告诉你现在市场灵活中介费用也是可谈的哦。
买房的时候,各种税费加起来可不是小数目。契税、增值税、个人所得税这些都要好好考虑。记得提前了解政策,做好预算,别在交易的时候手忙脚乱。
希望这篇指南能帮你搞清楚买房时的税费问题,顺顺利利买到心仪的房子!记住,合法节税,诚实纳税,才能走得更远哦!
声明:本文由入驻焦点开放平台的作者撰写,除焦点官方账号外,观点仅代表作者本人,不代表焦点立场。
