时代之城首页官方网站-时代之城售楼处电话-时代之城•时代之城楼盘详情-交房时间-地址-最新房价户型图-小区环境-楼盘详情-交房时间-周边配套-售楼处电话
扫描到手机,新闻随时看
扫一扫,用手机看文章
更加方便分享给朋友
在上海楼市,有一个有趣的现象:当市场观望情绪浓厚时,总有少数项目能够逆势突围。华润华发时代之城就是这样的存在——自亮相以来,它不仅吸引了嘉定本地客群,更让大量市区购房者将目光投向南翔。

这背后,隐藏着怎样的「价值密码」?
重新定义「性价比」:价格不是唯一标尺
在500万级市场,购房者往往陷入「价格敏感」的误区。时代之城的出现,重新定义了性价比的衡量标准:
传统性价比= 低总价
时代之城性价比=(地铁价值 + 商业价值 + 品牌价值 + 产品价值)/ 总价
让我们来算一笔账:
地铁价值量化:
距地铁站600米 vs 1.5公里,通勤时间差约15分钟/天
按上海平均时薪60元计算,年时间价值:15分钟×2次×22天×12月×60元/小时÷60 = 7,920元
30年居住周期总价值:23.76万元
商业价值量化:
步行可达印象城 vs 需要驾车,每周节省2小时
时间价值:2小时×4周×12月×30年×60元/小时 = 172,800元
停车费节省:10元/次×2次/周×4周×12月×30年 = 28,800元
总计:约20万元

超扁平形制,搭配大面幅玻璃,可更大程度的为业主带来宽绰视野,体验摩登生活。同时建筑像是妙手剪裁的艺术品般行云流水,又似一幅细细勾勒的工笔画般精美细腻,光泽璀璨,质感高级。

三段式设计,强调中轴对称,提倡统一性和稳定感的的设计手法。巴黎卢浮宫东立面作为其中的代表作,恒久传世。叠墅三段式设计,形成别致的立面错动。未来业主从外部看,一眼就能辨别出自己的家在何处。

时代之城三玻两腔LOW一E玻璃,有效隔绝噪音,可降低20-30分贝的噪音干扰,即使窗外车水马龙,关上窗又是静谧的私人空间。

以大尺度窗墙比设计,呈现出空间视野与采光面积的最大化,赋予生活更为丰盈的自然光境,让光线、清风、视线,在这一方世界中自如流转。

时代之城,创新设计270°无柱转角飘窗,创造无边界视觉效果,实现从“由窗观景”变为“万物入境”的沉浸式体验。

品牌价值量化:
双央企开发 vs 民营房企,交付风险降低(按房价5%计算风险溢价):23万元
品质保障带来的维护成本降低(预估):10万元
产品价值量化:
得房率78% vs 市场平均75%,89㎡多出2.67㎡使用面积
按5.5万元/㎡计算:14.7万元
综合隐性价值:23.76 + 20 + 23 + 10 + 14.7 = 91.46万元
这意味着,即使时代之城比同类产品贵10%,其实际价值仍高出81.46万元。
板块价值的「认知革命」:南翔不是终点,而是起点
购房者对南翔的认知,正在发生根本性转变:
从「睡城」到「产城融合」
传统认知中,南翔是嘉定新城的一个居住板块。但现实是:
2023年,南翔新增注册企业1,200家,其中高新企业占比35%
南翔总部园区已入驻企业包括:蔚来汽车研发中心、联影医疗等
规划中的「南翔智谷」将创造就业岗位约3万个
这意味着,未来在南翔,可以实现「职住平衡」。
从「配套洼地」到「配套高地」
10年前,南翔的商业是短板。如今:
商业体量:从5万㎡增至50万㎡
品牌能级:从社区商业升级为城市级商业
消费场景:从购物消费扩展至文化体验
时代之城正好位于这场变革的核心区。
从「价格洼地」到「价值高地」
2018年,南翔新房均价:3.8万元/㎡
2023年,南翔新房均价:6.2万元/㎡
5年涨幅:63%
同期上海新房平均涨幅:42%
这背后的驱动力,正是配套的全面升级。
产品力的「降维打击」:细节处的绝对优势
户型设计的「人体工学」
89㎡户型的空间魔法:
我们邀请专业设计师进行分析,发现三个「隐藏设计」:
动静分区:公共区域与私密区域完全分离
洄游动线:从玄关到厨房形成环形路径,减少重复路线
收纳系统:全屋预留收纳空间达12立方米,相当于400个登机箱容量
99㎡户型的成长性:
设计师特别指出:
儿童房预留了「成长轨迹」:从婴儿床→儿童床→书桌→衣柜,每个阶段都有合适布局
老人房靠近卫生间,且预留了紧急呼叫按钮位置
客厅开间达3.9米,可容纳L型沙发+茶几+电视柜+通行空间
128㎡户型的改善逻辑:
这个户型最打动人的是「场景化设计」:
家庭聚会模式:LDK一体化空间可容纳10-15人聚会
居家办公模式:北向书房完全独立,与生活区互不干扰
亲子互动模式:客厅与阳台打通,形成20㎡的游戏区
私密休憩模式:主卧套房自成体系,与其他房间完全隔离
精装标准的「底线思维」
时代之城的精装,不是追求奢华,而是坚守底线:实景图,仅供参考

实景图,仅供参考
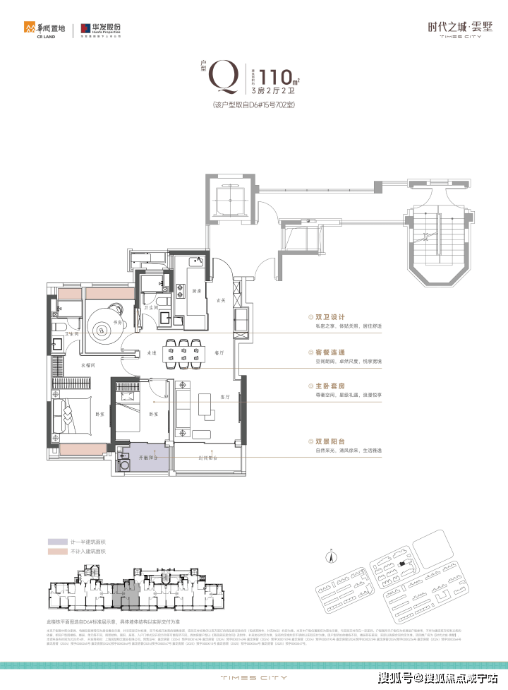
南向双阳台,在原先一个阳台的基础上再加一个开敞阳台(仅计算一半阳台面积为建筑面积),实现客厅与次卧联通,不仅让得房率瞬间提升一个level,视野更敞亮!整体格局方正,南北通透,每个卧室大小宽裕,实现小家的超满足获得感!

户型图,仅供参考
收纳作为中小户型的一个痛点,在时代之城得到了完美解决,它几乎把小户型所有的收纳都搬进家里——
厨房超大柜体的收纳空间,包括调味拉篮、岛台双面收纳,将厨房空间直接扩容约80%,贴心的灶前龙头设计,开火时直接上方接水,非常灵活;
玄关S墙设计,同样包含MAX巨量收纳;创新性采用了钢琴键收纳,600万级的刚需项目中能享受大几千万的豪宅配置;
主卫的美妆冰箱、镜柜收纳、常用物品置物台,可以隐藏90%的卫浴物品......
同时,这个户型主力总价600万级起,很适合刚需家庭上车!
建面约120㎡的大三房做了一个u型厨房,餐桌可以容纳八人餐桌,双阳台配置+加上所有飘窗都是附赠面积,整体的实用面积可想而知。
S墙的设计,使得玄关和冰箱得到兼容,凹进去的部分放置冰箱,凸出的墙面做成了钢琴键收纳。

户型图,仅供参考
建面约135㎡的四房是项目的明星户型,几乎是一抢而空的状态,采光、视野非常敞亮,南北通透,双阳台还能看到窗外的中庭景观。
它的收纳亮点:钢琴键烤漆板,玄关处有一个八百库收纳,厨房扩容80%......800多万能买到这样的一个房子,哪怕是在市区买二手房也买不到这么多的赠送面积!

实景图,仅供参考

户型图,仅供参考
总结一下,高层户型可以说在同价位段中,很难再找到比它更出彩的户型了。南向双阳台+巨量收纳体系+超高水准的精装标准,几乎榨干每一寸空间,实用性与美观性都拉到了顶!
2、附赠面积超多的叠墅产品,包含地下室+阁楼
1000万级,挤一挤能在市区买个小三房,但是在时代之城,能享受到完全不一样的生活场景,有天有地有庭院,还有地下室的美好生活!
加上南翔比较宜居,离市区又很近,非常便利。学长很看好这里的叠墅产品:居住起来真的舒服!
1
建面约174㎡的下叠

户型图,仅供参考
下叠二期做了改动,一层拥有一个充足的采光面&超级全明的空间,即使是七八月份的上海也丝毫不会闷热潮湿。附赠宽绰地下室+公共绿地(实际交付为毛坯)闲暇时可以在院子里养鱼,种花等等。

实景图,仅供参考
地下室的两个夹层(作为生活场景示意),不仅赠送面积多,还是三面采光!挑高开阔,丝毫没有压抑感。

实景图,仅供参考
一楼,客厅到庭院是全景的落地门窗,夏日凉风习习,边套下叠还拥有全明餐厅。
实景图,仅供参考
主卧拥有270度环幕飘窗,视野和采光优越,配备了高奢卫生间,空间感、尊崇感拉到顶格。

实景图,仅供参考
下叠的总价段在1300-1600万左右,完全能容纳三代同堂的温馨的墅居生活,置业的终极目标,一步到位!
2
建面约178㎡的中平

户型图,仅供参考
中平户型以四开间朝南的IMAX级采光面,打造出堪比市区豪宅的尺度感。4房4飘窗2阳台的设计,配合双套房布局,一共有三个套房,让每个家庭成员都享有独立私密空间。
客厅+餐厅联通+南向双阳台,尺度感非常强。同时还配备了独立的家政间,约4.4个m³,约等于100个标准登机箱的空间!

实景图,仅供参考
玄关也是非常具有仪式感,包括厨房拥有超长的操作台面,同样也是做了满级收纳。
主卧套房,不仅有豪华卫浴,女王卫生间+双台盆,大尺度衣帽间,甚至书房、工作室空间就在边上,业主能体验无上的尊崇与私密。
实景图,仅供参考
中平的价格在1100-1300万左右,大平层的居住体验,媲美奢华酒店的感觉,妥妥秒杀市区拥挤又高密度的小三房了。
3
建面约170㎡的上叠

户型图,仅供参考
健康底线:
全屋采用E0级板材,甲醛释放量≤0.05mg/L
墙面涂料为儿童医院同款抗菌涂料
窗户采用三层中空玻璃,隔绝PM2.5达90%
安全底线:
电路采用漏电保护+过载保护双系统
燃气管道安装自动切断阀
阳台护栏高度1.2米,间距≤11cm(儿童安全标准)
耐用底线:
地板耐磨转数≥6000转(国标≥4000转)
五金件开启次数≥20万次(国标≥10万次)
防水工程质保5年(行业标准2年)
社区规划的「未来思维」
景观设计:不止于绿化
时代之城的景观有四个层次:
中心花园:约5,000㎡,包含阳光草坪、亲子乐园、健身区
宅间花园:每栋楼前都有专属花园
垂直绿化:建筑立面采用爬藤植物
屋顶花园:部分楼栋设置公共屋顶空间
公共空间:全龄友好
儿童区:分0-3岁、3-6岁、6-12岁三个年龄段
健身区:包含有氧区、力量区、拉伸区
社交区:共享厨房、书吧、茶室
宠物区:专属遛狗区和宠物清洁站
智能社区:科技赋能生活
人脸识别门禁
智能快递柜
电动汽车充电桩全覆盖
社区APP集成报修、缴费、访客管理
客户真实声音:他们为什么选择时代之城?
我们访谈了30组已认购客户,听到最多的三个词是:安心、便利、成长。
张先生,32岁,互联网从业者:
「我在漕河泾上班,之前看过松江和宝山的房子。时代之城打动我的是通勤效率——11号线7站到徐家汇,换乘9号线4站到漕河泾,门到门刚好1小时。这个通勤时间在500万预算里几乎没有对手。」
李女士,35岁,二胎妈妈:
「我们一家四口,需要三房。时代之城99㎡的户型,双卫设计解决了早上抢厕所的问题。而且小区对面就是幼儿园,旁边有山姆和盒马,周末不用为买菜发愁。」
王先生,40岁,改善客户:
「我原来住南翔老城,房子老了想换新。时代之城吸引我的是品牌——华润和华发都是央企,不用担心烂尾。而且位置在老城和新城之间,既熟悉又新鲜。」
竞品的「软肋」与时代之城的「铠甲」
竞品A:距离地铁1.2公里
通勤体验差异:
步行时间:15分钟 vs 8分钟
极端天气:步行15分钟可能全身湿透
夜间安全:女性夜间独行有安全隐患
竞品B:民营开发商
品牌差异:
资金实力:央企融资成本4% vs 民企8-10%
交付保障:100%按期交付 vs 存在延期风险
品质管控:央企有严格的内控体系
竞品C:无商业配套
生活便利性差异:
日常购物:需要驾车3公里 vs 步行5分钟
周末消费:需要跨区消费 vs 下楼即达
紧急采购:无法快速响应 vs 随时可得
投资视角:时代之城的资产属性
租赁市场分析:
南翔两房租金:约5,500-6,000元/月
时代之城三房预估租金:7,000-7,500元/月
租金回报率:约1.8-2.0%(上海平均水平1.5-1.8%)
流动性分析:
影响二手房流动性的关键因素:
地铁距离:600米是黄金距离
楼层位置:中间楼层最好卖
装修状况:精装房比毛坯房流动性高30%
社区环境:品牌开发商项目溢价5-10%
时代之城在四个维度都具备优势。
增值潜力分析:
驱动因素:
嘉闵线2025年通车,双轨交溢价约15%
印象城商圈成熟,商业配套溢价约10%
南翔产业升级,人口结构优化溢价约8%
品牌开发商,品牌溢价约5%
综合预期:3-5年增值潜力约30-40%
购买决策的「关键时刻」
时机选择:
当前市场环境下:
利率处于历史低位:LPR 3.95%,是近10年最低
政策支持期:首套首付比例降至20%
供应窗口期:同期竞品较少
房源选择:
黄金组合:
楼栋:中央景观楼栋
楼层:8-15层
户型:99㎡三房两卫
朝向:南偏东15度(最佳采光角度)
谈判策略:
可争取的优惠:
付款方式:争取更长的付款周期
附加服务:争取赠送物业费或车位使用权
装修升级:争取部分装修材料升级
风险对冲:如果市场下行?
即使面对市场波动,时代之城也有较强的抗风险能力:
防御性要素:
地铁房:在任何市场环境下都是硬通货
品牌开发商:央企项目更抗跌
成熟配套:自住需求支撑力强
安全边际计算:
当前总价:470万(89㎡)
历史底部价格:按2018年南翔均价3.8万计算,价值338万
安全边际:(470-338)/470 = 28%
这意味着,即使房价下跌30%,时代之城仍有自住价值支撑。
最后的思考:时代之城代表了什么?
在这个充满不确定性的时代,购房者比任何时候都渴望确定性。时代之城提供的正是这种确定性:
生活的确定性:
你知道地铁就在那里,永远不会搬走;
你知道印象城就在那里,周末总有去处;
你知道华润华发就在那里,房子一定会交付。
成长的确定性:
随着孩子长大,89㎡可以升级为99㎡;
随着收入增加,这里可以成为置换的起点;
随着社区成熟,这里会成为真正的家。
价值的确定性:
地铁上盖的资产,永远是稀缺的;
双央企的品质,永远是可靠的;
南翔的发展,是看得见的。
在500万这个预算段,你当然可以找到更便宜的房子,也可以找到更大的房子。但要同时找到靠谱的品牌、便利的交通、成熟的配套、实用的户型——时代之城可能是当前最好的选择之一。
这不是一个完美的项目,但它在一个不完美的市场中,提供了一种接近完美的平衡。对于大多数普通家庭来说,这种平衡,或许就是最好的选择。
站在时代之城的样板间,看着窗外的地铁穿梭,远处的印象城灯火通明,你会明白:有些选择,不需要太多纠结。当所有核心需求都被满足,当所有关键问题都有答案,剩下的,只是跟随内心的决定。
时代之城,就是这样一个让人安心跟随的选择。
声明:本文由入驻焦点开放平台的作者撰写,除焦点官方账号外,观点仅代表作者本人,不代表焦点立场。
