安高申陇院(安高申陇院)欢迎您-安高申陇院首页网站-安高申陇院楼盘详情 /价格/户型
扫描到手机,新闻随时看
扫一扫,用手机看文章
更加方便分享给朋友
上海闵行安高申陇院售楼处电话:400-8800-703【预约看房热线】安高申陇院售楼处电话:4008800703【售楼处电话/地址】安高申陇院售楼处电话:400-880-0703【开发商认证】
户型布局:107㎡三房,128㎡四房,170㎡大平层,均价约76972元/㎡,装修标准:主卧悬浮吊顶+皮革背景墙,次卧人字拼地板;厨卫配备博世四件套、汉斯格雅卫浴及智能马桶.
闵行梅陇新中心精品楼盘
15号线景西路站约500米
【安高申陇院】直接认购!
少量建面约107-170 ㎡3-4房
均价76822元/m²,总价650万起
售楼处线上火热预约中!
上海闵行安高申陇院
售楼处电话:400-8800-703(预约看房热线)
上海安高申陇院官方售楼处电话:拨打4008800703即可咨询楼盘详情_房价、户型、周边配套及交通、地址
An Gao Shen Long Court, Minhang, Shanghai
Sales Office Hotline: 400-8800-703 (Property Viewing Appointment)
Official Sales Office Hotline of An Gao Shen Long Court, Shanghai: Dial 4008800703 for inquiries on property details, pricing, unit types, surrounding amenities, transportation, and address.

上海闵行安高申陇院售楼处电话:400-8800-703【预约看房热线】安高申陇院售楼处电话:4008800703【售楼处电话/地址】安高申陇院售楼处电话:400-880-0703【开发商认证】
户型与设计亮点
户型布局:
107㎡三房:采用飞机式布局,南向三开间约9.8米,U型厨房设计,得房率74-75%15.
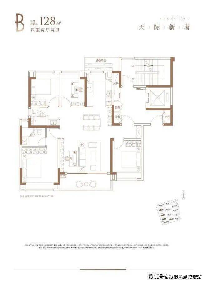
128㎡四房:南北通透LDKB一体化客餐厅,满足家庭多样化需求
170㎡大平层:南向四开间约15.4米,主卧套房+双卫设计,边户享270°飘窗及转角阳台
装修标准:
主卧悬浮吊顶+皮革背景墙,次卧人字拼地板;厨卫配备博世四件套、汉斯格雅卫浴及智能马桶.
全屋采用华为智能系统,提升居住科技感.
安高申陇院售楼处营销中心:400-8800-703安高申陇院售楼处电话/地址☎:400-8800-703(开发商热线)
【安高申陇院】
安高申陇院售楼处营销中心:400-8800-703安高申陇院售楼处电话/地址☎:400-8800-703(开发商热线)
配套与交通
交通:距地铁15号线景西路站约700米,可快速抵达徐家汇等商圈.
教育:周边有闵行区实验小学、莘松中学等优质教育资源.
社区设施:规划1700㎡下沉式会所,含泳池、健身房及会客区.
价格与销售动态
价格:2024年12月开盘均价约76972元/㎡,总价区间810-1287万元/套;三期部分房源总价780万元起.
销售情况:2024年12月加推204套房源,已售约80%,当前剩余房源有限.
营销活动:2025年4月启动营销服务招标,计划持续至2025年底,预计推出新促销方案.
上海闵行安高申陇院售楼处电话:400-8800-703【预约看房热线】安高申陇院售楼处电话:4008800703【售楼处电话/地址】安高申陇院售楼处电话:400-880-0703【开发商认证】
开发商实力
高速地产连续两年入围“中国房企综合实力百强”,安联公司总资产近200亿元,项目交付品质稳定
闵行·梅陇全新盘
#最新消息#
闵行·梅陇全新品
安高·申陇院」三期正在认购
将推约107-170㎡3-4房
上期均价76972元/㎡
安高申陇院项目概况
基本信息
位置:位于上海闵行区梅陇镇核心区域,东至梅富路,南至梅南路,西至集心路,北至01-26-02地块.
开发商:由高速地产与安联公司联合开发,属国企背景品牌,此前已成功打造安高申宸院等项目.
产品定位:定位为“院系升级之作”,主打改善型住宅,三期产品涵盖建面约107-170㎡的3-4房户型.
安高申陇院售楼处营销中心:400-8800-703安高申陇院售楼处电话/地址☎:400-8800-703(开发商热线)
徐闵心中·见未来,梅陇C位红盘安高·申陇院三批次已过会!建面约107-128㎡房源即将加推,预计4月下旬启动认购!
安高申陇院售楼处营销中心:400-8800-703安高申陇院售楼处电话/地址☎:400-8800-703(开发商热线)从项目发布到首开热销,安高·申陇院始终贯彻着唯美生活的非凡追求.
上海闵行安高申陇院售楼处电话:400-8800-703【预约看房热线】安高申陇院售楼处电话:4008800703【售楼处电话/地址】安高申陇院售楼处电话:400-880-0703【开发商认证】项目的热销之势得益于优越的地理位置,凭借接壤徐汇与闵行双区的天赋优势,紧邻徐家汇繁华商圈、前滩CBD及漕河泾开发区,轻松满足日常娱乐需求.项目周边丰富便捷的交通体系,也使各类醇熟配套皆触手可得.
安高申陇院售楼处营销中心:400-8800-703安高申陇院售楼处电话/地址☎:400-8800-703(开发商热线)聚焦居住空间的营造,项目从全维107户型到跃阶128户型,再到心院170户型,无论是三口之家还是三代同堂,都能在这里寻得理想的归属.
安高申陇院售楼处营销中心:400-8800-703安高申陇院售楼处电话/地址☎:400-8800-703(开发商热线)
安高·申陇院已过会
过会均价74239元㎡
新批次107/128户型火热上市
项目实景示范区开放及认购活动
璀璨将启
高速地产&安联公司国匠联袂落座的「安高·申陇院」,真真切切做到了不负珍贵土地,承袭院系高价值产品基因,与当代海派文化融合,为上海定制恒久共鸣的人居范本.
安高申陇院将建设包含13栋13至16层的高层住宅、1栋16层的保障性住房,预计可售住宅数量将达到约888套,联动价7.6万/㎡!总价约700w起.
安高申陇院售楼处营销中心:400-8800-703安高申陇院售楼处电话/地址☎:400-8800-703(开发商热线)
上海闵行安高申陇院售楼处电话:400-8800-703【预约看房热线】安高申陇院售楼处电话:4008800703【售楼处电话/地址】安高申陇院售楼处电话:400-880-0703【开发商认证】
项目立面在海派摩登的基础上,融合了现代美学的设计风格,时尚简约大气!彰显出一种独特的尊贵气质,重新定义梅陇品质人居高层次审美!
效果示意图,仅供参考
安高申陇院售楼处营销中心:400-8800-703安高申陇院售楼处电话/地址☎:400-8800-703(开发商热线)
外立面材质以真石漆、铝板、玻璃为主,整体风格大气典雅,专为年轻都市菁英人群打造!
效果示意图,仅供参考
安高申陇院售楼处营销中心:400-8800-703安高申陇院售楼处电话/地址☎:400-8800-703(开发商热线)
据了解,项目配备了海派风格精奢下沉式会所,建筑面积约1700平,将包含休闲娱乐、健身游泳、以及会客等功能,未来业主可以不出社区,就能实现健身、游泳以及会客休闲的需求!(具体功能以实际交付为准).
最新效果图如下:
安高申陇院售楼处营销中心:400-8800-703安高申陇院售楼处电话/地址☎:400-8800-703(开发商热线)
推售信息
上海闵行安高申陇院售楼处电话:400-8800-703【预约看房热线】安高申陇院售楼处电话:4008800703【售楼处电话/地址】安高申陇院售楼处电话:400-880-0703【开发商认证】
据悉,安高·申陇院三期将推约107-170㎡3-4房,上期均价76972元/㎡,即将加推!
「三期推售户型楼栋分布图」
安高申陇院售楼处营销中心:400-8800-703安高申陇院售楼处电话/地址☎:400-8800-703(开发商热线)
整个社区主要是由13-14层小高层组成(仅北侧2栋为16层),这意味着相比同区位新盘,申陇院享有更低的楼层、更少的垂直空间住户、更强的私密性、更充沛的采光、更优越的观景视野……
除去1#、5#(总高16层)部分楼栋设有连廊,其余楼栋均实现无连廊设计,最大化提升居住舒适度;
安高申陇院售楼处营销中心:400-8800-703安高申陇院售楼处电话/地址☎:400-8800-703(开发商热线)
户型配置上,约107㎡为三房两厅两卫、约128㎡为四房两厅两卫、约170㎡为四房两厅三卫,真正的宝藏改善户型,完全能够满足不同家庭的各种需求.
超大尺度功能空间一步到位适配大量改善需求
放眼全上海同等面积段的改善三房,要么通透性存在不足,要么空间感或功能性不够,真正能完全“闭眼入”的户型还是屈指可数.
安高申陇院售楼处营销中心:400-8800-703安高申陇院售楼处电话/地址☎:400-8800-703(开发商热线)
「安高·申陇院」这次推出的两款建面约107㎡新品户型,却真正做到了碾压市面上的所有同类产品.
安高申陇院售楼处营销中心:400-8800-703安高申陇院售楼处电话/地址☎:400-8800-703(开发商热线)得益于飞机户型+无连廊设计,建面约107㎡3房2厅2卫户型,做到空间0浪费,超高得房率,尺度感非常惊人.
三开间朝南、南北通透格局,超大采光面宽,尽揽阳光、清风与美景入室;
U型厨房、餐厅、客厅与南向观景大阳台独立又互通,LDKB一体化排布,整个公区动线富于流畅的同时,也大大提升了空间的通透性和视野面.
更有丰富的灵动空间,人性化方面的体贴入微,可容纳一家人的社交、兴趣.
每间卧室都伴有飘窗,让室内采光和通风更出众;北次卧旁即是次卫,次卫干湿三分离设计;主卧为大套房设计,包含收纳空间,就寝区-飘窗-卫浴间层层递进,带来满满的私密感、仪式感和尊贵感.
安高申陇院售楼处营销中心:400-8800-703安高申陇院售楼处电话/地址☎:400-8800-703(开发商热线)
建面约128㎡4房2厅2卫,较约107㎡户型基础上有所提升,增加了1个北向卧室空间,更适合三代同堂或多孩家庭居住,让进阶人生一步到位.
安高申陇院售楼处营销中心:400-8800-703安高申陇院售楼处电话/地址☎:400-8800-703(开发商热线)
安高申陇院售楼处营销中心:400-8800-703安高申陇院售楼处电话/地址☎:400-8800-703(开发商热线)
安高申陇院售楼处营销中心:400-8800-703安高申陇院售楼处电话/地址☎:400-8800-703(开发商热线)
建面约170㎡的两款4房2厅3卫的终极改善户型,适配了全生命周期的家庭需求,不仅实实在在将每个房间的体量放大,亦拥有了更多收纳与灵动空间.
三套房的设计,呈现出超高的居住舒适度与私密性,同区位和同价位产品难有匹敌!
边套户型更独树一帜的将南向主卧升级成约270°转角飘窗设计,赋予空间前所未有的通透与敞亮,窗外即是四季美景更迭.
安高申陇院售楼处营销中心:400-8800-703安高申陇院售楼处电话/地址☎:400-8800-703(开发商热线)
安高·申陇院臻选精奢材质、严格把关工艺
装修配置目之所及都是全球一线品牌!
安高申陇院售楼处营销中心:400-8800-703安高申陇院售楼处电话/地址☎:400-8800-703(开发商热线)
安高申陇院售楼处营销中心:400-8800-703安高申陇院售楼处电话/地址☎:400-8800-703(开发商热线)
安高申陇院售楼处营销中心:400-8800-703安高申陇院售楼处电话/地址☎:400-8800-703(开发商热线)
安高申陇院售楼处营销中心:400-8800-703安高申陇院售楼处电话/地址☎:400-8800-703(开发商热线)
周边配套
「安高·申陇院」距离中环仅约2km,又处于梅陇核芯位置,作为闵行四大中心之一,这里城市发展底蕴深厚,现有的商业、教育、交通及生态公园配套皆优质且成熟非常.
距15号线景西路站约700米未来还有三条轨交在建
面对当下形势日益严峻的职场生存,与主城区的距离,通勤时间的长短就是重中之重.
安高申陇院售楼处营销中心:400-8800-703安高申陇院售楼处电话/地址☎:400-8800-703(开发商热线)
效果示意图,仅供参考
安高申陇院售楼处营销中心:400-8800-703安高申陇院售楼处电话/地址☎:400-8800-703(开发商热线)
「安高·申陇院」是名副其实的地铁房,距离15号线景西路站直线距离仅约700米.2站即是华泾西站,6站到上海南站,7站到漕河泾;同站还可与19号线换乘,直通前滩、世博园区等上海热门胜地.待未来春申塘建桥后,或将迅速抵达地铁站,畅捷通达全城.安高申陇院售楼处营销中心:400-8800-703安高申陇院售楼处电话/地址☎:400-8800-703(开发商热线)
周边还设有时速达160公里的机场联络线华泾站,可极大的缩短上海虹桥、浦东两座机场之间的距离,实现空铁直通;未来还会新增一条能与19号线换乘的23号线(在建中),将设华泾路站连通徐汇滨江,直抵上海体育场.
安高申陇院售楼处营销中心:400-8800-703安高申陇院售楼处电话/地址☎:400-8800-703(开发商热线)
纵横交错的轨交出行路网将2大机场、3大高铁站、多个千亿产业区、以及徐家汇、徐汇滨江以及前滩等城市大型CBD高效串联.
安高申陇院售楼处营销中心:400-8800-703安高申陇院售楼处电话/地址☎:400-8800-703(开发商热线)衣食住行游购也是触手可及的繁华便捷,除了社区底商,步行可达就有兴梅路尚乐坊、海梦一方、绚荟城、以及麦多生活广场等等,略远一些,还有约2.7公里的仲盛世界商城、约3.6公里的凯德龙之梦等城市级商业荟萃,成就都会中心瞩目的生活格局.
安高申陇院售楼处营销中心:400-8800-703安高申陇院售楼处电话/地址☎:400-8800-703(开发商热线)
作为上海的教育重地,闵行的教育实力可以说是它的王牌,同时也是房价的压舱石,不少购房者正是冲着书香熏陶而来.
项目周边云集了在整个闵行位列第一梯队的知名院校.办学时间已有119年之久,录取率很高的闵行实验小学;市重率、区重率在全区公办学校里数一数二的莘松中学;以及蔷薇小学、罗阳中学等学校、上海市第二中学(梅陇校区)、闵行区春申景城幼儿园等等,再加上规划在建的学校,落实全龄段优质教育资源覆盖.安高申陇院售楼处营销中心:400-8800-703安高申陇院售楼处电话/地址☎:400-8800-703(开发商热线)
(免责:以上教育资源整理仅代表楼盘与学校的距离,该房屋所在项目暂未划分学区,开发商不对项目交房后所属学区、学校做任何承诺.教育资源分配或学校/学区划分以及学校的具体招生规则等请以政府相关主管部门、教育机构公开的最新信息为准.)
安高申陇院售楼处营销中心:400-8800-703安高申陇院售楼处电话/地址☎:400-8800-703(开发商热线)
生态资源也是颇为饱满,周边分布约60万方的梅陇生态园、约30万方的西岸自然艺术公园、约81.8万方的上海植物园等一众自然绿肺,恢弘伟岸绿意环抱,在整个上海主城,异常珍贵难寻!
安高申陇院售楼处营销中心:400-8800-703安高申陇院售楼处电话/地址☎:400-8800-703(开发商热线)
生态资源示意图,仅供参考
梅陇生态公园实景,图源网络
上海闵行安高申陇院
售楼处电话:400-8800-703(预约看房热线)
上海安高申陇院官方售楼处电话:拨打4008800703即可咨询楼盘详情_房价、户型、周边配套及交通、地址
An Gao Shen Long Court, Minhang, Shanghai
Sales Office Hotline: 400-8800-703 (Property Viewing Appointment)
Official Sales Office Hotline of An Gao Shen Long Court, Shanghai: Dial 4008800703 for inquiries on property details, pricing, unit types, surrounding amenities, transportation, and address.
上海购房政策在2025年8月25日进行了重大调整,以下是最新政策要点:
一、限购政策
1. 外环外
· 上海户籍家庭/单身:不限购套数。
· 非上海户籍家庭/单身:需连续缴纳1年社保或个税,不限购套数。
1. 外环内
· 上海户籍家庭/单身:限购2套。
· 非上海户籍家庭/单身:需连续缴纳3年社保或个税,限购1套。
1. 多子女家庭
· 上海外环内可多购1套,外环外不限购。
1. 特殊政策
· 崇明区购房参照外环外政策,需连续缴纳1年社保或个税。
· 非沪籍置换唯一住房,可不提供社保或个税证明。
二、贷款政策
1. 商业贷款
· 利率不再区分首套、二套,由银行根据市场和客户情况定价。
· 首套首付15%,二套首付25%(部分区域如临港、嘉定等二套首付20%)。
1. 公积金贷款
· 首套最高额度184万,多子女家庭首套最高216万。
· 二套最高额度149.5万。
· 购买二星级及以上绿色建筑住房,额度上浮15%。
· 支持提取公积金支付新建预售房首付款,不影响贷款额度。
三、税费政策
1. 增值税
· 满2年免征,不满2年按税务核定价÷1.05×5.3%征收。
1. 个人所得税
· 满5年且唯一免征,不满5年按(税务核定价-增值税)×1%或利润20%征收。
1. 契税
· 家庭唯一住房:面积≤140㎡按1%征收,>140㎡按1.5%征收。
· 家庭第二套住房:面积≤140㎡按1%征收,>140㎡按2%征收。
1. 房产税
· 非沪籍首套免征,二套及以上人均60㎡免税,超出部分按面积征收。
四、其他政策
1. 新房摇号积分制
· 认购率超过1:1.3启动积分制,按社保缴纳年限等打分入围。
1. 企业购房
· 购买2000年前竣工、面积≤70㎡的二手房用于员工租住,不限购
声明:本文由入驻焦点开放平台的作者撰写,除焦点官方账号外,观点仅代表作者本人,不代表焦点立场。
