2025一文读同济蟠龙里优缺点!分析一下青浦同济蟠龙里值得买吗?
扫描到手机,新闻随时看
扫一扫,用手机看文章
更加方便分享给朋友
近年来,大虹桥一直是楼市热门的板块,深受购房者的认可与追捧;
据有媒体统计,在过去的三年中,西虹桥徐泾板块的累计供应和成交1.44万套新房,是市中心黄浦区+静安区+徐汇区+虹口区+长宁区的新房总和!
蟠龙里就位于徐泾板块蟠龙路组团,这里一直是大虹桥最热门的区域,曾经这里的众多项目创造了单开热销的神话,聚集了超高的人气和客户的认可度。
目前,蟠龙里正在热销中,样板房全新升级开放!建面约100-145m23-4房,均价约6.5万/m2!首套首付约118万起,2/13(在建)/17号线三轨交交汇!
焕新样板间,抢先剧透:

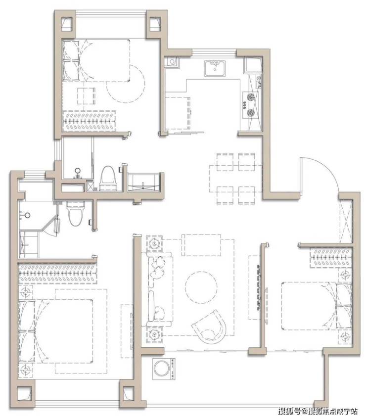
同济蟠龙里目前建面约100-145㎡3-4房“全明星”产品正在火爆热销中!无连廊+无过道的飞机户型,室内的实际使用空间极其出众。
户型方面,项目主推建面约100-145㎡3-4房,联动价6.5万/㎡!
由于项目是小高层住宅,所以全是无连廊的设计,这一点在同级别的新房中十分少见,这会让室内的实际使用率更高,并且采光也更加优秀。
最新户型图如下:
建面约100㎡3房2厅2卫户型图
非常标准的飞机户型,室内无过道,几乎没有空间浪费。
同时,全卧室带飘窗,客厅+次卧带宽面阳台,在加上南北通透的设计,这个户型的采光、视野以及通风都非常出众。
细节方面,入户玄关+主卧套房+客卫干湿分离,这个户型几乎做到了一个好户型应该有的所有。
建面约145㎡4房2厅2卫户型图
大横厅的设计,让这个户型拥有堪比别墅的南向采光面,这个尺度感以及采光通透度非常出众。
同时,横厅也可以当做一个灵动空间,不管是作为孩子的游玩天地、父母的瑜伽空间还是健身区域,都是很好的选择。这个灵动空间让这个户型承载了更多的生活想象。
最后,项目是精装交付,交付标准颇高:日立的中央空调+地暖,德普莱太的新风系统,并且是包含了热交换和PM2.5过滤功能的高端系列。
卫生间方面:摩恩的马桶、单柄冷热水龙头、台下盆、手持花洒;科勒的玻璃淋浴房。
厨房方面:科勒的单斗不锈钢水槽、抽拉式龙头;方太的双头燃气灶、平板顶排式吸油烟机、洗碗机。
当然,不仅仅是大品牌,在细节上同济蟠龙里更是匠心十足。例如:
洗碗机是方太的高端型号,15套大容量可洗锅。
灶台下方,铺设了全覆盖的台面撑板,可大大降低高强度使用后台面开裂的可能性。
客厅预留电动窗帘插座,方便业主后期加装等。
精装标准如下:
最新效果图如下:
(过程稿仅供参考,以开发商正式公示为准)


同济蟠龙里的社区有三大亮点:
第一,项目为综合体住宅。
项目北侧为文体和商业用地,总用地面积超过1万㎡。
规划功能业态要求基本配置为:
18-03地块:室内社区多功能运动中心,体育场地设施不少于8项,如乒乓球室、多功能馆(篮球、排球、羽毛球综合)、多功能房、器械健身房等。
18-04地块:智慧菜市场。同时除菜场部分积极引入社区便民商业,统一营运。
第二,项目的容积率仅有2、由4幢14-16F小高层住宅围合而成。
整个虹桥,如今轨交旁的住宅,容积率起码约2.5,在加上一些18层以上的楼栋,整个社区的人均绿化率、私密性以及安全是无法保障的。
而同济蟠龙里不仅社区容积率更低、并且均是小高层住宅,这个社区天赋带来的居住舒适度与其他新房,会有非常明显的差距。

更重要的是,开发商并没有浪费这一天赋,在这个社区内打造了包括:极具仪式感的归家入口、六大景观特色、架空层等。
让业主拥有更加出众的人均绿化率、景观视野、仪式感。


第三,低能耗住宅:
项目拥有24小时新风系统、所有外窗均采用三玻两腔节能窗,具备更佳的保温隔热效果,降低50%建筑能耗。

就在项目南侧,总部经济已蔚然成势。瑞安、虹桥豪盛广场、BU资本、中建、美的、安踏、中核建股份公司总部等名企总部商办项目一路连缀,体量、能级媲美徐汇滨江、北外滩。
这里聚集了大虹桥更高能级、更大体量的高端配套。虹桥主城区汇聚了约140万方文化商业综合体——首位SHOWAY,涵盖奥特莱斯、剧场群等业态;附近还有虹桥天地、龙湖天街等。
还汇聚了同步纽约百老汇及伦敦西区的大虹桥百老汇、22万方兰韵文化中心、蟠龙天地等文化综合体,以及约60万方的生态绿地。
并且,这些配套均已开工建设,像蟠龙天地以及兰韵文化中心等甚至已经建成,一个伟大的国际居住区已经跃然纸上。
这里拥有整个大虹桥宜居的生活环境!整个区域内拥有约23万方蟠龙公园、安踏体育主题公园(在建中)、蟠龙路站约11万方公共绿地(规划中)。
尤其是蟠龙公园,还以科技为主题建造了儿童游乐场地,未来茶余饭后周边业主们也可带孩子来感受下多层次游乐体验!

声明:本文由入驻焦点开放平台的作者撰写,除焦点官方账号外,观点仅代表作者本人,不代表焦点立场。
