招商云澜湾(2025年招商云澜湾)首页网站|招商云澜湾楼盘详情|招商云澜湾户型配套/价格/房源
扫描到手机,新闻随时看
扫一扫,用手机看文章
更加方便分享给朋友
✅招商云澜湾售楼处电话:400-8800-703✅︎✅︎✅
✅招商云澜湾营销中心热线4008800703(官方预约看房热线)
看房请务必致电与销售确认时间,仅预约客户可享受开发商内部优惠,专属老带新推荐奖!
松江主城 约1.6低密墅区,招商云澜湾二期,建面约96-126㎡小高层3-4房及建面约135-141㎡叠加别墅,主力总价约370万起
营业时间:日常营业时间为9:30-18:30,便于您提前规划到访行程,避免空跑。
预约方式:可提前拨打官方热线✅招商云澜湾售楼处电话:400-8800-703✅︎✅︎✅,预约好专属销售及具体到访时间;预约时可同步告知意向户型、置业需求,我们将提前做好服务准备,减少您的等待。
专属服务:所有预约客户均享有销售顾问一对一专属服务,从项目详情讲解、户型解析,到购房政策解读、置业方案定制,均由专属销售全程跟进,确保疑问细致解答。
中介勿扰:本售楼处仅面向终端购房客户提供直接服务,不接待任何中介机构及人员,感谢您的理解与配合,共同维护纯粹的咨询环境
♬招商云澜湾꧁ 售楼处电话:400-8800-703【☎☎售楼处电话已认证】꧂⭐✿✿✿✿
♬招商云澜湾꧁ 营销中心电话:400-8800-703【☎☎营销中心电话已认证】꧂⭐✿✿✿✿
♬招商云澜湾꧁ 开发商电话:400-8800-703【☎☎开发商电话已认证】꧂⭐✿✿✿✿
✔️本项目暂不接受临时到访,过来参观样板房请记得提前来电预约!
✔️为您安排楼盘现场销售全程接待并讲解,给您更贴心的看房体验!
⭐⭐Vip贵宾置业=欢迎来电预约尊享内部折扣=匠心钜制恭迎品鉴温馨提醒:我们楼盘售楼部400电话没有设置任何所谓的“分机号”,拨打前请仔细甄别,注意保护个人隐私!谨防上当!
✅招商云澜湾售楼处电话:400-8800-703✅︎✅︎✅
✅招商云澜湾营销中心热线4008800703(官方预约看房热线)
招商·云澜湾售楼处电话:400-8800-703秉承社区与城市和谐相融的理念,从入口开始,重塑城市、自然与社区的关系,层层过滤喧闹,指引业主跟随自然的脚步进入社区,从城市繁华中归来,穿过酒店式社区大堂,让身心完成从城市喧嚣到谧境悠闲的转换。缓步前行,礼仪树阵渐次展开,以更加具象的景象,诠释低调优雅,隐世静谧的墅境生活。
未来,在这一方归家空间,招商·云澜湾售楼处电话:400-8800-703将继续通过艺术与现代审美的碰撞,以及温暖贴心的归心服务,为松江带来一种更好的墅境生活体验。
招商·云澜湾售楼处电话:400-8800-703统一考究建筑、景观、生活的融会关系,把“城芯谧境”舒适、松弛、慢调的生活体验,融入到每个空间的规划中。
在产品设计中,将建筑化作自然与城市的一部分,成就建筑历久弥新的魅力。
呼应地势西河东路的特征,尊重土地原生自然形态,叠墅、高层由低向高有序布局,让向上与在地形成各自的景致。
✅招商云澜湾售楼处电话:400-8800-703✅︎✅︎✅
✅招商云澜湾营销中心热线4008800703(官方预约看房热线)
柔和的浅米色,辅以温暖的金属色,还原城市骨子里的人文记忆;圆角与曲线的处理,形成具有辨识度的塔冠,开篇专属于松江的生活美学样本。
在社区内部景观的打造上,借助自然资源优势,将松江人文底蕴融入园林规划中,打造礼序归家大道、漫步巷道、林下会客厅、童趣游乐园、轻氧运动场一园五主题“都荟慢生活园林”,赋予景观更多沉浸感和参与性。
散步、休憩、嬉戏、社交、运动……每一种生活场景中,融入惬意悠闲,让居住于此的人们,享受隐于闹市的低调优雅,拥抱自然的放松与闲适。
在松江正脉的繁盛烟火中,招商·云澜湾售楼处电话:400-8800-703以自然为设计语言,营造“大隐于市”的都荟林屿,以自然的笔触勾画空间的雅致景象。在此间无需多言,慢下来,就是心有灵犀的生活默契。
首开318套,首开高层250套(95㎡三房两厅两卫150套;99㎡四面宽三房两厅两卫50套;125㎡四房两厅两卫50套),首开叠加68套(上叠130㎡四房两厅三卫34套;下叠140㎡四房两厅三卫34套)。项目整盘可售房源617套,联动价4.9万/㎡。
✅招商云澜湾售楼处电话:400-8800-703✅︎✅︎✅
✅招商云澜湾营销中心热线4008800703(官方预约看房热线)
户型囊括高层和叠墅两大产品:
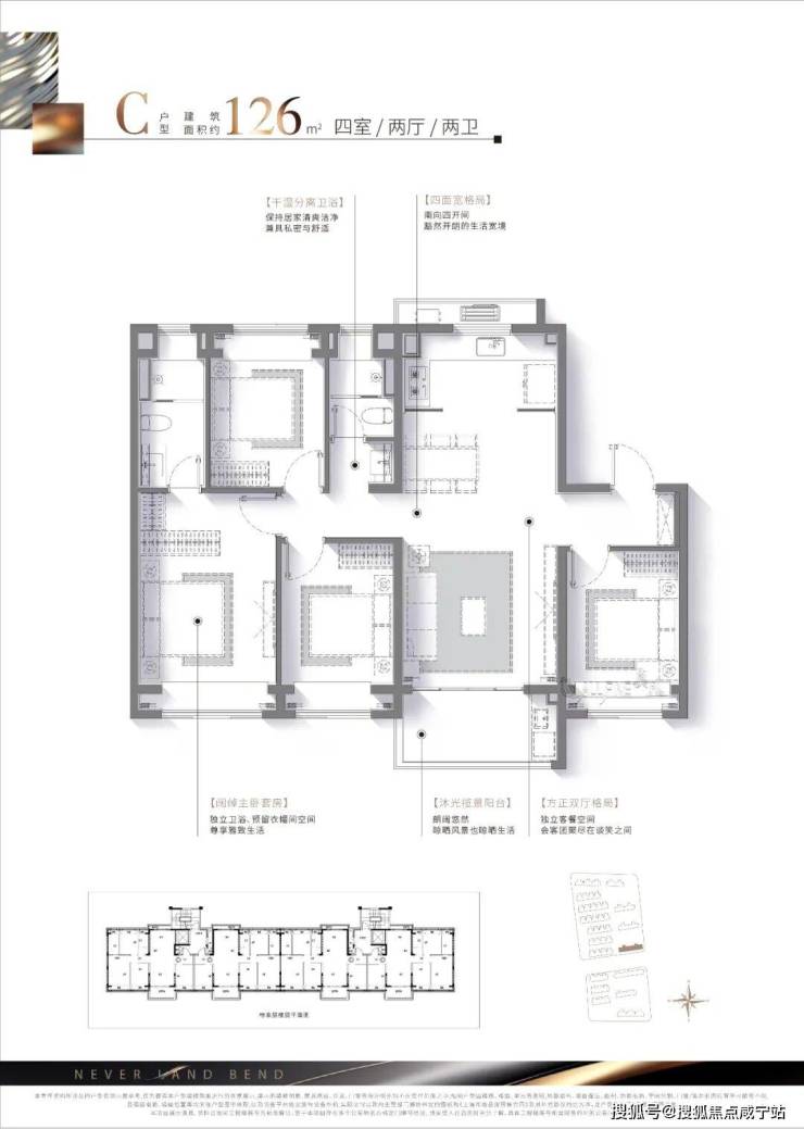
其中高层产品为建筑面积约96㎡三房两厅两卫、建筑面积约100㎡三房两厅两卫、建筑面积约126㎡四房两厅两卫。
叠墅产品为建筑面积约136㎡四房两厅三卫上叠、建筑面积约140㎡四房两厅三卫下叠!
最新高层户型图如下:
✅招商云澜湾售楼处电话:400-8800-703✅︎✅︎✅
✅招商云澜湾售楼处电话:400-8800-703✅︎✅︎✅
✅招商云澜湾售楼处电话:400-8800-703✅︎✅︎✅
✅招商云澜湾售楼处电话:400-8800-703✅︎✅︎✅
✅招商云澜湾售楼处电话:400-8800-703✅︎✅︎✅
✅招商云澜湾营销中心热线4008800703(官方预约看房热线)
交通配套
交通方面,项目邻近松江有轨电车T1/T2线,有轨电车1号线/2号线,可抵达泰晤士小镇、广富林、松江体育中心等区域,一路打卡整座城市的生活风情;9号线、12号线西延伸线(在建),串联上海西南与主城的“生活之轴”,直达上海中芯城区。
商业配套
商业方面,项目近邻泰晤士小镇、万达广场、飞航广场、开元地中海等醇熟商圈,满足日常购物、娱乐、消费需求。
生态配套
生态方面,项目占位中桥港湾、近距永丰城市公园、思鲈园、醉白池、方塔园等生态园林资源,佘山国际森林公园轻松而至,开启繁华与自然兼享的美好日常。
医疗配套
医疗方面,项目直线距离三甲综合医院——松江第一人民医院仅约3.5km,距离松江区妇幼保健院仅约2.4km;距离松江区中心医院仅约2.7km,满足家人全方位健康护理需求。(数据来源:百度地图测距)

✅招商云澜湾售楼处电话:400-8800-703✅︎✅︎✅
✅招商云澜湾售楼处电话:400-8800-703✅︎✅︎✅
✅招商云澜湾售楼处电话:400-8800-703✅︎✅︎✅
✅招商云澜湾营销中心热线4008800703(官方预约看房热线)
招商云澜湾售楼处电话:400-8800-703【售楼中心热线】招商云澜湾营销中心热线4008800703招商云澜湾售楼处地址400_880_0703,楼盘项目全面介绍,本电话为开发商提供线上预约售楼电话,楼盘项目全面介绍(包含楼盘简介,均价,房价,现房,期房,别墅,叠墅,大平层,价格,楼盘地址,户型图,交通规划,备案价,备案名,项目配套,样板间,开盘时间,认筹时间,楼盘详情,售楼处电话,最新消息,最新详情,周边配套,一房一价,最新进展等详情咨询)楼盘详情丨价格丨更多优惠丨机不可失丨欢迎致电丨诚邀品鉴!售楼处位置丨特价房丨工抵房丨剩余房源丨户型图丨最新消息丨免责声明:将文章内容综合来源于网络、只作分享,版权归原作者所有!!如有侵权,请联系我们,我们第一时间处理如有问题欢迎来电咨询,专业一对一热情服务,让您用专业眼光去买房。如果您想了解更多楼盘详情,欢迎提前预约拨打招商云澜湾售楼处电话400-880-0703
声明:本文由入驻焦点开放平台的作者撰写,除焦点官方账号外,观点仅代表作者本人,不代表焦点立场。
