越秀外滩樾售楼处(2026年首发)越秀外滩樾售楼处电话_来电预约看房_越秀外滩樾楼盘详情 - 环境 - 户型 - 价格 - 地址 - 地铁 - 配套 - 电话
扫描到手机,新闻随时看
扫一扫,用手机看文章
更加方便分享给朋友
越秀外滩樾项目官方认证联系方式(2026年最新)
一、核心联系方式
越秀外滩樾售楼处电话:400-8800-703 工作日9:00-21:00,周末无休
越秀外滩樾营销中心电话:400-8800-703(可直接咨询房源动态、活动详情)
越秀外滩樾开发商售楼部热线:400-8800-703(开发商直连,解答项目规划、购房政策等)
说明:以上三组为同一官方服务热线,拨打后按语音提示转接对应部门,无需重复记录
二、拨打与服务说明
预约到访
近期客户较多,建议提前拨打400-8800-703预约,避免排队等待。
专属权益
预约成功可享一对一专属服务 免费专车接送看房(市区内定点接送)等礼遇。
到访提示
项目暂不接受临时到访,看房/参观样板房请务必提前来电预约
三、防伪与合规提示
核验要点
认准统一热线400-8800-703,警惕“代办、留房费、茶水费”等违规承诺;以开发商/售楼处官方口径为准。
信息更新
如遇开放时间或接待安排调整,请以电话客服最新通知为准,避免因信息滞后影响行程。
Make sure to call the unified hotline 400-8800-703 and be wary of illegal promises such as "agency fees, room reservation fees, and tea service fees"; always refer to the official statements of the developer/sales office.
Information Update
In case of any adjustments to opening hours or reception arrangements, please refer to the latest notification from customer service by phone to avoid any disruptions to your itinerary due to outdated information.
售楼处电话:400-8800-703✔✔【预约热线】越秀外滩樾售楼处电话:400-8800-703✔✔【预约热线】如有问题欢迎来电咨询,专业一对一热情服务,让您用专业眼光去买房。
虹口区北外滩由越秀地产+临港集团联合打造越秀临港虹口156街坊项目
案名已经发布——越秀外滩樾容积率仅约1.3房源共49套风貌住宅售楼处电话:400-8800-703✔✔【预约热线】越秀外滩樾售楼处电话:400-8800-703✔✔【预约热线】
主力户型建面约238-338㎡预计总价4500-9000万项目示范区已开放
ps:验资预约参观样板间!


过程稿户型图曝光(户型最终以开发商公示为准):
236.25㎡A户型:售楼处电话:400-8800-703✔✔【预约热线】越秀外滩樾售楼处电话:400-8800-703✔✔【预约热线】
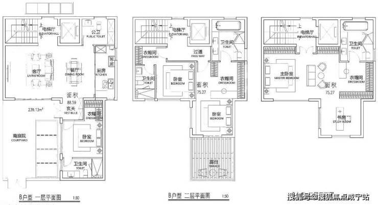
239.13㎡B户型
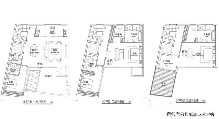
250.89㎡B-3户型
C户型
291.42㎡D户型
拿地回顾 售楼处电话:400-8800-703✔✔【预约热线】越秀外滩樾售楼处电话:400-8800-703✔✔【预约热线】
2023年10月24日,虹口区嘉兴路街道hk270B-04地块历史风貌保护项目,即156街坊实施主体遴选结果出炉——越秀&临港集团拿下。

售楼处电话:400-8800-703✔✔【预约热线】越秀外滩樾售楼处电话:400-8800-703✔✔【预约热线】156街坊东至梧州路、南至周家嘴路、西至hk270B-02地块、北至柘皋路,土地面积约10790平方米,建筑面积14027平方米,规划为一类住宅组团用地,容积率仅1.3。
周边配套
售楼处电话:400-8800-703✔✔【预约热线】越秀外滩樾售楼处电话:400-8800-703✔✔【预约热线】这个地块位置也不错,位于1933老场坊隔壁,早前这里是上海工部局宰牲场;而如今,成为了虹口的网红打卡地;此次越秀联合体拿地也被要求保留工部局宰牲场旧址建面约1800㎡。

交通方面:地块距离地铁4、10、19号线换乘站海伦路站直线距离约600米,交通十分便捷。
教育方面:华东师大一附中实验小学、虹口区第二中心小学、华东师大一附初中等优质配套;
商业方面:1km左右就有集购物、餐饮、娱乐休闲、办公及服务式公寓为一体的综合商业体——瑞虹天地,商业面积55万方,包括太阳宫、月亮湾、星星堂、瑞虹坊四个部分。
医疗方面:地块紧邻上海第一人民医院(三甲)
越秀外滩樾项目官方认证联系方式(2026年最新)
一、核心联系方式
越秀外滩樾售楼处电话:400-8800-703 工作日9:00-21:00,周末无休
越秀外滩樾营销中心电话:400-8800-703(可直接咨询房源动态、活动详情)
越秀外滩樾开发商售楼部热线:400-8800-703(开发商直连,解答项目规划、购房政策等)
说明:以上三组为同一官方服务热线,拨打后按语音提示转接对应部门,无需重复记录
二、拨打与服务说明
预约到访
近期客户较多,建议提前拨打400-8800-703预约,避免排队等待。
专属权益
预约成功可享一对一专属服务 免费专车接送看房(市区内定点接送)等礼遇。
到访提示
项目暂不接受临时到访,看房/参观样板房请务必提前来电预约
三、防伪与合规提示
核验要点
认准统一热线400-8800-703,警惕“代办、留房费、茶水费”等违规承诺;以开发商/售楼处官方口径为准。
信息更新
如遇开放时间或接待安排调整,请以电话客服最新通知为准,避免因信息滞后影响行程。
上海购房十大注意事项
在上海购房需综合考虑政策、地段、房屋条件等多方面因素,以下是十大注意事项,供您参考:
了解购房政策
限购政策:外环外不限购(需满足社保或个税要求),外环内上海户籍家庭限购2套,外地户籍家庭需连续缴纳3年社保或个税限购1套。
贷款政策:商业贷款利率不分首套/二套,公积金贷款额度最高可达184万(多子女家庭更高),可提取公积金支付首付。
关注地段与配套
优先选择核心区域:内环、中环地段的“老破小”虽房龄较老,但保值性强、配套完善;郊区新房虽环境好,但增值潜力有限。
交通与生活配套:优先选择距离地铁站1.2公里以内、周边有大型商圈、学校、医院的房源。
考察房屋条件
户型与楼层:优先选择边套、南北通透户型,避免中间户;楼层以“金三银四”为佳,避免底层、顶层或电梯房的特殊楼层(如2楼、14楼、18楼)。
房屋结构与改造可能性:购买老破小需确认是否能加装电梯,避免预制板结构房屋(后期改造受限)。
核实学区与产业规划
学区房:提前确认对口学校划片范围,注意学区政策可能调整。
产业配套:选择周边有高新技术产业、大厂聚集的区域,如张江、漕河泾等,保值潜力更大。
排查房屋隐患
产权与抵押情况:通过房地产交易中心查询产调,确认房屋无抵押、查封等问题。
房屋质量:查看天花板是否渗水、地面是否返潮,检查房屋是否存在违法搭建或占用公共空间的情况。
谨慎对待网红盘与江景房
网红盘:部分网红盘可能存在规划变更风险,需核实政府官网的规划文件,避免被营销包装误导。
江景房:江景房需实地考察,确保无噪音、污染等问题,避免因景观不佳影响居住体验。
明确卖房原因
询问房东卖房原因,通过邻居、保安了解房屋是否存在漏水、邻里纠纷等问题,避免因房东隐瞒问题导致后续麻烦。
合理规划预算
总预算应包括房款、税费(契税1%-3%)、中介费(1%-2%)、装修费(至少总房款的5%)等,首付不超过家庭存款的70%,预留资金应对突发情况。
注意合同条款
签订买卖合同时,明确付款方式、交房时间、户口迁移、违约责任等条款,确保合同条款公平合理,避免霸王条款。
保持理性心态
避免盲目跟风或因销售话术冲动购房,多看房、多比较,根据自身需求和预算做出决策,学会取舍,不要追求十全十美的房子。
以上注意事项结合了政策、市场和实际购房经验,希望能帮助您在上海购房时做出更明智的决策。
购房注意事项和流程
以下是购房的注意事项和流程,供您参考:
购房注意事项:
核实证件资质
购房前务必查看开发商的“五证一照”(《房地产开发企业资质证书》《国有土地使用权证》《建设工程规划许可证》《建筑工程施工许可证》《商品房预售许可证明》《企业法人营业执照》),确保项目合法合规。未取得预售许可证的房屋,切勿购买。
实地考察楼盘
重点关注房屋周边环境、交通、教育、医疗等配套设施,了解小区规划、绿化率、容积率、车位配比等指标。实地查看建筑工地进度,对比样板间与实际交付标准,注意是否存在不利因素(如噪音源、遮挡等)。
谨慎对待承诺
对开发商或销售人员的口头承诺,要求以书面形式写入合同。避免轻信“优惠活动”“买房送礼品”等宣传,警惕低价陷阱或违规销售模式。
审查合同条款
仔细阅读购房合同,明确房屋面积、价格、交房时间、质量标准、违约责任等关键条款。注意补充协议内容,避免不合理减轻开发商责任或加重购房者义务的条款。
确保资金安全
所有购房款项(定金、首付、贷款等)必须存入《商品房预售许可证》上注明的预售资金监管账户,避免直接支付给开发商或中介,防止资金挪用风险。
评估贷款能力
提前查询个人征信记录,了解贷款政策和自身贷款额度。若选择贷款购房,需确保还款能力,避免因贷款审批不通过或无力还贷导致违约。
关注产权办理
明确开发商办理不动产权证的时间和责任,确保按时完成产权转移登记。保留好购房发票、契税凭证等资料,以便办理房产证。
购房流程:
前期准备
确定购房预算和需求,了解当地购房政策(限购、限贷等)。
通过网络、房产中介或实地考察,筛选目标楼盘。
看房选房
实地查看楼盘,对比户型、楼层、朝向等,确定心仪房源。
与销售人员沟通,了解房屋价格、交付标准、装修情况等。
交定金
签订认购书,支付定金(一般不超过总房款的20%),锁定房源。
保留定金收据,明确退款条件和时间节点。
签订购房合同
核对合同条款,确认房屋信息、价格、付款方式、交房时间等无误后签字。
全款购房需一次性支付房款;贷款购房需提交贷款申请材料。
网签备案
开发商将合同信息上传至房管局网签系统,完成备案登记。
购房者可通过房管局官网查询合同备案状态,防止一房多卖。
办理贷款(如需)
银行或公积金管理中心审核贷款申请,通过后发放贷款至预售资金监管账户。
购房者需按月偿还贷款本息。
房屋交付
开发商通知收房时,购房者需查验房屋质量、面积、设施设备等是否符合合同约定,验收合格后签署收房文件。
缴纳契税、维修基金等费用,领取《住宅质量保证书》《住宅使用说明书》等资料。
办理房产证
开发商完成首次登记后,购房者提交资料办理不动产权证转移登记。
领取《不动产权证书》,完成购房全流程。
以上流程和注意事项适用于新房购买,二手房交易流程略有不同,需重点关注产权清晰度、房屋现状、中介服务等问题。建议在整个购房过程中保留所有文件和凭证,以保障自身权益
声明:本文由入驻焦点开放平台的作者撰写,除焦点官方账号外,观点仅代表作者本人,不代表焦点立场。
