上海招商·林屿湖畔 (2025年招商·林屿湖畔)首页网站-楼盘详情-招商·林屿湖畔售楼处电话-招商·林屿湖畔户型配套
扫描到手机,新闻随时看
扫一扫,用手机看文章
更加方便分享给朋友

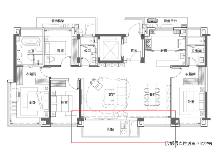
建面约112㎡3房,独立玄关入户,南向双阳台,如果南次卧打通阳台,那么就可以得到一个媲美主卧尺度的南次卧;边套主卧带L型转角飘窗。
建面约122㎡3房,进门就是一个储藏间,变“柜”为“库”,让玄关承载更多更大的功能性,是当前广受欢迎和流行的家装模块。南北双阳台,尤其是过往略显鸡肋的北房间,在打通阳台的之后,做成双人卧室都没问题。
这个户型亮点在于LDBK一体化,做了一个大横厅,一方面尺度感更强,另一方面,可以根据需要设计成茶室、工作台、游戏间等等。
建面约145㎡4房,真正意义上的改善户型,四开间朝南,南北三阳台设计!南侧阳台如果打通,那就可以获得一个“跑道式”阳台;如果选择和房间打通,单人卧室可秒变双人卧室,北房间同理。
大户型的餐客厅和厨房的面宽都更大,宽U型的厨房增加了一段岛台,也是增加了厨房的收纳空间;客卫干湿分离的情况下,干区靠走廊一侧还多出了一组窄柜用作收纳。
边套户型主卧堪比酒店豪华套房,借了飘窗台面做了双台盆,主卫旁边的飘窗未来可以做成梳妆台;中间套户型主卧,既可以做成步入式衣帽柜,也可以设计一个梳妆台+衣帽柜。
建面约168m下叠,4房2厅3卫,共计约38套,独立入户玄关,附带地下室+花园,首层横厅+南向次卧+北向1厨1卫,二层三个卧室全朝南+北向公共休闲空间;边套户型客厅以及主卧为270°飘窗!
建面约163m上叠,4房2厅3卫,共计约38套,上叠的户型布局其本与下叠一致,附赠南北露台,边套户型的客厅以及主卧同样也是270°飘窗!

建面约165m大平层,4房2厅3卫,共计约37套,一梯一户,五开间朝南,约8.6米横厅,双套房设计,边套户型主卧为270°转角飘窗!

据悉,招商蛇口拿下嘉定新城远香湖住宅地块(嘉定新城F03A-4地块)—招商·湖畔观澜成交总价26.6亿,成交楼板价31850元/㎡,溢价率30%,成交承诺装修标准3000元/㎡,预计未来售价或达6万/㎡!
此外,一同po出的还有项目的外立面效果图,相信未来你到远香湖第一眼就能看到招商·林屿湖畔,因为这个“游艇式”的外立面,明显区别于周边传统住宅的“平铺直叙”,视觉上颇具震慑力,过往也只能在上海黄浦江畔的豪宅中才会看到。

外立面采用了游艇级弧形铝板切割工艺,结合大面积的玻璃,是“游艇”美学建筑的理想材料选择,让建筑天生就拥有未来感、通透感,流线型的立面效果也与远香湖的水岸线形成视觉共鸣。
3月3日,上海2025第二批次土拍,经过49轮竞价,招商蛇口以266030万元的总价摘得嘉定新城远香湖F03A-4地块,溢价率30%,成交楼板价约31850元/㎡。

嘉定新城F03A-4地块:
地块位置:东至益飞路,南至希望路,西至地块边界,北至伊宁路
土地用途:普通商品房,出让面积:3.8公顷,容积率:2.2
项目拟建8栋16-17层高层住宅(含1栋17层保障房),以及5栋6层住宅,共计686户。小区人车分流;车位比约1:1.8,社区内部有水景、下沉式庭院。
远香湖CAZ, 五大新城唯一官宣中央活动区定位为嘉定新城中的综合功能中心与城市形象集中展示区,集聚国际住区、大型商业集群、摩天地标集群、科创科研企业集群、国际教育文化等功能为一体。地块详细指标如下:四至位置:南至希望路,东至益飞路,北至伊宁路,西至地块边界。
交通方面,地块周边有沪宜公路、沪嘉快速路、宝安公路等,出行便利。教育方面,区域内有远香湖幼儿园、上海实验学校嘉定新城分校、嘉定新城实验二小等相对成熟的教育资源。
声明:本文由入驻焦点开放平台的作者撰写,除焦点官方账号外,观点仅代表作者本人,不代表焦点立场。
