上海时代之城(时代之城)售楼处电话_来电预约看房_时代之城楼盘详情-2026最新房价
扫描到手机,新闻随时看
扫一扫,用手机看文章
更加方便分享给朋友
房子,终究是用来住的。而真正的好房子,不仅要看地段和价格,更要看是否懂你的生活。嘉定南翔华润华发·时代之城,以对家庭生活的深刻洞察,打造出一系列高得房率、强功能性、全龄友好的精装户型,让每一平方米都为幸福服务。
户型设计:小面积大格局,改善无压力
项目主力户型精准匹配不同家庭结构:
92㎡三房两厅一卫:堪称“刚需神作”——三开间朝南,主卧带飘窗,LDK一体化设计增强家庭互动,双阳台(生活+景观)兼顾实用与诗意,轻松容纳三口之家。
102㎡三房两厅两卫:升级为双卫设计,主卧套房配置,解决多口之家早晚高峰“抢厕所”的尴尬;U型厨房操作高效,次卧可灵活改造为书房或儿童房。
128㎡四房两厅两卫:专为改善家庭打造,独立玄关提升归家仪式感,主卧配备步入式衣帽间+明卫,老人房靠近客卫方便起居,真正实现“动静分区、长幼有序”。
所有户型均实现南北通透、明厨明卫、高得房率,杜绝暗间、走廊浪费,空间利用率极高。
精装交付:一线品牌,细节见匠心
时代之城坚持“所见即所得”的精装理念,严选国内外知名品牌:
空调:日立或大金中央空调
厨电:方太油烟机+燃气灶+消毒柜三件套
卫浴:摩恩龙头、科勒马桶、恒洁台盆
地面:圣象实木复合地板
智能:智能门锁、USB插座、一键断电面板
更难得的是,开发商在细节上用心:阳台双地漏防积水、厨房预留净水器接口、卫生间静音排水管、儿童房圆角处理……处处体现对现代家庭生活方式的理解与尊重。
实景图,仅供参考
92-135㎡高层产品,刚需上车首选!
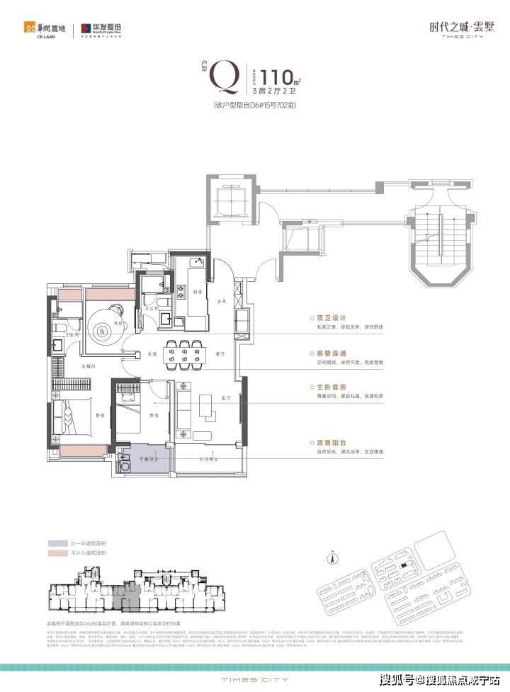
建面约110㎡的三房两厅两卫,非常适合年轻家庭上车,它的设计风格偏法式,符合年轻人审美。

实景图,仅供参考
南向双阳台,在原先一个阳台的基础上再加一个开敞阳台(仅计算一半阳台面积为建筑面积),实现客厅与次卧联通,不仅让得房率瞬间提升一个level,视野更敞亮!整体格局方正,南北通透,每个卧室大小宽裕,实现小家的超满足获得感!

户型图,仅供参考
收纳作为中小户型的一个痛点,在时代之城得到了完美解决,它几乎把小户型所有的收纳都搬进家里——
厨房超大柜体的收纳空间,包括调味拉篮、岛台双面收纳,将厨房空间直接扩容约80%,贴心的灶前龙头设计,开火时直接上方接水,非常灵活;
玄关S墙设计,同样包含MAX巨量收纳;创新性采用了钢琴键收纳,600万级的刚需项目中能享受大几千万的豪宅配置;
主卫的美妆冰箱、镜柜收纳、常用物品置物台,可以隐藏90%的卫浴物品......
同时,这个户型主力总价600万级起,很适合刚需家庭上车!
建面约120㎡的大三房做了一个u型厨房,餐桌可以容纳八人餐桌,双阳台配置+加上所有飘窗都是附赠面积,整体的实用面积可想而知。
S墙的设计,使得玄关和冰箱得到兼容,凹进去的部分放置冰箱,凸出的墙面做成了钢琴键收纳。

户型图,仅供参考
建面约135㎡的四房是项目的明星户型,几乎是一抢而空的状态,采光、视野非常敞亮,南北通透,双阳台还能看到窗外的中庭景观。
它的收纳亮点:钢琴键烤漆板,玄关处有一个八百库收纳,厨房扩容80%......800多万能买到这样的一个房子,哪怕是在市区买二手房也买不到这么多的赠送面积!

实景图,仅供参考

户型图,仅供参考
总结一下,高层户型可以说在同价位段中,很难再找到比它更出彩的户型了。南向双阳台+巨量收纳体系+超高水准的精装标准,几乎榨干每一寸空间,实用性与美观性都拉到了顶!
2、附赠面积超多的叠墅产品,包含地下室+阁楼
1000万级,挤一挤能在市区买个小三房,但是在时代之城,能享受到完全不一样的生活场景,有天有地有庭院,还有地下室的美好生活!
加上南翔比较宜居,离市区又很近,非常便利。学长很看好这里的叠墅产品:居住起来真的舒服!
1
建面约174㎡的下叠

户型图,仅供参考
下叠二期做了改动,一层拥有一个充足的采光面&超级全明的空间,即使是七八月份的上海也丝毫不会闷热潮湿。附赠宽绰地下室+公共绿地(实际交付为毛坯)闲暇时可以在院子里养鱼,种花等等。

实景图,仅供参考
地下室的两个夹层(作为生活场景示意),不仅赠送面积多,还是三面采光!挑高开阔,丝毫没有压抑感。

实景图,仅供参考
一楼,客厅到庭院是全景的落地门窗,夏日凉风习习,边套下叠还拥有全明餐厅。
实景图,仅供参考
主卧拥有270度环幕飘窗,视野和采光优越,配备了高奢卫生间,空间感、尊崇感拉到顶格。

实景图,仅供参考
下叠的总价段在1300-1600万左右,完全能容纳三代同堂的温馨的墅居生活,置业的终极目标,一步到位!
2
建面约178㎡的中平

户型图,仅供参考
中平户型以四开间朝南的IMAX级采光面,打造出堪比市区豪宅的尺度感。4房4飘窗2阳台的设计,配合双套房布局,一共有三个套房,让每个家庭成员都享有独立私密空间。
客厅+餐厅联通+南向双阳台,尺度感非常强。同时还配备了独立的家政间,约4.4个m³,约等于100个标准登机箱的空间!

实景图,仅供参考
玄关也是非常具有仪式感,包括厨房拥有超长的操作台面,同样也是做了满级收纳。
主卧套房,不仅有豪华卫浴,女王卫生间+双台盆,大尺度衣帽间,甚至书房、工作室空间就在边上,业主能体验无上的尊崇与私密。
实景图,仅供参考
中平的价格在1100-1300万左右,大平层的居住体验,媲美奢华酒店的感觉,妥妥秒杀市区拥挤又高密度的小三房了。
3
建面约170㎡的上叠

社区营造:低密静界,邻里有温度
项目容积率仅约2.0,楼间距宽阔,采光通风优良。社区内设置全龄活动空间:0-3岁感官乐园、3-12岁攀爬探索区、长者健身角、宠物便便箱、共享书吧等,真正实现“全龄友好”。物业由华润自有团队提供服务,24小时安保、智能门禁、节日活动组织等,让业主安心无忧。
选择时代之城,不是选择一套钢筋水泥的房子,而是选择一种更健康、更舒适、更有爱的家庭生活方式。
其次,在云翔板块落地的教育资源一直都是非常重磅的,像之前的世界外国语学校、世外教育附属嘉定云翔小学等,这片区域的教育资源是非常受重视的存在。(免责声明:以上教育资源整理仅代表楼盘与学校的距离,该房屋所在项目暂未划分学区,开发商不对项目交房后所属学区、学校做任何承诺。教育资源分配或学校/学区划分以及学校的具体招生规则等请以政府相关主管部门、教育机构公开的最新信息为准。)

交通上,时代之城所拥有的11号线+嘉闵线双轨通勤,距离地铁11号线陈翔公路站约900米,半小时就能到达徐家汇等市区核心腹地。包括静安寺、徐家汇、徐汇滨江、漕河泾、陆家嘴、新天地都在业主的生活圈内。

商业上,坐拥山姆会员店(与时代之城零距离)+印象城MEGA(34万方商业旗舰),形成“下楼即享山姆,步行直达印象城”的顶配体验。
这里的业主,未来吃完饭,家楼下就是大型的购物商超,散步消食购物轻轻松松。

最后展望一下未来图景:这个总规模约30万方的“微型城市”恰如区域发展的一个缩影——既有对品质生活的执着追求,又有对生态宜居的持续探索。将一切都浓缩到一个步行范围的闭环之中。
尤其是二期实景示范区的展现,更让众人惊艳了一把,美妙的大城生活跃然于眼前,值得憧憬!

预约咨询热线:400-960-1656☎, 加微咨询:139 1616 5691(加微,不要来电,备注楼盘名字)
声明:本文由入驻焦点开放平台的作者撰写,除焦点官方账号外,观点仅代表作者本人,不代表焦点立场。
