保利新江湾(售楼处)首页网站-保利新江湾销售中心(营销中心)-保利新江湾楼盘欢迎您-小区环境-户型-价格-地址-楼盘详情-周边配套-售楼处电话-交房时间
扫描到手机,新闻随时看
扫一扫,用手机看文章
更加方便分享给朋友
保利新江湾售楼处电话:400-8800-703【预约看房热线】保利新江湾官方售楼处电话:4008800703【售楼处电话/地址】保利新江湾售楼处电话:400-880-0703【开发商认证】
最新消息#
杨浦·新江湾城 全新盘
「保利发展新江湾项目」等待入市
将拟建洋房+叠加+联排产品
将推约100-300㎡左右
共计455套房源
网传户型图流出
上海杨浦【 保利新江湾】
售楼处电话☎:400-8800-703【售楼处预约热线】(一对一热情服务)
如有问题欢迎来电咨询,预约来电尊享购房优惠,可预约案场内部销售人员,专业一对一热情服务,让您用专业眼光去买房。


保利新江湾售楼处电话:400-8800-703【预约看房热线】保利新江湾官方售楼处电话:4008800703【售楼处电话/地址】保利新江湾售楼处电话:400-880-0703【开发商认证】
1
基本信息
2025年9月日前,保利发展与上海地产联手,通过股权转让方式拿下新江湾城一宗地块。出让总价37亿元,成交楼面价5.89万元/㎡。这是保利发展首次在新江湾城板块拿地。

新江湾E1-08A地块,位于新江湾城北侧,直线距10号线地铁新江湾城站约1.2公里。容积率仅约1.1,限高约20米。规划建造全部低密产品,包括洋房、叠加、联排。未来将和其南侧陆续开盘售卖中的建发海宸共同为新江湾城板块新房市场发力。
四至范围:东至E1-09规划公共绿地,西至江湾城路,南至E1-08E公共通道,北至E1-09规划公共绿地。

而现在针对E1-08A地块的施工和监理招标也启动起来:

保利新江湾售楼处电话:400-8800-703【预约看房热线】保利新江湾官方售楼处电话:4008800703【售楼处电话/地址】保利新江湾售楼处电话:400-880-0703【开发商认证】
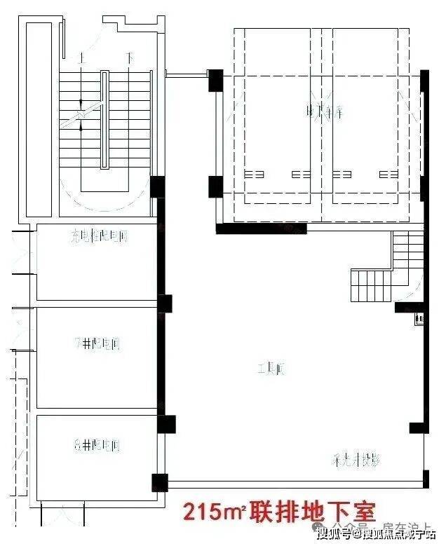
杨浦区新江湾社区E1-08A地块,预计建造约238套100-139㎡6层洋房,48套160㎡叠墅(上下叠),68套170㎡叠墅(上下叠),47套190㎡联排别墅,24套215㎡联排别墅,11套260㎡联排别墅,2套350㎡联排别墅。
网传过程稿户型图:
(仅供参考,最终以开发商发布为准)
保利新江湾售楼处电话:400-8800-703【预约看房热线】保利新江湾官方售楼处电话:4008800703【售楼处电话/地址】保利新江湾售楼处电话:400-880-0703【开发商认证】
约160-170㎡的叠墅户型图
保利新江湾售楼处电话:400-8800-703【预约看房热线】保利新江湾官方售楼处电话:4008800703【售楼处电话/地址】保利新江湾售楼处电话:400-880-0703【开发商认证】
保利新江湾售楼处电话:400-8800-703【预约看房热线】保利新江湾官方售楼处电话:4008800703【售楼处电话/地址】保利新江湾售楼处电话:400-880-0703【开发商认证】
约215㎡的联排户型图
保利新江湾售楼处电话:400-8800-703【预约看房热线】保利新江湾官方售楼处电话:4008800703【售楼处电话/地址】保利新江湾售楼处电话:400-880-0703【开发商认证】
保利新江湾售楼处电话:400-8800-703【预约看房热线】保利新江湾官方售楼处电话:4008800703【售楼处电话/地址】保利新江湾售楼处电话:400-880-0703【开发商认证】项目南侧不远处是杨浦德法学校,再往南就是目前新江湾城板块在售的新盘建发海宸,未来入市,相信能和建发海宸形成协同作用,共同提升新江湾城板块的居住焕新价值。
E1-08A地块总投资达到70亿元,总建筑面积达到11.9万平方米,其中地上面积达到6.7万平方米。而计划的开工日期是2025年12月20日。


按照这个时间节点推算,预计该项目最快有机会在2026年1月首开入市销售。至于价格,参考地块南侧的建发海宸,预计洋房未来可能售价在11.5万左右,别墅产品有望在13-15万价格区间。

2
周边配套
新江湾城作为上海主城唯一生态湿地绿化率超过60%,更有“生态绿宝石”之称,项目约1.1超低容积率,低密生活舒适度放眼上海都非常稀缺!
保利新江湾售楼处电话:400-8800-703【预约看房热线】保利新江湾官方售楼处电话:4008800703【售楼处电话/地址】保利新江湾售楼处电话:400-880-0703【开发商认证】
项目周边汇聚中福会幼儿园、规划幼儿园、上音实验学校、德法学校、复旦大学等全龄学府,从幼儿园、小学到中学、大学全覆盖,优质教育氛围相当难得!
项目邻近轨交10号线,直通五角场、南京东路、虹桥枢纽,出行相当便捷。
4站地铁直达五角场商圈,合生汇、万达广场、百联又一城等,完全满足日常购物需求~

医疗资源雄厚,海军军医大学第一附属医院·长海医院、同济大学附属·肺科医院、海军军医大学第一附属医院·东方肝胆、复旦大学·市东医院新江湾院区(在建)等三甲医院构筑健康屏障。
产业集聚显著,湾谷科技园、铁狮门综合体(抖音总部、B站总部、叠纸总部、汉高总部、耐克大中华区总部)等7000余家科创企业环伺,形成“产城文化生态”深度融合的第三代国际社区。
上海杨浦【 保利新江湾】
售楼处电话☎:400-8800-703【售楼处预约热线】(一对一热情服务)
如有问题欢迎来电咨询,预约来电尊享购房优惠,可预约案场内部销售人员,专业一对一热情服务,让您用专业眼光去买房。
保利新江湾售楼处电话:400-8800-703【售楼中心热线】保利新江湾营销中心热线4008800703保利新江湾售楼处地址400_880_0703,楼盘项目全面介绍,本电话为开发商提供线上预约售楼电话,楼盘项目全面介绍(包含楼盘简介,均价,房价,现房,期房,别墅,叠墅,大平层,价格,楼盘地址,户型图,交通规划,备案价,备案名,项目配套,样板间,开盘时间,认筹时间,楼盘详情,售楼处电话,最新消息,最新详情,周边配套,一房一价,最新进展等详情咨询)楼盘详情丨价格丨更多优惠丨机不可失丨欢迎致电丨诚邀品鉴!售楼处位置丨特价房丨工抵房丨剩余房源丨户型图丨最新消息丨免责声明:将文章内容综合来源于网络、只作分享,版权归原作者所有!!如有侵权,请联系我们,我们第一时间处理如有问题欢迎来电咨询,专业一对一热情服务,让您用专业眼光去买房。如果您想了解更多楼盘详情,欢迎提前预约拨打保利新江湾售楼处电话400-880-0703
2025 版房地产基础知识 100 条(精编版)
以下是房地产领域核心基础概念的梳理,涵盖房产定义、建筑分类、产权规范、交易税费、物业配套等全维度知识,通过通俗表述与细节补充,帮助读者快速掌握关键要点。
一、房地产核心定义
房地产指以土地与房屋为实物载体的财产形态,由 “房产”(房屋及附属设施)与 “地产”(土地使用权及相关权益)两部分构成,具有固定性、永久性、个体差异性及保值增值属性,是民生与投资的重要载体。
房地产业涵盖房地产开发建设、资产运营、产权管理及配套服务的产业体系,具体包括土地整理与出让、房屋建造与维修、房地产买卖 / 租赁 / 典当、抵押融资及相关市场服务,是国民经济的重要组成部分。
三通一平建设项目施工前的基础准备工作,“三通” 指将开发区红线外的市政道路、给排水管网、供电线路接入施工场地;“一平” 即对施工场地进行土方平整,清除障碍物,为后续建设创造条件。
七通一平针对大型开发区或重点项目的施工准备标准,“七通” 包含道路通、给水通、排水通、电力通、通讯通(网线 / 电话线)、煤气通、热力通;“一平” 为土地平整,比 “三通一平” 覆盖更全面的市政配套。
规划红线用于界定建设用地法定边界的标识,通常通过用地角点的城市坐标参数,或参照周边现有建筑物的距离尺寸标定,红线内为项目可建设范围,红线外为市政公共区域,不得擅自占用。
二、政策性与商品性住房分类
保障性住房与商品房相对的政策性住房,由政府统筹规划,面向中低收入住房困难家庭,具有 “限定建设标准、限定销售价格或租金” 的特点,主要包括廉租住房、经济适用住房、限价商品房(两限房)及政策性租赁住房(公租房)。
经济适用住房带社会保障属性的普通住宅,专为解决中低收入家庭住房需求设计,核心优势是政策扶持:免征土地出让金,减免 50% 市政配套费用,可优先享受银行信贷,开发商利润率被限定在 3% 以内,售价显著低于普通商品房。
1.
2.
政策性租赁住房(公租房)归政府或公共机构所有的保障性住房,以低于市场价或承租人承受能力的租金,向新就业职工、外来务工人员等 “夹心层” 群体出租,解决其 “收入超廉租房标准但无力购经适房” 的住房难题。
3.
4.
两限房(限价商品房)经政府批准,以 “限房价、限套型” 为核心的中低价位住宅:通过 “竞地价、竞房价” 确定开发商,套型建筑面积多为 90㎡以下,面向符合条件的本地居民销售,兼顾居住需求与价格可控性。
自住型商品房(北京专属)北京市 2013 年推出的政策性住房,售价比周边商品房低 30% 左右,面向全市符合限购条件的家庭;购买后 5 年内不得上市,5 年后上市收益的 30% 需上交财政,套型以 90㎡以下为主,最大不超 140㎡。
商品房分类按用途可分为住宅(普通商品房、公寓)、商业地产(写字楼、商铺、文旅项目)、工业地产(厂房、仓库);按楼层可分为低层(1-3 层)、多层(4-6 层)、小高层(7-9 层)、高层(10 层及以上)、超高层(100 米以上)。
三、建筑与户型基础
1. 住宅楼层分类标准
· 低层住宅:1-3 层,多为别墅、联排,无电梯,容积率低;
· 多层住宅:4-6 层,以步梯为主,公摊小,适合刚需;
· 中高层住宅:7-9 层,部分配电梯,平衡舒适度与成本;
· 高层住宅:10 层及以上(或总高超 24 米),需配电梯,常见于城市核心区;
· 超高层住宅:总高超 100 米,配多部电梯,对消防、抗震要求更高。
住宅耐久年限设计使用年限分两类:普通民用住宅(如商品房)为 50 年,采用钢筋混凝土结构的大型建筑或重要公共建筑(如高端住宅、地标楼)为 80 年及以上,实际寿命受维护、抗震等级影响。
会所以本物业小区业主为核心服务群体的综合性休闲场所,通常配备健身区、棋牌室、社交客厅等设施,部分高端小区含泳池、瑜伽室,功能是满足业主日常休闲与邻里互动,提升居住体验。
塔楼以中央楼梯间与电梯井为核心布局的高层住宅,户型多环绕核心筒分布,优点是户数多、土地利用率高,缺点是部分户型采光通风较差,常见于高密度居住区。
板楼由多个独立居住单元呈线性排列的住宅,户型多为南北通透,采光通风好,居住舒适度高,缺点是土地利用率低,同等地块户数少于塔楼,多为中高端小区或低密度项目。
1.
2.
跃层一套住宅占据上下两个完整楼层,两层间通过户内专属楼梯连接,不依赖公共楼梯,空间独立性强,适合大户型改善需求,常见于别墅或复式洋房。
复式在单层高较高(通常 3.5 米以上)的住宅内增设夹层,形成 “一层变两层” 的布局,夹层多作卧室或书房,空间利用率高但夹层层高略低(通常 2.2 米以下),适合中小户型扩容。
错层户内不同功能区楼面高度存在 30-60 厘米落差,通过小型楼梯连接,既区分空间(如客厅与餐厅)又不割裂整体,适合中大户型,小户型采用易显局促。
进深住宅房间从前墙外侧到后墙外侧的水平长度,直接影响采光 —— 进深过大易导致房间中部昏暗,通常建议进深与开间比例不超过 1.5:1。
开间(面宽)住宅房间从一侧墙外侧到另一侧墙外侧的水平宽度,决定房间开阔度与家具摆放空间,面宽越大,采光越充足,如客厅开间多为 3.5-4.5 米,卧室多为 3-3.5 米。
标准层住宅建筑中平面布局、户型结构完全相同的楼层,多为中间楼层,便于批量施工与成本控制,顶层、底层因布局差异(如屋顶露台、底层花园)通常不算标准层。
层高住宅某一层的垂直高度,即下层楼板上表面到上层楼板上表面的距离,包含楼板厚度,普通住宅层高多为 2.8-3 米,低于 2.7 米易显压抑。
净高住宅室内实际可使用的垂直高度,即下层地板上表面到上层楼板下表面的距离,计算公式为 “净高 = 层高 - 楼板厚度”,普通住宅净高多为 2.6-2.8 米,直接影响居住舒适度。
四、建筑间距与采光规范
建筑间距相邻两栋建筑物的合理水平距离,核心依据是 “日照间距”(满足冬季采光的最小距离):冬至日正午,前幢楼后檐的阳光需照射到后幢楼底层窗台,且底层满窗日照时长不少于 1 小时(冬至)或 2 小时(大寒),避免间距过近导致采光不足。
1.
2.
日照间距包含正面间距(前后楼)与侧面间距(左右楼),正面间距需满足采光标准,侧面间距主要考虑通风与隐私,通常不小于 6 米(多层)或 10 米(高层)。
3.
4.
日照间距系数计算日照间距的核心参数(建筑间距 ÷ 遮挡楼檐高):板楼正南正北朝向系数多为 1.6,倾斜 20 度以上可降至 1.4,系数越小,土地利用率越高,但需平衡采光需求。
户型与户型比
· 户型:指单户居室数量、空间布局及尺寸,如 “两室一厅一卫”“三室两厅两卫”,决定居住功能;
· 户型比:某项目中不同户型(如两居、三居)占总户数的比例,反映客群定位(刚需型多两居,改善型多三居)。
1. 房屋产权房屋所有权人依法享有的物权,包括占有(实际控制)、使用(居住 / 出租)、收益(收租金 / 增值)、处分(出售 / 抵押)四项权利,受法律保护,是房产交易的核心依据。
五、面积计算规范
建筑面积住宅总建筑面积,公式为 “建筑面积 = 套内建筑面积 + 分摊的公用建筑面积”,包含房屋主体、套内空间及公共区域(如楼梯间、电梯井),是交易计价与测绘的核心指标。
低层高面积规则按房产测绘规范,建筑物内层高低于 2.2 米的区域(如阁楼、地下室夹层),不计入总建筑面积,仅作附属空间(如储物)使用。
套内建筑面积单户内部可独立使用的面积,由三部分构成:
1.
· 套内使用面积(卧室、客厅等实际使用空间,俗称 “地毯面积”);
· 套内墙体面积(独用墙体全算,与邻居共用墙体算一半);
· 阳台建筑面积(按规范计算)。
1. 公摊面积(公用建筑面积分摊)为整栋楼服务的公共区域面积,包括:
· 公共门厅、走廊、电梯井、楼梯间、垃圾道、变电室、设备机房、地下室、值班警卫室;
· 单户与公共空间的分隔墙体、整栋楼外墙水平投影面积的一半,需按比例分摊至各户。
1. 阳台面积计算
· 封闭阳台(有固定围护结构、可独立使用):按实际水平面积全额计入建筑面积;
· 未封闭阳台(半封闭或无围护):按实际水平面积的 50% 计入,具体需符合当地测绘规范。
使用面积建筑物各层平面中直接用于生活 / 生产的净面积总和,不含墙体、柱子等结构构件,是衡量居住舒适度的关键(如 100㎡建筑面积,使用面积多为 70-80㎡)。
使用率使用面积与建筑面积的比值(使用率 = 使用面积 ÷ 建筑面积 ×100%),反映套内实际空间占比,普通住宅使用率多为 70%-80%。
实用率(得房率)套内建筑面积与建筑面积的比值(实用率 = 套内建筑面积 ÷ 建筑面积 ×100%),数值高于使用率(含套内墙体),普通住宅得房率多为 75%-85%,洋房、别墅可达 90% 以上。
分摊的公用建筑面积单户需承担的公共面积,公式为 “分摊面积 = 套内建筑面积 × 公用建筑面积分摊系数”,系数由 “整栋楼公用面积 ÷ 整栋楼套内面积总和” 得出。
公用建筑面积分摊系数计算公摊的核心参数,系数越大,单户分摊的公共面积越多,得房率越低(如高层因电梯多,系数通常比多层高)。
容积率地上总建筑面积与项目建设用地面积的比值(容积率 = 地上总建面 ÷ 用地面积),反映项目密度:
· 容积率<1.0:低密度(别墅、洋房);
· 1.0-2.5:中密度(多层、小高层);
· >2.5:高密度(高层、超高层),容积率越低,居住舒适度越高。
建筑覆盖率(建筑密度)所有建筑物基底占地面积与规划用地面积的比值(密度 = 基底面积 ÷ 用地面积 ×100%),反映土地利用强度:密度越低,小区绿地、道路等公共空间越充足,普通住宅密度多为 20%-30%。
人口毛密度项目估算居住总人数与用地面积的比值(单位:人 / 公顷),是规划配套(如学校、社区医院)的依据,密度过高易导致配套紧张。
绿地率规划用地范围内的绿地面积(含公共绿地、宅旁绿地,不含屋顶绿化、盆栽
声明:本文由入驻焦点开放平台的作者撰写,除焦点官方账号外,观点仅代表作者本人,不代表焦点立场。
