2026越秀外滩樾(越秀外滩樾)官方首页网站-越秀外滩樾欢迎您-越秀外滩樾楼盘详情-最新价格户型
扫描到手机,新闻随时看
扫一扫,用手机看文章
更加方便分享给朋友
越秀·外滩樾售楼处电话:400-8800-703
越秀·外滩樾营销中心热线400-880-0703(官方预约看房热线)
上海墅居天花板———越秀外滩樾———
位置: 上海虹口区北外滩,距外滩1公里,陆家嘴1.5公里
项目信息🔍:
项目类型:现代风貌
物业类型:70年
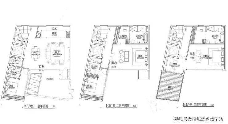
建筑面积:238、305、318、338/㎡
户型:地上3层,地下2层 短进深大面宽,全落地窗设计、使用400-800平,高品质高颜值
毛坯交付,也定制可以装修交付
总价区间:4500-9000万
单价约18.9-26.6万/㎡
总套数 :49套
交付时间:2026年底交付
梯户比 :“室内带独立电梯井”设计
物业费 :地上26.8含会所,地下一半
层高 :一楼3.6米,二楼三楼3.2米,地下室6.15挑空6.15
越秀·外滩樾售楼处电话:400-8800-703
越秀·外滩樾营销中心热线400-880-0703(官方预约看房热线)
2023年10月26日,上海市虹口区嘉兴路街道hk270B-04地块历史风貌保护项目实施主体遴选结果公示,最终由上海市漕河泾新兴技术开发区发展总公司(临港集团)及杭州燚乐实业投资有限公司(越秀)联合开发。
项目总用地面积约10790平方米,为一类住宅组团用地,容积率1.3,建筑面积14027平方米,地块内需要保留的历史建筑规模约4400平方米,均为里弄建筑。
越秀·外滩樾售楼处电话:400-8800-703
越秀·外滩樾营销中心热线400-880-0703(官方预约看房热线)
基础信息
【项目名称】越秀·外滩樾
【开发商】上海漕越经济发展有限公司
【项目位置】上海市·虹口区·梧州路235弄
【项目类别】70年产权住宅
【项目类型】风貌别墅
【可售户数】48套(风貌)
【容积率】约1.3
地块四至范围, 东至梧州路,隔壁是中皇广场; 西至hk270B-02,隔壁就是1933老场坊; 南至周家嘴路;北至柘皋路。
日前,上海市规划和自然资源局对上海漕越经济发展有限公司虹口区嘉兴街道hk270b-04地块历史风貌保护项目进行了设计方案公示,项目未来将呈现48套低密风貌里弄住宅,面积约238-338㎡。

项目规划层高,1楼为3.6米,2、3楼均为3.2米。小区整体容积率为1.3。
程绍正韬,建筑室内设计之东方主义集大成者,致力于东方文化的坚守与创新。他打破惯常的职业思维,将生活方式化作一种哲学态度,融入空间设计,让设计不止于作品。
越秀·外滩樾售楼处电话:400-8800-703
越秀·外滩樾营销中心热线400-880-0703(官方预约看房热线)
李玮珉,撑起中国豪宅设计半壁江山,擅长为城市塑造文化符号建筑作品。他的作品更多用极简的方式来表明态度,崇尚简而高效的现代生活方式。庄重的建筑语汇,适时注入艺术、自然与美学,让空间充满想象力。
复刻百年前的高端工艺元素,让海派造诣世纪传承。清砖立柱、古典门头、封闭门窗、岩石山墙等经典海派建筑风貌转译,于历史和未来之间收藏百年上海。
巷弄新生:内环内难得双拼别墅 ,超越风貌建筑的尺度感;
建筑新生:创新风貌规制,致微而筑的建筑腔调赏新;
美学新生:转译远东第一豪宅立面美学,收藏名门望族生活;
材质新生:豪宅同款奢砖、大面积奢石运用,定制家族排场。
越秀·外滩樾售楼处电话:400-8800-703
越秀·外滩樾营销中心热线400-880-0703(官方预约看房热线)
项目所在地北外滩,是百年前上海的“下海”地。作为上海开埠后第一座码头的诞生地,北外滩率先“开眼看世界”,海纳万国文化风潮,众多此后影响中国的创举在此诞生,是上海最早的“十里洋场”
傲立“一江一河”交汇处(直线距离约1.1KM),未来将打造成为彰显上海城市核心竞争力的黄金水岸和具有国际影响力的世界级城市会客厅,出入之间,相逢城市高阶未来
北外滩,与外滩、陆家嘴并称为上海的“黄金三角”。将以2座陆家嘴的商务体量规划,新天地2.0生活圈打造,成为上海跃升世界舞台的“中心发力”新引擎
区域能级:总开发面积约840万方,40栋甲级写字楼
城市地标:480米浦西第一高楼,19栋摩天大楼集群
金融产业:2100+家金融企业赋能,资产管理规模超8万亿元,位居全市第一
航运格局:4500+家航运企业集聚(上港集团、中远海运等),打造国际航运中心
全球贸易:2500+家贸易企业入驻(摩亚方舟、银联商务等)
新兴产业:129家新增高新技术企业,113家市区科技小巨人企业(数据来源:上海市规划局《北外滩地区控制性详细规划》)
越秀·外滩樾售楼处电话:400-8800-703
越秀·外滩樾营销中心热线400-880-0703(官方预约看房热线)
交通方面:项目三轨交汇,距离12号线国际客运中心站约600米,距离4/10号线海伦路站约850m(直线距离),3站南京东路,6站新天地。
自驾上,约360米新建路隧道(直线距离),快速直达陆家嘴CBD;约670米外滩隧道(直线距离),直达外滩金融商业街以及老码头;约150米北横通道(直线距离)贯通全城,快速通达虹桥机场/虹桥火车站;约2.4公里大连路隧道(直线距离),直达浦东东方路、世纪大道、八百伴商业圈。
商业方面:项目约2公里内多元繁华构筑封面商业圈,北外滩商圈直线距离约500米;外滩商圈直线距离约1000米;陆家嘴商圈直线距离约1500米;瑞虹商圈直线距离约900米。
医疗方面:三公里内四所三甲医院,全生命周期护航,新华医院(儿科专长);复旦大学附属妇产医院;上海市第一人民医院;上海东方医院(血管外科专长)。
教育方面:幼儿园:约1公里内6所幼儿园(直线距离),涵盖东余杭路幼儿园等3所示范级学校;
小学:约1.5公里内5所小学(直线距离),涵盖区重点四川北路第一小学;
中学:约1.6公里内6所中学(直线距离),1所市重点、2所区重点。一路之隔上海虹口二中心小学(在建中),约2.3公里市重点上海外国语大学附属外国语学校(直线距离)*施教区及就学政策以教育部门规划为准
越秀·外滩樾售楼处电话:400-8800-703
越秀·外滩樾营销中心热线400-880-0703(官方预约看房热线)
生态休闲:2.5公里北外滩滨江绿地(约800m直达),四川北路公园、和平公园、鲁迅公园3大公园环伺,于滨江和城市低密绿芯之间,肇启当代诗意生活传序。
越秀·外滩樾售楼处电话:4008800703【售楼中心热线】越秀·外滩樾营销中心热线400-880-0703越秀·外滩樾售楼处地址400-8800-703,楼盘项目全面介绍,本电话为开发商提供线上预约售楼电话,楼盘项目全面介绍(包含楼盘简介,均价,房价,现房,期房,别墅,叠墅,大平层,价格,楼盘地址,户型图,交通规划,备案价,备案名,项目配套,样板间,开盘时间,认筹时间,楼盘详情,售楼处电话,最新消息,最新详情,周边配套,一房一价,最新进展等详情咨询)楼盘详情丨价格丨更多优惠丨机不可失丨欢迎致电丨诚邀品鉴!售楼处位置丨特价房丨工抵房丨剩余房源丨户型图丨最新消息丨免责声明:将文章内容综合来源于网络、只作分享,版权归原作者所有!!如有侵权,请联系我们,我们第一时间处理如有问题欢迎来电咨询,专业一对一热情服务,让您用专业眼光去买房。如果您想了解更多楼盘详情,欢迎提前预约拨打越秀·外滩樾售楼处电话400-880-0703
一、房子抵押贷款的定义
房子抵押贷款,简单来说,就是借款人以自己名下或第三方名下的房产作为抵押物,向银行或其他金融机构申请的一种贷款方式。这种贷款方式相当于为贷款提供了一道额外的保障,使放款方更加安心,因此常被视为大额融资的理想选择。其优势主要体现在两个方面:一是额度高,通常可达房产评估价值的七成左右,使得借款人能够轻松应对大额资金需求;二是期限长,常见的贷款期限从5年到30年不等,从而有效地分散了每月的还款压力,使资金周转更加灵活自如。
二、抵押贷款的诸多益处
抵押贷款作为一种重要的融资方式,其好处不言而喻。首先,它能够帮助借款人迅速获得大额资金,满足各种紧急或长期的资金需求。其次,由于房产作为抵押物,放款方能够获得额外的保障,降低了风险,因此更愿意提供贷款。此外,抵押贷款的期限通常较长,使得借款人能够以较低的每月还款额来分散还款压力,从而更灵活地运用资金。最后,抵押贷款的利率相对较低,进一步减轻了借款人的负担。

(一)资金周转无忧
房子抵押贷款的魅力在于其能够迅速将固定资产转化为流动资金,从而解决资金周转的困境。无论是个人还是企业,在面临资金缺口或紧急情况时,都可以通过抵押房产来获取可观的贷款资金,助力计划顺利推进。特别是对于小微企业而言,房产往往成为其融资的重要资产。例如,一家小型加工厂在疫情冲击下,面临订单积压和原材料采购资金短缺的困境。然而,通过以厂房为抵押物,企业成功从银行获得贷款,顺利采购原料、扩充生产线,并按时交付订单,从而成功挽救了企业的命运。这样的案例不胜枚举,无数小微企业正是依靠房产抵押贷款渡过难关,迎来了发展的春天。
(二)利率优势显著
相较于信用贷款,房子抵押贷款在利率方面表现出显著的优势。由于房产抵押降低了银行的风险,因此银行能够提供更为亲民的利率水平。通常,银行的房产抵押贷款年利率在3.85%至5.8%之间,且对于资质良好的借款人,还有可能争取到更优惠的利率。以贷款100万为例,信用贷款的年利率可能高达10%,而房产抵押贷款的年利率仅为4%,这意味着利息支出将大幅减少。这样的利率优势不仅能够减轻借款人的还款负担,还能为借款人腾出更多的资金用于新的发展机会,实现财富的增值。
三、操作流程详解
接下来,让我们深入了解房子抵押贷款的操作流程。这一环节将详细介绍从申请到放款的每一个步骤,帮助您更好地理解和把握整个流程。

(一)贷前准备
在开始抵押贷款的申请之前,必须进行充分的准备。首要任务是明确贷款的具体用途,因为银行对此有严格的监管要求,仅限于装修、经营、教育等合规领域。若用于炒房或炒股,一旦被发现,不仅可能导致贷款被拒,还可能被金融机构列入黑名单。其次,准确评估自家房产的价值至关重要,因为地段、房龄、面积和装修等因素都会影响估值。建议参考周边房价或咨询房产中介以获取初步信息。此外,自查征信记录也是不可或缺的一环,因为这是金融活动的“身份证”。任何逾期或欠款记录都可能影响贷款的审批。最后,务必按照要求准备齐全所有申请材料,如身份证、户口本、结婚证、房产证和收入证明等,以确保申请流程的顺利进行。
(二)挑选贷款机构
市场上贷款机构众多,选择合适的机构对于贷款的成功至关重要。银行通常以资金雄厚、利率低廉和流程规范见长,但审批过程可能较为严格。相比之下,正规金融机构如信托和小贷公司可能提供更高的灵活度,放款速度也更快,但利率可能稍高。另外,网贷平台虽然申请便捷,但利率高且可能存在风险。因此,在选择时,应综合考虑自身情况,优先选择银行,并谨慎考虑其他正规途径。
(三)申请提交
申请过程可以通过线上或线下方式进行。线上申请通常通过银行APP或官网进行,操作简便且高效;而线下申请则需要直接前往银行网点,与客户经理进行面对面交流。在提交申请时,务必确保所填写信息和上传资料准确无误,任何细微的错误都可能导致审批延误。通常需要提交的材料包括个人身份证明、房产证明、收入证明以及征信报告等。
(四)房产评估
接下来是房产评估环节。这一步骤旨在确定抵押房产的市场价值,为贷款审批提供依据。评估过程可能涉及对房产的实地考察和与专业评估师的沟通。请注意,房产评估结果可能影响贷款额度和利率水平,因此确保房产的真实价值和市场状况得到准确反映至关重要。
专业评估机构对房产进行深入勘察,包括房屋面积、户型、装修、房龄等细节,同时参考周边同类房价,运用市场比较法、收益法等方法,科学计算出房产的公允价格。这个价格将直接影响贷款额度,住宅通常能贷到评估值的七成左右,而商铺、写字楼等商业房产的贷款额度则相对较低。如果您对评估结果有异议,有权申请复核,这可能为您带来更高的贷款额度。
接下来是银行的审核环节。银行将严格核查您的征信记录,评估您的信用状况;同时,审核您的收入情况,以确保您具备足够的还款能力;还会对房产进行再次核实,确保抵押物足值。在这一过程中,银行可能会通过电话等方式核实您提供的信息的真实性。一旦审核通过,贷款发放将指日可待。
放款环节同样重要。银行会将贷款资金转账至您指定的账户,经营性贷款可能需打给上下游合作商,而消费性贷款则直接给到您个人。在放款前,请务必仔细阅读合同条款,确保您完全理解贷款利率、还款方式、贷款期限以及违约责任等相关内容。如有任何疑问,务必向银行咨询清楚后再签字,以避免日后可能出现的纠纷。
四、注意事项早知道
(一)理性贷款,量力而行
贷款并非越多越好,而是需要依据个人的还款能力来合理规划。在申请贷款前,务必仔细盘算每月的收入和支出,确保有足够的生活费用,并合理规划剩余资金用于还款。避免盲目贷大额款项,以免每月还款负担过重,一旦资金链断裂,可能导致逾期、违约等不良后果,不仅影响个人征信,还可能面临房产被银行拍卖的风险。
(二)真实材料,诚信为本
在申请贷款时,务必提供真实、准确的材料。任何伪造或虚报的行为都可能被银行和金融机构的严格审核所揭穿。大数据和实地核查等手段将确保材料的真实性。一旦发现提供虚假材料,不仅贷款申请会被拒绝,还会被列入征信“黑名单”,影响未来的贷款和信用卡申请,甚至可能涉嫌诈骗,承担法律责任。因此,务必保持诚信,用真实的材料申请贷款,才是正道。
五、常见问题解答
在申请贷款的过程中,可能会遇到各种疑问和困惑。本部分将针对一些常见问题进行详细解答,帮助您更好地理解和应对贷款申请中的各种情况。

(一)关于房产产权的规定是什么?
房产产权的明晰是贷款申请的关键。通常,小产权房、未满五年的经济适用房以及军产房等由于产权受限,风险较高,因此银行往往不接受其作为抵押物。相比之下,商品房在产权方面通常较为明确,但若涉及纠纷或被查封,则无法进行抵押。此外,共有房产抵押时必须得到全体共有人的书面同意,否则抵押行为将无效,这旨在保护共有人的权益,避免未来可能出现的纠纷。
(二)贷款用途有哪些限制?
银行对贷款用途有明确的规定。消费贷款主要应用于装修、教育、医疗、旅游等合规消费领域。而经营贷款则必须用于企业生产、采购和运营活动。若贷款被用于炒房、炒股或投资理财等非合规领域,一经查实,银行有权提前收回贷款并可能加罚利息,因此务必确保专款专用。
(三)无法偿还贷款时该如何应对?
遇到无法偿还贷款的情况时,应积极与银行联系并说明情况。逾期还款会对个人征信产生严重影响,可能导致未来贷款和信用卡申请受限。银行通常会采取催收措施,如电话、短信提醒等,若仍无法还款,可能会采取法律手段。因此,在遇到困难时,建议提前与银行沟通,尝试协商延期还款、调整还款计划或申请转贷置换等解决方案,以避免逾期带来的不良后果。
六、结语
通过上述讨论,我们了解了房产产权对贷款申请的影响,以及银行对贷款用途的限制。在面临无法偿还贷款的困境时,与银行的积极沟通和协商显得尤为重要。希望这些信息能帮助您更好地理解贷款相关事宜,为您的财务规划提供有益的参考。

声明:本文由入驻焦点开放平台的作者撰写,除焦点官方账号外,观点仅代表作者本人,不代表焦点立场。
