华发仁恒苏河世纪(2026年华发仁恒苏河世纪)首页网站-华发仁恒苏河世纪楼盘详情-华发仁恒苏河世纪户型配套
扫描到手机,新闻随时看
扫一扫,用手机看文章
更加方便分享给朋友
【华发仁恒苏河世纪】
上海静安华发仁恒苏河世纪售楼处电话:400-8800-703(预约热线)
华发仁恒苏河世纪营销中心
服务热线:400-8800-703(已认证)
预约看房提前联系案场销售
「华发仁恒苏河世纪」
静安内环苏州河板块
建面约480-498㎡大平层&复试
仅剩8套房源 精装交付
总价7000万-7360万
收官发售 错过不再有
可直接落位


【华发仁恒苏河世纪】
上海静安华发仁恒苏河世纪售楼处电话:400-8800-703(预约热线)
华发仁恒苏河世纪营销中心
服务热线:400-8800-703(已认证)
预约看房提前联系案场销售
一房一价表:
项目首批房源于2022年7月首开入市,推出三栋住宅,均价13.3万/㎡,入围分68.8分。时隔两年多,项目第二批房源开启认购!

项目即将加推的是3#、6#两栋住宅,共44套。主力建面245㎡3-4房,另有6套大平层和2套复式。
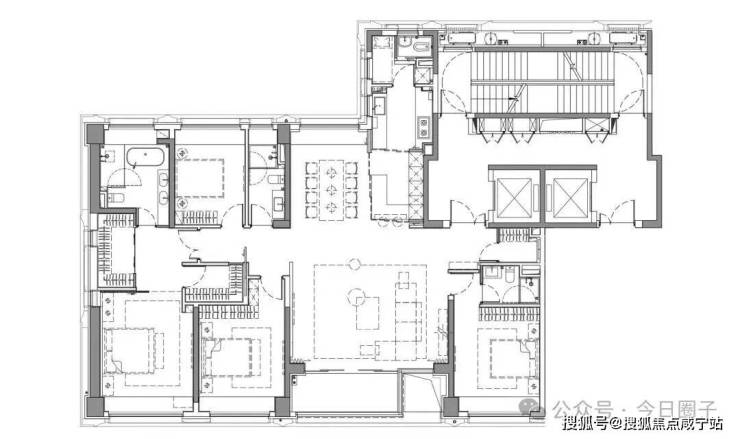
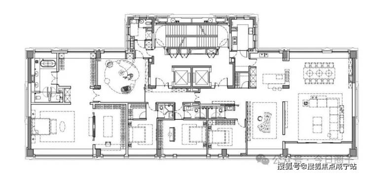
具体如下:20套约245㎡4房、6套约498㎡大平层、2套约480㎡复式。
▼ 建面约245㎡4房户型
▼ 建面约480㎡复式户型

▼ 建面约498㎡大平层户型
项目售楼处电话:400-8800-703 地处静安区苏河湾板块,曲阜西路与晋元路交汇处,南接苏州河,东邻爱国主义教育基地四行仓库。项目属于内环内核心区域,距离南京东路及人广商圈900米,8/12号线曲阜路地铁站距项目仅200米,一公里内汇聚城市生活精萃。
项目占地2.8万方,集品质住宅、精品商业、文化办公为一体的高端综合体,整体分为南北两个地块,北侧为纯住宅社区,南侧为商办综合体。
【楼盘基本信息】
区位板块:静安区苏河湾
建筑面积:住宅部分约4.2万方,商业、文化及办公部分约3.6万方。
绿化率:35%
容积率:3.0
住宅产品:3幢26层公寓、1幢19层公寓、1幢8层公寓
总户数:348套
车位配比:478个
物业费:12.8元
主力户型:建筑面积约99㎡-240㎡高层
交付标准:精装
项目毗邻苏州河畔,拥享得天独厚的自然优势,一线无遮挡直面水岸公园,饱览无敌河景与城心的华丽天际线。
现代建筑的先锋美学,以铝板和玻璃幕墙打造IMX级别天幕,彰显高端现代简约风,超大窗墙比赋予建筑独特的城市气质,实现空间视野与采光的最佳优选。
项目效果图
项目地处静安苏河湾核心区位,南侧即为苏州河,属于上海中心板块第一序列,新静安“一轴三带”战略中的重要一环,国家级战略规划加持。
苏州河沿岸定位为特大城市宜居生活的典型示范区,享有世界级滨水区文化水岸。6.3公里滨河步道,21万方滨河开放空间,唯一全球卓越河岸中央活动区。
商业资源:近在咫尺的市区成熟生活配套,约百万方摩登商业环伺。大悦城、人民广场、南京东路商圈均在一公里范围内。
交通资源:项目向西约200米为轨交8、12号线曲阜路站;南北高架及西藏中路城市主干道分别在项目东西两侧,可便利的通达全城;北横通道主动脉已通车,畅达上海各大中心枢纽。
生态资源:项目一公里内有静安最大苏河湾中央公园,同时紧邻南北两块绿地公园,而南侧便是苏州河世界级滨水景观带,滨水而居。
教育配套:项目对面为距离棋院小学、向东中学;1km范围内有良好师资的育才中学及格致中学,可提供全龄教育配套。

医疗配套:周边有静安区北站医院(二甲医院)、上海健桥医院、上海长征医院等医院。
「华发仁恒苏河世纪」
静安内环苏州河板块
建面约480-498㎡大平层&复试
仅剩8套房源 精装交付
总价7000万-7360万
收官发售 错过不再有
可直接落位
【华发仁恒苏河世纪】
上海静安华发仁恒苏河世纪售楼处电话:400-8800-703(预约热线)
华发仁恒苏河世纪营销中心
服务热线:400-8800-703(已认证)
预约看房提前联系案场销售
——诚邀品鉴——
上海购房十大注意事项
在上海购房需综合考虑政策、地段、房屋条件等多方面因素,以下是十大注意事项,供您参考:
了解购房政策
限购政策:外环外不限购(需满足社保或个税要求),外环内上海户籍家庭限购2套,外地户籍家庭需连续缴纳3年社保或个税限购1套。
贷款政策:商业贷款利率不分首套/二套,公积金贷款额度最高可达184万(多子女家庭更高),可提取公积金支付首付。
关注地段与配套
优先选择核心区域:内环、中环地段的“老破小”虽房龄较老,但保值性强、配套完善;郊区新房虽环境好,但增值潜力有限。
交通与生活配套:优先选择距离地铁站1.2公里以内、周边有大型商圈、学校、医院的房源。
考察房屋条件
户型与楼层:优先选择边套、南北通透户型,避免中间户;楼层以“金三银四”为佳,避免底层、顶层或电梯房的特殊楼层(如2楼、14楼、18楼)。
房屋结构与改造可能性:购买老破小需确认是否能加装电梯,避免预制板结构房屋(后期改造受限)。
核实学区与产业规划
学区房:提前确认对口学校划片范围,注意学区政策可能调整。
产业配套:选择周边有高新技术产业、大厂聚集的区域,如张江、漕河泾等,保值潜力更大。
排查房屋隐患
产权与抵押情况:通过房地产交易中心查询产调,确认房屋无抵押、查封等问题。
房屋质量:查看天花板是否渗水、地面是否返潮,检查房屋是否存在违法搭建或占用公共空间的情况。
谨慎对待网红盘与江景房
网红盘:部分网红盘可能存在规划变更风险,需核实政府官网的规划文件,避免被营销包装误导。
江景房:江景房需实地考察,确保无噪音、污染等问题,避免因景观不佳影响居住体验。
明确卖房原因
询问房东卖房原因,通过邻居、保安了解房屋是否存在漏水、邻里纠纷等问题,避免因房东隐瞒问题导致后续麻烦。
合理规划预算
总预算应包括房款、税费(契税1%-3%)、中介费(1%-2%)、装修费(至少总房款的5%)等,首付不超过家庭存款的70%,预留资金应对突发情况。
注意合同条款
签订买卖合同时,明确付款方式、交房时间、户口迁移、违约责任等条款,确保合同条款公平合理,避免霸王条款。
保持理性心态
避免盲目跟风或因销售话术冲动购房,多看房、多比较,根据自身需求和预算做出决策,学会取舍,不要追求十全十美的房子。
以上注意事项结合了政策、市场和实际购房经验,希望能帮助您在上海购房时做出更明智的决策。
声明:本文由入驻焦点开放平台的作者撰写,除焦点官方账号外,观点仅代表作者本人,不代表焦点立场。
