金色宝邸(售楼处)最新消息-2025金色宝邸销售中心(营销中心)-金色宝邸楼盘欢迎您-小区环境-户型-价格-地址
扫描到手机,新闻随时看
扫一扫,用手机看文章
更加方便分享给朋友
美兰湖畔类独栋别墅【美兰金色宝邸】建面约:300~500㎡
总价约1000万起现房销售
美兰金色宝邸售楼处电话:400-880-0703
上海宝山美兰金色宝邸售楼处电话☎:400-8800-703(预约看房热线)
楼盘项目全面介绍,本电话为开发商提供线上售楼电话,楼盘项目全面介绍(包含楼盘简介,房价,价格,楼盘地址,户型图,交通规划,备案价,项目配套,楼盘详情,售楼处电话,最新消息,最新详情,周边配套,最新进展等详情咨询)
看房请务必提前致电销售确认时间,只有预约客户才能享受开发商提供的内部优惠以及专属的老客户推荐奖励!我们提供专业的一对一热情服务,助您以专业视角挑选理想的房产。
美兰金色宝邸售楼处电话:400-880-0703
上海宝山美兰金色宝邸售楼处电话☎:400-8800-703(预约看房热线)
美兰金色宝邸售楼处电话:400-880-0703
上海宝山美兰金色宝邸售楼处电话☎:400-8800-703(预约看房热线)
项目详情
开发商:上海顾村房地产开发(集团)有限公司
板块:宝山罗泾
地址:罗泾镇潘沪路188弄
类别:类独栋别墅
房屋类型:住宅(产权70年)
总占地面积:47442㎡
总建筑面积:91899㎡
容积率:1.3
绿化率:40.5%
物业公司:上海顾村物业管理有限公司
物业费:3.50元/㎡/月
交房时间:现房
交房标准:毛坯
在售面积约:330-500㎡
销售价格:总价1000万起
美兰金色宝邸售楼处电话:400-880-0703
上海宝山美兰金色宝邸售楼处电话☎:400-8800-703(预约看房热线)2020年的大数据,总供应66076套房源,其中联排只有2714套,联排占比仅4.1%,联排占别墅总供应比例猛降近24%,同时2020年只有49个项目有联排产品推出,其中8成项目供应不足百套。
2019年供应4177套,成交4874套;
而到了2020年,供应2714套,成交4444套,严重供不应求!
而以上数据中,大部分成交房源仍是存量联排,限墅令之后,别墅用地越来越少,
市面上的全新联排作品基本卖一套少一套,
将来想要再买只能去二手寻觅,
那时置业成本又将“大幅增长”。
美兰金色宝邸售楼处电话:400-880-0703
上海宝山美兰金色宝邸售楼处电话☎:400-8800-703(预约看房热线)我们把眼光聚焦到东上海:中心七区(外环内)+宝山+浦东,
2020年至今,一共推出了86套联排别墅,其中:
60套联排别墅是浦东碧云国际社区——碧云尊邸,总价约3500万起,这个总价把一大批想买别墅的客户拒之门外。
26套联排别墅分别来自宝山、老南汇的两个项目,最小147平起,总价不低于1000万。
而如今,整个东上海,新房联排别墅供应:0
也就是说,东上海的小伙伴,如果想要买有天有地有花园有露台的真别墅,只能去供应比较多的西上海。
比如说青浦的朱家角、金山等地,价格价格也不便宜。
但说实话,从杨浦、宝山、浦东出发去这些地方,不比去一趟外地近。
从2020年别墅的成交情况来看,也可以看出一点端倪:千万级以上的别墅已经成为上海NO.1成交主力。
从去年上海成交的住宅土地来看,
近7成地块容积率都在1.6以上,
未来也将越来越难得,入手门槛也会越来越高,购买都的竞争也会越来越激烈。
美兰金色宝邸售楼处电话:400-880-0703
上海宝山美兰金色宝邸售楼处电话☎:400-8800-703(预约看房热线)从上海房价分布来看,环人民广场直径约25公里范围内,曾经作为价值洼地担当的松江、青浦等新城梯队,区域均单价都已突破4万。
而从距离人民广场约30KM距离来讲,像唐镇、徐泾板块,高层的价格已经突破6万/㎡,更有甚者如唐镇三兄弟的二手挂牌核验价已经攀升至12万/㎡,浦江板块目前均价都在5.5+万/㎡。
而美兰金色宝邸,联排别墅,建筑面积约300㎡,实际使用面积约500㎡,单价才约3.5万/㎡,总价约1000万起,性价比不言而喻!
美兰金色宝邸售楼处电话:400-880-0703
上海宝山美兰金色宝邸售楼处电话☎:400-8800-703(预约看房热线)上海“2035规划”明确提出,上海要主动服务“一带一路”建设、长江经济带发展,主动融入长三角区域协同发展。宝山作为长三角枢纽存在,被纳入主城区,开启新一轮时代红利,以北郊未来产业园为转型驱动,致力打造北上海新兴产城中心,城市资源全面升级。
随着“2035”战略规划定调,北郊迎来交通焕新,形成“二纵一轨”立体交通。S7沪崇高速的一期在建、沪太路快速化将促进交通路网的焕新升级;规划中运量交通接驳轨道交通7号线,实现快速通达市区。
美兰金色宝邸售楼处电话:400-880-0703
上海宝山美兰金色宝邸售楼处电话☎:400-8800-703(预约看房热线)上海北郊未来产业园是浦东金桥股份与宝山工业园区合作的科技产业园项目,承载区域产业转型任务,助力打造“上海制造”品牌,着力推动机器人、高端装备、关键智能部件等领域的研发和产业化。智能制造、新材料、移动互联网和健康产业等四大产业将成为支柱产业。
罗泾处于上海市北部,是宝山区城市建设区及上海国际航运中心的组成部分,
规划以一核:罗泾公园为生态核心
二轴:以陈功路、罗宁路为城镇发展轴
三带:荻泾河、小川沙河、陶家河绿化景观带环绕,建设成为以中高档居住为主体,融行政办公、商业服务、文化教育、休闲娱乐等多元功能为一体的水韵生态城。
美兰金色宝邸,正处于一核、二轴、三带的核心交集,中心区位天然优越,尽享城市发展黄金轴线带来的便捷生活及无限价值。
美兰金色宝邸位于宝山罗泾板块,由上海顾村房地产开发,项目北临陈功路、南临潘沪路、西临商业地块、东临天然河流——小川沙河。
项目占地面积约4.7万㎡、建筑面积约9.2万㎡、绿化率高达40%、容积率仅0.9,小区由4幢小高层和55栋联排别墅组成,共592户。
美兰金色宝邸售楼处电话:400-880-0703
上海宝山美兰金色宝邸售楼处电话☎:400-8800-703(预约看房热线)目前小高层已全部售罄,仅剩36套建面约300-317㎡的联排别墅在售,地上3层,赠送地下1层,使用面积约500㎡,总价约1043-1141万,款清交付。
小区建筑采用经典优雅英伦风格,近邻115亩罗泾公园仅500米,不仅饱览自然风光,更如同拥有一个天然大氧吧,时时刻刻空气清新。
美兰金色宝邸小区内种植有名品植株,小区以集中绿化将各单体建筑有机地串连成一体,力求将环境优势与每栋建筑相结合,确保了户户有景。
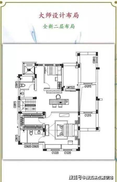
在售户型图赏鉴↓↓↓
美兰金色宝邸售楼处电话:400-880-0703
上海宝山美兰金色宝邸售楼处电话☎:400-8800-703(预约看房热线)
美兰金色宝邸售楼处电话:400-880-0703
上海宝山美兰金色宝邸售楼处电话☎:400-8800-703(预约看房热线)
样板间赏鉴↓↓↓
美兰金色宝邸售楼处电话:400-880-0703
上海宝山美兰金色宝邸售楼处电话☎:400-8800-703(预约看房热线)
美兰金色宝邸售楼处电话:400-880-0703
上海宝山美兰金色宝邸售楼处电话☎:400-8800-703(预约看房热线)
周边配套
美兰金色宝邸售楼处电话:400-880-0703
上海宝山美兰金色宝邸售楼处电话☎:400-8800-703(预约看房热线)项目位于罗泾镇中心区,周边配套成熟,罗泾中学、罗泾镇卫生服务中心仅一河之隔,周边成熟小区林立,项目西侧地块系规划商业地块,坐享城市便捷生活。
地铁方面:离项目最近的二条地铁是7号线美兰湖站(约10.5KM)、1号线富锦路站(约15.5KM)、距离都非常远。但项目附近有规划的T1罗罗线,这是一条将兼顾罗店镇-北郊未来产业园-罗泾镇的中运量轨交,未来将无缝衔接轨交7号线美兰湖站。
自驾:项目紧邻陈功路和罗宁路,可接驳:蕴川公路、沪太公路、宝钱公路、沪崇高速、上海绕城高速、外环高速等上海主干道,可快速到达上海各各个热门商圈,尽享便捷出行的悠享生活。
美兰金色宝邸售楼处电话:400-880-0703
上海宝山美兰金色宝邸售楼处电话☎:400-8800-703(预约看房热线)公交方面:潘沪路罗宁路(281米)、潘泾路潘沪路(330米)、罗宁路潘沪路(400米)、宝虹家园(464米)、潘泾路陈川路(507米)、罗宁路陈川路(589米)
教育方面:罗泾镇第二幼儿园(步行约430米)、罗泾镇中心幼儿园(步行约970米),罗泾中学(步行约660米)、罗泾中心小学(步行约1.3KM)、民办肖泾小学(步行约2.0KM)等
美兰金色宝邸售楼处电话:400-880-0703
上海宝山美兰金色宝邸售楼处电话☎:400-8800-703(预约看房热线)商业配套:世纪华联潘沪店NO.2023(117米)、宝山区宝雄杂货店(133米)、如海超市(飞翔店)(148米)、良友金伴(潘沪路)(198米)、光明便利(潘沪店)(208米)、百新杂货店(217米)
医疗方面:罗泾镇卫生服务中心(步行约370米)、宝山区罗店医院(步行约8.7KM)、美兰湖妇产科医院(步行约10.0KM)等大型医院,能够为您和家人提供全方位的健康保障。
附近银行:上海农商银行陈行分理处(969米)、上海农村商业银行(罗泾支行)(973米)、上海农商银行ATM(973米)、上海农村商业银行ATM(罗泾支行)(974米)、中国邮政储蓄银行(罗泾支行)(986米)
生态休闲:罗泾公园(东南门)(441米)、罗泾公园(451米)。
一房一价表(部分房源已售)↓↓↓
美兰金色宝邸售楼处电话:400-880-0703
上海宝山美兰金色宝邸售楼处电话☎:400-8800-703(预约看房热线)
美兰金色宝邸售楼处电话:400-880-0703
上海宝山美兰金色宝邸售楼处电话☎:400-8800-703(预约看房热线)
楼盘项目全面介绍,本电话为开发商提供线上售楼电话,楼盘项目全面介绍(包含楼盘简介,房价,价格,楼盘地址,户型图,交通规划,备案价,项目配套,楼盘详情,售楼处电话,最新消息,最新详情,周边配套,最新进展等详情咨询)
看房请务必提前致电销售确认时间,只有预约客户才能享受开发商提供的内部优惠以及专属的老客户推荐奖励!我们提供专业的一对一热情服务,助您以专业视角挑选理想的房产。
上海买一手房必看!材料税费清单全梳理
想要买房的朋友们注意了
想在上海买套属于自己的新房
可不是攒够首付就能闭眼冲
从限购资格到贷款额度
从摇号规则到税费减免
政策里藏着不少门道
今天就带大家了解在上海
购买一手房需要准备哪些材料
需要支付哪些税费
问
需要准备的材料
1
户口簿/户籍证明
需要原件+复印件2份
①户口簿整本复印,页码连续,复印至第一页空白页
②户口簿上的婚姻状况须与实际情况一致,否则需至派出所更新
③户口簿上未成年小孩,若无法直接判断出不是认购人子女,需提供该未成年小孩出生证明
④若为丧偶,如果户口簿婚姻状况没有体现“死亡”或“丧偶”,需提供死亡证明
⑤户籍证明需体现户籍证明号
⑥集体户口需提供户主页,若无法提供原件,复印件需至派出所盖章
2
身份证明
需要原件+复印件5份
①所有家庭成员(单身/已婚家庭+未成年子女)身份证明,正反面复印在同一页,一页仅限1人
②香港(香港身份证及回乡证)、澳门(澳门身份证及回乡证)、台湾(大陆往来通行证)、外籍(护照:照片页、签证页、签名页,需提供翻译件)
3
结婚证或离婚证明
需要原件+复印件2份
①所有婚姻证明材料需为带章的原件
②结婚证/离婚证,需整本复印
③离婚证明:离婚证及离婚协议、民事调解书、法院判决书及生效告知书三选一
④若有过离婚史需提供离婚证明(若有多次离婚史,需提供多次离婚证明)
⑤结婚证或离婚证上姓名、出生年月与身份证信息不符,需至有关部门更新为最新并一致状态
⑥三年内离婚人士若离婚协议涉及房产(土地性质为集体和商业性质除外),需是明确分割清楚的,否则需提供补充协议
⑦国外结婚证需提供翻译件,并由大使馆认证;若国外结婚证显示的证件号码与认购登记时出具的证件不一致,还需提供其他证明材料,例如出入境证明等
4
未成年子女出生证(若有)
需要原件+复印件2份
①未成年子女出生日期在结婚证日期之前的,需至街道计生办开具“未婚先孕证明”
②未婚生育需开具相关证明
③国外出生证需提供翻译件,并由大使馆认证
5
不动产登记证/房产证/预告登记证/
网签合同/征收补偿安置协议
需要原件+复印件2份
①整本完整复印(产证如有附图页,原始状态及展开状态均需完整复印,产证附图如以二维码形式展现,二维码原始状态复印,二维码扫出的附图打印)
②沪籍认购人2011年1月31日前与父母共同共有,不在限购范围内的房产,若因房产变更导致现产证日期在限购政策后,除提供产证外,还需至房产交易中心调阅其原始记录,并提供与父母的关系证明
③5年内通过赠与方式转让的房产必须申报,同时需提供房产交易中心出具的该房产历史赠与记录
6
产调
需要原件+复印件2份
①认购人及家庭成员(配偶)都要提供,名下无房也要提供
②房屋所在地房地产交易中心提供的盖章原件或随申办“市民云APP”查询结果的“个人不动产登记信息查询记录(现状)”截图彩色打印
7
上海市社保或税单(若为非本市户籍)
需要原件2份
①必须是第一认购人的社保/税单,且必须是上海本市的
②外省市户籍提供认购截止日往前推63个月累计满60个月;境外提供认购截止日往前推1年
③税单缴税类型为“工薪所得”或“劳务所得”,60个月累计纳税金额需满1万元
8
劳务合同及工作类居留许可证
(若为港澳台及境外)
需要原件+复印件2份
①劳务合同时效需覆盖至认购截止日往前推1年的劳务合同
②劳务合同复印件加盖公司公章以骑缝章(都是红章)
③社保/税单缴纳的公司需与劳务合同上的公司保持一致,若社保/税单上无法体现公司名称,需提供劳务合同公司与社保/税单缴纳公司一致的证明
9
资金、存款类证明
需要原件+复印件2份
①认购金银行卡务必提前开通大额刷卡支付功能,避免因限额而影响认购
②支付认购意向金的银行卡原件必须是第一认购人名下,在上海开户的借记卡,卡背面签名栏需持卡人签名
③认购金银行卡正反面复印在同一页上,写上卡号、开户行(具体到某分行/支行)、持卡人姓名及手机号
④支付认购意向金的银行卡权属证明需体现持卡人姓名及卡号
⑤存款证明/资金冻结证明必须为第一认购人名下
⑥资金冻结证明需是开发商指定银行支行出具;
⑦资金冻结证明存款金类型仅限现金活期存款
⑧资金冻结证明(活期)的周期不得少于30天到45天(以开发商公告为准),资金冻结证明原件将于选房次日后归还
⑨参照银行认房认贷口径认定的首套或二套房首付比例
⑩上述冻结资金金额均不包含认购意向金
⑪资金冻结证明冻结起始日为认购材料公示期至认购截止日期间任意一天,资金冻结证明冻结截止日为不早于认筹时间
⑫如意向认购客户无法提供符合首套房资格的有效证明,一律以二套房论处
⑬资金冻结证明将由相关银行机构验证真伪,是否有限以银行判定为准,如有伪造,一经发现,将追究当事人的法律责任
10
征信报告
需要原件2份
①有效期为1个月以内,需显示个人住房类贷款记录
②所有认购人及其家庭成员(配偶)的征信报告都需提供
③如无法提供征信报告,则均需按照二套提交资金冻结证明
注
特殊情况补充材料
1、军人
现役军人
《部队政治工作部证明》原件
《军官证》复印件
退役军人(自主择业)
退役军人事务管理局开具的证明,原件
《军人退役证》复印件
退役军人(同一安置)
单位证明,原件
《军人转业证》复印件
消防救援人员
军人退役基本养老保险参保缴费凭证,原件
军人退役基本养老保险关系转移续接信息表,原件
在职证明,原件
2、博士后
博士毕业
《硕士毕业证书》复印件
《博士毕业证书》复印件
教育部学历证书电子注册备案表,原件
教育部学籍在线验证报告,原件
注意:硕博连读提供研究生院转博证明,原件
博士后毕业
《博士后证书》复印件
出站证明
3、镇保
镇保人员在职
城镇职工基本养老保险交费情况,原件
养老保险个人权益记录单,原件
镇保人员退休
社保中心出具的缴纳轨迹证明,原件
养老金核定表,原件
4、协保人员
社保中心出具的缴纳轨迹证明,原件
养老金核定表,原件
问
需要支付的税费
1
契税
根据房屋面积和购房者情况缴纳
契税税率:
1. 首套房
面积≤140㎡:1%
面积>140㎡:1.5%
2. 第二套住房:
面积≤140㎡:1%
面积>140㎡:2%
3. 第三套及以上住房或企业购房:
无面积限制,统一按3%
2
印花税
房屋成交价格的0.05%
3
增值税
根据房屋年限和是否是普通住宅,税率有所不同。一般情况下,增值税率为房屋成交价格的5.3%
问
关于限购
Q:非本市户籍居民家庭以及单身人士购买外环外住房的,连续1年社保或个税单是否可断缴或补缴?(不含崇明区)
A:可以断缴,需满足网签前15个月内在沪正常缴纳满12个月的社保或个税单。
Q:非本市户籍单身人士在崇明区购买住房的要求是?
A:非本市户籍单身,需符合在崇明区正常缴纳的社保或个税单,满足网签前15个月内在沪正常缴纳满12个月的社保或个税单。
Q:非本市户籍居民家庭在崇明区购买住房的要求是?
A:非本市户籍居民家庭,需满足网签前15个月内在沪正常缴纳满12个月的社保或个税单。
Q:非本市户籍居民所购住房在外环内的,社保或者个税单的要求是什么?
A:所购住房在外环内的,需满足网签前39个月内在沪正常缴纳满36个月的社保或个税单。
Q:持《上海市居住证》且积分达到标准分值、在本市缴纳社会保险或个人所得税满3年及以上的非本市户籍居民家庭在购买住房套数方面享受沪籍居民家庭的购房待遇。需满足的条件是什么?
A:是的。①非本市户籍居民家庭,不包含单身人士,②持有在有效期内的《上海市居住证》,③积分达到120分且在有效期,④网签前39个月内在沪正常缴纳满36个月的社保或个税单。
Q:非本市户籍单身人士持有上海市居住证且满足120积分和社保或个税单满3年,否能买外环内一手房?
A:非本市户籍单身人士不可以,只针对非本市户籍居民家庭。
Q:持《上海市居住证》且积分达到标准分值、在本市缴纳社会保险或个人所得税满3年及以上的非本市户籍居民家庭在购买住房套数方面享受沪籍居民家庭的购房待遇。若非本市户籍居民在限购政策前同父母共有住房,是否可以剔除?
A:符合条件的可以剔除。例如:非本市户籍AB家庭,A条件满足,限购前同父母有房,则可剔除(≤2套),B不满足则不可剔除。
Q:多子女购房政策对子女的年龄要求?
A:多子女家庭定义:家庭中有至少有2个子女,其中至少有1个子女是未成年。如2孩家庭,可以一个成年,一个未成年,即符合多子女家庭政策。
Q:持《上海市居住证》且积分和社保/个税单满足条件的非本市户籍居民多子女家庭,可购买几套?
A:可购买3套。
Q:在自贸区临港新片区实施更加差异化的购房政策,对在新片区工作、存在职住分离的群体,在执行现有住房限购政策的基础上,可在新片区增购1套住房。如何理解?
A:在新片区增购1套住房的前提需满足在临港新片区工作,经临港管委认定符合后,名单流转交易中心,办理交易过户。
Q:9.29出台的本市房地产市场政策在购房资格上境外及港澳台人士是否享受?
A:境外及港澳台人士按原购房政策执行
声明:本文由入驻焦点开放平台的作者撰写,除焦点官方账号外,观点仅代表作者本人,不代表焦点立场。
