国贸海上原墅首页网站-国贸海上原墅售楼处电话-国贸海上原墅楼盘详情-交房时间-地址-最新房价户型图-小区环境-楼盘详情-交房时间-周边配套-售楼处电话
扫描到手机,新闻随时看
扫一扫,用手机看文章
更加方便分享给朋友
上海「国贸·海上原墅」售楼处电话☎:4008-800-703(预约热线)✔✔✔
如有问题欢迎来电咨询,专业一对一热情服务,让您用专业眼光去买房。
国贸·海上原墅售楼处电话☎:4008-8007-03【售楼热线】✔✔✔营销中心热☎4008-800-703售楼处地址☎400-8800-703
低密宅地稀缺,别墅新房供应自然缩减。
在2022年上海还有2437套通勤时间可控的联排产品入市(排除崇明、金山、临港等极端偏远地区,下同),2023年锐减至1425套,2024年则只有1258套,占比新房供应总池子仅约2%,百里挑二的改善机遇!
不过万物皆有裂缝,那是光透进来的地方,在形势如此严峻的背景下,四千年文脉胜地,松江广富林正对门,惊现容积率仅约1.2墅级社区,一批次首开入市,累计认购229组,认购率188%,并触发积分!在市场上掀起一波改善热潮!

2024年5月28日上海第二批次土拍中,国贸&松江交投以26.98亿元摘得该地块,成交楼面价28000元/㎡,溢价率0%。
项目四至东至辰晓路,西至龙源路,南至广轩路,北至骏安路。
项目售楼处电话:400-8800-703容积率1.2,占地面积约8.03万方,计容面积约9.64万方;保障房占比5%,类型为公共租赁住房;中小套户型不得低于总住宅建筑面积的30%,全装修比例50%!指导价6.3万/㎡,装标要求不低于2500元/㎡!

广富林,有着4000年的历史,是上海最为悠久、最为独特的土地,诞生于这片土地的豪宅作品,自当成为一个时代的图腾。
海上原墅,与广富林文化遗址仅一路之隔,以“屋宇对望”的姿态,将人居嵌入广富林文化遗址、郊野公园、辰山植物园和佘山国家森林公园组成的城市生态圈内。
周边松江大学城、松江印象城、华东政法大学松江实验学校……自然与人文交织,繁华与静谧兼备,是松江天赋异禀的“墅居珍藏地”。
2012年“限墅令”以来,上海容积率1.0以下的住宅绝迹。近三年,上海容积率1.2以下的低密宅地仅18块,占市场总量不足7%!(信息来源:数据来自上海土地官网公示)广富林板块,只此海上原墅,堪称“城市绿洲中的低密稀品”。
「国贸海上原墅售楼处电话:400-8800-703」,因地制宜融入广富林文脉,塑造了全新的“新江南学院派”风格建筑。

效果图,仅供参考
外立面方面,项目汲取广富林文化精髓再造东方屋宇,采用渐暖色石材、银灰色及香槟色铝板和涂料的组合,带来厚重与轻盈的平衡,在彰显文化豪宅的同时又包含国际风骨,整体呈现诗意东方之美。

效果图,仅供参考
社区景观方面,项目以"富林风华,十景多花园"为核心理念,通过现代设计语言重构《富林十景》的山水意象,将 "山、水、茶、酒、舟、市" 等江南文化符号有机融入空间序列,营造 "一步一景,移步异景" 的沉浸式归家体验。

上海「国贸·海上原墅」售楼处电话☎:4008-800-703(预约热线)✔✔✔
如有问题欢迎来电咨询,专业一对一热情服务,让您用专业眼光去买房。
国贸·海上原墅售楼处电话☎:4008-8007-03【售楼热线】✔✔✔营销中心热☎4008-800-703售楼处地址☎400-8800-703

效果图,仅供参考
国贸海上原墅售楼处电话:400-8800-703作为广富林溯源之作,打造诗意会所空间,包含泳池、咖啡厅、私宴厅、下沉庭院、健身房等功能。并且引入黑松、山石、景墙、草坪等人文自然资源,呈现一处充满国风艺术感的社交场!

效果图,仅供参考

效果图,仅供参考
效果图,仅供参考
还有一点更重要的原因,它是由深耕松江的双国企联袂钜制,更懂这片土地的基因!
国贸地产:国贸控股“世界500强”多元化经营背景,辐射全国的战略布局,与城市共生长,海洋生活美学大师;入沪十余载,打造国贸璟上、佘山原墅、国贸天悦等多个经典项目。
松江交投:松江交投为松江本土政府企业,为松江交通事业和经济社会协调可持续发展做出巨大贡献,助力G60科创走廊发展成为长三角一体化国家战略的重要平台。
强强联合,缔造一座无法复刻的孤品之作!

产品方面,项目的容积率只有1.2,洋房包围在外围,其次是叠加,联排在社区中心位置,整体低密氛围的同时,形成错落有致的层次感。
洋房
叠拼
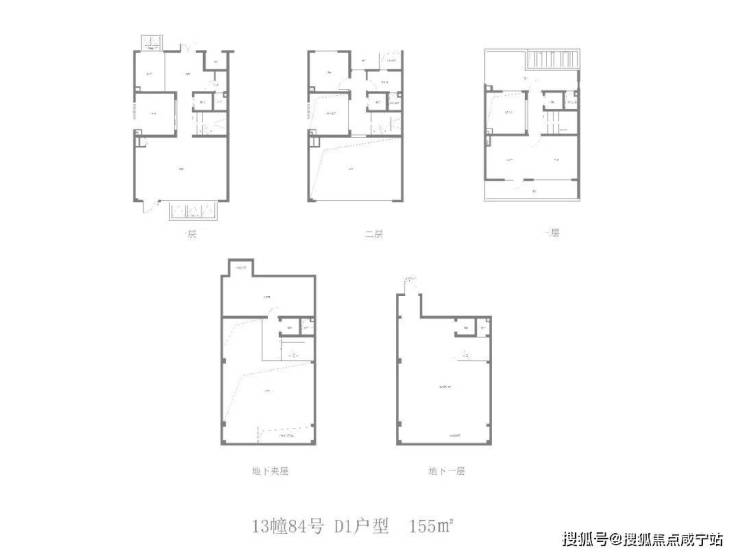
联排
板块方面
中国人骨子里的居住理想,总是与山水相依。
山,是沉稳的依靠,是千年文脉的沉淀;水,是灵动的韵律,是生生不息的流淌。国贸海上原墅,北倚佘山,南临广富林湖,恰好承载了这份流淌在血脉里的东方浪漫。
佘山的苍翠,是自然的屏障,更是历史的见证。漫步山间,仿佛能听见松涛低语,与古人隔空对话。而广富林的一泓碧水,则映照着千年文化的影,湖波荡漾间,是江南的诗意,也是现代生活的静谧。


站在国贸海上原墅售楼处电话:400-8800-703西望,是自然的诗意。 佘山国家森林公园的苍翠林海,辰山植物园的四季花事,广富林郊野公园的田园野趣——推窗见绿,漫步即景,呼吸间尽是草木芬芳。这里,是都市里的桃源,让心灵随时栖居在山水之间。
东向,是城市的温度。 印象城的时尚潮流、9号线地铁的便捷通达、万达广场的熙攘烟火,举步间便可拥抱繁华。咖啡香、书页声、霓虹闪烁,现代生活的丰盛与活力,在此触手可及。
在国贸海上原墅,一半公园,一半烟火,无需取舍,而是兼得。

众所周知,先有松江府,后有上海滩;先有广富林,后有松江府。广富林,是被誉为“上海之根”的文明发源地。
国贸海上原墅售楼处电话:400-8800-703西侧一路之隔就是广富林文化遗址,脚下,是四千年的文明回响。 国贸海上原墅承袭这份文化基因,让建筑与文脉共生,为当代生活注入历史的深邃底蕴。
而项目的南面松江大学城7所高校如星辰汇聚,十余万师生在此激荡思想——这里是人才的熔炉,创新的策源地。更与G60科创走廊共振,人工智能、生物医药、量子科技等前沿产业在此蓬勃生长,科技之光正重塑时代的天际线。

交通方面
项目距离9号线松江大学城站步行与4.2公里左右,距离较远,这也是松江新城一直存在的一个问题,日常出行基本只能依赖自驾!
商业方面
项目步行范围内目前没有什么商业配套,然后2.7公里左右有松江印象城,4.5公里左右有万达广场等商业,可完全满足日常丰富的消费需求;
教育方面
项目南侧紧邻华东政法大学附属松江实验学校,对口的概率很大,未来小朋友上学可能会很方便,算是一个优势!(期房不承诺学校对口,仅做参考)
上海「国贸·海上原墅」售楼处电话☎:4008-800-703(预约热线)✔✔✔
如有问题欢迎来电咨询,专业一对一热情服务,让您用专业眼光去买房。
国贸·海上原墅售楼处电话☎:4008-8007-03【售楼热线】✔✔✔营销中心热☎4008-800-703售楼处地址☎400-8800-703
声明:本文由入驻焦点开放平台的作者撰写,除焦点官方账号外,观点仅代表作者本人,不代表焦点立场。
