2026一文读懂陆家嘴中国石化大厦优缺点!分析一下中国石化大厦值得买吗?
扫描到手机,新闻随时看
扫一扫,用手机看文章
更加方便分享给朋友
一、项目简介
区位:
二、立体轨交路网
项目位于陆家嘴北滨江豪宅区域板块,高端生活圈,民生路与浦东大道交界处,距陆家嘴核心区仅2公里。周边有4条轨道交通:环线4号线浦东大道站,6号线民生路站,14号线(黄金线)以及18号线昌邑路站。
2座跨江大桥:杨浦大桥,南浦大桥3条轴心大道:浦东大道,世纪大道,滨江大道。6条过江隧道:延安路隧道,江浦路隧道,复兴路隧道,人民路隧道,大连路隧道,新建路隧道。
🛍🛍繁华商业荟萃
项目隔壁就是(在建)太古里和滨江光合新座步行5分钟,三公里范围内国金中心、正大广场、第一八佰伴、置地旭辉、源深体育中心、联洋大拇指等供你选择。
🏥🏥医疗配套
东方医院,仁济医院,上海浦滨儿童医院为您的健康保驾护航。
💒💒名校林立
公立福山外国语,上海交大附属中学浦东实验高中,建平香梅中学,洋泾中学南校;私立上海民办福山正达外国语小学,国际上海德威英国国际学校,上海纽约大学,上海协和国际学校等都在附近,教育配置雄厚。
🔥开发商:中石化集团
🔥物业公司:港联物业
🔥在售:2套高区(含产权车位)
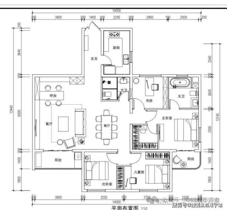
🏡面积:179.18㎡
💰价格: 650-680万
🔥拿地:1995年,骏工1999年
🔥水6元/吨,电0.79元/度,燃气4.39元/立方
🔥物业费:4.18元
🔥得房率:80%
🔥总层:29层
🔥层高:3米
🔥梯户比:2梯4户、户型方正全明
🚗停车:临停10元/小时,500/月
🔥交付标准:现状
🔥独立上下水💧
—————————————————
1.西南04室毛胚看三件套,送车位仅售680万
2.东南03室精装修,650万

声明:本文由入驻焦点开放平台的作者撰写,除焦点官方账号外,观点仅代表作者本人,不代表焦点立场。
