2026一文读懂华润华发时代之城优缺点!分析一下时代之城值得买吗?
扫描到手机,新闻随时看
扫一扫,用手机看文章
更加方便分享给朋友
【开篇:一个"六边形战士"的自我修养】
在上海楼市,有一个项目被称为"全维度领先的六边形战士"。它不是最贵的,也不是位置最核心的,但它在地段、交通、商业、产品、配套、价格六个维度都做到了同级别的最优解。它就是华润华发·时代之城。
2024年6月首开以来,时代之城累计推售超1500套房源,多次创下"开盘即罄"的纪录。在竞争激烈的500万+市场,它凭什么能持续霸榜?答案就藏在它的产品力里。实景图,仅供参考

【央企联袂:品质的双重保障】
时代之城由华润置地与华发股份两大央企联合开发。这两家房企的履历,就是品质的保证。
华润置地,上海造城专家。从静安府到苏河湾,华润置地在上海打造了多个标杆项目,其"精工品质"早已深入人心。华发股份,珠海龙头国企,在高端住宅开发领域同样经验丰富。
两大央企的联袂,意味着资金安全、品质保障、交付无忧。在当前的市场环境下,这四个字的价值,懂行的人都明白。实景图,仅供参考

实景图,仅供参考
健身区域,业主在楼下就能满足基础的健身需求.....设施丰富的儿童区,下班之余,可以陪着孩子一起嬉戏游玩,妥妥的“别人家的会所”。

实景图,仅供参考

【建筑美学:识别度与质感兼具】
时代之城的建筑立面,采用了现代简约风格,以大面积玻璃幕墙搭配金属线条,在阳光下呈现出通透的质感。这种设计不仅美观,更保证了室内的采光与视野。
社区规划上,约30万方的大体量,让开发商有空间打造低密宜居的居住环境。高层与叠墅分区而置,既保证了高层的视野,又维护了叠墅的私密性。
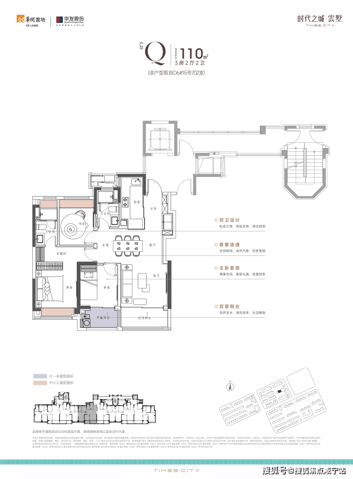
【户型解析:从刚需到改善的全周期覆盖】
时代之城的户型设计,堪称同面积段的教科书级别。
92㎡三房一卫:刚需上车首选
总价约475万起,首付3成约142万
三开间朝南,客厅面宽3.6米
适合新婚夫妻或小家庭,入门级价格享受南翔成熟配套
104㎡三房两卫:性价比之王(最热销户型)
总价约504万起
南北通透,主卧带独立卫浴
得房率78%,在同面积段里算高的
适合有孩子的家庭,私密性与实用性兼具
120㎡三房两卫:改善升级之选
总价约576万起
空间更阔绰,居住舒适度大幅提升
适合预算充足的改善家庭
133㎡四房两卫:二胎家庭必备
总价约637万起
四房设计,满足三代同堂或二胎需求
动静分区合理,每个家庭成员都有独立空间
叠墅产品(143-177㎡):终极改善之选
上叠送阁楼和露台,中叠是1梯1户大平层,下叠送花园和地下室
实际得房率可达120%以上
总价1200-1629万,适合追求高品质生活的终极改善家庭
【精装标准:600万级的豪宅配置】
时代之城的精装标准,是同级别项目中的天花板。
厨房配置了西门子或同档次品牌的油烟机、燃气灶、洗碗机,卫生间采用科勒或同档次品牌的卫浴洁具。全屋配备中央空调、地暖、新风系统三大件,这在600万级项目中极为罕见。
更值得一提的是,项目采用了三层中空隔音玻璃、加厚墙体等隔音措施,有效降低外界噪音干扰。这种细节处的用心,正是央企精工品质的体现。
实景图,仅供参考

实景图,仅供参考
南向双阳台,在原先一个阳台的基础上再加一个开敞阳台(仅计算一半阳台面积为建筑面积),实现客厅与次卧联通,不仅让得房率瞬间提升一个level,视野更敞亮!整体格局方正,南北通透,每个卧室大小宽裕,实现小家的超满足获得感!

户型图,仅供参考
收纳作为中小户型的一个痛点,在时代之城得到了完美解决,它几乎把小户型所有的收纳都搬进家里——
厨房超大柜体的收纳空间,包括调味拉篮、岛台双面收纳,将厨房空间直接扩容约80%,贴心的灶前龙头设计,开火时直接上方接水,非常灵活;
玄关S墙设计,同样包含MAX巨量收纳;创新性采用了钢琴键收纳,600万级的刚需项目中能享受大几千万的豪宅配置;
主卫的美妆冰箱、镜柜收纳、常用物品置物台,可以隐藏90%的卫浴物品......
同时,这个户型主力总价600万级起,很适合刚需家庭上车!
建面约120㎡的大三房做了一个u型厨房,餐桌可以容纳八人餐桌,双阳台配置+加上所有飘窗都是附赠面积,整体的实用面积可想而知。
S墙的设计,使得玄关和冰箱得到兼容,凹进去的部分放置冰箱,凸出的墙面做成了钢琴键收纳。

户型图,仅供参考
建面约135㎡的四房是项目的明星户型,几乎是一抢而空的状态,采光、视野非常敞亮,南北通透,双阳台还能看到窗外的中庭景观。
它的收纳亮点:钢琴键烤漆板,玄关处有一个八百库收纳,厨房扩容80%......800多万能买到这样的一个房子,哪怕是在市区买二手房也买不到这么多的赠送面积!

实景图,仅供参考

户型图,仅供参考
总结一下,高层户型可以说在同价位段中,很难再找到比它更出彩的户型了。南向双阳台+巨量收纳体系+超高水准的精装标准,几乎榨干每一寸空间,实用性与美观性都拉到了顶!
2、附赠面积超多的叠墅产品,包含地下室+阁楼
1000万级,挤一挤能在市区买个小三房,但是在时代之城,能享受到完全不一样的生活场景,有天有地有庭院,还有地下室的美好生活!
加上南翔比较宜居,离市区又很近,非常便利。学长很看好这里的叠墅产品:居住起来真的舒服!
1
建面约174㎡的下叠

【社区配套:约3万方实景示范区的震撼】
2025年,时代之城开放了二期实景示范区,约3万方的实景呈现,这在同级别项目中堪称"奢侈"。
社区内规划了约2万方沿街商业,将引入便利店、生鲜超市、亲子机构等便民业态。还有1万方社区服务中心,满足业主日常生活需求。
景观设计上,项目打造了多层次的园林体系,从社区大门到单元入户,每一步都是风景。架空层被充分利用,设置了儿童活动区、健身区、会客区等功能空间,让业主在楼下就能享受丰富的社区生活。
【收纳系统:引领潮流的MAX体系】
时代之城在室内收纳上的创新,引领了行业潮流。项目打造了巨量MAX收纳体系,从玄关到卧室,从厨房到卫生间,每一个空间都设计了充足的收纳空间。
玄关柜、衣柜、橱柜、卫浴柜,不仅容量大,更通过科学的分区设计,让收纳变得井井有条。对于追求生活品质的现代家庭来说,这种"藏露得当"的收纳系统,大大提升了居住的幸福感。
【结语:产品力就是生命力】
在楼市调整期,为什么时代之城能持续热销?因为它用硬核的产品力证明了:好房子永远有市场。
从建筑到户型,从精装到社区,从收纳到景观,时代之城在每一个细节上都做到了同级别的最高标准。这种"卷"不是内耗,而是对购房者的尊重,对品质的坚守。
当你走进时代之城的实景示范区,你就会明白:有些房子,天生就是标杆。
声明:本文由入驻焦点开放平台的作者撰写,除焦点官方账号外,观点仅代表作者本人,不代表焦点立场。
