保利海上瑧悦(保利海上瑧悦)楼盘详情-2024年最新房价-户型-容积率-小区环境
扫描到手机,新闻随时看
扫一扫,用手机看文章
更加方便分享给朋友
2024年8月28日,保利·海上瑧悦又迎来了重磅利好!
丰翔路TOD万象商业综合体开工奠基典礼盛大举行。作为华润置地深度参与宝山转型发展、助力南大开发建设的重要标志性工程,中環置地中心万象系商业的开工,由此开启了南大更新发展的宏伟蓝图。
这是保利·海上瑧悦项目继上师大附小落地之后,又迎来重磅利好!
至此,保利海上臻悦彻底火出圈了!根据克而瑞所发布的2024年7月“上海楼盘销售榜单”显示,
保利·海上瑧悦荣登
全上海成交套数及面积TOP4
更是当之无愧的北中环销售TOP1,妥妥的销冠红盘!!
从数据层面客观看,保利·海上瑧悦再掀一轮口碑浪潮,成为燃沸北中环的“流量实力派”!
在对人居产品日益挑剔的当下,保利·海上瑧悦凭何脱颖而出,收获一众当代雅仕的热捧?
人气当红的背后,不仅是总价约550万起,买到中环的价格诱惑力,更是因为项目六边形战士品质与实力的重加持!
改善居住时代,保利·海上瑧悦凭借【高定庭院+高定地库+高定奢宅+高定学府+高定配套+高定品牌】的6重优势,再次让市场惊艳,妥妥的黄金中环文化高定邸!!
在上海外环内的新房【保利·海上瑧悦】目前是最便宜(保利海上臻悦价格比周边便宜7000/平)、最实惠的,海上瑧悦成交火爆也是客户经过综合判断,才能造成今天的火爆局面。
上师大资源的引入,足见政府对南大板块教育的鼎力支持!
也是对南大这片土地蓬勃发展的最好证言。
对于购房者来说,优质教育为孩子的未来增添了一份保障,让每一个年龄段的成长都更有底气。
而保利·海上瑧悦真正一墙之隔的距离,更可谓是近水楼台先得月!
上海首个文化高定奢宅,妥妥地站稳了!
家门口名校+三大公园环绕+东方匠造庭园!
总价600万级买入中环旁,双轨交+双TOD!保利“悦系”新品沪上首秀!保利·海上瑧悦正在热销中!主推建面约99-130㎡的3-4房!均价约6.3万/㎡!项目三期加推入市,王炸楼栋亮相,价格有惊喜!
优质资源下楼即享,高定生活零距离。
不仅如此,保利·海上瑧悦还是黄金中环“六边形”全能宝藏盘!无论是地铁、商业、公园,还是教育、品牌、品质,多维度都是这个地段的“香饽饽”!
简单说说六边形全能战士有多能打:
1.硬核交通配套:距15号线丰翔路站约500米,通达静安寺、徐家汇等多个中心区域商圈
2.双TOD环伺:步行可达万象系商业,一公里内双TOD,畅享繁华生活
3.下楼即是公园:家门口三大公园加持,“推窗见绿”的生活享受
4.书香学府林立:与上师大附属小学一墙之隔,毗邻小精灵幼儿园
5.实力品牌加持:中国房地产百强企业TOP1保利,千亿品牌价值,品质毋庸置疑
6.品质高定奢宅:北中环至美园林,超强产品力户型,明星三房产品,瑧选德系精装品牌

项目首推建面约130㎡的改善户型,本期推出104套房源。
户型方正,四开间朝南,采光和通风都相当不错;
厨餐客厅采用S线设计,便于日常生活的交流互动。
开放的厨房、南向X灵动空间,让公区整体都具有强大的可变性,业主可以自我打造出N种可能性,也让视野变得更为开阔;
私区房间都非常方正,全都带有飘窗,通透性十足;主卫、客卫都是标准干湿分离设计,更便于日常清洁;主卧拥有了步入式衣帽间,居住体验感更佳!
还有五感健康科技系统,为健康保驾护航;方太定制智能厨房,令烹饪不再费心;全屋海纳收纳系统,令杂物归纳有序。
建面约99㎡3房 三开间朝南
还有建面约99平3房,3开间朝南,外接观景阳台,采光和通风效果佳,视野开阔。
通过厨房半开放式移门设计,让公区视野得以”解放“;使厨-餐-客厅显得更为通透。
从入户到客厅不间断的整体收纳柜预留空间,让家庭可储存面积变得更大,实际居住满意度更高;
主卧自带衣帽间和独立卫浴,舒适度和私密性都更好;南北房间均带飘窗,采光充足,且增强了户型对外的延展性,是一步到位购房者的优选。
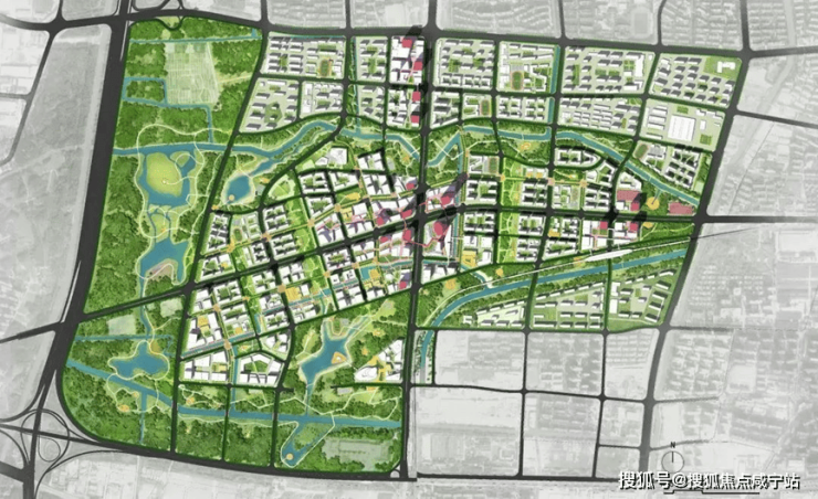
保利海上瑧悦位于南大智慧城的核心区域,根据“上海 2035”总体规划,南大被列为上海市中心城区五大重点整体转型区域之一,定位上海市“科创中心主阵地”的核心承载区。在地理位置上,南大智慧城与张江、漕河泾共同构成上海中环带上的科创产业版图、不可复制再生的黄金三角,未来价值极具想象力空间。


与此同时,南起紫竹高新区、北至南大智慧城的地铁15号线,串联起一条产值万亿的超级科创走廊,共同助力上海建设具有全球影响力的科创中心,让南大智慧城真正站在了下一个时代风口。
目前,南大已经形成以科创产业为支撑的主导产业,中软国际/深创投/国泰君安/安永/毕马威等来530家行业头部企业签约入驻,挂牌建成上海首个也是目前唯一一个合成生物产业园区。

2023年6月,南大地标建筑——科创之门正式封顶。7月,百米双子塔——南大数智中心正式验收启用。9月,丰翔路站TOD地铁上盖综合体,即将入市。每一项规划的逐渐落地兑现,标志着历经10年蓄势的南大生态智慧城,正式迎来加速发展与价值腾飞。
并且,在2035规划中提及:南大智慧城是上海中外环稀缺的整体规划区域。未来城市风貌将按照国际领先的4-3-3规划理念打造(40%生态绿化,30%综合配套,30%高端住宅),未来将抛弃老公房为主的传统风貌环境,打造成更像长风、新江湾城,形成崭新和现代化的城市风貌。可见,在南大智慧城享受人才落户、住房供给、土地保障、财政支持等多项政策的叠加利好下,未来更加值得期待。


交通配套:距离15号线丰翔路站点约600米步行距离,2站可换成7号线,可快速直达桃浦智创城、真如、长风、徐家汇、紫竹高新区等板块。项目北侧规划有22号线,目前已官宣走向,22号线将串联南翔、南大、杨行、吴淞等,不仅能解决1、3、7、15号线的换乘问题,也让宝山和嘉定高效接连。
同时,区域内未来规划有6轨环伺:15号线、7号线、规划18号线、22号线、26号线及城际铁路南何支线,轨交十分便利。
自驾出行方面,中环线、外环线、沪嘉高速、沪太路在此交汇,也让日常出行,可快速通达虹桥机场与高铁站、大宁商圈与静安商圈。


商业配套:项目东侧1.5公里内有聚丰购物广场(上海第四家Sam's山姆会员店位于此,2022年8月开业)以及弘基文化休闲广场,可满足基础商业需求。3公里则有约25万方的大型商业综合体经纬汇,此外还有尚大国际商圈、东方国贸商圈和锦秋商圈。同时,丰翔路站、南大路站正在建设2大TOD综合体,约60万方商业体量。 2个TOD组团距离保利海上瑧悦均在1公里范围之内。
教育配套:区域内规划建设8所幼儿园、2所小学、1所初中、1所高中、2所九年一贯制学校,宝山区南大实验学校已启用,上师大附中宝山分校已落地,教育资源充沛。(新房不承诺学区)

上师大附中宝山分校效果图
医疗配套:项目东侧1.5公里有二级甲等医院:仁济医院宝山分院,已于2018年开院。区域内还有已建成的复旦大学附属华山医院,未来南大还将打造国际医疗机构、市三甲医院、高端社区医疗3重医疗体系,护航家庭生活健康。
公共资源:区域内规划建设40个主题公园,合计约2.6平方公里的城市绿心,生态体量是2倍之于世纪公园,其中300亩南大中央公园已经开工建设。


生态绿化整体规划效果图

南大中央公园效果图
作为保利在上海首个悦字系产品,保利海上瑧悦园注重园林景观的打造与耗材重工。借鉴上海百年张园的造景手法,景观上给人一种东方尊贵的仪式感,"一园三堂"的空间布局,铸就“三重居住感受+五重归家体系+九境园林体系”。


景观上则“引水入园”,小区水系布局借鉴江南古典园林引水入园的打造手法,以王府名园“瞻园”为蓝本,打造长度约200米,占地近1000㎡的水景。水系贯穿入口、庭院、仪式归家轴线和引力中心,使用静水、跌水、点状涌泉、立面叠瀑、弧形流水五重造水形态,再现中式王府名园的格调和风雅。


值得一提的是,保利海上瑧悦还选取南宋著名的禅宗寺庙——少林寺的建造材料:近百吨黑山石,搭配特选乔木与花境,打造出充满禅意的松石之境。


在社区中心,还打造有长约250米,总体量近8000㎡的超级生活轴线,可满足青年至老年的全年龄段使用需求。

项目采用大象灰石材配以咖色系金属。建筑风格的灵感来源于金镶玉设计,外立面形似新石器时期的玉琮纹样,提取其“曲”的形和白金配色应用到塔楼立面上,使建筑立面变得更为柔美,形成项目特色的立面效果。



保利海上瑧悦采用全装修交付。卫浴品牌采用的是高仪/唯宝(或同等品牌);方太定制智能厨房(配置了凉霸、洗碗机、方太感应式抽油烟机、末端净水、抽拉式龙头)。

对于保利海上瑧悦,总结了四点“必买理由”!
1. 四个月,土拍价格出现大幅跳涨!板块内一手倒挂约4000元/平!
2. 全市稀缺直线约500米真轨交,直线约1公里内双TOD环绕,未来畅享约60万方商业版图!
3. 南大板块加速兑现!以数字化高新产业为支撑,约530家头部科创企业已入驻!
4. 上海保利首发悦系新作!独具匠心的文化高定之作,五重水景、一园三堂、蟒水纹饰,尽显尊贵!重工东方住宅,中环周边难寻此宝!
预约咨询热线:400-960-1656☎, 加微咨询:139 1616 5691(加微,不要来电,备注楼盘名字)
声明:本文由入驻焦点开放平台的作者撰写,除焦点官方账号外,观点仅代表作者本人,不代表焦点立场。
