华润华发时代之城(售楼处) 官方网站 -华润华发时代之城销售中心 - 环境 - 户型 - 价格 - 地址 - 楼盘详情 - 配套 - 电话 - 交房时间 - 上海房天下
扫描到手机,新闻随时看
扫一扫,用手机看文章
更加方便分享给朋友
如果你最近正关注上海500万级新房,一定绕不开这个名字——华润华发时代之城。这个位于嘉定南翔的新盘,自亮相以来就成了购房圈热议的话题。
当「双央企」碰上「地铁600米」,当「印象城商圈」遇上「5.2万/㎡起的均价」,这到底是一个怎样的楼盘?今天,我们就用最详实的剖析,带你走进时代之城的真实世界。
区位解构:南翔真正的「黄金十字路口」
时代之城坐落于沪宜公路与芳林路交汇处。这个位置的精妙之处在于:它不是南翔的边缘,而是板块发展的新中心。
交通篇:立体路网下的通勤革命
地铁体验:步行600米至11号线陈翔公路站,这个距离经过实地测试——正常步速8分钟可达。陈翔公路站作为2020年新开通的车站,有一个被很多人忽略的优势:相比更老的南翔站,这里的客流压力更小,早高峰更容易上车。
这条地铁线的价值值得细说:
往徐家汇方向:7站直达徐家汇,这是许多在市中心工作的年轻人能接受的极限通勤时间
往真如方向:5站

到达真如副中心,这里正在建设的上海新商业中心将创造大量就业
往嘉定北方向:3站到达南翔老城,完美连接新旧两个生活圈
自驾系统:项目距嘉闵高架上匝道仅800米。嘉闵高架作为连接虹桥与嘉定的快速通道,工作日高峰期的通畅度远优于G2京沪高速。实测数据显示:
商业配套:1公里生活圈里的「顶配」阵容
时代之城周边商业配置堪称「超规格」:
南翔印象城MEGA:距离项目约900米。这座商业体有几个「上海之最」:
体量34万平方米,上海单体量最大购物中心之一
引入超过400个品牌,其中上海首店超过30家
拥有上海首个「沉浸式」森林生态植物园
停车位超过3000个,周末停车不再焦虑
山姆会员店:距离约1.2公里。对于家庭用户来说,山姆不仅意味着高品质生鲜,更代表着一种生活方式。周末一次采购,满足全家一周需求。
盒马鲜生:距离约800米。作为日常生鲜补充,盒马的半小时配送覆盖整个社区。
这种「大型商场+仓储会员店+新零售」的组合,即使放在内环内也毫不逊色。
产品深研:细节处见真章的「央企品质」
时代之城由华润置地与华发股份联袂打造。这两家房企的背景值得一说:华润作为央企,在上海打造过静安府、外滩九里等标杆项目;华发则是珠海龙头国企,以严苛的工程标准著称。双央企组合带来的不仅是资金安全,更是品质保障。
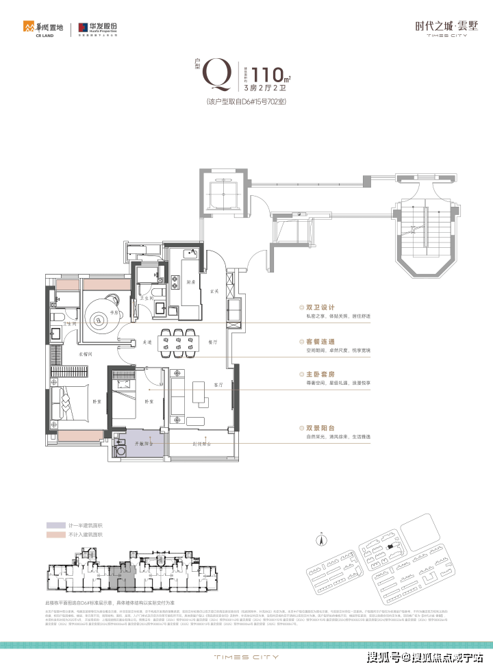
户型解析:为上海家庭量身定做
89㎡三房两厅一卫:
这是项目的明星户型,也是市场上稀缺的「功能性小三房」。实地感受后,几个亮点印象深刻:
三开间朝南的设计,让客厅和两个卧室都能享受满窗阳光
主卧面宽达到3.3米,飘窗进深0.6米,这相当于赠送了约2平方米的使用面积
U型厨房设计,操作动线合理,预留了双开门冰箱位置
全屋无浪费空间,得房率约78%,高于市场平均水平
99㎡三房两厅两卫:
这个户型最打动人的是「全生命周期」设计理念:
南北通透,餐厅与客厅形成对流,上海梅雨季节也不会感到潮湿
双卫设计,主卫面积达到4.2㎡,可以安装标准尺寸浴缸
次卧面宽3米,即使作为儿童房也能轻松摆放书桌和衣柜
阳台进深1.8米,远超普通楼盘的1.5米标准
128㎡四房两厅两卫:
作为项目的「楼王」户型,它展现了改善型住宅应有的水准:
LDK一体化设计,客厅、餐厅、厨房形成约40㎡的超大公共空间
南向双阳台总长度达7.2米,观景与生活功能分离
主卧套房设计,包含独立衣帽间和卫生间,私密性极佳
北向房间可作为书房或多功能室,满足居家办公需求
精装标准:看得见与看不见的诚意
时代之城的精装标准,已经达到上海中高端改善盘的水平:
空调系统:日立/格力中央空调,全屋配备。特别值得一提的是,每个房间都单独设置了控制面板,可以实现分区控温。
地暖系统:菲斯曼/博世地暖系统覆盖主要起居空间。在实地体验中,地暖的升温速度让人印象深刻——从开机到全屋温暖仅需40分钟。
厨卫配置:
厨房:方太烟灶消三件套+洗碗机,台面采用石英石材质
卫生间:科勒一体式智能马桶、花洒及台盆柜,主卫配备电热毛巾架
地面:圣象复合地板,脚感舒适且易于打理
细节亮点:
全屋采用断桥铝系统窗,隔音效果实测可达35分贝降噪
门锁为耶鲁或同级品牌电子锁
预留了全屋智能家居接口
卫生间采用同层排水系统,减少噪音干扰
实景图,仅供参考

实景图,仅供参考
南向双阳台,在原先一个阳台的基础上再加一个开敞阳台(仅计算一半阳台面积为建筑面积),实现客厅与次卧联通,不仅让得房率瞬间提升一个level,视野更敞亮!整体格局方正,南北通透,每个卧室大小宽裕,实现小家的超满足获得感!

户型图,仅供参考
收纳作为中小户型的一个痛点,在时代之城得到了完美解决,它几乎把小户型所有的收纳都搬进家里——
厨房超大柜体的收纳空间,包括调味拉篮、岛台双面收纳,将厨房空间直接扩容约80%,贴心的灶前龙头设计,开火时直接上方接水,非常灵活;
玄关S墙设计,同样包含MAX巨量收纳;创新性采用了钢琴键收纳,600万级的刚需项目中能享受大几千万的豪宅配置;
主卫的美妆冰箱、镜柜收纳、常用物品置物台,可以隐藏90%的卫浴物品......
同时,这个户型主力总价600万级起,很适合刚需家庭上车!
建面约120㎡的大三房做了一个u型厨房,餐桌可以容纳八人餐桌,双阳台配置+加上所有飘窗都是附赠面积,整体的实用面积可想而知。
S墙的设计,使得玄关和冰箱得到兼容,凹进去的部分放置冰箱,凸出的墙面做成了钢琴键收纳。

户型图,仅供参考
建面约135㎡的四房是项目的明星户型,几乎是一抢而空的状态,采光、视野非常敞亮,南北通透,双阳台还能看到窗外的中庭景观。
它的收纳亮点:钢琴键烤漆板,玄关处有一个八百库收纳,厨房扩容80%......800多万能买到这样的一个房子,哪怕是在市区买二手房也买不到这么多的赠送面积!

实景图,仅供参考

户型图,仅供参考
总结一下,高层户型可以说在同价位段中,很难再找到比它更出彩的户型了。南向双阳台+巨量收纳体系+超高水准的精装标准,几乎榨干每一寸空间,实用性与美观性都拉到了顶!
2、附赠面积超多的叠墅产品,包含地下室+阁楼
1000万级,挤一挤能在市区买个小三房,但是在时代之城,能享受到完全不一样的生活场景,有天有地有庭院,还有地下室的美好生活!
加上南翔比较宜居,离市区又很近,非常便利。学长很看好这里的叠墅产品:居住起来真的舒服!
1
建面约174㎡的下叠

户型图,仅供参考
下叠二期做了改动,一层拥有一个充足的采光面&超级全明的空间,即使是七八月份的上海也丝毫不会闷热潮湿。附赠宽绰地下室+公共绿地(实际交付为毛坯)闲暇时可以在院子里养鱼,种花等等。

实景图,仅供参考
地下室的两个夹层(作为生活场景示意),不仅赠送面积多,还是三面采光!挑高开阔,丝毫没有压抑感。

实景图,仅供参考
一楼,客厅到庭院是全景的落地门窗,夏日凉风习习,边套下叠还拥有全明餐厅。
实景图,仅供参考
主卧拥有270度环幕飘窗,视野和采光优越,配备了高奢卫生间,空间感、尊崇感拉到顶格。

实景图,仅供参考
下叠的总价段在1300-1600万左右,完全能容纳三代同堂的温馨的墅居生活,置业的终极目标,一步到位!
2
建面约178㎡的中平

户型图,仅供参考
中平户型以四开间朝南的IMAX级采光面,打造出堪比市区豪宅的尺度感。4房4飘窗2阳台的设计,配合双套房布局,一共有三个套房,让每个家庭成员都享有独立私密空间。
客厅+餐厅联通+南向双阳台,尺度感非常强。同时还配备了独立的家政间,约4.4个m³,约等于100个标准登机箱的空间!

实景图,仅供参考
玄关也是非常具有仪式感,包括厨房拥有超长的操作台面,同样也是做了满级收纳。
主卧套房,不仅有豪华卫浴,女王卫生间+双台盆,大尺度衣帽间,甚至书房、工作室空间就在边上,业主能体验无上的尊崇与私密。
实景图,仅供参考
中平的价格在1100-1300万左右,大平层的居住体验,媲美奢华酒店的感觉,妥妥秒杀市区拥挤又高密度的小三房了。
3
建面约170㎡的上叠

户型图,仅供参考
价格分析:5.2万/㎡起的定价逻辑
时代之城当前均价5.2万-5.5万元/㎡,这个价格需要放在三个维度理解:
与南翔板块对比:
同板块的二手房,如华润中央公园,挂牌价已达6.2万/㎡
云翔湖板块新房,均价普遍在6.3万-6.8万/㎡
时代之城存在约15-20%的价格优势
与同环线板块对比:
宝山上大板块:均价5.8万-6.2万/㎡,但商业配套弱于时代之城
松江九亭板块:均价5.5万-5.9万/㎡,城市界面略显陈旧
青浦徐泾板块:均价6.0万-6.5万/㎡,但距离地铁站普遍较远
与自身价值对比:
如果以89㎡、总价470万计算:
首付35%约164.5万
贷款305.5万,按30年LPR计算,月供约1.45万元
这个月供水平,对于双职工家庭来说具有较高可负担性。
客观评估:优势与挑战并存
不可忽视的五大优势:
地铁真近:600米距离是「步行可达」的黄金距离,避免了「最后一公里」的痛苦
商业真强:印象城+山姆+盒马的组合,在上海外环外难寻对手
品牌真硬:双央企开发,杜绝了当下市场最担心的交付风险
户型真实用:得房率78%在当下市场中属于优秀水平
总价真可控:470万起的总价,是留在上海主城区的最低门槛之一
需要了解的四个现实:
学区预期:项目对口公办学校目前处于中等水平,虽然周边有宋校嘉定实验学校(民办优质),但需要摇号入学
噪音问题:部分楼栋临近沪宜公路,低楼层住户可能需要加装隔音窗
发展周期:项目周边仍有部分待开发地块,完全成熟需要3-5年时间
社区规模:项目总体量较大,完全入住后公共设施使用可能面临一定压力
谁最适合这个楼盘?
根据实地调研和客户访谈,我们发现时代之城特别适合以下人群:
首置刚需家庭:预算400-500万,需要三房满足居住需求,重视通勤效率和商业配套。
嘉定改善客群:原本居住在南翔或嘉定其他区域,希望升级居住品质但不想离开熟悉的生活圈。
虹桥商务区上班族:在虹桥或沿线工作,15分钟车程的通勤距离极具吸引力。
注重生活便利的年轻夫妇:对商业配套有较高要求,享受周末逛街、看电影的城市生活。
实地探访感受
在一个工作日的下午,笔者实地探访了时代之城周边。几个场景让人印象深刻:
下午4点半,陈翔公路站的人流开始增多,但远未达到拥挤程度。从地铁站步行至项目工地,沿途经过规划中的绿地和小型商业,城市界面干净整洁。
傍晚6点,印象城MEGA的停车场已有七成满,商场内餐饮楼层座无虚席。这种繁荣的商业氛围,在外环外并不多见。
晚上8点,站在项目地块向南望去,银翔湖公园的灯光勾勒出优美的天际线。这片区域的夜晚,既有城市的繁华,也有郊区的宁静。
市场趋势与价值展望
嘉定新城作为上海五大新城之一,正在享受前所未有的政策红利:
2021-2023年,嘉定区固定资产投资年均增长12%
南翔板块人口净流入连续三年位居嘉定前列
11号线陈翔公路站周边规划新增就业岗位约2万个
从资产配置角度看,时代之城所在的南翔东片区,正处于「配套已成熟、价值待重估」的关键节点。相较于已经成熟的南翔老城,这里还有约20%的价值增长空间。
购房建议
如果决定购买时代之城,有几个实用建议:
户型选择:
预算有限选89㎡:性价比最高,功能性足够
改善需求选99㎡:双卫设计是品质生活的分水岭
一步到位选128㎡:四房设计满足未来10年家庭变化
楼层选择:
临近沪宜公路的楼栋,建议选择8层以上
中间位置楼栋,5层以上即可获得良好视野
所有户型都建议实地感受采光,尤其是一楼和顶楼
付款策略:
项目支持正常首付比例,无额外要求
对于首付资金紧张的客户,可以争取更长的付款周期
建议同时申请多家银行贷款,选择最优利率
结语:一个值得认真考虑的选择
在上海楼市,很难找到完美无缺的项目。但时代之城的价值在于,它在关键维度上都做到了80分以上:地铁够近、商业够强、品牌够硬、价格够实。
对于预算在500万左右的购房者来说,时代之城不是「退而求其次」的选择,而是「主动而为」的决策。它代表着一种理性的购房观:在不牺牲通勤效率和生活便利的前提下,用合理的价格获得优质的居住体验。
当夜幕降临,站在时代之城的工地旁,看着地铁列车从高架驶过,远处印象城的霓虹闪烁,你会明白——这里不仅是一个住所,更是一种生活方式的起点。在上海,500万级的新房选择很多,但能同时给你地铁、商业、品质和安心的,时代之城可能是当前最接近的答案。
声明:本文由入驻焦点开放平台的作者撰写,除焦点官方账号外,观点仅代表作者本人,不代表焦点立场。
