保利·誉静安(上海静安)保利·誉静安官方售楼处首页网站-保利·誉静安2025年最新户型配套房价-小区环境
扫描到手机,新闻随时看
扫一扫,用手机看文章
更加方便分享给朋友
 
 
 
 
 
 
 
 
 
 
 
 
 
 
去年10月,上海苏河湾北部房地产开发有限公司通过协议出让方式获得静安区中兴社区C070202单元267街坊的145-20和270街坊的146-07两幅地块。
 
 
267街坊145-20地块:成交总价约30.59亿元,楼面价约72300元/平米,容积率2.66。
270街坊146-07地块:成交总价约23.58亿元,楼面价约71185元/平米,容积率2.89。
 
 
保利置业于6月25日重磅入局,通过产交所股权交易方式,摘牌获取北部房产51%股权,赢得与区属重要国资平台苏河湾集团合作机会,苏河湾集团与保利置业强强联手,目标将两幅地块打造为静安区标杆作品。
 
 
两地块位置相邻,相距不足300米,地处中兴社区核心区域。
随着项目的规划初步出炉,上海内环将正式迎来王炸级的人居爆款!
 
 
其中,145-20地块在止园路、青云路交汇处;146-07地块在中山北路和东宝兴路交汇处。
 
 
267街坊145-20地块的规划设计方案已于1月公示,地块拟建3栋17-25层高层住宅,4栋3层低密住宅以及部分社区配套。社区实行人车分流,设计有下沉庭院,其中2#楼和1B#楼高层住宅首层为架空层。
 
 
日前,上海发布了“好房子”新规,从设计到功能进行了多项划时代意义的调整,市区黄金地段很可能开启“卷王时代”。
其实卷到最后还是要购房者买单,你看现在几个新规标准的项目,东安项目预计20万/㎡,后滩项目预计15-18万/㎡,几乎都要高于当地板块二手次新小区4-5万/㎡,或许这就是未来追求品质必须付出的高溢价吧。
誉静安或许是全上海仅有的,可能只需要用持平周边二手房的价格,便能买到新规后新一代产品的机会!
我调阅了链家网项目周边二手次新小区的挂牌价,发现比较新的青云壹号挂牌均价超过13万/㎡,中兴路一号超过14万/㎡。
 
 
 
 
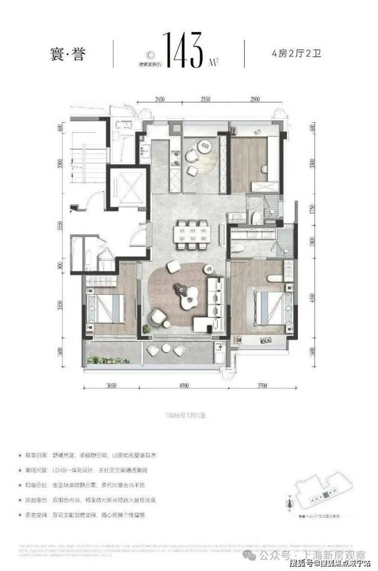
最新消息!静安内环内,保利置业苏河湾项目,即将官宣定名「保利誉静安」这幅地块将推出建面约102-160㎡的3-4房!预计首开96套建面约143㎡4房;预计11月取证,12月开盘!售楼处线上火热预约中!
 
户型图如下:
 
 
 
 
 
 
 
 
 
 
 
 
 
 
 
 
 
 
建面约143㎡4房样板间展示如下
 
 
 
 
 
 
 
 
 
 
 
 
 
 
 
 
 
 
 
 
 
 
 
 
 
 
 
 
外立面上,大面积玻璃+铝板组成一个个“城市油画框”,框定天光云影的流动画面,给人第一印象是颜值和辨识度很高。可以想象,夜幕初降,外立面倒映城区的璀璨霓虹,此时此刻建筑与风景真正融为一体。
 
 
从酒店式落客门厅,艺廊式归家巷道,三大厅堂,打造 “隐秘私有、层层递进” 的归家体验。
 
 
 
 
 
 
进入社区,镜面水景铺陈开来,踏上归家步道,在这里完成喧嚣与静谧、城市与自然的转换,让业主以松弛、舒适、享受的状态回到家中。
 
 
项目配备约3500㎡高端定制会所+超大架空层泛会所空间,为业主构筑一个兼具私密性与社交性的品质生活场域。
 
 
作为“第二生活空间”,兼顾成人社交与儿童活动,适配不同年龄段业主需求。在这里,业主可以在自然声景中享受生活,日日如度假。
 
 
 
 
项目集结了四大知名设计团队的“首席”力量。
 
 
比如天华副总设计师李黎女士进行项目设计,gad上海设计总监江芳先生操刀建筑设计,室内设计出自WJID维几设计总设计师黄全先生,景观设计由笛东景观总部副总裁、上海公司总经理王嵩嵩先生操刀。看誉静安的产品,如同品一桌“国宴”。
 
 
项目到外滩和平饭店的直线距离正好是约3公里!妥妥的城心烫金地段!
反过来看,外滩、陆家嘴、人广、北外滩、南京路等CBD,同样在项目3公里生活半径内。住在这样的地方,无疑轻松享受国际化潮流生。
 
 
交通方面,项目邻近8号线中兴路站,妥妥的步行进站地铁房,2站可直达人民广场。如果自驾的话,项目快速联通南北高架,无缝衔接内中外环及延安路高架。同时近邻北横通道,速达中山公园、北外滩、东外滩等浦西重要城市节点。还有4大隧道(新建路隧道、人民路隧道、大连路隧道、延安东路隧道)可直达陆家嘴!
多维交通格局,真正实现去哪都方便!
 
 
商业方面,项目1公里范围内有静安大悦城、万象天地、凯德虹口商业中心、百万中兴城商业(在建中)、珠江安康苑的商业合生汇(在建中)等大型商场。
同时项目距离人民广场商圈约2km、南京西路商圈约2km、陆家嘴商圈约3km、静安寺商圈约4km,自驾或地铁迅捷可达!
 
 
 
 
医疗资源方面,项目周边约3km范围内上海市中医医院(三甲) 、上海长征医院(三甲) 、上海市第一人民医院(三甲)、闸北区中心医院、上海第十人民医院 (三甲) 、同济大学附属口腔医院(三甲) 环伺。
 
 
教育资源方面,项目周边学府荟萃,全龄教育护航,包括育婴堂幼儿园、吉的堡永盛双语幼儿园、静安区永兴路第二小学、静安区闸北第三中心小学、民办杨波外国语小学、市北初级中学、市北中学高中等。(学校对口情况须在本小区交付后以政府教育主管部门及校方的最新政策为准)
 
 
核心地段、国企央企实力、全面配套与TOP级产品的叠加,将成就怎样的楼市传奇?静安区中兴社区项目即将为国际静安书写生活新序章,其升级后的标杆力作,正酝酿着令人期待的全新面貌,值得我们共同关注与期待。
 
声明:本文由入驻焦点开放平台的作者撰写,除焦点官方账号外,观点仅代表作者本人,不代表焦点立场。
 
 
 