峰度天下售楼处│峰度天下(营销中心) 官网 - 2025峰度天下销售中心 (售楼处)- 楼盘欢迎您 - 价格 / 户型 / 地址 / 环境 / 配套 / 交房时间 / 电话
扫描到手机,新闻随时看
扫一扫,用手机看文章
更加方便分享给朋友
对于虹桥峰度天下这样的特殊资产,最终的购买决策更像是一场精明的商业计算,而非感性的安家选择。它巨大的机遇与明确的风险并存。本篇,我们将以投资者的冷静视角,为您梳理其价值逻辑,并提供一份务实的决策指南。
一、 价格逻辑:为“区位红利”和“功能溢价”买单
虹桥峰度天下的定价体系基于两大核心:
1.
顶级区位溢价:
价格中最大的一部分,是为其不可复制的“大虹桥核心”地段支付的。这部分价值具有极强的抗跌性,只要大虹桥在发展,这部分基础价值就在。
2.
功能灵活性溢价:
相较于纯写字楼或纯公寓,其“商住两用”的灵活性带来了额外的价值加成,这部分体现在其更高的租金回报率和资产使用效率上。
二、 投资价值分析:算清这笔经济账
•
租金回报率:
这是衡量其投资价值的关键指标。由于其地处虹桥枢纽,租赁需求旺盛,尤其是来自会展、商务领域的短期租赁需求。投资者需要实地调研当前周边同类物业的租金水平,计算出净租金回报率,并与其他投资渠道(如理财、股票)进行对比。
•
资产增值潜力:
其增值主要依赖于大虹桥板块的整体发展。随着更多企业入驻、配套日益完善,资产价值有长期的上升空间。但需注意,商办类物业的增值幅度和速度通常慢于优质学区的住宅。
•
使用价值:
对于自用型买家(如在附近创业),购买行为相当于同时解决了办公场地和员工/自身居住问题,节省了大量的通勤成本和租赁成本,这部分隐性收益也应计入总回报。
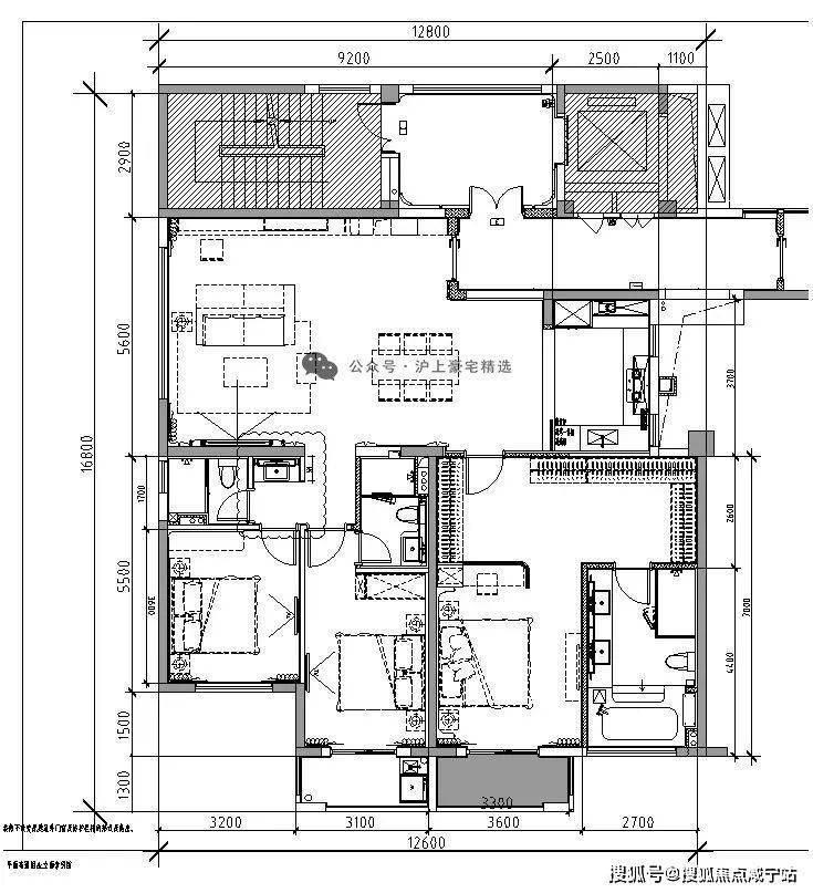
房型介绍
165㎡户型丨三房两厅三卫
▲ 户型图
▲ 建筑外立面
▲ 入户大堂
▲ 电梯厅
▲ 客厅
▲ 餐厅
▲ 厨房
▲ 卧室
▲ 衣帽间
▲ 主卧
三、 风险提示与挑战(决策前必须审视)
1.
政策风险:
这是最大的不确定性。务必详细了解上海当前针对商办类物业的销售、持有、转让、注册公司、水电收费、落户入学等方面的具体政策,并评估未来政策收紧的可能性。
2.
流动性风险:
商办物业的二手交易税费远高于住宅(高额增值税、土地增值税等),这会导致其转手难度较大,流动性相对较差。购买前需有长期持有的心理准备。
3.
社区管理与维护:
由于使用者复杂,对物业公司的管理能力要求极高。需要考察物业公司的口碑和实力,确保公共设施的维护和社区环境的品质。
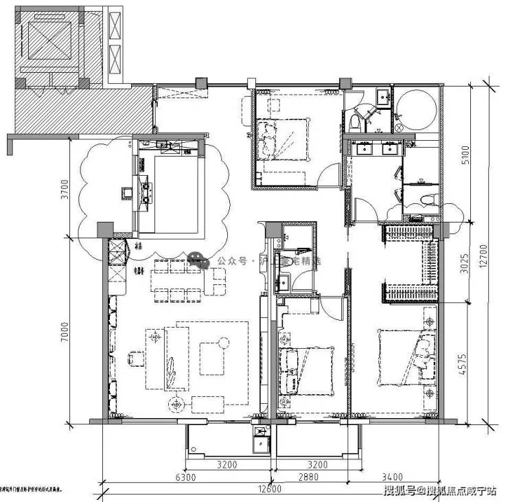
176㎡户型丨三房两厅三卫
▲ 户型图
▲玄关
230㎡户型丨四房三厅三卫+保姆房
▲ 户型图
四、 目标客群画像:谁是真正的“有缘人”?
•
中小型企业主/创业者:
急需在虹桥设立办公室,并希望解决核心员工或自身住宿问题。
•
资深投资者:
深刻理解大虹桥价值,有丰富房地产投资经验,追求稳定的现金流(租金回报),并能承受相应风险,进行资产配置。
•
自由职业者/网络精英:
工作地点自由,高度依赖网络和交通枢纽,渴望一个兼具工作室和居所功能的个性化空间。
五、 决策 Checklist:
1.
明确目的:
自用?投资?还是两者兼顾?目的不同,决策标准完全不同。
2.
核实政策:
亲自向房管局、税务局、派出所、学校等机构核实所有关键政策,勿轻信销售口头承诺。
3.
测算回报:
基于真实市场租金和各项支出,精细计算投资回报率(ROI)。
4.
评估风险承受力:
能否接受政策变化、租金波动、资产流动性差等风险?
5.
实地体验:
在不同时间段(白天、晚上、工作日、周末)感受社区环境和周边氛围。
结语:
虹桥峰度天下,是一个典型的“高收益、高风险”机会型资产。它就像一匹血统高贵的骏马,能带您驰骋商海,但也需要高超的驾驭技巧。它绝非适合所有人的稳妥选择,而是为那些眼光独到、风险意识强、且能最大化利用其独特功能的少数人准备的“财富工具”。如果您经过审慎评估,认为自己正是这位“骑手”,那么,这里或许能成为您事业版图中那颗关键的棋子。
声明:本文由入驻焦点开放平台的作者撰写,除焦点官方账号外,观点仅代表作者本人,不代表焦点立场。
