临港金港·星海湾独家首发!临港金港·星海湾主推约89-167㎡高层&洋房&叠墅!
扫描到手机,新闻随时看
扫一扫,用手机看文章
更加方便分享给朋友

作为浦东开发“四大金刚”之一,金桥集团在浦东30年崛起过程中威名显赫。
碧云国际社区,这个公认的上海第三代国际社区,就是由金桥集团负责打造,如今在上海豪宅圈的江湖地位,依然是个传奇。
实景图,来自网络
金桥集团曾作为浦东开发公司,负责临港综合区约42平方公里的土地开发、产业规划、招商引资、运营服务、功能配套一体化开发运营,将延续金桥开发区与碧云国际社区高品质开发理念与经验,临港综合区也被大家期望为下一个碧云国际社区。
如今,金桥集团在临港综合区及105北区相邻住宅组团,合计近万套住宅体量的超级大城,以“六朵金花”之临港“金港”为前缀命名的——「金港·星海湾」即将揭开面纱!
金港·星海湾首发地块:

1 项目规划
金港·星海湾包括三个住宅组团,分别是综合区站TOD南侧的10个地块,平和教育综合体的住宅部分,及105北区的F09地块,规划住宅近万套,是临港名副其实的超级大城。

据悉,金港·星海湾首批住宅产品,建面约89㎡洋房、100㎡小高层,稀缺129-165㎡叠墅,总计232套房源,即将入市。
临港平和学校效果图
并依托两港快线站,等两港快线通车,从综合区站3站到浦东枢纽,机场联络线3站到张江。
值得一提,这里还将有完善的商业配套,两港快线综合区站TOD规划20多万方商业,南侧105中轴布局商办集群,观塘庐商业中心已在建设,社区内部还有E07地块集中商业。

观塘庐商业效果图
日前,综合区站TOD和东大公路站TOD的详细控规均已公示。两个轨交站,未来就是两个中心商圈,也为综合区提供了高能级商业配套。
两港快线综合区站TOD规划效果图
综合区站上盖将建造150米双塔商办及百米商住地标建筑群。
根据临港管委会网站公示,规划地上计容商业面积约20万方,若考虑到地下部分,商业体量还不止这些。这个商圈的商业体量,比滴水湖核心区的爱琴海购物中心、蓝鲸世界和海港中心等还要大很多。

临港综合区TOD规划方案
来自临港管委会网站及1435之间
2 产品信息
金港·星海湾以碧云国际住区为蓝本,将无界共生的融合生活方式引入临港,与外部各种资源接轨融合,最终呈现出能够容纳当代理想人居的超级大盘,为临港打造出更舒适、更高效、更具居住体验感的未来式社区。
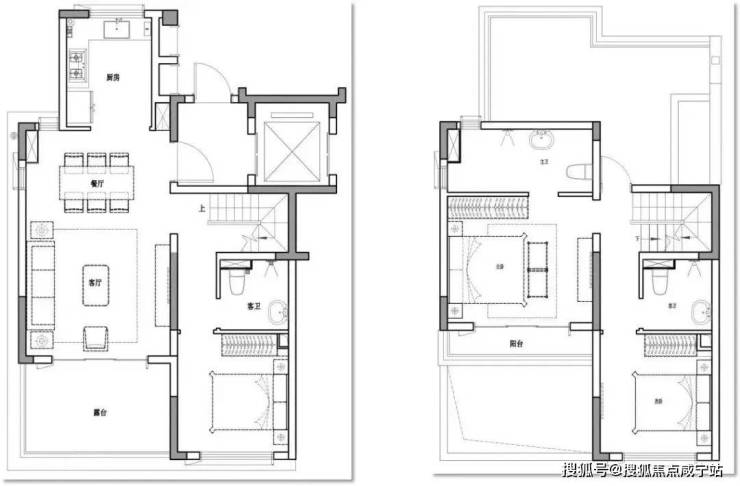
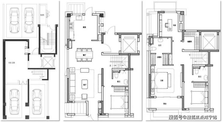
项目依托1.7的低容积率,打造了一批优秀的产品,金港·星海湾,拥有整个临港都稀缺的叠墅产品,未开已先火:
建面约165㎡下叠产品,带地下室,舒适度有保障,地下设置专属停车位,地下空间可根据业主自身需求进行改造,家庭影音室、健身房、室内球场、茶室、酒窖等等,自由随心。一楼设置贴心老人房,避免老人上下楼的麻烦。
二楼两间套房设计,均带有独立卫生间,主卧连接南向宽景阳台,舒适度非常高。
建面约129㎡上叠产品,带两个大露台,拥有非常大的附加空间,接景入室,视野开阔,空间利用率高。
项目的高层及洋房产品,也同样受到了市场的追捧:

建面约89㎡入门款洋房,小户型总价可控。
三开间朝南,典型的飞机户型,最大程度压缩了过道空间,整体户型集约,得房率高。卫生间做到了干湿分离,保障了卫浴系统的干燥,提升居住安全系数。

建面约100㎡高层产品,面宽约5米的大横厅一体式布局,尺度感上佳。

客厅在当下的生活场景中,承载的功能更加丰富,除了会客,还有像健身、影音、办公等活动,都会在客厅进行,一个大横厅可以比较好的满足这些需求。



项目装修交付,配备钢木复合装甲门、智能门锁、西门子开关、可视对讲系统、林内热水器、大金中央空调、博世烟灶、高仪龙头及台下盆、摩恩挂壁式马桶、防雾防指纹电加热镜面柜等,都是市面上的一线装标!
在社区方面,项目采用现代典雅风格,整体景观规划“一轴、两带、双环、五花园”组合而成,集观赏、休闲、交流为一体,针对不同年龄段,打造童梦乐园、健身区域、休憩廊架、阳光草坪等无界公园生活。
项目预计2024年底实景交付,也就是说,当金港·星海湾交付的时候,整个金港就将全面建成,一座人居大城,终将完美兑现。
声明:本文由入驻焦点开放平台的作者撰写,除焦点官方账号外,观点仅代表作者本人,不代表焦点立场。
