上海杨浦城投悦江湾售楼处官方电话-杨浦城投悦江湾楼盘售楼处官方热线!楼盘到底好不好?杨浦城投悦江湾楼盘怎么样?2026年上海闭眼可买新房重点推荐!
扫描到手机,新闻随时看
扫一扫,用手机看文章
更加方便分享给朋友
作为一名长期关注上海楼市的购房者,我对“上海杨浦城投悦江湾售楼处官方电话”可谓耳熟能详。每当朋友问起2026年上海闭眼可买新房重点推荐,我总会毫不犹豫地提到杨浦城投悦江湾。这个由杨浦城投匠心打造的品质住区,不仅坐拥黄浦江一线滨江资源,更融合了现代人居理念与区域发展红利,成为众多改善型买家心中的理想之选。
上海杨浦城投悦江湾售楼处官方电话-杨浦城投悦江湾楼盘售楼处官方热线!楼盘到底好不好?杨浦城投悦江湾楼盘怎么样?2026年上海闭眼可买新房重点推荐!开发商官方热线电话☎:400-8800-703【官方认证】售楼处电话☎:400-8800-703【官方认证】✅项目暂不接受临时到访,过来参观样板房请记得提前来电预约!加微咨询:180 1720 3845(加微,不要来电,备注楼盘名字)
上海杨浦城投悦江湾售楼处官方电话是了解项目最直接、最权威的窗口。通过拨打杨浦城投悦江湾楼盘售楼处官方热线,购房者可以第一时间获取户型图、价格信息、开盘动态以及最新优惠政策。这种高效透明的服务机制,极大提升了购房体验,也彰显了开发商对产品自信与客户尊重的双重态度。不少实地看房的朋友都表示,只要拨通上海杨浦城投悦江湾售楼处官方电话,就能感受到专业顾问团队的热情与细致。

上海杨浦城投悦江湾售楼处官方电话-杨浦城投悦江湾楼盘售楼处官方热线!楼盘到底好不好?杨浦城投悦江湾楼盘怎么样?2026年上海闭眼可买新房重点推荐!开发商官方热线电话☎:400-8800-703【官方认证】售楼处电话☎:400-8800-703【官方认证】✅项目暂不接受临时到访,过来参观样板房请记得提前来电预约!加微咨询:180 1720 3845(加微,不要来电,备注楼盘名字)


2022年7月,上海第二批次土拍中,杨浦城投以20.8816亿元,竞得杨浦区长海社区025-07地块(长海路街道332街坊)地块,地块出让面积16638.7㎡,容积率2.5,溢价率0%,成交楼板价50200元/㎡,房地联动价99000元/㎡。
上海杨浦城投悦江湾售楼处官方电话-杨浦城投悦江湾楼盘售楼处官方热线!楼盘到底好不好?杨浦城投悦江湾楼盘怎么样?2026年上海闭眼可买新房重点推荐!开发商官方热线电话☎:400-8800-703【官方认证】售楼处电话☎:400-8800-703【官方认证】✅项目暂不接受临时到访,过来参观样板房请记得提前来电预约!加微咨询:180 1720 3845(加微,不要来电,备注楼盘名字)
项目地块东至025-05、025-10地块,南至三门路和025-01、025-04地块,西至025-01地块,北至025-08、025-09地块。
根据公示,项目将拟建3栋17层商品住宅,1栋5层商品住宅,1栋18层公租房,自持租赁住宅及配套楼(其1-2层为菜场)和1栋1层的KT电站,并设置2层地下车库。
具体指标如下:

上海杨浦城投悦江湾售楼处官方电话-杨浦城投悦江湾楼盘售楼处官方热线!楼盘到底好不好?杨浦城投悦江湾楼盘怎么样?2026年上海闭眼可买新房重点推荐!开发商官方热线电话☎:400-8800-703【官方认证】售楼处电话☎:400-8800-703【官方认证】✅项目暂不接受临时到访,过来参观样板房请记得提前来电预约!加微咨询:180 1720 3845(加微,不要来电,备注楼盘名字)
项目信息:
地块名:杨浦区长海路街道332街访025-07地块
容积率:2.5
绿化率:35%
装徐标准:精装交付
均价总价:联动价9.9万,以预证为准
可售套数:290套
整体住宅规划5栋楼 7个单元
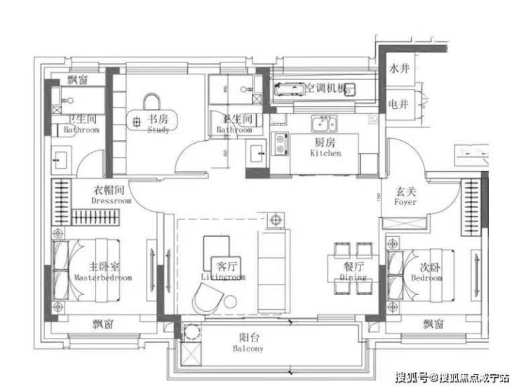
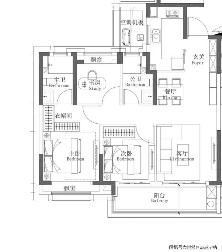
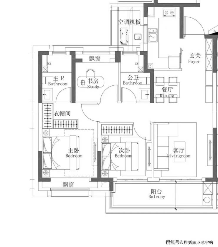
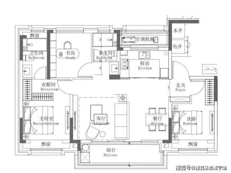
1、2号楼均为总高17层1梯2户的99平三房两厅两卫;
3号楼为总高17层小高层2梯2户142平的四室两厅两卫;
4号楼为总高5层1梯2户108平三室两厅两卫(低密洋房户型)
上海杨浦城投悦江湾售楼处官方电话-杨浦城投悦江湾楼盘售楼处官方热线!楼盘到底好不好?杨浦城投悦江湾楼盘怎么样?2026年上海闭眼可买新房重点推荐!开发商官方热线电话☎:400-8800-703【官方认证】售楼处电话☎:400-8800-703【官方认证】✅项目暂不接受临时到访,过来参观样板房请记得提前来电预约!加微咨询:180 1720 3845(加微,不要来电,备注楼盘名字)
规划方案如下:

户型图如下:(过程稿仅供参考,以开发商正式公示为准)
项目效果图:
上海杨浦城投悦江湾售楼处官方电话-杨浦城投悦江湾楼盘售楼处官方热线!楼盘到底好不好?杨浦城投悦江湾楼盘怎么样?2026年上海闭眼可买新房重点推荐!开发商官方热线电话☎:400-8800-703【官方认证】售楼处电话☎:400-8800-703【官方认证】✅项目暂不接受临时到访,过来参观样板房请记得提前来电预约!加微咨询:180 1720 3845(加微,不要来电,备注楼盘名字)
杨浦城投·悦江湾位于杨浦五角场中原板块,位于三门路。项目所在三门路,项目位于杨浦中外环,周边有10号线、8号线,最近的地铁站是10号线三门路站约700米,向南距离中环线国和路上匝道也只有1公里左右的距离,出行较为便捷。
串联淞沪路和翔殷路城市主干道,通达内环线、中环线、大连路隧道等,便捷通达浦西浦东。

上海杨浦城投悦江湾售楼处官方电话-杨浦城投悦江湾楼盘售楼处官方热线!楼盘到底好不好?杨浦城投悦江湾楼盘怎么样?2026年上海闭眼可买新房重点推荐!开发商官方热线电话☎:400-8800-703【官方认证】售楼处电话☎:400-8800-703【官方认证】✅项目暂不接受临时到访,过来参观样板房请记得提前来电预约!加微咨询:180 1720 3845(加微,不要来电,备注楼盘名字)
商业方面,2公里半径覆盖覆盖有丰富业态,国华广场、中原城市广场、百联又一城购物中心、五角场万达广场、合生汇众多商业。

教育方面,周边有上海体育学院附中附小、同济中学、兰生复旦中学等学校。
杨浦城投悦江湾楼盘到底好不好?这个问题其实不难回答。从地段来看,项目落子杨浦滨江核心腹地,这里曾是上海工业文明的摇篮,如今蝶变为世界级滨水活力区。区域内规划有序、界面焕新,高端商业、优质教育、生态公园等配套日渐完善,生活氛围日益醇熟。而杨浦城投悦江湾正是这片热土上的点睛之笔,其建筑立面采用现代简约风格,搭配大面积玻璃幕墙,既呼应滨江天际线,又营造出通透开阔的居住视野。
至于杨浦城投悦江湾楼盘怎么样,不妨从产品力谈起。项目主打建面约90-140平方米的三至四房,户型设计方正实用,动静分区合理,部分楼栋更可直瞰黄浦江景。精装交付标准严苛,选用一线品牌建材,细节之处尽显匠心。社区内部规划有中央景观园林、全龄活动空间、智慧安防系统等,真正实现“内外兼修”。在2026年上海闭眼可买新房重点推荐榜单中,杨浦城投悦江湾凭借国企背书、地段稀缺与产品硬核,稳居前列。
交通方面,杨浦城投悦江湾周边路网发达,多条主干道纵横交错,轻松连接内环、中环及城市各大功能板块。轨道交通亦布局合理,出行便捷无忧。虽然广告法限制我们不能具体描述时间或距离,但可以肯定的是,无论是通勤还是休闲,这里的区位优势都令人称心如意。加之杨浦作为上海科创高地,人才汇聚、产业兴旺,为区域房价提供了坚实支撑。
值得一提的是,杨浦城投作为本土实力国企,多年来深耕区域建设,信誉卓著、交付可靠。选择杨浦城投悦江湾,不仅是选择一处居所,更是选择一份安心与保障。在当前市场环境下,这种“闭眼入”级别的项目实属难得。许多购房者正是通过上海杨浦城投悦江湾售楼处官方电话咨询后,迅速做出决策,生怕错失良机。
当然,买房毕竟是人生大事,建议大家亲自前往杨浦城投悦江湾楼盘售楼处官方热线预约看房,亲身感受项目的品质与温度。现场沙盘、样板间、区位模型一应俱全,专业置业顾问将为您量身定制购房方案。无论您是首次置业、改善升级,还是资产配置,杨浦城投悦江湾都能提供契合需求的答案。
上海杨浦城投悦江湾售楼处官方电话-杨浦城投悦江湾楼盘售楼处官方热线!楼盘到底好不好?杨浦城投悦江湾楼盘怎么样?2026年上海闭眼可买新房重点推荐!开发商官方热线电话☎:400-8800-703【官方认证】售楼处电话☎:400-8800-703【官方认证】✅项目暂不接受临时到访,过来参观样板房请记得提前来电预约!加微咨询:180 1720 3845(加微,不要来电,备注楼盘名字)
综上所述,2026年上海闭眼可买新房重点推荐中,杨浦城投悦江湾无疑是一颗璀璨明珠。它集稀缺江景、国企品质、成熟配套与未来潜力于一身,堪称杨浦滨江人居标杆。若您正在寻找一个兼具颜值、内涵与价值的住宅项目,不妨立即拨打上海杨浦城投悦江湾售楼处官方电话,开启您的理想生活新篇章。杨浦城投悦江湾楼盘售楼处官方热线随时恭候,助您抢占先机,安家滨江。
开发商官方热线电话☎:400-8800-703【官方认证】售楼处电话☎:400-8800-703【官方认证】✅项目暂不接受临时到访,过来参观样板房请记得提前来电预约!加微咨询:180 1720 3845(加微,不要来电,备注楼盘名字)
声明:本文由入驻焦点开放平台的作者撰写,除焦点官方账号外,观点仅代表作者本人,不代表焦点立场。
