保利誉滨江(2025年保利誉滨江)首页网站-保利誉滨江楼盘详情-保利誉滨江户型配套
扫描到手机,新闻随时看
扫一扫,用手机看文章
更加方便分享给朋友
⛩项目名称:「保利誉滨江」
👑项目简介:杨浦滨江 品质红盘
🗣最新动态:预计本周过会
📍区域板块:杨浦滨江
🏠产品介绍:建面约117-154㎡三房四房&部分叠墅
🚇交通配套:距离12号线爱国路站步行距离约700米
🏫周边学校:平凉路第三小学、东辽阳中学、上海市第二十五中学,以及规划复旦国际学校;(学区划分以政府主管部门及办学方政策确定,开发商不做承诺)
🏥医疗资源:上海市杨浦区中心医院
🛍️商业配套:上海国际时尚中心、超极合生汇(在建)
🍃生态配套:波阳公园、杨树浦电厂遗迹公园、复兴岛公园、油酷艺术公园
区位方面,该地块位于杨浦滨江南段的黄金位置,直线距离黄浦江仅约500米。
周边配套一应俱全,交通上北横通道、中环军工路等主干道环绕周围,距离12号线爱国路站步行距离约700米。
教育上有平凉路第三小学、东辽阳中学、上海市第二十五中学,还有规划中的复旦国际学校。
商业上有上海国际时尚中心和在建的超极合生汇。
此外,周围还有波阳公园、杨树浦电厂遗迹公园、上海市总工会沪东工人文化宫、白洋淀足球场馆等配套,能够满足文体休闲需求。

值得一提的是,保利置业还将代建项目东侧建面约6000平米量子公园。
未来从小区侧门就能直接进公园,于业主,不仅多了个休闲天地,更相当于“降低了项目实际居住密度”,东侧视野开阔,还能和复兴岛景观无缝衔接。

量子艺术公园过程稿意向图,仅供参考
加上北侧约3000平方米的绿轴公园,项目两面绿地环绕。

从地理位置上来看,没有多大硬伤,加上东外滩的发展规划,以及复兴岛的产业加持,未来会有不错的预期。
保利·誉滨江作为保利 “誉系3.0”在上海的迭代革新之作,在产品层面实现了多重突破,树立了区域人居新标杆。
项目基底采用质感厚重的石材,上层第一界面则以全铝板+玻璃幕墙为主,更突破性地实现了“四面平权”设计——不同于多数楼盘只注重南面美观,侧面与北面简化处理的做法,保利誉滨江无论从正面、侧面还是背面观察,立面都保持精致统一的视觉效果。
项目过程稿意向图,仅供参考
项目过程稿意向图,仅供参考
园林设计也付出不少心思,齐聚“三轴五园”8个场景。中央轴种了全冠移植的香樟和乌桕。
项目在公区打造上,充分考虑业主的日常社交、休闲与运动需求,规划约3000㎡会所空间(含架空层),涵盖恒温泳池、健身房、瑜伽室、会客厅等,从日常运动到品质社交,全方位覆盖业主生活场景。*功能以实际交付为准,仅供参考

地下会所过程稿意向图,仅供参考
项目在精装品牌甄选上尽显品质诚意,严选吉博力、美诺、博世、博洛尼等国际一线品牌,并搭载华为全屋智能系统。同时,中央空调、地暖、新风系统三大件配齐,如此高规格的精装标准,在杨浦滨江乃至同级别项目中都极具竞争力。
户型方面,除了率先透露信息的大户型,在整体设计上强调空间的可变与包容性。
270°转角玻璃、双阳台、N+1灵动空间等设计,突破传统局限,赋予居者更自由丰盛的生活体验。
另外,在景观营造上,以英国邱园及德寇特花园为灵感蓝本,打造“东韵西境”的立体园林。

建面约139㎡四房户型:
南向面宽10米,侧向总面宽14.1米。两个转角飘卧室。双阳台,其他房间全飘窗赠送。除了西边,另外三面几乎全是窗。看中庭景观,不到约140㎡的户型竟然能配浴缸!
建面约154㎡四房户型:
四面宽,南向总面宽约14.2米,客厅面宽约4.3米,进深约7米,客餐厨阳台一体化,主卧面宽约3.8米。三阳台(交付后不破坏外立面可以自行打通改造)、主卧大转角飘。
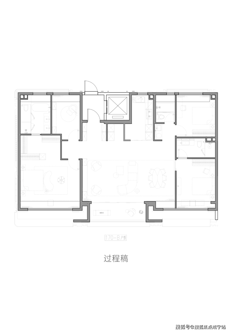
建面约170㎡户型:
五面宽设计,南向总面宽约17.2米,餐客厅面宽约8.2米。主卧面宽约5.4米,尊崇独立衣帽间,空间阔绰可分男女。三个套房。独立八百库收纳、卫浴收纳拉满。

声明:本文由入驻焦点开放平台的作者撰写,除焦点官方账号外,观点仅代表作者本人,不代表焦点立场。
