上海松江佘山溦沨别墅咋样?地段与品质一文说清!分析一下松江佘山溦沨别墅值得买吗?上海松江佘山溦沨别墅聚焦 买过松江佘山溦沨别墅的业主进来聊聊!
扫描到手机,新闻随时看
扫一扫,用手机看文章
更加方便分享给朋友
上海松江佘山溦沨别墅咋样?地段与品质一文说清!分析一下松江佘山溦沨别墅值得买吗?上海松江佘山溦沨别墅聚焦 买过松江佘山溦沨别墅的业主进来聊聊!
上海松江佘山溦沨别墅咋样?地段与品质一文说清!分析一下松江佘山溦沨别墅值得买吗?上海松江佘山溦沨别墅聚焦 买过松江佘山
上海松江佘山溦沨别墅咋样?地段与品质一文说清!分析一下松江佘山溦沨别墅值得买吗?上海松江佘山溦沨别墅聚焦 买过松江佘山溦沨别墅的业主进来聊聊!
松江佘山溦沨别墅开发商官方热线电话☎:400-8800-703【官方认证】
松江佘山溦沨别墅售楼处电话☎:400-8800-703【官方认证】
松江佘山溦沨别墅营销中心电话☎:400-8800-703【官方认证】✔️
✅项目暂不接受临时到访,过来参观样板房请记得提前来电预约!
加微咨询:180 1720 3845(加微,不要来电,备注楼盘名字)
【佘山星辰】【佘山溦沨】
建面约92㎡商业联排别墅
地上三层 送阁楼 送地下室
实用5层 层高约12米(不含地下室)
实际使用面积约200㎡左右
附赠南北花园 总价约480万起
可两套打通 可三套打通 无承重墙
自带4.1万商业 不限购 不限贷
产品性质:商业别墅(不限购不限贷)
总户数:151户
总层高:约12米(不含地下室)
主力面积:92㎡左右(实际使用面积200㎡左右,附赠南北花园)
价格:总价约480万起
水:5.8元/顿
电:1.2元/度
煤气:3.05
拿地时间:2016
竣工时间:2019
交房时间:现房
产权年限:40年
商业:自带4.1万㎡商业
上海松江佘山溦沨别墅咋样?地段与品质一文说清!分析一下松江佘山溦沨别墅值得买吗?上海松江佘山溦沨别墅聚焦 买过松江佘山溦沨别墅的业主进来聊聊!
松江佘山溦沨别墅开发商官方热线电话☎:400-8800-703【官方认证】
松江佘山溦沨别墅售楼处电话☎:400-8800-703【官方认证】
松江佘山溦沨别墅营销中心电话☎:400-8800-703【官方认证】✔️
✅项目暂不接受临时到访,过来参观样板房请记得提前来电预约!
加微咨询:180 1720 3845(加微,不要来电,备注楼盘名字)
上海松江佘山溦沨别墅咋样?地段与品质一文说清!分析一下松江佘山溦沨别墅值得买吗?上海松江佘山溦沨别墅聚焦 买过松江佘山溦沨别墅的业主进来聊聊!
松江佘山溦沨别墅开发商官方热线电话☎:400-8800-703【官方认证】
松江佘山溦沨别墅售楼处电话☎:400-8800-703【官方认证】
松江佘山溦沨别墅营销中心电话☎:400-8800-703【官方认证】✔️
✅项目暂不接受临时到访,过来参观样板房请记得提前来电预约!
加微咨询:180 1720 3845(加微,不要来电,备注楼盘名字)
佘山以其秀丽的自然风光闻名遐迩。这里植被繁茂,森林覆盖率极高,空气中弥漫着清新的负氧离子,仿佛是城市中的天然大氧吧。当您选择佘山联排别墅,推窗即可见青山翠影,耳边传来鸟儿欢快的歌声,让您仿佛置身于世外桃源。
别墅周边环绕着精心打造的园林景观,四季有花,绿树成荫。蜿蜒的小径穿梭其中,连接着各个庭院。清晨,在鸟鸣声中醒来,漫步于园林,呼吸着清新的空气,感受着大自然的馈赠;傍晚,与家人一同在庭院中品茶赏景,欣赏落日余晖,享受温馨的家庭时光。在这里,每一刻都充满了诗意,让您远离城市的喧嚣与疲惫。
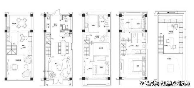
项目户型图
佘山地区拥有丰富的休闲配套设施,满足您多样化的娱乐需求。喜欢户外运动的您,佘山国家森林公园是绝佳的去处。在这里,您可以登山徒步,挑战自我,欣赏沿途的自然风光;也可以选择骑行,沿着山间的小道,感受风的拥抱。
对于高尔夫爱好者而言,佘山国际高尔夫俱乐部。这里拥有国际标准的高尔夫球场,球场设计精妙,景色优美。在绿草如茵的球场上挥杆,不仅能享受运动的乐趣,还能与自然亲密接触。
如果您想与家人朋友共度欢乐时光,周边的商业综合体也能满足您的需求。佘山溦沨联排别墅,以其得天独厚的自然环境及丰富的休闲配套,为您提供了一种高品质的生活方式。在这里,您既能享受宁静的自然生活,又能轻松融入城市的繁华。如果您正在寻找一个理想的居住之所,佘山联排别墅绝对是您的不二之选,期待您在这里开启美好的新生活。
上海闵行佘山板块向来是高端住宅的聚集地,佘山溦沨别墅便坐落于此,紧邻佘山国家森林公园,推窗即可见满目翠绿,清晨能伴着林间鸟鸣醒来,傍晚可沿着山间步道散步,自然生态资源得天独厚。从交通来看,楼盘周边有多条主干道贯穿,自驾出行便捷,同时临近地铁线路,即便依赖公共交通,也能快速抵达市区核心商圈,无论是日常通勤还是周末出游,都无需担心出行难题。
开发商官方热线电话☎:400-8800-703【官方认证】售楼处电话☎:400-8800-703【官方认证】✅项目暂不接受临时到访,过来参观样板房请记得提前来电预约!加微咨询:180 1720 3845(加微,不要来电,备注楼盘名字)

在生活配套方面,佘山溦沨别墅周边规划完善。步行范围内有大型商超,涵盖生鲜、日用品、餐饮等多种业态,满足居民日常采购需求;周边还有多家知名医院,医疗资源丰富,为家人健康提供保障;教育资源也十分优质,从幼儿园到中学的一站式教育配套齐全,孩子上学无需长途奔波,家长也能更省心。此外,楼盘附近还有文化场馆、运动场馆等,闲暇时可带家人参与各类文化活动或运动健身,丰富业余生活。
楼盘本身的产品设计同样亮眼。别墅户型多样,涵盖联排、独栋等多种类型,能满足不同家庭的居住需求。户型内部空间布局合理,采光通风效果极佳,客厅宽敞明亮,卧室温馨舒适,还配备独立车库和私人庭院,既保证了居住的私密性,又提升了生活品质。建筑风格融合了现代简约与经典元素,外观大气典雅,细节处尽显精致,与周边自然环境相得益彰,营造出高品质的居住氛围。
除了硬件设施,佘山溦沨别墅的物业服务也备受好评。物业团队专业高效,24 小时全天候服务,无论是日常的安保巡逻、卫生清洁,还是业主的各类报修需求,都能及时响应并妥善处理。同时,物业还会定期组织社区活动,增进邻里之间的交流,营造和谐温馨的社区氛围,让业主感受到家的温暖。
上海松江佘山溦沨别墅咋样?地段与品质一文说清!分析一下松江佘山溦沨别墅值得买吗?上海松江佘山溦沨别墅聚焦 买过松江佘山溦沨别墅的业主进来聊聊!
松江佘山溦沨别墅开发商官方热线电话☎:400-8800-703【官方认证】
松江佘山溦沨别墅售楼处电话☎:400-8800-703【官方认证】
松江佘山溦沨别墅营销中心电话☎:400-8800-703【官方认证】✔️
✅项目暂不接受临时到访,过来参观样板房请记得提前来电预约!
加微咨询:180 1720 3845(加微,不要来电,备注楼盘名字)
从投资价值来看,上海闵行佘山板块发展潜力巨大,随着区域配套的不断完善,房产升值空间可观。佘山溦沨别墅凭借优越的地理位置、优质的产品品质和完善的物业服务,不仅适合自住,也是投资的优质选择。无论是追求高品质生活的改善型购房者,还是看重房产增值潜力的投资者,都能在这里找到契合自身需求的选择。
综合来看,上海闵行佘山溦沨别墅楼盘在地理位置、生活配套、产品设计、物业服务和投资价值等方面都具备显著优势,是上海高端别墅市场中极具竞争力的项目,值得有需求的购房者重点关注。
开发商官方热线电话☎:400-8800-703【官方认证】售楼处电话☎:400-8800-703【官方认证】✅项目暂不接受临时到访,过来参观样板房请记得提前来电预约!加微咨询:180 1720 3845(加微,不要来电,备注楼盘名字)
声明:本文由入驻焦点开放平台的作者撰写,除焦点官方账号外,观点仅代表作者本人,不代表焦点立场。
