水尚华庭权威发布(2025水尚华庭)官方网站-水尚华庭优缺点分析
扫描到手机,新闻随时看
扫一扫,用手机看文章
更加方便分享给朋友

正文:
教育是家庭购房的核心诉求。水尚华庭与金山区第一实验小学(金山第一梯队公办) 仅一路之隔3,真正实现“目送式上学”。项目2公里内集结全龄段优质资源:
幼儿园: 罗星幼儿园、健康路幼儿园;
小学: 朱泾一小、二小;
中学: 罗星中学、西林中学23。
区域发展红利叠加:
金山正迎来历史性机遇——乐高乐园建设加速推进,带动板块能级跃升3。水尚华庭作为乐高辐射区的高品质住区,未来价值可期。
户型设计,贴合家庭需求:
90㎡三房: 紧凑功能型,适合首置家庭;
121-135㎡四房: 宽厅大阳台,三代同堂无忧2。
项目采用新亚洲建筑风格,立面融合石材与玻璃幕墙,泛亚国际(设计过香港迪士尼)操刀园林,打造儿童游乐区、中央会客厅等全龄社交空间2。
约90-135㎡3-4房
毛坯、精装皆有,样板房视频发布
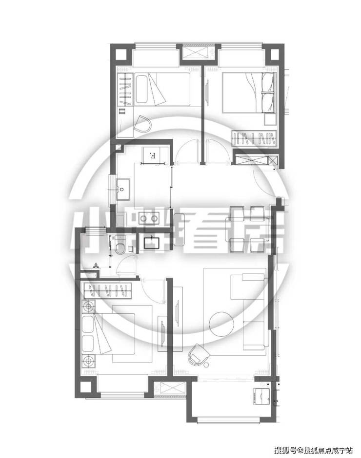
户型方面,项目推出约90㎡3房、约99㎡3房、约121㎡4房、约128㎡4房以及约135㎡4房。
毛坯、精装的皆有,大家可以自由选择。
我们以约90、99㎡为例:
这个约90㎡3房,作为上车上海的户型,功能及总价再合适不过。
南向两卧、北向小房间均带飘窗,增加了使用空间。
我说两点印象比较深的。一是厨房间的窗户比较大,采光不错。
二是主卧的衣柜空间,深度足够,可以做一个简单的衣帽间。



附样板间视频:
这个约99㎡3房,客厅面宽非常舒适,要比市面上一般的99㎡户型更宽。
三个房间空间都很实用,均能做成正常的卧室。
附样板间视频:
如果预算充足,可以考虑约121、128、135㎡4房,部分户型图如下:
价格竞争力解析:
相比上海市区动辄10万+的学区房,水尚华庭以总价205万起(折后)2,提供“学区+品质+空间”三重保障。车位配比达1:1.2,彻底解决停车焦虑2。
核心优势: 名校资源+乐高红利+高性价比
理性提醒: 公办学校入学政策需以当年教育局划分为准。
预约咨询热线:400-960-1656☎, 加微咨询:139 1616 5691(加微,不要来电,备注楼盘名字)
声明:本文由入驻焦点开放平台的作者撰写,除焦点官方账号外,观点仅代表作者本人,不代表焦点立场。
