外滩瑞府(上海虹口)外滩瑞府售楼处首页网站|外滩瑞府2025年最新户型配套房价|小区环境
扫描到手机,新闻随时看
扫一扫,用手机看文章
更加方便分享给朋友

去年11月27日,华润置地旗下的上海煦臻企业管理有限公司以总价51.36亿元竞得虹口区C080301单元hk191A-03地块,成交楼面价92934元/平方米,溢价率11.97%,地块中小套型占比40%,装修标准4000元/㎡。
方案显示,地块总占地面积14280.63㎡,容积率3.87,总建筑面积86241㎡,地上建筑面积60201㎡,计容建筑面积55266㎡,地下建筑面积26040㎡,计划建设4幢24-31层高层住宅以及1幢总高3层的风貌建筑。
具体来看,1#总高31层,一层架空;2#总高31层,一层架空;4#总高32层,一层架空;3-1#总高24层,一层架空;6为风貌建筑,总高3层,含商业和住宅。在景观设计方面,小区内规划了景观架构、风雨连廊以及下沉式庭院。
外滩瑞府的建筑设计,是一场“向历史致敬、向未来生长”的实验:采用“风貌→幕墙→冠冕”过渡式向上生长设计:基座延续石库门拱券符号,中段以玻璃幕墙与金属线条勾勒现代美学,顶部“冠冕”造型致敬外滩古典建筑天际线;

以“街区可漫游”的城市更新理念激活历史里弄:保留风貌建筑的同时,规划植入文化艺术分馆、精品咖啡工坊、黑胶唱片店等“高级烟火气”业态,让老上海的“弄堂温度”与国际生活方式碰撞出新火花——这不是简单的“盖房子”,而是“造生活”。
外滩瑞府,地处上海内环最“根正苗红” 的位置 —— 外滩1 公里生活圈。如果说内环是上海豪宅的 “第一梯队”,那外滩板块就是 “内环中的内环”。


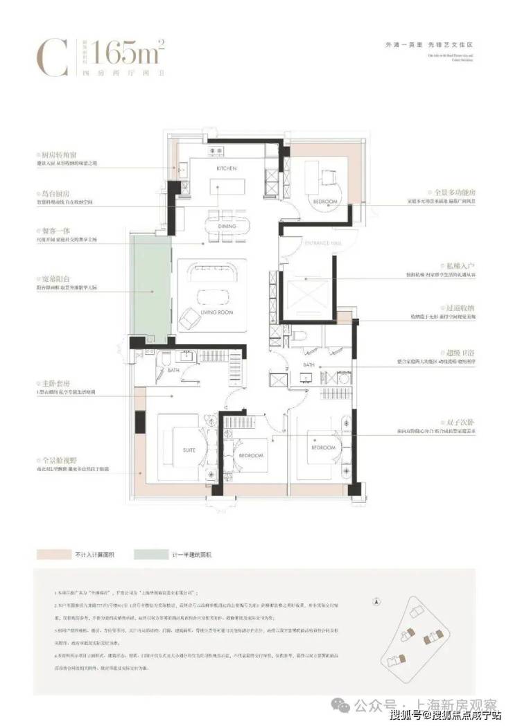
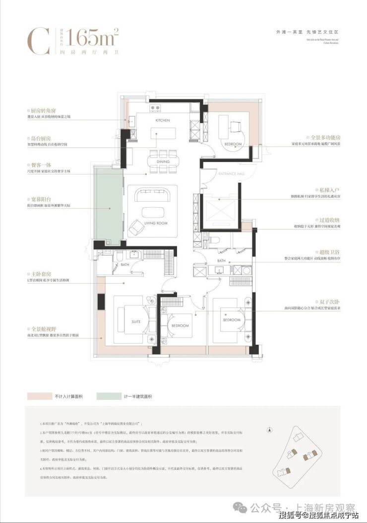
虹口北外滩旁,10号线四川北路站约400米!「外滩瑞府」二批次加推建面124-165-330㎡3-4房;均价14.83万/㎡!认购金200万!认购时间:10月17日-10月21日!售楼处线上火热预约中!
主力户型约124-165㎡3-4房;当下2000万级已经完全买不进黄浦核心地段,而外滩瑞府不仅能以2000万级入手,更是今年2000-5000万级上海位置更好、更值得入手的豪宅!
一房一价表如下:
建面约240㎡4房样板间展示如下:


最新效果示意图如下
外滩“历史溢价”与陆家嘴“未来势能”在此叠加,黄金三角腹地成为中国高净值圈层的聚集地,是时代价值创造者的共同选择。


项目以“街区可漫游”的城市更新理念激活历史里弄:保留风貌建筑的同时,规划植入文化艺术分馆、精品咖啡工坊、黑胶唱片店等“高级烟火气”业态,让老上海的“弄堂温度”与国际生活方式碰撞出新火花;
建筑立面采用“风貌→幕墙→冠冕”过渡式向上生长设计:基座延续石库门拱券符号,中段以玻璃幕墙与金属线条勾勒现代美学,顶部“冠冕”造型致敬外滩古典建筑天际线,堪称“向上生长的精神图腾”。
外滩瑞府全域风雨连廊,将风雨连廊扩容为完整的归家体系,实现全住宅楼栋无风雨归家,带来顶豪级的归家居住体验。

项目示意图,过程稿仅供参考,以实际交付为准
区位方面,“上海2035”总体规划明确,外滩将作为“全球城市核心功能承载区”,与陆家嘴、北外滩组成“黄金三角”,目标直指“卓越全球城市”的封面。这一规划不仅定义了上海的空间格局,更将外滩推向全球资本、文化、资源的核心交汇点。

外滩瑞府择址于此,对标纽约ONE57、伦敦海德公园一号——非全球资本聚集地不选,非历史与未来叠加区不立,其价值内核正是对“黄金三角”核心资产的精准锁定,为业主提供了“抗周期”的资产保障。
交通上,距轨道交通10号线四川北路站0.4公里,商业上,利通广场、壹丰广场、中信广场1933购物中心 都在步行距离范围内;
教育上,有民办新华初级中学、虹口区中州路第一小学、上海市虹口区第一中心小学、上海市海南中学 ;医疗上,临近上海市第一人民医院。

在市场方面,目前该地块周边的新建住宅项目包括北外滩虹口源717、越秀·外滩樾、上海弘安里、海泰北外滩、天潼198、光大&伊泰置业北外滩项目以及碧云北外滩尊邸等。
越秀外滩樾项目位于地块西侧约350米处,该项目为风貌别墅,已于去年年底正式推向市场,主力户型面积在235-338㎡之间,总价段为4000万元-8000万元。
位于地块北侧约600米的北外滩虹口源717项目目前在售。该项目上一次开盘时间是去年6月份,共推出228套建面约100-356房源,备案均价138000元/平方米,认购率86%,截至目前,网上房地产显示,项目已售住宅套数为155套,网签去化率68%。
上海弘安里项目位于地块西南侧1公里左右,该项目为风貌别墅,于去年3月份首开,目前项目在售少量建面约380㎡风貌别墅,总价约8000万起,均价约24.3万/㎡。
碧云北外滩距离项目900米左右,该项目上一次开盘时间是去年12月份,共推出137套建面约180-230㎡房源,备案均价130000元/平方米,开盘当天去化率约66%,截至目前,网上房地产显示,项目已售住宅套数为88套,网签去化率64%。
虹口北外滩旁「外滩瑞府」二批次加推约124-330㎡3-4房;均价14.83万/㎡!
声明:本文由入驻焦点开放平台的作者撰写,除焦点官方账号外,观点仅代表作者本人,不代表焦点立场。
