国贸海上原墅(售楼处) 首页 - 国贸海上原墅销售中心 - 环境 -海上原墅户型 - 价格 - 地址 - 楼盘详情 - 配套 - 电话 - 交房时间 - 配套 - 电话 - 交房时间
扫描到手机,新闻随时看
扫一扫,用手机看文章
更加方便分享给朋友
最新消息:松江广富林墅居标杆「国贸海上原墅」五批次已过会,建面约90-202㎡公寓、联排即将加推,均价55041元/㎡
松江,被称为“上海之根”。
上海县,是在松江府下辖的上海镇升级而来,直到1927年才独立成市。1958年,松江又从江苏划给上海,完成了从属关系的大逆转。
示意图
先有广富林,后有松江史!
四五千年之前,一批“沪漂”来到了广富林,建立了璀璨的广富林文化。在此后漫长岁月里文明持续演进,为松江府及上海市的崛起奠定了文化根基。
2018年,耗资200亿的广富林遗址公园历经十年建成开放,成为松江及上海一张文化名片。
广富林遗址公园实景图 来自网络
同年,广富林地区城市设计总体方案发布,这片蕴含深厚古韵之地,开启了焕新之旅,并称为松江新城乃至上海五大新城的人居高地。
有三个方面的原因:
第一个原因,是广富林站在了松江新城巨人肩上。
五大新城,当然各有特色。未来哪个新城更有前景,各方各有说辞。但有一点是公认的,论现状的发展成熟度和宜居属性,松江新城是“老大哥”。
松江新城是上海最早开发的新城,也是最早通地铁的新城,商业医疗等城市配套密集程度在新城中首屈一指,下面这个对比一目了然。

数据来源:脉策数据
松江新城中部已经开发完毕,完成成熟。之前留白的广富林区域,直接站在巨人肩上C位出道。
第二、广富林占据绝佳的区位,揽一城精粹于一身。
我们看下广富林地区的相邻关系。
区位示意图
左邻广富林遗址公园、广富林郊野公园及辰山植物园。这里不仅是一个网红打卡点,也不仅是一个休闲游憩场所,而是底蕴悠长的上海文化之根,和日益珍贵的城市资源。
辰山植物园实景图 来自网络
南面广富林路一路之隔就是松江大学城。7所高校在此聚集,人文氛围、青葱校园及青春活力,为广富林注入现代人文底色。

松江大学城实景图 来自网络
北望佘山,与佘山国家森林公园及别墅区相隔的,则是在建的松江新城绿环。这里正在建设内贯通道、系列驿站,及山麓教堂、彩林门户等“大师园”。

松江新城绿环规划示意图
广富林文化生态圈最动人的特质,在于它提供了传统与现代共生的范式。DeepSeek为广富林写下了这样一段充满诗意的文字:
广富林的魔力,在于它让每个现代上海人都成了“携带遗址生活”的文明载体。
当我们用广富林出土的陶器形制喝星巴克咖啡,穿着马桥文化几何纹样演变的潮牌卫衣,在复原宋代天文仪的摩天轮上俯瞰城市时,便完成了对文化传承最鲜活的诠释——真正的文明根系,永远不会沉睡在考古探方里,而是化作推动城市向未来生长的磅礴地力。
第三,广富林区域后来居上,复合功能全新界面。
2018年,广富林地区总体方案发布,这块留白的精华地段开启了“顶层规划+成片开发”的序幕。这也是前滩、新杨思、前湾等板块的开发模式,拥有更前瞻的理念、更科学的布局,和更有力的节奏。

根据规划,广富林板块将打造成为松江新城——集聚新潮消费与滨水生活的松江新城商业中心,北部产学研城融合发展带的核心组成部分,聚焦创新创业功能,提供特色公共服务,具有新城北部亮点地区的新城市名片。
具体来说,广富林片区将围绕“五个一”实施城市规划建设蓝图——
一个复合城区:功能集聚办公、商业、住宅、养老等类型,河道两岸布置教育、医疗、体育等公共设施;
一个区级商业中心节点:印象城MEGA(二期在建)与广富林遗址特色商业融合;

商业效果示意图
一个崭新城市界面:整个片区全新开发,在广富林路形成高地错落天际线;
一条活力内街——对标“黄金城道+大学路”,打造有温度的富林城道;

示意图
一条滨水景观长廊——连接西端富林湖,东端五龙湖,打造松江最具特色的银河滨水慢行景观长廊。

银河长廊规划示意图
从规划落地节奏来看,广富林板块也是松江新城“10+x”空间战略新城内五个重点片区之一,是松江区十四五新城重点发力打造的、具有集中度、显示度的重点区域之一。

松江“十四五”“10+x”战略体系规划图
以上规划信息及图片,均来自松江规划资源。
目前广富林区域系列高品质办公楼宇及万科龙湖等高端住宅在建,印象城二期在建,华政高中及上海市实验学校松江新城分校均在建设之中。集历史文化、大学园区、地标商业与高端住宅于一体的“新十里长街”,即将华丽成型!
广富林,在城市界面与资源浓度方面,不仅是松江的宜居高地和改善置业的终极归属,更是五大新城里少有的可以媲美上海市中心的板块。
而且,还有着其他板块所不具备的深厚人文底蕴。
问鼎五大新城人居价值桂冠,可谓实至名归。
PART 2
富林湖畔的独特占位、约1.2容积率低密墅居,和基于广富林文化深度挖掘打造卓越的产品力,是海上原墅引领人居高地的三大法宝。
第一,与广富林遗址公园为邻的独特位置。
《繁花》有句名言:唯有土地与明天同在。
买房,首先买的是“脚下的土地”和“窗外的风景”。
海上原墅,位于广富林文化遗址公园旁,脚下是4000年的灿烂文明,窗外与广富林希尔顿酒店同享五星级视野,约13万方的富林湖水面。
背靠佘山,眺望湖水,这正是中国传统文化中的理想人居之所。
区位示意图
项目西侧,是佘山珑原/合生广富汇等成熟的别墅区,聚集了一批高净值高素质人群,也带来了一种优雅的生活和社交圈层。
项目南侧,是华东政法大学附属高中(在建),及九年一贯制华政附属实验学校。华政附属实验学校的首届毕业生就在当年的中考成绩斐然,全区最高分也花落华政附校,建校至今升学率一路高升,越来越得到家长的认可。
华政附属实验学校实景图
项目西侧约350米(直线距离)是上海视觉艺术学院附属松江实验幼儿园,东南侧约900米(直线距离)是龙马幼儿园(一级园)。
说明:新房不承诺学区,学校对口范围以教育局公布为准。
同时,项目南侧还规划一处商业用地,建筑面积大约为2.75万平方米。落地建成后,将显著提高项目日常生活的便利性。

现状实景图
公园环绕,商圈环伺,真正的入则宁静出则繁华!
第二,约1.2容积率低密墅居。
容积率,代表着对土地资源的占有浓度。
2024年,上海公开市场拍卖和协议出让共70块宅地,其中1.2容积率仅3块,国贸海上原墅是其中之一。低密度住宅的稀缺性可见一斑。
在广富林地区近几年出让开发的住宅项目中,海上原墅也是容积率更低的一个。这也奠定了项目在广富林板块的标杆地位。
项目商品住宅产品由9幢6-8层的洋房,9幢4层叠加,以及12幢3层的联排组成。
洋房包围在外围,其次是叠加,联排在社区中心位置,整体低密氛围的同时,形成错落有致的层次感。

效果示意图(过程稿),仅供参考
在松江新城,叠加已经算珍惜物种,更不用说联排别墅。上一次联排别墅的供应,广富林的合生广富汇,已经在10年之前!
第三,融入广富林文化的品质力作。
这片土地的独特位置和低密属性,其实给开发商出了很大难题:产品打造必须对得起这土地文脉,和周边的环境与文化融洽共生。
这份重任交到了“国贸地产”与“松江交投集团”身上。
两者都是松江的共建者与城市发展的见证人。
国贸地产是世界500强企业国贸控股集团核心成员企业,已在松江深耕超过10年,成功开发了10个标志性项目,对区域文化有着深刻的理解;而松江交投集团则负责松江基础设施建设(例如9号线、有轨电车),两者的强强联合确保了项目的品质和资源的整合能力。
项目并没有采取国贸地产标准化产品线,而是特别针对广富林的文化根源,采用高度在地化“文化筑居”的设计理念,塑造“新江南学院派”风格的建筑。
建筑立面,汲取广富林文化精髓再造东方屋宇,采用渐暖色石材、银灰色及香槟色铝板和涂料的组合,带来厚重与轻盈的平衡,在彰显文化豪宅的同时又包含国际风骨,整体呈现诗意东方之美。


效果示意图(过程稿),仅供参考
比如,富林美学馆长度超140米的平檐建筑,取自古代画作中的“平远”风格,创造出区域内最具江南意境的宽屏门楣。建筑两侧花繁叶茂,是在复现《富林春晓》这首诗中“花落风檐多”的意境。

效果示意图(过程稿),仅供参考
景观园林,以 "富林风华,十景多花园"为项目核心理念,通过现代设计语言重构《富林十景》的山水意象,将 "山、水、茶、酒、舟、市" 等江南文化符号有机融入空间序列,营造 "一步一景,移步异景" 的沉浸式归家体验。

效果示意图(过程稿),仅供参考
比如,大堂通往墅区的路径中引入了「雾森系统」,是在复现《村庄雨霁》诗句中的庭院深深烟雨朦胧的唯美意境。

效果示意图(过程稿),仅供参考
会所空间,打造了泳池、咖啡厅、私宴厅、下沉庭院、健身房等功能节点,让会所成为全家人运动休憩会友的场景所在。
比如下沉庭院,臻选并移植黑松到庭院之内,辅以龙鳞地面铺装,营造《松林龙蜕》诗内老松虬枝苍劲,如龙盘踞的意境。同时以山石层叠、高低景墙和坡度草坪创作一个可容纳小型沙龙的环形聚落,再现《九峰环翠》的山石意向。

效果示意图(过程稿),仅供参考
户型设计,提供多样化适合全周期家庭结构需求的三类产品,包括:
建面约122-144㎡4房的洋房;一梯两户设计,三开间朝南飞机户型,餐厅厨房客厅阳台一体化设计,全屋飘窗,主卧步入式衣帽间大套房。
户型图过程稿,仅供参考
建面约141-150㎡3房,约151-160㎡4房叠墅
以建面约150㎡下叠户型为例:首层拥有约7.2米的横厅,与南向花园相连;二层的部分区域设计为客厅挑空,让客厅更气派,可以改造为房间增加功能性;地下室层高约5.65米,根据业主喜好设计为酒窖、健身房、SPA室,书房等。
户型图过程稿,仅供参考
以建面约141㎡上叠户型为例:格局与下叠基本相同,约7.2米的横厅,客厅局部挑空。北向的储藏室附带阳台(阳台可打通,改造成北向房间),二层则拥有南北双露台。
户型图过程稿,仅供参考
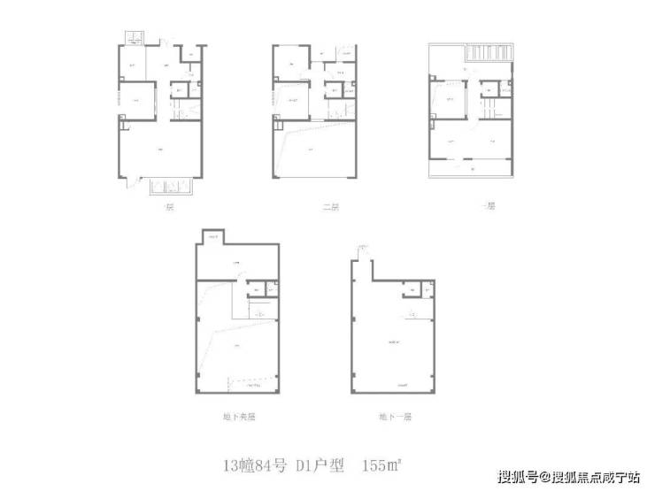
建面约157-176㎡3房,约202-205㎡4房的联排
联排别墅的户型设计,极富创新,十分精彩。
约5.65米层高地下室,一层客厅挑空约6.45米,三层双露台,彰显非凡气度。
建面约157㎡的户型,还设计了类似天井内庭院空间(不计入建筑面积),业主也可以按照个人喜好进行改造。同时可以对地下室和客厅挑空部分进行创意设计,实现空间魔法倍增。
户型图过程稿,仅供参考
广富林,推开了一扇四千年时空之门。
连绵四千年的上海文化之根,在G60科创走廊的驱动下,和五大新城的规划引领下,正在奏响海派文明的复调与现代人居的交响。
Ta不仅是松江的名片,也是上海精神的象征。
在毗邻遗址的海上原墅,设计师正用当代建筑语言和现代工艺重构“新江南院落”形态。这是对广富林文化的致敬,也是在续写当代人居新的高峰~
声明:本文由入驻焦点开放平台的作者撰写,除焦点官方账号外,观点仅代表作者本人,不代表焦点立场。
