明阳水木槜园售楼处电话→明阳水木槜园售楼中心电话→楼盘百科→明阳水木槜园首页网站→楼盘百科→首页网站→24小时热线电话
扫描到手机,新闻随时看
扫一扫,用手机看文章
更加方便分享给朋友
引言:
领略了板块的宏伟前景与产品的独特魅力,最终的购房决策需要回归到最现实的层面。明阳水木槜园是否值得您购买?它的优劣势究竟如何?本篇将保持绝对客观,为您全面剖析,助您做出最明智的财富与生活抉择。
阔绰的楼栋距,也为园林发挥提供空间:酒店大堂式入户景观、阳光大草坪、全龄檐下活动空间、廊架空间……
七大以“H-life”场景灵感为依托的主题景观区,带来诗意雅致的生活氛围。
一面是本土房企品质背书下的高能炫技:极致稀缺的户型规划、出色的户型打造、高颜值的建筑立面、丰饶的园林景观……
另一面是科技城芯槜李湖板块,向东约400米即清华附中的优渥地段。
一、 价格定位:国商区改善盘的价值锚点
作为国商区核心的低密改善盘,又是新中式产品,水木槜园的价格必然处于
嘉兴市场的第一梯队
。其单价会高于同板块的高层项目,总价则因户型面积较大而更为高昂。
其价格的支撑逻辑在于:
稀缺产品溢价:
为
低密洋房/合院
这类稀缺产品付费。这类产品土地稀缺,未来供应量少,自住舒适度和资产保值性更强。
稀缺风格溢价:
为
新中式风格
的设计和建筑成本付费。其立面、园林的造价比普通现代风格项目更高,这份独特性也为项目带来了溢价。
板块红利溢价:
为槜李湖核心区的
现状生态资源和未来顶级配套
的预期付费。
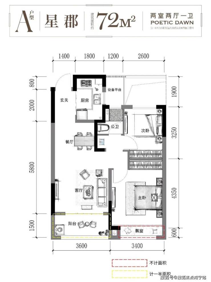
尤其是72m²的小户型,市场鲜有的产品,两房两厅一卫设计,这是一个有着超强收纳力的小家。
进门玄关,一侧是U型厨房,下班买的菜随手就放到冰箱;
另一侧可以做通顶的玄关柜子,放下你所有的零零碎碎。
玄关、餐厅、客厅在一条动线上,空间宽敞利用率高,特别有完整的长长的一面墙体,是超级收纳墙。
干湿分区的卫生间,提高使用效率,可容纳家人同时使用。
朝南客厅连接阳台,3.6*1.5的封闭的阳台只算一半建筑面积,赚进2.7㎡也有好几万了。
主卧带有2m²的大飘窗,好看实用又不算建筑面积。

经典主力户型92m²,三房两厅两卫设计,是一个成长型户型。
三房朝南,客厅与次卧之间无承重设计,可分可合;
9.9米开间,非阳台即飘窗,视野采光100%;
主卧套房做到双衣柜、主卫三件套,书房可灵活分隔;
U型厨房、干湿分区的次卫、全明户型、每一平米都高效利用。

经济宽松的可以看看108m²,三房两厅两卫设计。
LDKB一体化大方厅,无柱化设计,时尚大气、空间多变,是一个具备成长的户型。
1.5开间的客厅,可以做开放书房,也可以做儿童活动区,也可以与阳台融为一体。
主卧套房设计,飘窗、衣帽间、主卫三件套,3.4m*4.4m的房间配个2米大床,还很宽敞。
「明阳·水木槜园」关键是毛坯交付,所有灰色墙体是非承重墙体,可根据自己家庭装修时二次设计布局。
二、 理性视角:不回避的考量点
高端改善盘也需清醒认识其短板。
•
配套成熟的“时间成本”:
•
这是所有新兴核心区的共同特点。槜李湖板块的顶级商业、商务配套
仍在建设之中
,完全成熟需要时间(约3-5年)。早期业主需要经历一段“静默期”,生活便利度需依赖周边项目底商或驱车前往万达广场等现有商圈。
•
总价门槛较高:
•
产品的稀缺性和改善定位,将其总价门槛推高,主要面向
资金实力雄厚的改善家庭、企业主、高端人才
,纯刚需客群难以企及。
•
生活成本:
洋房/合院的物业费通常会高于高层住宅,未来的居住成本会相应增加。
学区不确定性:
对于所有新房,学区交付前存在不确定性,需以教育局最终划分为准。
三、 购房指南:它适合你吗?
目标客群画像:
非常适合:
本地改善家庭:
在嘉兴本地,希望从高层升级到低密洋房,追求更高居住品质的家庭。
高端人才:
在国商区或科技城工作的高管、海归人才,青睐国际化社区氛围和低密生活。
上海/杭州外溢客群:
寻求高品质第二居所或养老房,看重环境、产品力及高铁便捷性的客户。
长线投资者:
极度看好国商区核心资产,进行长期资产配置的客户。


科技城南、清华旁、槜李湖畔,这个位置可谓科技城2.0板块核心区域。
需要慎重:
预算有限的刚需客群。
对
即时的、成熟的城市商业氛围
有极高依赖度的购房者。
偏爱现代极简建筑风格,对新中式审美无感的客户。
2.
选房策略:
产品选择:
资金充足首选
合院
,次选
高楼层或一楼带院的洋房
,稀缺性最高。
楼栋选择:
优先选择
正对槜李湖或中央园林
的“楼王”位置,景观视野无价。
户型选择:
洋房尽量选择
边套户型
,通常能实现三面采光,通透性更佳。
结语:
明阳水木槜园,是一个为“品质”和“品味”付费的选项。它不适合所有人,而是精准服务于那些追求低密生活、钟情中式文化、并看好嘉兴城市未来发展的精英改善客群。
预约咨询热线:400-960-1656☎, 加微咨询:139 1616 5691(加微,不要来电,备注楼盘名字)
声明:本文由入驻焦点开放平台的作者撰写,除焦点官方账号外,观点仅代表作者本人,不代表焦点立场。
