十月豪宅聚焦@金港星海湾售楼处发布:核心板块的优质项目,
扫描到手机,新闻随时看
扫一扫,用手机看文章
更加方便分享给朋友
 
 
 
 
 
 
 
 
当“上海2035”规划的蓝图徐徐展开,临港新片区作为国家战略的“王牌”与“增长极”,其发展势能已如钱塘潮涌,不可阻挡。在这片充满无限可能的热土上,一个名字正被越来越多的置业者所关注——金港·星海湾。它并非一个孤立的住宅项目,而是深嵌于临港“一核一带两片”空间格局核心的金港片区,是这座城市雄心与未来生活的具象化载体。今天,就让我们一同深入,解码金港·星海湾,看它如何构建一座新城核心区的“全能型”生活样本。
 
 
一、 城市雄心所向:金港片区,站上时代风口
金港·星海湾的“根”,深植于金港片区这片充满活力的土地。这里,是临港新片区管委会所在地,是行政、文化、商业的绝对中心。其发展定位清晰而高远:打造国际创新协同区的核心承载区,聚焦人工智能、集成电路、生物医药等前沿产业。这意味着什么?意味着持续的人才导入、强劲的产业支撑和稳定的购买力。项目周边,顶尖科研院所(如上海天文馆、顶尖科学家论坛永久会址)、国际化的商务办公集群(如临港中心、滴水湖金融湾)林立,形成了浓厚的“智汇”氛围。选择星海湾,就是选择与城市最前沿的脉搏同频共振,分享区域发展的核心红利。未来,随着更多重大项目的落地和人口的加速聚集,金港片区的价值天花板将持续被推高。
 
 
金港·星海湾首发地块:
 
 
 
 
二、 生活半径之内:从“大城配套”到“精致烟火”
金港·星海湾的“圈”,画得足够大,也足够精细。其配套之成熟与多元,在临港新盘中堪称翘楚。
交通动脉,畅达全城:项目紧邻16号线滴水湖站(步行距离约XX分钟,具体以实际为准),是名副其实的“地铁盘”。16号线是连接临港与上海市中心的生命线,经龙阳路可便捷换乘多条地铁,通勤市区或浦东枢纽(如浦东机场、上海东站)效率大幅提升。未来,规划中的南汇支线(两港快线)将在滴水湖设站,设计时速高达160km/h,通车后将实现临港与浦东国际机场、上海东站的“空铁联运”,通勤时间有望缩短,彻底改变临港的时空距离。此外,项目周边主干道(如环湖一路、海港大道)网络发达,自驾出行同样便捷。
 
 
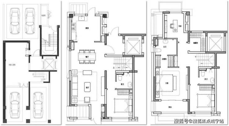
据悉,金港·星海湾首批住宅产品,建面约89㎡洋房、100㎡小高层,稀缺129-165㎡叠墅,总计232套房源,即将入市。
 
 
临港平和学校效果图
并依托两港快线站,等两港快线通车,从综合区站3站到浦东枢纽,机场联络线3站到张江。
 
 
值得一提,这里还将有完善的商业配套,两港快线综合区站TOD规划20多万方商业,南侧105中轴布局商办集群,观塘庐商业中心已在建设,社区内部还有E07地块集中商业。
 
 
繁华商业,近在咫尺:生活的便利性是刚需。星海湾坐拥港城新天地、百联临港生活中心等成熟商业体,满足日常购物、餐饮、娱乐需求。稍远距离的万达广场(临港店)也在合理通勤范围内。更令人期待的是,片区内规划了更高能级的商业中心,未来生活配套将更加丰富。
生态绿意,诗意栖居:项目与滴水湖仅一街之隔,是真正的“湖景房”。环湖的景观步道、公园绿地(如星空之境海绵公园、顶科公园)构成了天然的“城市绿肺”。清晨的湖畔晨跑,傍晚的夕阳漫步,周末的亲子野餐,推窗即享的湖光潋滟,是星海湾业主独有的生活特权。这种“面朝大海,春暖花开”的意境,在寸土寸金的上海实属罕见。
 
 
文教医疗,安心保障:片区汇聚了上海天文馆、中国航海博物馆等地标性文化设施,人文气息浓厚。教育资源上,有明珠临港小学(小学部)、上海中学东校(小学/初中部)、上海耀华临港校区等优质学校环伺(具体学区划分以教育部门当年政策为准),满足从幼儿园到高中的教育需求。医疗方面,第六人民医院临港院区提供三甲医疗服务,为健康保驾护航。
 
 
三、 产品力剖析:星海湾的“硬核”优势与潜在考量
金港·星海湾的产品设计,体现了对现代都市生活的深刻理解。
核心优势:
地段王者:位于临港核心金港片区,坐享顶级行政、产业、生态资源,区位价值无可复制。
湖景资源:稀缺的滴水湖一线或近湖景观,极大提升了居住品质和资产价值。
交通便利:地铁上盖或近地铁,双轨交(16号线+规划两港快线)预期,通勤优势显著。
配套成熟:商业、教育、医疗、文化等生活配套已高度成熟,入住即可享受“大城生活”。
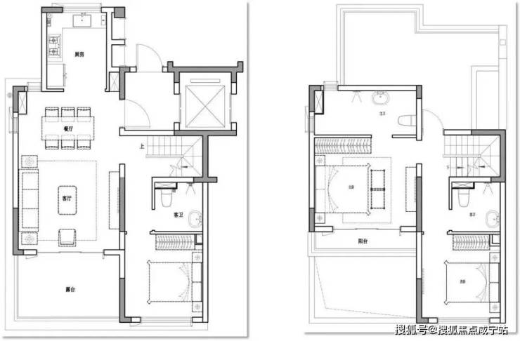
户型设计:主力户型(如约89㎡三房、约105㎡三房、约125㎡四房等)设计方正,功能分区合理,得房率在同类产品中表现良好,尤其注重采光和通风。部分户型拥有大尺度观景阳台或飘窗,最大化利用湖景资源。
 
 
二楼两间套房设计,均带有独立卫生间,主卧连接南向宽景阳台,舒适度非常高。
 
 
建面约129㎡上叠产品,带两个大露台,拥有非常大的附加空间,接景入室,视野开阔,空间利用率高。
项目的高层及洋房产品,也同样受到了市场的追捧:
 
 
 
 
 
 
 
 
 
 
 
 
 
 
 
 
 
 
 
 
 
 
 
 
 
 
 
 
潜在考量(客观看待):
价格门槛:作为核心地段的高品质项目,其单价和总价在临港新盘中处于较高水平(具体价格需咨询售楼处,参考均价可能在X万/㎡以上)。这要求购房者具备相应的资金实力。
开发商品牌:需关注开发商(如上海港城开发集团等)的过往项目口碑、交付品质和物业服务水平,这是长期居住体验的关键。
社区规模与密度:大型社区可能带来一定的人流车流,需实地考察社区规划和楼栋布局,了解实际居住私密性和安静程度。
学区不确定性:虽然周边名校云集,但具体学区划分存在调整可能,需以政府最终文件为准,不宜过度承诺。
 
 
 
四、 价格与未来:为价值与潜力买单
金港·星海湾的价格,是其核心价值的直接体现。它并非“洼地”,而是价值高地。对于购房者而言,选择这里,是选择:
当下即享的成熟生活:无需漫长等待配套兑现,入住即享繁华与便利。
确定性的区域前景:国家战略加持,产业、人口、政策红利持续释放,资产长期增值潜力巨大。
稀缺的资源占有:滴水湖一线/近湖景观是不可再生的稀缺资源。
 
 
结语:
金港·星海湾,是临港新片区发展最前沿的“封面作品”。它将国家战略的宏大叙事,落笔为一户家庭的日常烟火。如果你追求的是城市核心的便捷、顶级生态的滋养、成熟配套的安心以及面向未来的巨大潜力,那么金港·星海湾无疑是一个值得重点考量的“全能型”选择。当然,高昂的价格也要求你进行理性的财务规划。建议您亲临现场,感受湖风拂面,丈量生活半径,让内心为这座“新城之心”的生活样本做出最终的判断。
 
声明:本文由入驻焦点开放平台的作者撰写,除焦点官方账号外,观点仅代表作者本人,不代表焦点立场。
 
 
 