中粮北外滩壹号(2026年中粮北外滩壹号)官方网站-中粮北外滩壹号楼盘详情-中粮北外滩壹号户型配套/价格/房源
扫描到手机,新闻随时看
扫一扫,用手机看文章
更加方便分享给朋友
上海虹口中粮北外滩壹号售楼处电话:400-8800-703【预约看房热线】中粮北外滩壹号售楼处电话:4008800703【售楼处电话/地址】中粮北外滩壹号售楼处电话:400-880-0703【开发商认证】
北外滩豪宅大平层
中粮“壹号”系全新力作
「中粮北外滩壹号」
推出建面约185-228㎡高层住宅
均价约14.38万/㎡
本周认筹 仅90套;
185㎡ 仅46套 约2188w-2803w;
228㎡ 仅44套 约2677w-3793w;
目前“样板间”已开放
— 恭迎品鉴 —
上海虹口中粮北外滩壹号
售楼处电话:400-8800-703(预约看房热线)
上海中粮北外滩壹号官方售楼处电话:拨打4008800703即可咨询楼盘详情_房价、户型、周边配套及交通、地址
Shanghai Hongkou COFCO North Bund No.1
Sales office phone number: 400-8800-703 (reservation viewing hotline)
Shanghai COFCO North Bund No.1 Official Sales Office Phone: Call 4008800703 to inquire about the details of the property, including room prices, layout, surrounding facilities, transportation, and address

最新消息:上海虹口中粮北外滩壹号售楼处电话:400-8800-703【预约看房热线】中粮北外滩壹号售楼处电话:4008800703【售楼处电话/地址】中粮北外滩壹号售楼处电话:400-880-0703【开发商认证】中粮大悦城上海第五座壹号系「中粮·北外滩壹号」过会,均价约14.38万/㎡,建面约185-228㎡天际大平层,样板房已开放,预约可看!
上海虹口中粮北外滩壹号售楼处电话:400-8800-703【预约看房热线】中粮北外滩壹号售楼处电话:4008800703【售楼处电话/地址】中粮北外滩壹号售楼处电话:400-880-0703【开发商认证】
上海虹口中粮北外滩壹号售楼处电话:400-8800-703【预约看房热线】中粮北外滩壹号售楼处电话:4008800703【售楼处电话/地址】中粮北外滩壹号售楼处电话:400-880-0703【开发商认证】
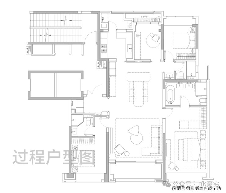
【建面约185㎡4房】
双套房设计的飞机户型,居住舒适度较高
2梯2户设计,私享电梯厅独立入户;
入户玄关设计隐私性更强,独立玄关收纳空间;
LDKB一体化设计,大面宽阳台+客厅,尺度感十足!
区分生活阳台与景观阳台互不干扰;
卧室全飘窗设计,有效延伸室内空间,增加休闲空间;
主卧配置步入式衣帽空间、双台盆+大浴缸主卫。
上海虹口中粮北外滩壹号售楼处电话:400-8800-703【预约看房热线】中粮北外滩壹号售楼处电话:4008800703【售楼处电话/地址】中粮北外滩壹号售楼处电话:400-880-0703【开发商认证】

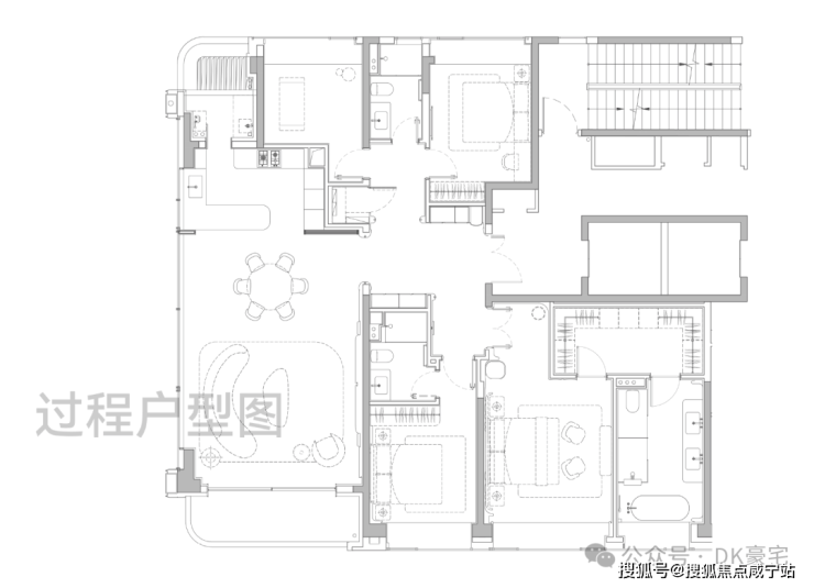
【建面约228㎡4房】
户型动静分离、居住舒适度拉满!
独立电梯厅面积约7.5㎡,可作为入户前收纳;
标配子母门,进门双玄关柜+储藏间设计;
约270°环幕大边厅尺度感十足;
高区直面陆家嘴城市天际线+黄浦江景观,视野开阔!
中厨+西厨岛台、客餐厅+阳台面积近约53㎡,尺度阔绰!
主卧大套房设计带超大主卫和独立衣帽空间,面积约50㎡,妥妥顶豪水平!
次卧套房也有充足收纳空间和独立卫浴空间;
北向双次卧可作为儿童房和书房使用,功能性满分。

中粮北外滩壹号,是继新天地翠湖天地六和、巨富长高福云境之后,上海今年第三座“天际豪宅+低密度花园别墅街区”的组合模式。
上海虹口中粮北外滩壹号售楼处电话:400-8800-703【预约看房热线】中粮北外滩壹号售楼处电话:4008800703【售楼处电话/地址】中粮北外滩壹号售楼处电话:400-880-0703【开发商认证】中粮北外滩壹号首批推出的高层大宅共90套,主力户型为185㎡3+1房与228㎡4房,全部为大平层设计,建筑高度仅有约80米,栋距超过150米。
主力户型约228㎡4房两厅三卫,面宽达5.6米,配备270°环幕落地窗,客餐厅一体空间约53㎡,主卧套房面积约50㎡(含10㎡衣帽间与15㎡卫浴),完全满足高净值家庭“大空间、强功能”的居住需求。
228㎡户型图如下👇

大量的豪宅客户反馈,成为中粮产品升级的核心驱动力。
在厨房设计上,配置了2个单眼燃气灶+中间电磁炉,兼顾中西烹饪习惯;
在衣帽间设计上,不交付固定衣柜,预留充足空间,让业主可根据自身喜好定制;
在卫浴品牌选择上,确定唯宝高端系列,C-PLUS双面施釉技术与Quaryl浴缸材质,耐用性与舒适度兼具。


上海虹口中粮北外滩壹号售楼处电话:400-8800-703【预约看房热线】中粮北外滩壹号售楼处电话:4008800703【售楼处电话/地址】中粮北外滩壹号售楼处电话:400-880-0703【开发商认证】


上海虹口中粮北外滩壹号售楼处电话:400-8800-703【预约看房热线】中粮北外滩壹号售楼处电话:4008800703【售楼处电话/地址】中粮北外滩壹号售楼处电话:400-880-0703【开发商认证】中粮北外滩壹号在高层地下空间打造约1800m²的下沉式高奢会所——Manor ONE壹号会,由国际知名设计院CCD操刀,将堪比建业里嘉佩乐酒店的奢华居住体验带来了北外滩。
通过场景式布局,以中央会客厅为枢纽,将各大功能区有机串联,形成一个充满活力的、适合全家使用的社交型会所。


功能涵盖“运动、社交、休闲、艺术"四大维度,融合了艺术沙龙、艺术展示、花园泳池、浮岛茶室、社交私宴、浮声酒吧、SPA舒享、健身瑜伽、黑胶录音、星梦阅读等十五大功能:
艺术恒温泳池,池底复刻名画《意大利的风景花园》,并辅以创新低氯技术,时刻保障水质清澈柔润,让游泳变成一种放松身心、激发灵感的感官盛宴;
健身瑜伽区,配备由宝格丽御用设计师奇特里奥与顶级品牌泰诺健联袂打造的closefight专业训练器,一台即可进行200+种训练,既可进行日常有氧,也能随时挑战极限;
舞蹈录音室,上海首家引入格莱美音乐制作人同款设备,打造专业级录音棚。
私宴红酒区,与中粮长城桑干酒庄合作,将其屡次亮相重大场合的佳酿引入北外滩壹号。为业主提供私密的高端宴请场所,适用于家庭聚会与商务社交。
学习阅读区,则以静谧氛围,成为业主的“城市书房”。


上海虹口中粮北外滩壹号售楼处电话:400-8800-703【预约看房热线】中粮北外滩壹号售楼处电话:4008800703【售楼处电话/地址】中粮北外滩壹号售楼处电话:400-880-0703【开发商认证】


此外,庭院、露台、下沉式花园的设计,让地下空间拥有充足的自然采光与通风,打破传统地下会所的压抑感;

细节上,景德镇冰裂纹陶瓷、暗红水纹玻璃等元素的运用,既呼应海派文化底蕴,又提升空间的精致度。

上海虹口中粮北外滩壹号售楼处电话:400-8800-703【预约看房热线】中粮北外滩壹号售楼处电话:4008800703【售楼处电话/地址】中粮北外滩壹号售楼处电话:400-880-0703【开发商认证】
在上海豪宅市场竞争日益激烈的当下,中粮北外滩壹号的价值,在于其没有依赖浮夸的营销话术,而是以“产品组合、文脉资源、会所配置、社区纯粹性、品牌沉淀"五大事实维度,构建起自身的核心竞争力。
对于追求“既要城市核心资源,又要低密居住体验;既要历史文化底蕴,又要现代生活品质"的高净值人群而言,这座位于北外滩的“新旧共生"豪宅,或许是读懂上海高端居住未来的最佳样本。
北外滩的奢华酒店居住体验,就在中粮北外滩壹号。

地段:不止是北外滩正C位,更是梧桐遍地的风貌区!
很多人认为,滨江黄金三角:外滩、陆家嘴和北外滩不是同一量级。
但其实北外滩超越前两者几乎是时间问题!
三大支撑让你不得不承认:
丨支撑一:恢弘巨制,北外滩的开发体量是陆家嘴核心区的2倍!
从规划的角度来看,北外滩的开发体量超过840万方,是陆家嘴核心区的2倍,伦敦CAZ的7倍。
项目南侧的北外滩核心区,更是发展的重中之重。1/5的土地上,将承载了北外滩超四成的建筑体量。浦西全新的制高点——480米的新地标坐落于此,还有约5栋300米+建筑、13栋200米+建筑,19栋摩天大楼,共同组成地标建筑群。

丨支撑二:北外滩是站在巨人肩膀上的再超越!
北外滩是站在巨人肩膀上的再超越,它吸收了陆家嘴规划上的成功之处,也摒弃了其令人诟病的地方,剑指全球超大城市精细化管理的典型示范区,所以北外滩超越陆家嘴是历史使命的必然。
具体来看,北外滩将比陆家嘴具备更深的历史文化底蕴,有更休闲的滨江路网和生态环境,也有更具城市温度的人文关怀。

丨支撑三:世纪规划北外滩的兑现速度全球领先!
陆家嘴成为上海金融之巅花了30年,而留给北外滩的时间只有10年!所以你会看到北外滩规划兑现的速度简直史无前例!
2023年,北外滩开发建设重大工程项目22个,投资超过800亿元,实现开竣工面积141.9万㎡。
2024年,北外滩将推动开建重大工程项目48个,投资1890亿元,计划实现开竣工面积超140万㎡。
那些前几年还停留在图纸上的城市地标,如今已经屹立江边,成为上海新的天际线!
上海虹口中粮北外滩壹号售楼处电话:400-8800-703【预约看房热线】中粮北外滩壹号售楼处电话:4008800703【售楼处电话/地址】中粮北外滩壹号售楼处电话:400-880-0703【开发商认证】
综上所述,未来的北外滩在规模、业态、发展速度方面都会超越外滩、陆家嘴,说它是当下最炙手可热的滨江板块,没有任何问题。
而作为北外滩红线内屈指可数的住宅项目,中粮北外滩壹号无疑能尽享这份世纪红利!

更难得的是,中粮北外滩壹号所在区域,恰恰是北外滩核心商务区与提篮桥风貌区交汇地。
意味着,住在中粮北外滩壹号,信步可达黄金三角的汹涌澎湃与商务区的现代繁华。转身即入,梧桐树下被时光浸润的静谧街区和里弄肌理。

这并非简单的区位叠加,而是一种稀缺的生活范式——在世界的舞台上奔涌向前,亦能在历史的脉络里安顿身心。
项目带来的,不止是一处居所,更是一种“出则掌控全局,入则栖心桃源”的从容境界。
而且深入了解了提篮桥风貌区的规划,发现几乎全部都是低密产品,中粮北外滩壹号即将入市的是片区唯一一幢高层!采光与视野可想而知!

上海虹口中粮北外滩壹号售楼处电话:400-8800-703【预约看房热线】中粮北外滩壹号售楼处电话:4008800703【售楼处电话/地址】中粮北外滩壹号售楼处电话:400-880-0703【开发商认证】
产品:北外滩“壹号”作品,重新定义了滨江国际豪宅生活!
在上海豪宅圈,中粮的“壹号”系作品已然成为身份与地位的象征,其超强的保值能力也让入手它的业主资产一再进阶。
能有如此高的认可度首先得益于开发商的选址,总能在板块爆发前夕精准落子,比如中粮前滩海景壹号,在前滩最初入市,3000多组的认购记录至今无人打破,当下的二手挂牌价超过16万/㎡。
再比如瑞虹海景壹号,北外滩早期作品,四开四罄热销185亿,当时新房11万多/㎡,现在瑞虹新房16.6万/㎡,中粮的二手房更是稳定在17万元/㎡左右。
可以说,跟着中粮买准没错,选择“壹号”系作品,就是选择了最好的资产压舱石!

除了选址,壹号系成功的另一个秘诀则是超越时代的品质。
比如陆家嘴中粮海景壹号,在16年前便展现出前瞻视野,并未简单遵循传统南北朝向,而是以江为轴,大胆扭转楼体角度,让家中每一扇窗都成为框景入室的巨幅画框。这一“为景让位”的创举,不仅是产品力的大胆革新,更是远见与胆识的体现,至今仍为业主资产提供着坚实的价值支撑。
作为壹号系最新力作的中粮北外滩壹号,品质自然无可挑剔。
丨首先是无比纯粹、统一的圈层!
据悉,中粮北外滩壹号是上海市中心罕见的无商办、无自持住宅、无保障房的纯住宅项目。而且不是单一高层或别墅,是把俯瞰天际的现代大宅与承载文脉的风貌别墅放在一起,实现互相成就的稀缺性。
高层面积起步建面约185㎡天际大平层,整体圈层能级相对统一,打造出一道真正属于高净值人群的身份门槛。

丨其次,是超越时代的建筑审美!
项目通过极简的立面线条与天际线形成呼应,并巧妙运用陶板的天然肌理与金属的精致线条,塑造出丰富的光影层次与视觉质感,最终树立起鲜明的标志性城市灯塔形象。

上海虹口中粮北外滩壹号售楼处电话:400-8800-703【预约看房热线】中粮北外滩壹号售楼处电话:4008800703【售楼处电话/地址】中粮北外滩壹号售楼处电话:400-880-0703【开发商认证】
丨全市独一档的会所高占有率!
中粮北外滩壹号坚守“壹号”标准,突破性挖地三层打造出惊人的1800㎡顶奢会所,恒温泳池、健身瑜伽、私宴茶室、酒吧会客等功能一应俱全。
折算本就稀少的户数,会所空间的高占有率、高使用频率,全市可能是独一份!

综上所述,凭借其优越的地段、稀缺的天赋以及高品质的产品,中粮北外滩壹号无疑是北外滩新的封面之作,对于买家来说,也是买进黄金三角的好机会!
上海虹口中粮北外滩壹号
售楼处电话:400-8800-703(预约看房热线)
上海中粮北外滩壹号官方售楼处电话:拨打4008800703即可咨询楼盘详情_房价、户型、周边配套及交通、地址
Shanghai Hongkou COFCO North Bund No.1
Sales office phone number: 400-8800-703 (reservation viewing hotline)
Shanghai COFCO North Bund No.1 Official Sales Office Phone: Call 4008800703 to inquire about the details of the property, including room prices, layout, surrounding facilities, transportation, and address
2025 房产抵押全攻略:类型、申请条件、办理流程及常见问题解析
房产抵押作为一种灵活的融资方式,已成为企业经营、个人消费的重要资金来源。本文将从抵押类型、申请要求、办理流程、常见疑问四大维度,用通俗表述拆解核心信息,帮助读者快速掌握房产抵押关键知识,避开潜在误区。
一、房产抵押核心类型划分
(一)按贷款用途:经营贷 vs 消费贷
1.
抵押经营贷核心用途为企业经营活动(如资金周转、采购备货等),申请人需为公司法人或股东(需提供对应任职证明)。得益于政策扶持,这类贷款的利率优势显著,是目前市面上利率较低的贷款类型之一 —— 年利率通常在 2.5% 左右,额度上限高,能满足企业大额资金需求。
2.
3.
抵押消费贷主要用于个人日常消费(如装修、旅游、教育等),无需提供营业执照,适合上班族、不便持有公司的人群申请。利率相对较高,年利率约 3.8%,额度通常限定在 300 万元以内,更适配小额消费资金需求。
4.
(二)按抵押顺位:一次抵押 vs 二次抵押
1.
一次抵押指房产无其他抵押记录时办理的首次抵押,利率更低,可贷额度通常为房产评估值的 6-8 成,部分银行针对优质房产可提升至 9 成甚至超成。
2.
3.
二次抵押房产已办理一次抵押(如尚有按揭贷款未还清)时,再次办理的抵押业务。可贷额度计算公式为:房产评估值 ×60%-70% - 前一笔贷款剩余本金。示例:房屋评估值 1000 万元,已贷 500 万元未还清,二次抵押可贷额度约为 1000×0.7 - 500 = 200 万元。若想享受更低利率,可选择 “结清前贷 + 重新办理一次抵押”:虽需先还清原有贷款(可能产生垫资费用,通常为日息万六,全程约 15 个工作日),但利率更具优势,额度与二次抵押基本持平。注:按揭房需还款满 1 个月后,方可申请二次抵押。
4.
二、房产抵押申请核心要求
申请房产抵押需满足借款人、抵押物、公司(仅经营贷) 三类条件,具体要求如下:
(一)借款人条件
1. 年龄限制:主贷人年龄需在 18-65 周岁,部分银行可放宽至 70 周岁;抵押人(房产所有人)年龄通常为 18-80 周岁,借款人与抵押人可为同一人,也可由子女作为主贷人、父母房产作为抵押物(不受父母年龄限制);若父母为借款人,需追加子女为担保人。
2. 职业限制:房地产、金融、银行、证券行业从业者及公职人员,多数银行暂不接受其作为借款人。
3. 征信要求:
· 逾期记录:近 2 年内无连续 3 个月逾期、累计 6 个月逾期;
· 查询次数:近 3 个月查询不超过 4 次,近半年不超过 6 次(部分银行政策宽松);
· 资产负债率:控制在房产总价的 75% 以内。征信查询渠道:
· 线下:携带身份证至人民银行、指定合作银行网点,或通过柜台 / 自助查询机查询;
· 线上:登录人民银行征信中心官网(https://ipcrs.pbccrc.org.cn/),注册后 24 小时内获取;或通过支持征信查询的银行 APP,填写资料后数小时内可下载(个人自主查询不计入机构查询次数,建议避免频繁查询)。
(二)抵押物条件
1. 基础要求:房龄≤30 年(超 30 年仅有少数银行可受理),产权清晰可交易,住宅类房产面积≥50 平方米。
2. 可抵押房产类型及成数:
· 住宅:银行认可度最高,可贷成数 6-9 成(优质房产可超成);
· 别墅、公寓:可贷成数 5-7 成;
· 经济适用房、办公楼、厂房、商铺、写字楼:可贷成数 5-6 成(经济适用房、人才房需赎回国家份额并满限售期)。
3. 不可抵押房产:
· 无房产证(如农村自建房、期房、小产权房)或产权不清晰的房产;
· 房产证含未成年子女名字(极少数银行可办理,需剥离份额);
· 处于拆迁范围、属违章建筑 / 文物保护建筑,或被依法查封、扣押的房产;
· 领证不满 6 个月的新房,或房龄超 30 年的老房(申请难度较高);
· 房产证含 65 岁以上老人名字(80 岁以内仍有少数银行可受理,可选范围极窄)。
(三)公司条件(仅经营贷需满足)
1. 公司需成立满 1 年,申请人持有股权满 3-6 个月,部分银行接受新注册公司(建议提前 3-6 个月规划,以享受更优贷款条件)。
2. 无需实际经营场景(银行下户核查时,提供合规办公场所拍照即可),但需提供营业执照、公司章程、上下游合同等基础材料。
三、房产抵押完整办理流程
1. 贷前规划:匹配银行与产品
明确自身资质(征信、房龄、资金需求)后,筛选适配的贷款产品,核心关注 4 点:
· 利率:经营贷一次抵押 2.4%-3%,二次抵押 2.8%-3.5%;消费贷 3.8% 左右;
· 额度:通常为房产评估值 60%-80%(1000 万以内易批,3000 万以上审批难度增加);
· 期限:以 3-10 年为主,部分银行可延长至 20 年(期限越短,总利息越低);
· 还款方式:先息后本(前期还款压力小)、等额本息 / 等额本金、随借随还(灵活性强)、气球贷(按需选择);
· 特殊需求:针对 “征信瑕疵、房龄老、新产证 / 新公司、无流水” 等情况,可选择对应专项产品。
2. 提交申请材料
· 个人材料:身份证、户口本、结婚证(离异需提供离婚证 + 离婚协议)、近 1 年银行流水、房产证、资产证明;
· 公司材料(经营贷):营业执照正副本、公司章程、上下游购销合同、第三方受托支付合同、公司流水、开户信息。
3. 银行审批(7-20 个工作日)
银行重点审核:
· 借款人:收入需单倍覆盖月供,征信无重大瑕疵;
· 抵押物:评估值(受区域位置、面积、配套、装修影响);
· 公司(经营贷):成立年限、流水、纳税情况(无实际经营不影响审批)。
4. 签订合同与抵押登记
· 审批通过后,确认利率、额度、期限等条款,前往银行签订合同(已婚需配偶共同出面):单次签约约 1 小时,需开立企业户的约 2 小时;
· 前往房产交易中心办理抵押登记,需往返银行与交易中心 1-3 次(部分银行支持线上抵押,无需线下办理)。
5. 银行放款
完成抵押登记后,银行按合同约定放款,借款人按时偿还本息即可。
四、常见问题答疑
(一)哪些人群适合办理房产抵押?
1. 企业主、个体工商户:用于经营周转,利率低、额度高,性价比突出;
2. 高息贷款置换人群:早年按揭利率 4%-5% 的客户,置换后每年可节省 1 个点左右利息(500 万贷款 10 年可省 50 万);
3. 急需资金但不便卖房者:抵押放款周期 7-20 个工作日,远短于卖房周期(数月);
4. 多笔高息负债人群:整合信贷、网贷等小额高息债务,置换为单笔低息抵押贷,减轻月供压力;
5. 全款买房后融资人群:全款购房后办理抵押,降低购房资金压力;
6. 征信有瑕疵人群:抵押物可降低贷款风险,对征信轻微瑕疵(如查询多、小额逾期)更友好;
7. 需大额流动资金人群:获取一笔可灵活支用的资金,缓解周转压力。
(二)第三方收款是什么?安全吗?
第三方收款是经营贷的常见要求,核心为保障资金专款专用(避免流入楼市、股市等禁止领域),流程安全可控:
1. 借款人需提供上下游购销合同(如采购原材料合同),银行放款后直接转入合作商账户;
2. 无实际合作商的,可委托无关联、非亲属的生意伙伴收款,对方到账后再转至借款人账户;
3. 注意事项:放款后避免资金立即流入楼市、股市等敏感领域,否则可能面临抽贷风险。
(三)房产抵押有哪些申请渠道?
1. 银行渠道:年利率 2.4%-5%,利率最低、期限最长、正规靠谱;分为国有银行、商业银行、地方性银行,审批较严格;
2. 金融机构渠道:年利率 6%-18%,包括典当行、信托公司、小额贷款公司等,审批灵活、放款快,对征信、流水要求宽松,适合资质一般的申请人;
3. 民间借贷渠道:年利率 10%-24%,流程最简单、放款最快,不看征信流水,仅关注抵押物价值,但期限短(1-6 个月),利率较高。
声明:本文由入驻焦点开放平台的作者撰写,除焦点官方账号外,观点仅代表作者本人,不代表焦点立场。
