珑悦滨江(2025年珑悦滨江)2025年珑悦滨江首页网站(珑悦滨江最新详情)珑悦滨江楼盘详情 /价格/户型
扫描到手机,新闻随时看
扫一扫,用手机看文章
更加方便分享给朋友
【项目信息】
🏛开发商:上海佳华房地产有限公司
🕋建筑面积:16623.45㎡
🏢整高:24层
🏠建面约:131~277㎡
💰总价:600~1950万
🔦层高:3米
🎡梯户比:5~10楼:5梯12户;
11~20楼:5梯10户;
21~24楼:5梯6户
💵物业费:16元/㎡/月
🏬物业公司:第一太平戴维斯全程顾问
🚗停车位:地上30个,地下200个
💳车位:40~50万/个
🏗得房率:68%
🏘交付:装修交付,现房
🌃装修标准:1.5万/㎡
🏯产权年限:50年
🚿水费:6元/吨
⚡️电费:0.8~1.1元/度
⛩交付时间:豪华现房
〰〰〰〰〰〰〰〰〰〰〰〰〰〰〰
项目卖点:
🔥🔥陆家嘴珑悦滨江🔥🔥
⭐️陆家嘴 内环内 临太古里
⛵️坐享一线江景 感受滨江生活
🚇地铁14号线歇浦路0距离
💦独立上下水 全屋智能⚙️
🈶中央空调 新风系统 中央热水
🤵星级入户大堂 24小时管家
🏢整栋奢华改造 管道机组换新
💠软硬全配 豪装现房 款清交付
🚗产权车位 可租可售
💯健身房➕瑜伽室
🍚甌江悦中餐厅正式营业中
【项目配套】
✈️交通配套
🚎公交:浦东21路、浦东108路、浦东4路、浦东15路、81路、787路等
🚝地铁:14号线歇浦路站20米,14/18号昌邑路站1.2公里。
(数据来源于高德地图,仅供参考)
🏫商业配套:
LCM置汇旭辉广场、名门休闲购物中心、万轩有氧生活广场、浦商百货、陆家嘴太古里(已规划)
🏥医疗配套:
上海市浦东新区公利医院,浦东新区中医医院罗山分院、洋泾社区卫生服务中心
🏤学校配套:
百灵鸟幼儿园阳光部、上海市罗山中学、博学幼儿园(总部)、建平中学北校区
⛪️人文场所:
泾东公园、文昌宫、世纪公园、滨江绿地等
➰➰➰➰➰➰➰➰➰➰➰➰➰➰➰
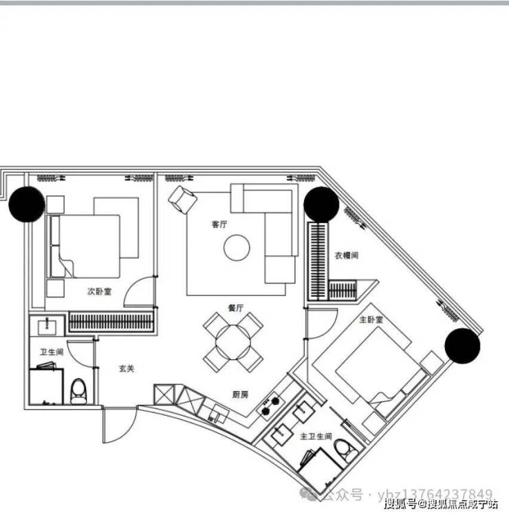
❤️户型图及样板间照片
🌟户型图🌟
大堂图片
声明:本文由入驻焦点开放平台的作者撰写,除焦点官方账号外,观点仅代表作者本人,不代表焦点立场。
