招商·云澜湾售楼处-官方首页 - 招商·云澜湾销售中心 - 环境 - 户型 - 价格 - 地址 - 楼盘详情 - 配套 - 电话 - 交房时间 - 配套 - 电话 -售楼处欢迎您
扫描到手机,新闻随时看
扫一扫,用手机看文章
更加方便分享给朋友
上海『招商·云澜湾』售楼处电话☎:400-880-0703【已认证】
在售户型图丨项目介绍丨最新房源丨周边配套丨详细解答〢
◆开发商营销中心诚挚邀请,一键预约,尊享内部独家折扣!匠心独运的精品项目,恭候您的品鉴与选择。


开发商电话☎:400-880-0703【已认证】
售楼处电话☎:400-880-0703【已认证】
营销中心电话☎:400-880-0703【已认证】
✅ 本项目暂不接受临时到访,过来参观样板房请记得提前来电预约!
✅ 为您安排楼盘现场销售全程接待并讲解,给您更贴心的看房体验!
欢迎来电咨询楼盘、线上预约看房可享专属活动哦~~
➤➤➤➤VIP贵宾置业〢欢迎来电咨询〢品鉴!!
自2019年至今,松江城区但凡有新房供应,市场几乎都能照单全收,同时还能保持二手市场的旺盛成交!
面对如此汹涌的需求,松江城区的新房显然不愁卖!
那么与同板块高层价格持平,却能直接圆梦墅居的招商云澜湾无疑是改善客户入主松江城区错过不再有的天赐良机!
招商云澜湾售楼处电话☎:400-880-0703【已认证】
最新消息:
松江主城 约1.6低密墅区
『招商·云澜湾』
叠加别墅
⬆️145m²上叠,总价900万起
⬇️154m²下叠,总价1004万起
高层房源
89㎡三房两厅两卫,448万起
98㎡三房两厅两卫,507万起
130㎡四房两厅两卫总价725万起
已是准现房,社区已实景呈现!
户型分布如下
招商云澜湾售楼处电话☎:400-880-0703【已认证】进入官方报名通道,直接预约专业销售一对一咨询首先项目是四层上下双叠的产品,没有中叠。比起市面上大多数的6叠更加纯粹更加低密,视野也更加开阔!!
其次无论上叠还是下叠全部具备4房的功能性,甚至有3卫配置,足以适配当下越来越多的二胎或三代同堂家庭!
再次在尺度设计上,宽境横厅、套房主卧等全部安排上,将大宅的不凡气度体现的淋漓尽致!同时,在灵动空间上,项目下叠附带层高约5.2米地下室,足以盛放全家人的个性爱好。上叠则附带南北双露台,独乐时,抬头观星,低头赏花;众乐时,好友齐聚,尽兴私趴!招商云澜湾售楼处电话☎:400-880-0703【已认证】
Part1
占位松江主城核心地段
人文底蕴、丰盛配套、规划红利尽在掌握!
招商云澜湾售楼处电话☎:400-880-0703【已认证】
众所周知,松江是上海之根,而“十里长街中山路”又是松江繁华的缩影!
招商云澜湾正位于十里长街旁,占据千年繁华正脉,人文底蕴深厚!
而这样的成熟地段必然又是配套丰盛之地!
交通方面,项目周边既有松江有轨电车T1/T2线,可抵达泰晤士小镇、广富林、松江体育中心等区域,一路打卡整座城市的生活风情;又有9号线串联上海西南与主城的“生活之轴”,直达上海中芯城区!
位置示意图,仅供参考招商云澜湾售楼处电话☎:400-880-0703【已认证】
商业方面,项目近邻泰晤士小镇、万达广场、飞航广场、开元地中海等醇熟商圈,足以满足业主吃喝玩乐购一站式消费需求。
医疗方面,项目直线距离三甲综合医院——松江第一人民医院仅约3.5km,距离松江区妇幼保健院仅约2.4km;距离松江区中心医院仅约2.7km,满足家人全方位健康护理需求。(数据来源:百度地图测距)
招商云澜湾售楼处电话☎:400-880-0703【已认证】教育资源方面,松江老城是松江已投入使用优质基础教育资源集中的区域,项目周边有松江区第三实验小学、上海师范大学附属外国语中学、上海对外经贸大学附属松江实验学校、上海市松江区教育学院附属实验学校等。
(免责声明:周边学校等相关教育设施仅为介绍周边已建、在建或规划教育资源,并不承诺为划片学区,学校划分以官方公示为准。)
便捷的交通和繁华的配套,让住在招商云澜湾的业主生活品质与住在主城区无异。但松江得天独厚的生态优势是主城区无法比拟的。
招商云澜湾售楼处电话☎:400-880-0703【已认证】
项目占位中桥港湾、近距永丰城市公园、思鲈园、醉白池、方塔园等生态园林资源,佘山国际森林公园轻松而至!
人人欣羡的诗和远方、都市快节奏上班族向往的绿色自然,成为了招商云澜湾业主生活的日常美好!
招商云澜湾售楼处电话☎:400-880-0703【已认证】
当然,当下显然还未是项目的价值顶点!
据松江“十四五”规划,十里长街所在的永丰板块,坐拥上海科技影都核芯承载区功能,北接G60科创走廊,南连松江南站枢纽(规划),时代规划红利汇聚,项目未来前景可期!
招商云澜湾售楼处电话☎:400-880-0703【已认证】
示意图,仅供参考
招商云澜湾售楼处电话☎:400-880-0703【已认证】
Part2
容积率仅约1.6低密墅区
央企招商松江迭代升级之作!
在如今的房地产大背景下,购房者对品牌的要求越发苛刻。
招商云澜湾售楼处电话☎:400-880-0703【已认证】而招商云澜湾由百年央企招商蛇口倾力打造,无论是安全性还是品质感都值得信赖!要知道,早在2003年,百年央企招商蛇口就已进驻松江,如今深耕20载,七子耀松江,相信没有哪家开发商比招商更懂松江!而且位于松江正脉的招商云澜湾是央企招商最新迭代升级之作!
项目叠墅效果图
招商云澜湾售楼处电话☎:400-880-0703【已认证】
首先是项目得天独厚的天赋:容积率仅约1.6低密滨水墅质社区!
在对居住环境研判的报告显示:容积率每降低0.1,就意味着楼间距增加5米、被邻居吵到的机会减少20%、小区路面拓宽0.2米、社区新增100棵大树等等……所以低容积率能享受的居住体验感和高容积率完全不是一个层次!
据统计,今年4个批次土拍合计75块地,只有12块地的容积率在1.6及以下,占比约12%!而这些宅地再分散到全市16个区,一个区数年也未必轮得到一块!
容积率仅约1.6的招商云澜湾无疑就是板块天生的置换链塔尖住宅,墅质社区营造的舒适感、尊贵感错过再难有!
更难得是,项目还是双水系环抱的滨水社区!
而且为了放大地段天赋,项目规划了东高西低的社区配置,别墅和高层的业主都能享受双水系环绕的自然景观。招商云澜湾售楼处电话☎:400-880-0703【已认证】
项目效果图
招商云澜湾售楼处电话☎:400-880-0703【已认证】
其次来看项目创新打造的都荟慢生活园林景观!
项目景观风格采用了都荟慢生活园林风,为了更契合松江江南古韵的文化气质,打造了“两轴一林多重花巷”的景观配置!两轴景观:为了提升业主归家的仪式感,项目南地块塑造了尊贵高雅的三重归家礼序,西侧公共通道通往北地块,打造了人文浪漫的银杏景观大道。一林:依托贯穿小区的天然水系打造的滨水景观林。千年松江府配上水杉,更显古朴宁静,漫步林下,宛如穿行在水墨之间。
· 多重花巷:别墅片区在多个楼栋前都规划了不同主题的花巷,营造私密恬静的墅境,更有曲径通幽的自在。另外,项目社区还规划有两座“中央会客厅”、三大“主题架空层”、和三大“全龄活动空间“,让邻里之间有了更多的互动场所和机会,也让各年龄段业主都能在家门口找到独属的乐趣!招商云澜湾售楼处电话☎:400-880-0703【已认证】
项目效果图
招商云澜湾售楼处电话☎:400-880-0703【已认证】
最后来看项目高颜值的美学建筑立面!
在缤纷静谧的社区之间,矗立是项目高颜值的建筑立面!
项目建筑融合塔冠形象致敬松江传统建筑屋檐符号,采用温暖的金属色搭配柔和的浅米色,呈现出与众不同的温暖色系,玻璃是更大化的玻璃占比,使视觉上更统一,同时增加室内采光开阔景观视野。这是松江主城新的城市天际线,也是业主未来身份的象征!
项目效果图
招商云澜湾售楼处电话☎:400-880-0703【已认证】
项目首开房源中除了前文提到的四叠产品,还有建面约96-126㎡3-4房,总价约335万起,无疑是刚需客户买进松江主城的好机会!
而且项目的户型设计水准是真的高!我们一个一个来解读:
售楼处电话☎:400-880-0703【已认证】
售楼处电话☎:400-880-0703【已认证】
在售户型图丨项目介绍丨最新房源丨周边配套丨详细解答〢
◆开发商营销中心诚挚邀请,一键预约,尊享内部独家折扣!匠心独运的精品项目,恭候您的品鉴与选择。
开发商电话☎:400-880-0703【已认证】
售楼处电话☎:400-880-0703【已认证】
营销中心电话☎:400-880-0703【已认证】
✅ 本项目暂不接受临时到访,过来参观样板房请记得提前来电预约!
✅ 为您安排楼盘现场销售全程接待并讲解,给您更贴心的看房体验!
欢迎来电咨询楼盘、线上预约看房可享专属活动哦~~
➤➤➤➤VIP贵宾置业〢欢迎来电咨询〢品鉴!!
5月7日上午,央行在国新办新闻发布会上宣布,将下调个人住房公积金贷款利率0.25个百分点,5年期以上首套房利率由2.85%降至2.6%,其他期限的利率同步调整。
对于大家关心的存量公积金贷款利率是否会同步调整,上海易居房地产研究院副院长严跃进分析表示,从过去的金融政策操作惯例来看,此次政策主要是指新购房的公积金贷款利率。后续也会根据既有政策,对于已办理公积金贷款的购房者,也会跟着下调利率,也就是对存量公积金贷款利率进行下调。
此前上海公积金贷款利率为最低2.85%,如今将同步调整至2.6%。全国来看,商贷利率最低3%左右,上海则为3.15%。
据介绍,中国人民银行推出三大类、十项措施
一是数量型政策,通过降准等措施,加大中长期流动性供给,保持市场流动性充裕。
二是价格型政策,下调政策利率,降低结构性货币政策工具利率,同时调降公积金贷款利率。
三是结构型政策,创设并加力实施结构性货币政策工具,支持科技创新、扩大消费、普惠金融等领域。
01、降低存款准备金率0.5个百分点,预计将向市场提供长期流动性约1万亿元。
02、完善存款准备金制度,阶段性将汽车金融公司、金融租赁公司的存款准备金率,从目前的5%调降至0%。
03、下调政策利率0.1个百分点,即公开市场7天期逆回购操作利率从目前的1.5%调降至1.4%,预计将带动贷款市场报价利率(LPR)同步下行约0.1个百分点。
04、下调结构性货币政策工具利率0.25个百分点,包括:各类专项结构性工具利率、支农支小再贷款利率,均从目前的1.75%降至1.5%;抵押补充贷款(PSL)利率从目前的2.25%降至2%。
05、降低个人住房公积金贷款利率0.25个百分点,五年期以上首套房利率由2.85%降至2.6%,其他期限的利率同步调整。
06、增加3000亿元科技创新和技术改造再贷款额度,由目前的5000亿元增加至8000亿元,持续支持“两新”政策实施。
07、设立5000亿元“服务消费与养老再贷款”,引导商业银行加大对服务消费与养老的信贷支持。
08、增加支农支小再贷款额度3000亿元,与调降相关工具利率的政策形成协同效应,支持银行扩大对涉农、小微和民营企业的贷款投放。
09、优化两项支持资本市场的货币政策工具,将证券、基金、保险公司互换便利5000亿元和股票回购增持再贷款3000亿元额度合并使用,总额度8000亿元。
10、创设科技创新债券风险分担工具,央行提供低成本再贷款资金,可购买科技创新债券,并与地方政府、市场化增信机构等合作,通过共同担保等多样化的增信措施,分担债券的部分违约损失风险,为科技创新企业和股权投资机构发行低成本、长期限科创债券融资提供支持。
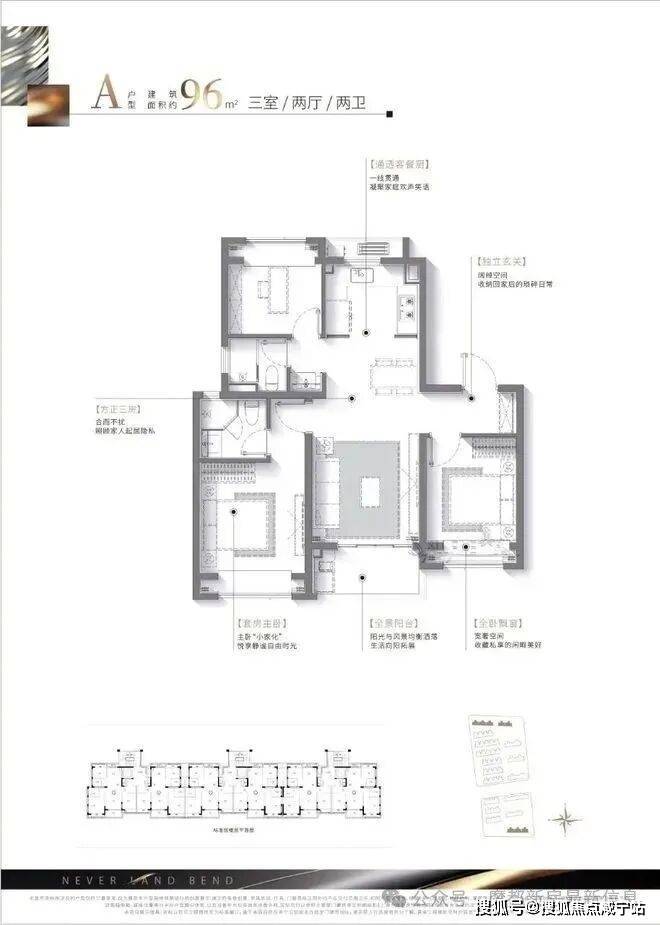
项目建面约96㎡3房是市面上更受欢迎的飞机户型!
相比现在常见的动静分区房型,飞机户型优势在于:
· 房间分列两侧,互相之间独立,能保证各自隐私不被打扰;
· 实现真正的南北通透,三开间超南+餐客厨阳台中轴一直线;
· 户型内部没有长过道,浪费面积少。
除了格局上设计巧妙,该户型也做到了主卧套房,舒适度和私密性都可圈可点!
项目建面约100㎡3房2卫仍然是优秀的飞机户型,但实现该面积段少见的大面宽横厅设计!横向宽厅的好处是可以有更多的南向采光,阳光更充足。此外,给客厅可以弹性软分隔的方式,分出一个开放式书桌的空间,提供了选择性。
招商云澜湾售楼处电话☎:400-880-0703【已认证】
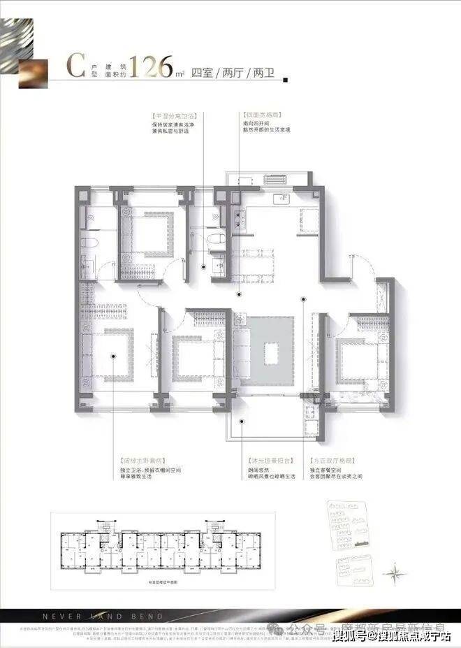
该户型做到了同面积段罕见的四开间朝南+四房设计,南向IMAX级景观面,卧室阳光满溢,功能性也拉满。
一般来讲现在做4房,普遍需要140㎡以上,而招商云澜湾用一个非常经济的面积实现4房2卫一步到位。功能性十足的同时也不失舒适性,主卧南向大面宽+贯穿南北,主人起居之间沐浴充足阳光,与清风相伴。
项目装标除了必备的三件套,洗碗机、玄关柜全部是交付标准,户内客餐厅卧室交付时均配置墙布。主卫额外配置卫洗丽,呈现的居住品质比起市区项目也不遑多让。综上所述,如果看好上海的发展,新的增长极五个新城无疑值得优选选择,其中发展成熟配套丰盛的松江新城更是不可不看!
而现在,招商云澜湾给出的是同板块高层价格直接圆梦墅居的天赐良机,怎么看都没有错过的理由,且买且珍惜!
一房一价表如下
招商云澜湾售楼处电话☎:400-880-0703【已认证】
招商云澜湾售楼处电话☎:400-880-0703【已认证】
松江主城 约1.6低密墅区
『招商·云澜湾』
建面约96-126㎡小高层3-4房
建面约135-141㎡叠加别墅
均价仅约48689元/㎡
总价约410-880万
已是准现房,社区已实景呈现!
售楼处电话☎:400-880-0703【已认证】
售楼处电话☎:400-880-0703【已认证】
在售户型图丨项目介绍丨最新房源丨周边配套丨详细解答〢
◆开发商营销中心诚挚邀请,一键预约,尊享内部独家折扣!匠心独运的精品项目,恭候您的品鉴与选择。
开发商电话☎:400-880-0703【已认证】
售楼处电话☎:400-880-0703【已认证】
营销中心电话☎:400-880-0703【已认证】
✅ 本项目暂不接受临时到访,过来参观样板房请记得提前来电预约!
✅ 为您安排楼盘现场销售全程接待并讲解,给您更贴心的看房体验!
欢迎来电咨询楼盘、线上预约看房可享专属活动哦~~
➤➤➤➤VIP贵宾置业〢欢迎来电咨询〢品鉴!!
声明:本文由入驻焦点开放平台的作者撰写,除焦点官方账号外,观点仅代表作者本人,不代表焦点立场。
