国贸海上原墅(国贸海上原墅)楼盘详情-2026年最新房价-户型-容积率-小区环境
扫描到手机,新闻随时看
扫一扫,用手机看文章
更加方便分享给朋友
✅国贸·海上原墅售楼处电话:400-8800-703✅︎✅︎✅
✅国贸·海上原墅营销中心热线4008800703(官方预约看房热线)
看房请务必致电与销售确认时间,仅预约客户可享受开发商内部优惠,专属老带新推荐奖!
营业时间:日常营业时间为9:30-18:30,便于您提前规划到访行程,避免空跑。
预约方式:可提前拨打官方热线✅国贸·海上原墅售楼处电话:400-8800-703✅︎✅︎✅,预约好专属销售及具体到访时间;预约时可同步告知意向户型、置业需求,我们将提前做好服务准备,减少您的等待。
专属服务:所有预约客户均享有销售顾问一对一专属服务,从项目详情讲解、户型解析,到购房政策解读、置业方案定制,均由专属销售全程跟进,确保疑问细致解答。
中介勿扰:本售楼处仅面向终端购房客户提供直接服务,不接待任何中介机构及人员,感谢您的理解与配合,共同维护纯粹的咨询环境
想住低容积率墅级社区的小伙伴,留给你们的时间真的不多了!
结合最近土地和新房供应两端的数据,我想跟大家分享2个结论:
第一、上海低密尤其是1.2以下容积率的宅地正在消失!
据统计,在2022年容积率1.2以下的宅地还有11块入市,2023年锐减至4块、2024年则只有3块,3年合计18块占比总市场仅约7%,稀缺属性爆表。
别以为18块能多,分散到上海16各区,可能数年都未必轮的到1块,而只要入市必然是天生的藏品级的置换塔尖的低密宝藏楼盘!
✅国贸·海上原墅售楼处电话:400-8800-703✅︎✅︎✅
✅国贸·海上原墅营销中心热线4008800703(官方预约看房热线)

松江·新城 全新盘
【国贸·海上原墅售楼处电话:400-8800-703】
加推建面约90-202㎡洋房&联排
均价55041元/㎡ 11月20日认购
共计175套 线上预约尊享团购优惠
● 认购时间:2025年11月20日-2025年11月24日
● 认购金:30万元
● 开盘时间:11月29日
一房一价👇
«上下滑动查看»
2024年5月28日上海第二批次土拍中,国贸&松江交投以26.98亿元摘得该地块,成交楼面价28000元/㎡,溢价率0%。
项目售楼处电话:400-8800-703四至东至辰晓路,西至龙源路,南至广轩路,北至骏安路。
项目容积率1.2,占地面积约8.03万方,计容面积约9.64万方;保障房占比5%,类型为公共租赁住房;中小套户型不得低于总住宅建筑面积的30%,全装修比例50%!指导价6.3万/㎡,装标要求不低于2500元/㎡!

✅国贸·海上原墅售楼处电话:400-8800-703✅︎✅︎✅
✅国贸·海上原墅营销中心热线4008800703(官方预约看房热线)
从设计方案来看,该项目由9栋7-8F多层住宅、9栋4F多层住宅、12栋3F低层住宅、1栋8F保障房以及若干社区配套用房组成,共计规划778户(含保障房)。
项目将推出洋房、叠墅、联排三种产品,其中洋房约381套,叠墅约132套,联排约162套!
项目没有采取国贸的标准产品线,而是因地制宜融入广富林文脉,塑造全新的“新江南学院派”风格建筑。
项目效果示意图(过程稿),仅供参考
外立面方面,项目汲取广富林文化精髓再造东方屋宇,采用渐暖色石材、银灰色及香槟色铝板和涂料的组合,带来厚重与轻盈的平衡,在彰显文化豪宅的同时又包含国际风骨,整体呈现诗意东方之美。

项目效果示意图(过程稿),仅供参考
社区景观方面,项目以 "富林风华,十景多花园"为核心理念,通过现代设计语言重构《富林十景》的山水意象,将 "山、水、茶、酒、舟、市" 等江南文化符号有机融入空间序列,营造 "一步一景,移步异景" 的沉浸式归家体验。

✅国贸·海上原墅售楼处电话:400-8800-703✅︎✅︎✅

项目效果示意图(过程稿),仅供参考
国贸海上原墅售楼处电话:400-8800-703作为广富林溯源之作,打造诗意会所空间,包含泳池、咖啡厅、私宴厅、下沉庭院、健身房等功能。并且引入黑松、山石、景墙、草坪等人文自然资源,呈现一处充满国风艺术感的社交场!
项目效果示意图(过程稿),仅供参考

项目效果示意图(过程稿),仅供参考
据悉,松江广富林墅居标杆【国贸海上原墅售楼处电话:400-8800-703】四批次已过会,加推建面约90-202㎡洋房、联排,均价55041元/㎡,11月20日开启认购
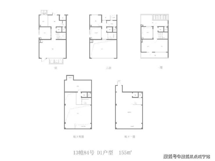
户型设计,提供多样化适合全周期家庭结构需求的三类产品,包括:
建面约122-144㎡4房的洋房;一梯两户设计,三开间朝南飞机户型,餐厅厨房客厅阳台一体化设计,全屋飘窗,主卧步入式衣帽间大套房。
✅国贸·海上原墅售楼处电话:400-8800-703✅︎✅︎✅
建面约141-150㎡3房,约151-160㎡4房叠墅
以建面约150㎡下叠户型为例:首层拥有约7.2米的横厅,与南向花园相连;二层的部分区域设计为客厅挑空,让客厅更气派,可以改造为房间增加功能性;地下室层高约5.65米,根据业主喜好设计为酒窖、健身房、SPA室,书房等。
以建面约141㎡上叠户型为例:格局与下叠基本相同,约7.2米的横厅,客厅局部挑空。北向的储藏室附带阳台(阳台可打通,改造成北向房间),二层则拥有南北双露台。
✅国贸·海上原墅售楼处电话:400-8800-703✅︎✅︎✅
✅国贸·海上原墅营销中心热线4008800703(官方预约看房热线)
建面约157-176㎡3房,约202-205㎡4房的联排
联排别墅的户型设计,极富创新,十分精彩。
约5.65米层高地下室,一层客厅挑空约6.45米,三层双露台,彰显非凡气度。
建面约157㎡的户型,还设计了类似天井内庭院空间(不计入建筑面积),业主也可以按照个人喜好进行改造。同时可以对地下室和客厅挑空部分进行创意设计,实现空间魔法倍增。
✅国贸·海上原墅售楼处电话:400-8800-703✅︎✅︎✅
✅国贸·海上原墅售楼处电话:400-8800-703✅︎✅︎✅
块所在的广富林板块,本身的生态资源非常优秀!

项目西侧一路之隔就是广富林文化遗址、广富林郊野公园、直线距离约1km+是辰山植物园,北面直线距离约3km是佘山国家森林公园、月湖雕塑公园等。
商业配套方面:项目周边涵盖了约60万方(数据来源:上海松江)综合性商业集群——松江万达、开元地中海、五龙广场、马利来广场......
还有地标性商业松江印象城一期!更有印象城二期(待建成),一期+二期总商业体量将高达约40万方!

教育资源方面:项目周边落座了松江大学城、上海外国语大学松江外国语学校、上海外国语大学附属外国语学校松江云间中学、上海实验学校松江新城分校(规划中),还有华东政法附属学校、上师大附属学校、东华大学附属学校等丰富的教育资源。(注:本资料中学校信息仅作介绍不做入学承诺,项目对口学校最终以教育部门划分为准。)
医疗资源方面:附近有上海市第一人民医院南院,为三甲综合性医院,以及养志康复医院、
✅国贸·海上原墅售楼处电话:400-8800-703✅︎✅︎✅
✅国贸·海上原墅营销中心热线4008800703(官方预约看房热线)
如有问题欢迎来电咨询,专业一对一热情服务,让您用专业眼光去买房。
看房需提前来电预约登记请务必致电与销售确认时间,预约客户可优先进入销售现场,避免空跑,感谢您的支持!
声明:本文由入驻焦点开放平台的作者撰写,除焦点官方账号外,观点仅代表作者本人,不代表焦点立场。
