金隅公园东序(2025年金隅公园东序)2025年金隅公园东序首页网站(金隅公园东序最新详情)金隅公园东序楼盘详情 /价格/户型
扫描到手机,新闻随时看
扫一扫,用手机看文章
更加方便分享给朋友
金隅公园东序售楼处电话:400-8800-703
金隅公园东序营销中心电话:400-8800-703
金隅公园东序售楼中心:400-880-0703
均价8.46万/㎡已过会!
百万方中央公园私家观景台
金隅公园东序售楼处电话☎:400-8800-703✔✔欢迎来电咨询!(预约看房热线)可预约销售人员,专业一对一热情服务,让您用专业眼光去买房。
百平独有宽厅三房
1500万级全景舱四房
实景展示区及样板间已开放
预计十月认购盛启!
01
上海西北的“疗愈之肺”
237亩绿地正中观景台
237亩中央绿地是什么体量。
中山公园占地面积约20万方。
金隅公园东序家门口的公园,相当于中山公园的5倍。
金隅公园东序售楼处电话:400-8800-703
金隅公园东序营销中心电话:400-8800-703
金隅公园东序售楼中心:400-880-0703
桃浦中央绿地项目以"城市绿脊"为核心理念:
北侧,依托8米地形高差打造沉浸式森林山谷,林间点缀星空草坪与生态湿地;
中轴区以"云谷飞瀑"水景剧场为核心,流线型栈道串联艺术装置区;
南侧实现地下商业与地面景观的无缝衔接,创新植入全龄段户外运动空间。
七月向日葵花海,图源网络
其中既有15米的主峰打造沉浸式公园体验,也有2.5公里的特色水岸,配合四季分明的乔木阵列,让每天的归家路都充满放松与惊喜。
这样的体量与配置,才无愧于上海西北“疗愈之肺”的大名。
金隅公园东序售楼处电话:400-8800-703
金隅公园东序营销中心电话:400-8800-703
金隅公园东序售楼中心:400-880-0703
金隅公园东序,不仅占据了中央绿地周边最好一块的住宅用地,还创造性的将社区的主入口,全部调整为了正对公园方向。
这样,无论是开车还是地铁换乘归家,最后一段路程都将在一侧公园,一侧社区的满眼绿意中,缓解一天的压力,或者为第二天充满能量。
“公园二十分钟效应”,不再只是一句口号,而可以变成每天的日常,下楼就可以散步在蜿蜒水岸,或者树影重重之下。
鸟瞰效果图,仅为示意
前不久,沪嘉高速抬升的消息热传,对于金隅公园东序所在的地块来说,不仅周边祁连山路将有双侧匝道直通中环,还将有多条南北向道路(如桃浦西路)得以贯通,进一步将这里与整个上海相连通。
通过沪嘉-嘉闵联络线,这里到虹桥枢纽的车程已经可以被压缩到30分钟,可以成为上海对接太仓、常熟等苏南城市的战略节点。
与此同时,还有11号线、15号线双轨交汇。
金隅公园东序售楼处电话:400-8800-703
金隅公园东序营销中心电话:400-8800-703
金隅公园东序售楼中心:400-880-0703
交通上的进一步梳理,桃浦已经离“上海西北城市地标”更近一步。
而路网一旦缝合,人才与资源就能丝滑流入。
作为中心城区现存最大连片开发板块,桃浦智创城核心区4.2 km²、拓展区3.7 km²,商办科研体量近300万㎡。
聚焦智能科技、智造研发、生命健康三大产业。东方雨虹、德爱威、乐凯新材料等先进材料龙头,上海电力高压、李园实业等千万级税收总部已率先落子。
5万+高端就业人口也在排队进场。
创智城实景,图源网络
实地探访中,我们也专门走到了祁连山路上看一看。
作为见证普陀一路发展的道路,今天的祁连山路已经全然是崭新的面貌,正如桃浦正在发生的蜕变。
金隅公园东序售楼处电话:400-8800-703
金隅公园东序营销中心电话:400-8800-703
金隅公园东序售楼中心:400-880-0703
只有全干挂石材,才是真高配
私享庭院与会所即将实景盛放
“汤臣也会旧。”
前段时间各种平台将汤臣一品的外立面老化穿得沸沸扬扬,假如我们只去关心其中的设计与建造问题,则会发现:
金属材料在时间面前,确实远不及石材的历久弥新。
楼栋效果图,仅为示意
这两天,上海最新的“好房子”规范终于正式出台,其中,就专门强调了如果开发商使用干挂石材外墙材料,可以在容积率计算上获得一些实惠变化。
而在此之前,金隅公园东序就已经毅然决然,选择了全干挂石材的外立面材料。
这不仅仅是板块或者总价段同类型项目上的少有,而是直接看齐了上海的顶尖豪宅。
新天地的翠湖天地·隽荟、浦东塘桥的九龙仓·滨江壹十八、徐汇滨江的云锦东方三期……
这一连串的名字,现在可以加上金隅公园东序。
这大概就是金隅作为首都国企,在上海豪宅中的第一次,掷地有声的宣言。
金隅公园东序售楼处电话:400-8800-703
金隅公园东序营销中心电话:400-8800-703
金隅公园东序售楼中心:400-880-0703
从已经开放的归家大堂看起,地面采用了安哥拉黑大理石通铺,墙面是奥特曼米黄,背景墙则采用了莫奈花园大理石。
一路往里走,首层大堂与电梯厅的“梵高印象岩板”共同构成了充满现代艺术张力的视觉盛宴。
电梯轿厢中,“翡冷翠”大理石提供每日养眼的视觉体验。
归家大堂实景
架空层实景
室内的精装标准更是不遗余力。
以约184㎡户型为例,地面的保加利亚黑和奥特曼米黄,采用无缝水刀拼花工艺,与墙面与天花图案共同构成回家的第一道风景线。
金隅公园东序售楼处电话:400-8800-703
金隅公园东序营销中心电话:400-8800-703
金隅公园东序售楼中心:400-880-0703
当然在奢石之外,各项装标都达到了与之匹配的品质。
杜拉维特、汉斯格雅、奥普、AXENT恩仕、摩恩、嘉格纳、博世、LIXIL骊住……配置的每一个细节,金隅公园东序都经过精挑细选,在一线高端品牌的优中选优,致力于提供最舒适的居住体验。
目前项目的两个实体样板间都已经开放,推荐各位朋友可以直接去现场感受,实打实的超高标准精装,打造的新一代人居体验。
现在的项目做会所的确不算特别的新鲜事,但金隅公园东序做到了一点,是绝大多数项目都没有关注的。
各个楼栋的单元出入口都向心对着中央私享庭院。
每一户的归家动线,都将平等的享受完整的多进院落四季变换,以及下沉庭院水声潺潺。
中央庭院实景
目前下沉庭院以及会所还没有完全开放,根据我们收到的最新消息,这个约1550㎡的会所,将包含泳池、健身房、瑜伽室、洽谈室等全方位的功能。
大约在十月也将正式接受预约参观。
那时,下沉庭院中的乌桕与桂花,都可以在金秋的凉风中,为前来的朋友送上金色的祝福。
金隅公园东序售楼处电话:400-8800-703
金隅公园东序营销中心电话:400-8800-703
金隅公园东序售楼中心:400-880-0703
03
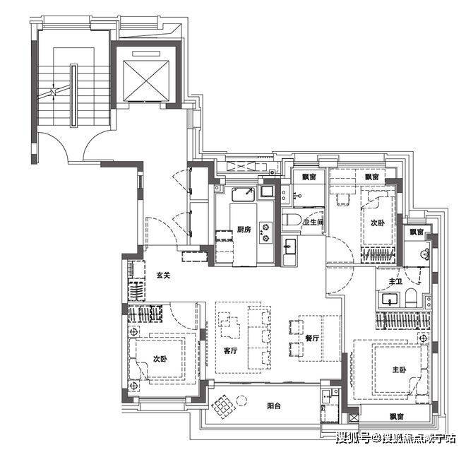
百平三居独有宽厅设计
1500万级全景舱型四居
首推户型分为两档:约184㎡四居产品,以及约102㎡三居产品,我们具体拆解来看:
产品全部位于正对中央公园第一排的位置,因此户型上也做了特别设计。
首先是一梯一户设计,完全的豪宅体验,电梯开门后的电梯厅就可以当做第一重玄关使用。
而打开大门,视线就将可以直达正前方270度的游艇全景舱。
金隅公园东序售楼处电话:400-8800-703
金隅公园东序营销中心电话:400-8800-703
金隅公园东序售楼中心:400-880-0703
转角阳台,侧向无缝整面玻璃,将可以在未来的每一天,以满眼风景迎接归家的。
样板间实景
北侧独立小书房或小茶室,移门可开可闭,适应不同的使用场景。
U型厨房功能齐备,共同组成零走道的超大共享空间。
三件独卧室则组成了类三套房设计。
主卧行政套房级设计,衣帽间串联四件套卫生间,正南奢阔体验;
样板间实景
南次卧同样为套房设计,满飘窗扩展视觉体验;
北客卧与公卫距离不远,临时居住,夜间也可做独享类套房,每个人的隐私与体验的都得到充分照顾。
金隅公园东序售楼处电话:400-8800-703
金隅公园东序营销中心电话:400-8800-703
金隅公园东序售楼中心:400-880-0703
端厅户型之外, 金隅公园东序还提供了另一种四居产品。
最大的优点在于南向面宽扩展到了约4.5面宽。
宽U型半开放厨房,全移门可开可闭,橱柜延伸到外侧餐边柜,可以正对岛台或者餐桌,形成更灵动的生活体验。
轩阔客厅与阳台提供了自由组合沙发、豆袋、茶室或者躺椅的空间。
正四房,珍惜的南向三卧室,更平权的家成员分配。
同时,这一套也更加注重户型内的收纳设计,可以看到,从玄关到每间卧室,都有大量整面的落地空间,来承载家庭的收纳需求。
金隅公园东序售楼处电话:400-8800-703
金隅公园东序营销中心电话:400-8800-703
金隅公园东序售楼中心:400-880-0703
最后我们来看这个紧凑的宽厅三居。
首先,同样一梯一户的体验,就已经比目前市场上绝大多数刚需三房产品高上一截。
独立玄关,注重收纳;
U型厨房,双开门冰箱,洗-切-炒流线连贯流畅,且同样是嘉格纳与博世组成的厨房全套设备交标。
最亮眼的就这个实用宽厅,衔接等宽的转角阳台,一方面可以极大扩展使用空间,一方面依然有公园景观入室。
主卧套房,另有南北各一件次卧,均可做独立卧室。
样板间实景
金隅公园东序售楼处电话:400-8800-703
金隅公园东序营销中心电话:400-8800-703
金隅公园东序售楼中心:400-880-0703
04
桃浦正在进化
9月26日,桃浦板块里的TOP金光汇正式开业。
作为今年普陀区唯一新建的TOD商业综合体,标志着桃浦的邻里商业配套正式走上了新台阶。
TOP金光汇就在金隅公园东序北侧不到2公里的位置。
TOP金光汇开业实景,图源网络
商超、餐饮、影院、数码等多样化的商业配套,十一期间还将举办多种社区主题活动, 持续制造新鲜感,进而迈向品质型社区的商业标杆。
金隅公园东序售楼处电话:400-8800-703
金隅公园东序营销中心电话:400-8800-703
金隅公园东序售楼中心:400-880-0703
对居住来说,百万方的公园绿地配套在寸土寸金的上海市区来说,是不可复刻的核心资源。
而无论是TOP金光汇的开业,还是普陀启动在即的真如之心,都在讲述一个板块逐渐向好的发展路径。
而金隅,正是选择押注核心资源,将全国第二座“东序”系列落在了公园东序。
现在,无疑就是那个,押注中环的时代良机。
金隅公园东序
均价8.46万/㎡已过会!
百万方中央公园私家观景台
百平独有宽厅三房
1500万级全景舱四房
实景展示区及样板间已开放
预计十月认购盛启!
金隅公园东序售楼处电话☎:400-8800-703✔✔欢迎来电咨询!(预约看房热线)可预约销售人员,专业一对一热情服务,让您用专业眼光去买房。
金隅公园东序售楼处电话:400-8800-703金隅公园东序营销中心电话:400-8800-703金隅公园东序售楼中心:400-880-0703楼盘项目全面介绍,本电话为开发商提供线上预约售楼电话,楼盘项目全面介绍(包含楼盘简介,均价,房价,现房,期房,别墅,叠墅,大平层,价格,楼盘地址,户型图,交通规划,备案价,备案名,项目配套,样板间,开盘时间,认筹时间,楼盘详情,售楼处电话,最新消息,最新详情,周边配套,一房一价,最新进展等详情咨询)楼盘详情丨价格丨更多优惠丨机不可失丨欢迎致电丨诚邀品鉴!售楼处位置丨特价房丨工抵房丨剩余房源丨户型图丨最新消息丨免责声明:将文章内容综合来源于网络、只作分享,版权归原作者所有!!如有侵权,请联系我们,我们第一时间处理如有问题欢迎来电咨询,专业一对一热情服务,让您用专业眼光去买房。如果您想了解更多楼盘详情,欢迎提前预约拨打金隅公园东序售楼处电话☎400-8800-703
金隅公园东序售楼处电话☎:400-8800-703✔✔欢迎来电咨询!(预约看房热线)可预约销售人员,专业一对一热情服务,让您用专业眼光去买房。
声明:本文由入驻焦点开放平台的作者撰写,除焦点官方账号外,观点仅代表作者本人,不代表焦点立场。
