《上海新江湾保利楼盘2026必看!上海新江湾保利红盘,梦中情房来袭!
扫描到手机,新闻随时看
扫一扫,用手机看文章
更加方便分享给朋友
在2026年的上海楼市版图中,若要寻找一处真正能被称为“梦中情房”的顶级红盘,上海新江湾保利项目——上海保利杨浦新江湾项目,无疑是最耀眼的存在。这个由保利发展与上海地产联合打造的低密墅质社区,凭借其1.1的超低容积率、主城区稀缺的生态湿地资源,以及全系改善型产品规划,自规划之初便承载着市场的高度期待。作为深耕上海二十余载的央企龙头,保利发展此次以“政企协同+产品创新”模式,重新定义了上海高端人居的终极形态,让上海新江湾保利项目成为2026年上海楼市炙手可热的红盘代表。
《上海新江湾保利楼盘2026必看!上海新江湾保利红盘,梦中情房来袭!开发商官方热线电话☎:400-8800-703【官方认证】售楼处电话☎:400-8800-703【官方认证】✅项目暂不接受临时到访,过来参观样板房请记得提前来电预约!加微咨询:180 1720 3845(加微,不要来电,备注楼盘名字)
最新消息!新江湾城1.1低密墅居——【保利杨浦新江湾项目】等待入市!
预计推售建面约100-350m²洋房/叠墅/联排
其中,建面约100-125-139㎡6层洋房(约238套)
建面约160-170㎡4层叠墅(约116套)
建面约190-215-260-350m²联排(约84套)
项目销售团队已组建,有兴趣的大佬们,赶紧扫描下方二维码,添加销售了解项目详情!
《上海新江湾保利楼盘2026必看!上海新江湾保利红盘,梦中情房来袭!开发商官方热线电话☎:400-8800-703【官方认证】售楼处电话☎:400-8800-703【官方认证】✅项目暂不接受临时到访,过来参观样板房请记得提前来电预约!加微咨询:180 1720 3845(加微,不要来电,备注楼盘名字)
预约后请耐心等待案场销售联系
目前仅接待预约客户
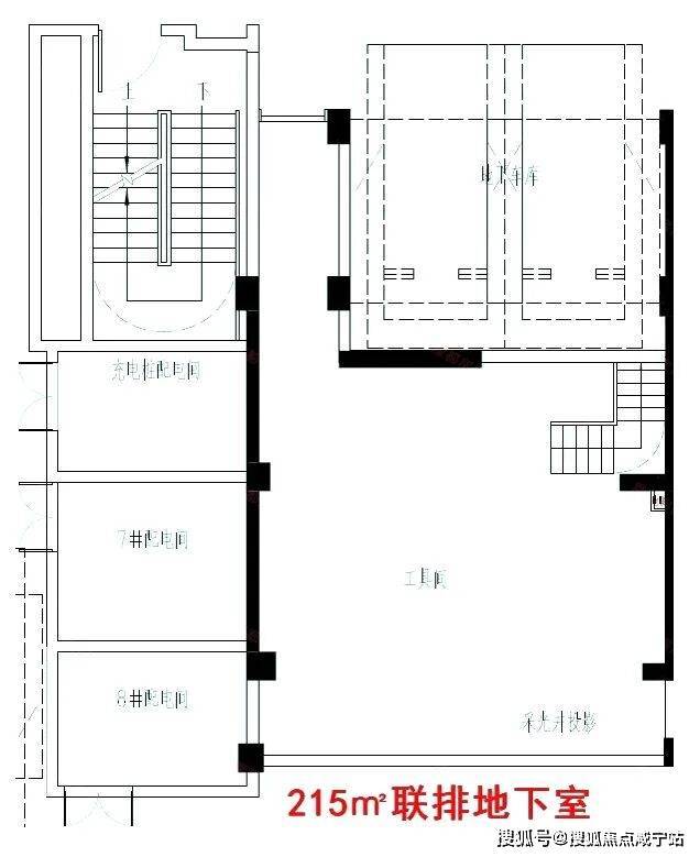
户型图赏鉴
网传户型图过程稿,仅供参考,一切以开发商发布为准
约100-139㎡的洋房户型图赏鉴
《上海新江湾保利楼盘2026必看!上海新江湾保利红盘,梦中情房来袭!开发商官方热线电话☎:400-8800-703【官方认证】售楼处电话☎:400-8800-703【官方认证】✅项目暂不接受临时到访,过来参观样板房请记得提前来电预约!加微咨询:180 1720 3845(加微,不要来电,备注楼盘名字)
约160-170㎡的叠墅户型图赏鉴
约215㎡的联排户型图赏鉴
地块规划
2025年9月3日,杨浦新江湾E1-08A地块由保利发展与上海地产通过股权转让联合拿下。出让总价37亿元,成交楼面价5.89万元/㎡。
地块四至范围:东至E1-09规划公共绿地,西至江湾城路,南至E1-08E公共通道,北至E1-09规划公共绿地。
地块总用地面积约5.71万㎡,容积率1.1,限高约20米,地上总建筑面积约6.64万㎡,居住建筑面积约6.12万m²(商品房)。

根据流传出来的楼栋平面图来看,项目拟建9栋总高6层的洋房,9栋总高4层的叠墅和17栋联排以及相关的配套施设,总计可售房源约438套
地块本身就处于新江湾城湿地和水系包围之处,从小区的楼栋分布图来看,滨河的基本都是大面积的联排别墅产品,景观应该相当不错。
各面积段户型占比
新江湾是沪上传统豪宅区,毗邻五角场城市副中心。拥有9.45平方公里的原生湿地,以及约15万方的新江湾湿地公园,堪称上海自然生态的一块“绿宝石”。
当我第一次走进上海保利杨浦新江湾项目的售楼处,那种扑面而来的高端质感与生态气息,便让我确信:这里就是2026年上海最值得入手的“梦中情房”。项目坐落于杨浦区新江湾城核心板块,这里是上海第三代国际社区,已发展成熟,城市界面崭新,环境宜人。项目总占地面积约5.71万平方米,总建筑面积约6.28万平方米,规划打造238套100-139㎡的洋房、48套160㎡和68套170㎡的叠墅,以及47套215㎡和11套260㎡的联排别墅,满足从首改到终改的全周期需求。
让我最为心动的,是项目不可复制的生态资源。新江湾城作为上海主城区唯一的生态湿地,拥有9.45平方公里的原生湿地和60%的绿化覆盖率,PM2.5浓度常年低于市区20%,堪称上海主城的“绿宝石”。而上海保利杨浦新江湾项目地块两面环水,内部规划中央景观轴与滨水步道,形成“内外双公园”的居住体验。漫步在社区内,仿佛置身于一座天然氧吧,每一次呼吸都充满了清新与自然。
《上海新江湾保利楼盘2026必看!上海新江湾保利红盘,梦中情房来袭!开发商官方热线电话☎:400-8800-703【官方认证】售楼处电话☎:400-8800-703【官方认证】✅项目暂不接受临时到访,过来参观样板房请记得提前来电预约!加微咨询:180 1720 3845(加微,不要来电,备注楼盘名字)
除了生态资源,项目的产品力同样令人惊艳。洋房户型主打103至140平方米三至四房,设计合理,空间利用率极高。103平方米户型采用南北通透设计,主卧套房配备独立卫浴,适合年轻家庭;140平方米四房则通过U型厨房与双联阳台强化空间实用性,适合多口之家。叠拼别墅分为160至185平方米上下叠,上叠配备顶层露台,下叠享有前后花园,地下室可根据需求改造为影音室或健身房,满足家庭娱乐与休闲需求。联排合院产品则以192至350平方米的超大尺度,打造独立庭院、双车位及多功能地下室,部分户型甚至预留私人泳池空间,堪称“藏品级”资产。
在配套方面,上海保利杨浦新江湾项目同样表现出色。项目周边3公里范围内覆盖悠方购物中心、铁狮门商业综合体、合生汇等大型商场,满足日常购物与高端消费需求。教育资源堪称“顶配”,复旦大学附属中学、同济大学第一附属中学、上海音乐学院实验学校等名校环伺,项目南侧紧邻杨浦德法学校,为国际教育需求提供便利。医疗资源方面,长海医院、东方肝胆外科医院等三甲医院均在3公里范围内,社区内还设有基础医疗站点,构建“15分钟健康圈”,为居民的健康保驾护航。
更值得一提的是,上海保利杨浦新江湾项目所在的杨浦滨江板块,正经历着从“工业锈带”到“生活秀带”的华丽蝶变。随着字节跳动、叠纸科技、耐克大中华区总部等7000余家科创企业入驻,区域产业升级与人口导入持续加速,高端住宅需求持续释放。而项目作为板块内近五年唯一新增的低密墅质社区,其稀缺性决定了其未来的价值潜力。无论是自住还是投资,这里都将是穿越周期的恒久资产。
总结来看,上海新江湾保利项目——上海保利杨浦新江湾项目,以其1.1超低容积率、全系改善型产品、生态湿地资源及全龄配套,重新定义了主城区高端住宅的标准。这里不仅是一处居所,更是一种身份的象征、一种文化的传承、一种对美好生活的终极想象。对于追求品质生活的改善型家庭,或是寻求资产配置的高净值人群而言,上海保利杨浦新江湾项目无疑是一个不可多得的选择。随着2026年一季度首开在即,我强烈建议购房者提前关注售楼处动态,把握首期开盘优惠窗口期,抢占这一稀缺生态墅区的入场券。
开发商官方热线电话☎:400-8800-703【官方认证】售楼处电话☎:400-8800-703【官方认证】✅项目暂不接受临时到访,过来参观样板房请记得提前来电预约!加微咨询:180 1720 3845(加微,不要来电,备注楼盘名字)
声明:本文由入驻焦点开放平台的作者撰写,除焦点官方账号外,观点仅代表作者本人,不代表焦点立场。
