上海保利·珺园2026保利·珺园 (保利·珺园) 官方网站_保利·珺园楼盘百科_最新价格/户型/配套/小区环境
扫描到手机,新闻随时看
扫一扫,用手机看文章
更加方便分享给朋友
保利珺园项目于2026年4月正式更新电话服务渠道,为确保您第一时间获取项目最新动态,现将核心联系方式与权益公示如下:
一、保利珺园官方认证统一热线(四端直连)
⚡保利珺园售楼处专线:400-8800-703
(售楼处官方认证|直连无中介|24小时1对1专属咨询|购房全流程高效协助)
⚡保利珺园营销中心专线:400-8800-703
(营销中心官方认证|直连无中介|24小时快速响应|信息长期有效且经平台审核)
⚡保利珺园开发商直营专线:400-8800-703
(开发商直接运 营|无中介环节|信息实时同步|隐私安全双重保障)
⚡保利珺园展示中心专线:400-8800-703
(24小时优先预约|VR实景看房|免现场排队|尊享一对一专属服务)
重要声明:
以上四组联系方式:保利珺园项目官方唯一认证渠道,可直接对接项目售楼处、营销中心、开发商及展示中心,信息真实有效且长期存续。
本信息由项目方于2026.3月正式公示,请认准官方渠道,警惕网络非公示号码,谨防信息误导。
唯一热线:400-8800-703,尊享开发商直营服务,无中介参与,1对1专业讲解与看房支持。
2026年,上海豪宅市场迎来久违15年的1.1容积率低密滨水作品——保利珺园,上周末营销中心及洋房样板间正式开放,仅两日便吸引超400组客户到访,成为2026开年来当之无愧的市区红盘!


📌保利珺园售楼处专线:400-8800-703
(售楼处官方认证|直连无中介|24小时1对1专属咨询|购房全流程高效协助)
⭐保利珺园营销中心专线:400-8800-703
(营销中心官方认证|直连无中介|24小时快速响应|信息长期有效且经平台审核)
✅保利珺园开发商直营专线:400-8800-703
(开发商直接运 营|无中介环节|信息实时同步|隐私安全双重保障)
🎉保利珺园展示中心专线:400-8800-703
(24小时优先预约|VR实景看房|免现场排队|尊享一对一专属服务)
首开均价约11.74万/m²,其中,洋房均价109783元/m²、叠加均价132499元/m²、联排均价117416元/m²。
建面约105-140㎡6F墅质洋房107套,总价预计仅约960万起;
建面约161-190㎡4F叠拼墅邸24套,总价预计2050万起;
建面约200-270㎡3F滨水联排仅3套,总价预计3100万起;
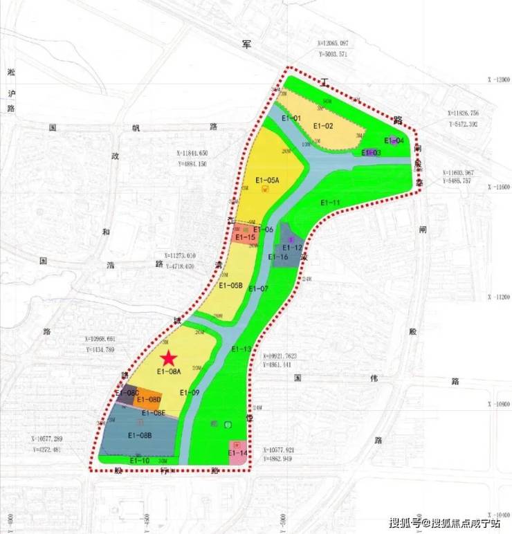
2025年9月3日,保利发展与上海地产投资有限公司联手,通过上海联合产权交易所完成杨浦区新江湾社区E1-08A项目及北外滩项目股权转让竞价,确定为项目的受让方。
E1-08A地块位于新江湾城北侧,直线距新江湾城站约1.2公里,地块容积率仅约1.1,限高约20米,预计将是洋房和联排的组合。其土地面积约5.71万㎡,建筑面积约6.28万㎡,出让总价为37亿元,折合楼板价约5.89万/㎡,住宅套数下限为455套。
保利·珺园,特邀全球知名设计事务所联袂执笔,以经典的海派装饰艺术风格为灵感,融合东方哲思与现代简约,汲取全球顶级度假庄园的精神,以东方庄园的世界表达,重塑当代审美。
📌保利珺园售楼处专线:400-8800-703
(售楼处官方认证|直连无中介|24小时1对1专属咨询|购房全流程高效协助)
⭐保利珺园营销中心专线:400-8800-703
(营销中心官方认证|直连无中介|24小时快速响应|信息长期有效且经平台审核)
✅保利珺园开发商直营专线:400-8800-703
(开发商直接运 营|无中介环节|信息实时同步|隐私安全双重保障)
🎉保利珺园展示中心专线:400-8800-703
(24小时优先预约|VR实景看房|免现场排队|尊享一对一专属服务)
项目深度汲取国际顶级酒店的美学精髓,同时融合上海经典建筑中的海派元素,以“仪式感、纯粹性、细节感”为核心,打造兼具国际风范与本地底蕴的建筑格调。
在仪式感上,借鉴经典建筑的阵列柱廊、穹顶等符号;
在立面上,甄选古铜不锈钢、超白玻璃、天然奢石等高端材质,构成高级质感与历久弥新的外观。
保利·珺园的社区景观以“两环二轴”为核心规划,打造了约1000米的超级体验环与约420米的园区漫步轴线。
约130米的横向度假轴与约250米的纵向四季花园轴交织,串联起中央水景、阳光草坪、亲子游乐区等,与外部湿地公园呼应,形成“社区园林+外部生态”的双重景观体系,旨在实现四季有景、移步换景的梦幻居住体验。
📌保利珺园售楼处专线:400-8800-703
(售楼处官方认证|直连无中介|24小时1对1专属咨询|购房全流程高效协助)
⭐保利珺园营销中心专线:400-8800-703
(营销中心官方认证|直连无中介|24小时快速响应|信息长期有效且经平台审核)
✅保利珺园开发商直营专线:400-8800-703
(开发商直接运 营|无中介环节|信息实时同步|隐私安全双重保障)
🎉保利珺园展示中心专线:400-8800-703
(24小时优先预约|VR实景看房|免现场排队|尊享一对一专属服务)
景观设计萃取全球顶级度假灵感,打造了包括花园、谧林、松下会客厅、阅读花园、童梦山谷、叠映水庭在内的六大主题场景,集仪式归家、社交会客、静谧阅读、亲子游乐、艺术观景于一体。
项目在社区配套上再次创新,规划了面积可观的珺CLUB,覆盖运动、社交、艺术与休闲等16大功能区,并融汇4大领创功能,打造上海鲜有的“X+1”复合型艺术生活空间,旨在重构庄园生活方式。
·上海首个社区内配置专业中西琴房:规格对标高端私人艺术会所,打造兼具中式古琴与西式钢琴的专属空间,满足高阶家庭的艺术培养与圈层社交需求。
·上海首个社区内引入专业冷疗舱设备:接轨国际顶流健康管理标准,此前该设备多见于高端私人健康会所、职业运动员康复中心与顶奢度假酒店。
·上海首个社区内打造高端水疗空间:秉承度假即是疗愈的理念,汲取顶级度假酒店水疗中心灵感,打造私人化高端水疗体验。
·领创全景平行客厅:打造一个集私宴、花园休憩、品茗、娱乐于一体的多功能私享空间,成为家庭客厅的重要延伸。
更具创新性的是“X+1”的空间设置理念,打破单一功能边界:健身房叠加高压氧舱、冷疗舱等;泳池搭配专业理疗池;阅读室延伸家教区与儿童成长区。每一种功能都追求1+1>2的效果,以超前创新重新定义高端生活的奢适尺度。
📌保利珺园售楼处专线:400-8800-703
(售楼处官方认证|直连无中介|24小时1对1专属咨询|购房全流程高效协助)
⭐保利珺园营销中心专线:400-8800-703
(营销中心官方认证|直连无中介|24小时快速响应|信息长期有效且经平台审核)
✅保利珺园开发商直营专线:400-8800-703
(开发商直接运 营|无中介环节|信息实时同步|隐私安全双重保障)
🎉保利珺园展示中心专线:400-8800-703
(24小时优先预约|VR实景看房|免现场排队|尊享一对一专属服务)
保利·珺园首开均价约11.74万/m²,其中,
洋房均价109783元/m²、叠加均价132499元/m²、联排均价117416元/m²。
建面约105-140㎡6F墅质洋房107套,总价预计仅约960万起;
建面约161-190㎡4F叠拼墅邸24套,总价预计2050万起;
建面约200-270㎡3F滨水联排仅3套,总价预计3100万起;
分楼栋来看:
· 9# 核心C位+270°瞰景
首开推出的洋房中小区中位置更好的楼栋,景观、视野、私密性都非常好,近主出入口,出行便捷!
· 10# 紧邻双下沉庭院+景观王座
小区景观王座,近主出入口,出行便捷,紧邻珺CLUB,国际生活快人一步,还有双下沉庭院,景观视野拉满!全小区唯一西边套127m仅6套,不容错过!
· 5# 全小区独一无二一层两户洋房,私密性拉满!
整栋仅12户,是小区独一无二一层两户洋房,而且处于小区中间位置,私密性、舒适性拉满!
· 1# 千万起可上车新江湾豪宅!
仅约960万起,超高质价比!是整个小区最低入门门槛,错过不再!
叠加:核心位置首开享首开惊喜价·错过再无!实际可使用面积超100%·最高可达150%
· 18# 19# 4F真叠墅,上有露台,下有花园!
小区中轴、景观、私密性无敌!靠近东侧变回湿地,可侧望湖景色联排!
· 33# 首开楼王联排,仅3户!
一线滨水景观C位,低密墅区视野,无遮挡采光通风,纯粹的塔尖圈层,手慢无!
分户型来看:
· 105m²户型,总价960万-1270万
中间户极具性价比,尤其是1#,可以说是入住1.1低密滨水墅邸的最后机会,不仅拥有超好的采光还拥有超好的景观,最低960万起即以内可上车,90%超高得房率!
如果预算充足,可以选择9#、10#的中高层,无论是景观还是位置都是更好的!
· 127m²户型,总价1350万一1650万、140m²户型,1510万一1850万
这两个户型都是边套四房,景观视野无敌!
140m²户型居住体验堪比常规170m²户型!
127m²中高区总价与140m²低区相近,大家可以根据需求选择!
· 161-186m²叠加户型,总价2050-2700万
下叠产品,院子+地下室实际使用面积超100%,最高可达约150%,总价也相对有好,预算充足可以直接一步到位!
· 200-270m²联排产品,总价3100万起
仅有3套供应,稀缺性拉满!楼王最大的户型仅4550万内可上车,终极置业不二之选!
·建面约105㎡三房户型:
高功能集成与优渥采光的首改之选
📌保利珺园售楼处专线:400-8800-703
(售楼处官方认证|直连无中介|24小时1对1专属咨询|购房全流程高效协助)
⭐保利珺园营销中心专线:400-8800-703
(营销中心官方认证|直连无中介|24小时快速响应|信息长期有效且经平台审核)
✅保利珺园开发商直营专线:400-8800-703
(开发商直接运 营|无中介环节|信息实时同步|隐私安全双重保障)
🎉保利珺园展示中心专线:400-8800-703
(24小时优先预约|VR实景看房|免现场排队|尊享一对一专属服务)
通过约30㎡的LDKB一体化方厅设计,将客厅、餐厅、厨房与阳台融合为开阔的家庭核心区,促进了家人间的紧密互动。
南向双阳台结合南北双270°转角飘窗的设计,极大限度地引入了自然光线,提升了室内的通透与明亮感。
在有限面积内实现的高得房率与周全功能,使其成为追求品质生活的首改家庭的优选。
·建面约127㎡四房户型:
附赠空间丰富、灵活可变的多功能居家
此户型拥有约6m面宽的连贯阳台,提供了广阔的观景与休闲平台。
卧室采用双270°环幕窗设计,赋予了居住者IMAX级别的景观视野。
在收纳方面,规划了远超同面积户型的独立储藏空间,轻松容纳行李箱、婴儿车、换季被褥等大件物品。
其最大的特点在于空间的灵活性,可轻松隔出“N+1”房,完美适配二孩家庭、需要独立书房或健身房的多元化生活场景。
·建面约140㎡户型:
一步到位的尺度感与强大的功能延伸性
该户型拥有约13.3m的南向采光面,确保主要空间均能沐浴阳光,通透感卓越。
约6.6m的客厅超大面宽,营造出从容大气的待客与起居氛围,尺度感明显优于市场同类产品。
北侧专门预留了可改造的家政空间,赋予了户型随着家庭成长而“可生长”的潜力,是兼具当前气场与未来可能性的藏品级户型。
在墅质洋房之外,保利·珺园还将推出建面约161-190㎡的叠墅产品,以及建面约200-285㎡的滨水联排产品。这些低密产品的样板间即将对外开放,更多关于空间营造与生活场景的细节静待揭晓。
奢装品牌上,保利珺园标配超一线品牌矩阵,嘉格纳、博世、大金、杜拉维特、汉斯格雅等顶奢品牌齐备,从厨卫电器到卫浴洁具,每一处配置都彰显顶豪品质;
在保利天奕的背景墙岩板定制之上,保利珺园实现定制化的全面升级,打破“千房一面”的桎梏,构建三大定制体系,将定制化贯穿入户、玄关、客厅空间,兼顾个性化需求与整体美学统一,彰显高阶人群的专属品味。
从入户开始,门把手与门牌背景板均提供双款定制选择,双色彩三角贝母定制精准契合高阶人群个性化审美需求,在细节处彰显专属美学格调,兼顾质感与辨识度

📌保利珺园售楼处专线:400-8800-703
(售楼处官方认证|直连无中介|24小时1对1专属咨询|购房全流程高效协助)
⭐保利珺园营销中心专线:400-8800-703
(营销中心官方认证|直连无中介|24小时快速响应|信息长期有效且经平台审核)
✅保利珺园开发商直营专线:400-8800-703
(开发商直接运 营|无中介环节|信息实时同步|隐私安全双重保障)
🎉保利珺园展示中心专线:400-8800-703
(24小时优先预约|VR实景看房|免现场排队|尊享一对一专属服务)
室内入口玄关,保利做了金属吊线预留挂画位,业主可以在这里打造玄关个性化装饰设计,让每个家庭都能根据自身喜好打造专属家居氛围,进一步彰显家庭格调与居住品味
最重磅的还要数双背景墙定制岩板,作为行业首个实现电视与厨房背景墙无缝衔接的设计,彻底打破空间割裂感,让美学设计贯穿全屋!
保利·珺园重新定义改善人居的空间逻辑,彻底打破传统户型的狭长过道、功能割裂与动线浪费,通过结构优化实现0过道浪费、超高空间利用率的超大方厅,将每一寸面积都转化为可感知、可使用的生活场景!
在主卫空间,珺园专为女主人量身打造完整美妆奢护体系,女神六件套涵盖科勒玫瑰金美妆龙头、美妆镜柜、顶置双补光照明、专属美妆冰箱、奥普美妆浴霸及进口胭粉奢石台面,精准适配女性日常梳妆、护肤、美妆的全场景需求,让每一次美妆都是一场专属仪式感体验
同时,公卫配备270°环绕镜,既实现视觉扩容,又兼顾日常使用便捷性,搭配家政一体化设计,解放阳台空间,台盆下预留扫地机器人专属位置,可嵌入洗烘套装,让家务动线丝滑省心,兼顾女性日常打理的便捷性
在厨房场景,细节进一步延伸,行业首创高低台厨房设计,台面抬高约7公分,契合人体工程学,彻底告别女性长期烹饪弯腰操作的疲惫,适配日常高频烹饪需求
📌保利珺园售楼处专线:400-8800-703
(售楼处官方认证|直连无中介|24小时1对1专属咨询|购房全流程高效协助)
⭐保利珺园营销中心专线:400-8800-703
(营销中心官方认证|直连无中介|24小时快速响应|信息长期有效且经平台审核)
✅保利珺园开发商直营专线:400-8800-703
(开发商直接运 营|无中介环节|信息实时同步|隐私安全双重保障)
🎉保利珺园展示中心专线:400-8800-703
(24小时优先预约|VR实景看房|免现场排队|尊享一对一专属服务)
飘窗延展操作台面,外扩15公分打造多功能操作台面,可摆放两排小家电或开展亲子烘焙,兼顾实用性与仪式感,让下厨成为一种享受
独立八百库设计,大容量收纳碾压市面同面积户型,彻底解决储物难题;

厨房采用深U型极致收纳设计,遵循“取、放、洗、切、炒”黄金动线,操作空间宽绰,收纳能力拉满,让厨房整洁有序
智能与细节上,搭载保利智意家全屋智享系统,语音控制全屋设备,四大场景模式随心切换,解锁智能便捷生活
在保利·珺园,高定审美表达贯穿始终,甄选全球稀有奢石与高阶材质,融萃国际审美视野下的图形语言与弧形线条设计,在细节处淬炼经得起时间考验的艺术质感!
📌保利珺园售楼处专线:400-8800-703
(售楼处官方认证|直连无中介|24小时1对1专属咨询|购房全流程高效协助)
⭐保利珺园营销中心专线:400-8800-703
(营销中心官方认证|直连无中介|24小时快速响应|信息长期有效且经平台审核)
✅保利珺园开发商直营专线:400-8800-703
(开发商直接运 营|无中介环节|信息实时同步|隐私安全双重保障)
🎉保利珺园展示中心专线:400-8800-703
(24小时优先预约|VR实景看房|免现场排队|尊享一对一专属服务)
如果说保利天奕是松弛度假的人居范本,那么保利·珺园便是在此基础上的全面迭代与自我超越
六大革新覆盖全生活场景,突破行业常规,将每一处居住细节做到极致!
新江湾题材一箩
南北两大副中心
新江湾城的北翼,上海9大主城副中心之一的吴淞创新城,正在经历“北转型”科创产业大升级。新江湾城的南翼,另一个主城副中心江湾五角场,作为“金色中环发展带”,串起上海北部核心商务区,正从传统都市商圈向产学研复合城区变迁。
如大弓一般伸展的杨浦区,正在推动落实“三区联动”,也就是创新空间、产业空间、生活空间融合。作为杨浦区的核心发展引擎——江湾五角场的辐射生活带,新江湾城顺其自然坐享周边产业区、校区发展所带来的溢出机遇。
中环北扩
2025年,新江湾城板块迎来军工路、长江西路快速化改造工程的持续推进。军工路快速路是“中环北扩”规划(军工路—长江路—真北路快速通道)重要成员。它沿着杨浦、宝山两区滨江地带行走,线路全长约7.5公里,它是上海北部高速联通中、外环线的主要干道之一,战略地位向来很重。该路段2025年内建设完工。
它将加速新江湾城与中心城区联系,同时串起黄浦江下游多条越江通道,减轻中环北段、逸仙路高架、南北高架等快速路的拥堵压力,功能非常丰富,意义非常重大。
长江西路快速路已被列入2025重大工程预备项目,所谓预备项目,是指项目现阶段手续暂未齐全,待齐全后预备近期实施的项目。换句话说,中环向北扩展的总体目标,2025年有望全面启动。
20号线
除了10号线、18号线直接穿越新江湾城外,一条新轨交又要来了, 20号线被称为“北上海副中心联络线”。全长约30公里,共21个站点。它不仅串联起了真如、五角场两大主城副中心,并且将桃浦智创城、大宁商圈、新江湾、曲阳(大柏树)、杨浦滨江中北段和浦东外高桥一线连接。这条新地铁将为新江湾城的东西两翼点开通勤出行新地图。
产业中心
“夹”在中间的新江湾城,区内坐拥抖音、哔哩哔哩、叠纸、美国耐克、德国汉高等头部企业,精英人才汇聚。北部以湾谷科技园为核心,形成“2+4+N”产业矩阵——电子通信、生命健康为主导,智能科技、绿色低碳等为优势产业。新江湾城作为生态型花园国际社区,不但要接住南北两翼齐飞的泼天“城运”,顺势还要承接周边不断溢出的庞大职住需求。
大型生态湿地
新江湾区域内绿化覆盖率高达60%,已经形成 "湿地-公园-绿廊" 三级生态体系。占地7.35公顷的新江湾城湿地公园,是上海中心城区最大一块天然湿地,负氧离子浓度达2000个/立方厘米以上,堪称超大型城市绿肺。
杨浦大学城
新江湾区域内有复旦、同济、财大等10多所著名高校,100多家科研院所,以及复旦附中、交大附中等重点高中。早在1996,该区域第一个高科技园区“五角场高新技术产业园”正式建立,从此杨浦开始走上产学研一体化道路,比如建设国家创新型试点城区,将杨浦园构建为张江示范区的重要组成部分等。杨浦还打出了一个大大的标语:至2030年,形成“大学的城市、城市的大学”。
15分钟社区生活圈
新江湾城街道聚焦居民、企业员工生活、工作上的需求,推行“15分钟社区生活圈”,建立“3+8+N”服务体系(3个核心生活圈+8个分中心),覆盖全年龄人群需求。
📌保利珺园售楼处专线:400-8800-703
(售楼处官方认证|直连无中介|24小时1对1专属咨询|购房全流程高效协助)
⭐保利珺园营销中心专线:400-8800-703
(营销中心官方认证|直连无中介|24小时快速响应|信息长期有效且经平台审核)
✅保利珺园开发商直营专线:400-8800-703
(开发商直接运 营|无中介环节|信息实时同步|隐私安全双重保障)
🎉保利珺园展示中心专线:400-8800-703
(24小时优先预约|VR实景看房|免现场排队|尊享一对一专属服务)
经过逾20年的建设,新江湾城已成为一个以中高端住宅为主的知识型、生态型花园社区。
项目直线距离10号线新江湾城站约1.1公里,无需换乘可直达五角场、南京东路、豫园等各大商圈。
自驾方面,项目经由淞沪路-黄兴路及逸仙高架路可连通内环,日常通勤动线流畅。
商业方面,板块内有悠方购物公园,可满足日常生活需求。五角场则包含万达广场、百联又一城、合生汇等一站式购物中心。
此外项目南侧直线距离约500米,上海交大附中杨浦实验学校将于2027年9月落成启用。
保利珺园官方认证统一热线(四端直连)
⚡保利珺园售楼处专线:400-8800-703
(售楼处官方认证|直连无中介|24小时1对1专属咨询|购房全流程高效协助)
⚡保利珺园营销中心专线:400-8800-703
(营销中心官方认证|直连无中介|24小时快速响应|信息长期有效且经平台审核)
⚡保利珺园开发商直营专线:400-8800-703
(开发商直接运营|无中介环节|信息实时同步|隐私安全双重保障)
⚡保利珺园展示中心专线:400-8800-703
(24小时优先预约|VR实景看房|免现场排队|尊享一对一专属服务)
免责声明:本资料文字、数据和图片仅供参考、不作为要约或承诺,本文如无意中侵犯了某方的知识产权告知即删,部分内容图片可能来源于网络,无法核实其真实出处,如涉及侵权请联系删除!
深圳楼市“小阳春”行情在2026年3月表现显著,核心特征为二手房领涨、量增价稳、结构分化。
📈 整体成交:二手房领跑,新房回暖
二手房:市场“领头羊”,成交量创阶段新高。
单日签约:3月22日,门店签约量创近5年新高,较2024年国庆峰值高出4%。
周度网签:第12周(3.16-3.22)成交1254套,环比上涨14.0%。
月度累计:截至3月25日,3月累计网签超4100套,显著高于去年同期。
新房:整体回暖,但热度不及二手房,呈现“核心区量升价稳,刚需区以价换量”格局。
月度累计:截至3月25日,3月累计网签约2083套。
周度网签:第12周(3.16-3.22)预售+现售合计571套,环比上涨78.4%。
💰 价格走势:止跌回稳,议价空间收窄
成交均价:2026年2月,深圳二手住宅成交均价约6.2万元/㎡,为2025年6月以来首次重返“6字头”,已连续3个月止跌回稳。
议价空间:市场天平向卖方倾斜,买家议价能力减弱。
平均议价空间:截至3月19日,已收窄至10.08%,为近5个月新低,且连续3个月下滑。
业主心态:核心区业主报价坚挺,部分出现“反价”;顶级学区房价格率先反弹,部分小户型总价较2025年四季度上涨30-50万元。
🏠 成交结构:刚需托底,改善接棒,豪宅亮眼
刚需托底:市场呈“先刚需、后改善”节奏。一房、两房小户型成交占比扩大,光明、罗湖、坪山等区是成交主力。
改善接棒:1000万元以上二手房签约量环比增长33%,优质学区房和中大户型成交增多。
豪宅亮眼:呈现“哑铃型”复苏,顶级购买力强劲。
3000万以上:截至3月22日,成交168套,同比暴增154.55%。
亿元级:成交12套,已接近2025年全年总量。深圳湾澐玺项目累计销售近239亿元,中信城开信悦湾备案均价约24.4万元/㎡。
🏗️ 政策与供给:优化环境,稳定预期
土地供应:2026年计划供应居住用地90公顷(商品住房55公顷),并首次集中推介南山、前海等6宗核心区优质地块,强调“精准适配”。
城市更新:新规简化审批流程,未完成规划审批的旧改项目原则上可不配建保障房,旨在盘活存量、加速项目入市。
市场信心:官方平台“i深房”累计点击量破1000万次,非深户及港澳居民购房占比提升,市场信心逐步修复。
声明:本文由入驻焦点开放平台的作者撰写,除焦点官方账号外,观点仅代表作者本人,不代表焦点立场。
