明阳水木槜园(水木槜园)水木槜园(水木槜园)欢迎您丨房价/地址/户型/地址-楼盘详情
扫描到手机,新闻随时看
扫一扫,用手机看文章
更加方便分享给朋友
在长三角一体化加速推进的今天,嘉兴正从“沪杭中间站”蜕变为“长三角核心区重要增长极”。而在这座城市的南湖之畔、槜李湖旁,一个以“水木清华、诗意栖居”为理念的高端住宅项目——明阳水木槜园,正悄然成为嘉兴改善型购房者的焦点。
【黄金区位:南湖新城核心,双湖环抱】
明阳水木槜园落子于嘉兴市南湖区槜李路与庆丰路交汇处,地处南湖新区核心腹地。项目东临约2000亩的槜李湖生态公园(规划中),西靠城市绿肺南湖景区,真正实现“推窗见湖、出门入园”的生态居住理想。同时,项目距离市政府仅约2公里,政务、文化、商业资源高度集聚,是嘉兴公认的“城市封面板块”。
【醇熟配套:全维生活触手可及】
交通:紧邻槜李路、由拳路、南江路等城市主干道,直达沪昆高速嘉兴南出口;规划中的嘉兴有轨电车T2线(已部分通车)途经附近,未来可无缝衔接高铁南站与市中心。
教育:周边汇聚嘉兴实验小学(槜李校区)、北师大附属学校、嘉兴一中实验学校等优质教育资源,满足从幼儿园到高中的全龄段需求。
商业:3公里内覆盖万达广场、合乐城、龙鼎万达等大型综合体,日常购物、餐饮、娱乐一站式解决。
医疗:嘉兴市第二医院、妇保院新院区等三甲医疗机构均在15分钟车程内,健康保障无忧。
【区域发展:南湖新区的价值兑现期】
作为嘉兴“十四五”重点打造的城市新中心,南湖新区已进入配套成熟+产业导入双轮驱动阶段。槜李湖片区被定位为“未来科创+生态宜居示范区”,未来将引入数字经济、总部经济等高端产业,吸引大量高素质人才定居。随着槜李湖公园全面建设、城市界面持续焕新,该板块的居住价值正迎来集中爆发。
【价格与产品:高性价比的改善之选】
目前明阳水木槜园主力在售建面约115-178㎡的高层与小高层产品,均价约1.9万-2.2万元/㎡,总价区间约220万-390万。相较于嘉兴主城核心区(如老城区、湘家荡)动辄2.5万+/㎡的价格,水木槜园以更低门槛提供了更优的生态环境与更新的产品设计,性价比突出。
建面约72㎡家配图
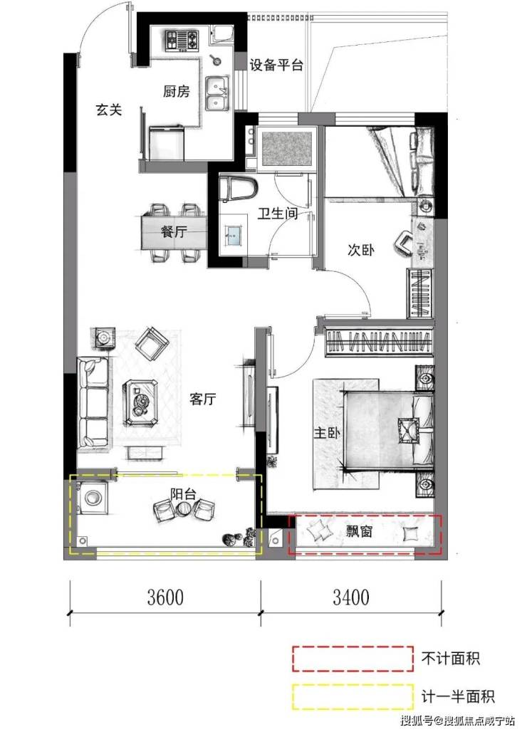
再看约92㎡的户型,轻轻松松做三房两卫。
9.9米面宽+6.5南向双阳台,轻松拿捏100㎡户型空间感。
主卧还是套房设计,除了独卫还自带飘窗,私密性十足。
无论是从入手成本还是产品力,性价比肉眼可见。
建面约92㎡家配图
108㎡小户型,更是被我们誉为2023年嘉兴楼市年度“神户型“。
3.5开间朝南,总面宽居然达到11.4米;
客厅面宽达到约5米,大宅的尺度感轻松拿捏;
更显特别的是,他还在百平级别的户型内,带来了创新的「北侧景观阳台」设计。
站在这里,直接可以眺望到中央大草坪。
建面约108㎡家配图
126㎡户型,同样也是品相俱佳。
四房两厅两卫,四开间朝南,气场全开;
南向总面宽约13.1米,拉出一条充沛的向阳线;
外联约6.7米双联阳台,且做到了朝南三主卧;
不论三代同堂亦或是四口之家都无需将就。
【理性看待:优势与挑战并存】
优势:地段稀缺(双湖环绕)、品牌本土深耕(明阳地产为嘉兴本土实力房企)、产品定位精准、价格合理。
需注意:槜李湖公园尚在建设中,部分景观效果需时间兑现;项目周边目前仍有一定待开发地块,城市界面尚未完全成熟;非地铁上盖,依赖自驾或公交出行。总体而言,对于注重长期居住品质与资产保值的本地改善家庭,水木槜园是值得重点关注的选择。
声明:本文由入驻焦点开放平台的作者撰写,除焦点官方账号外,观点仅代表作者本人,不代表焦点立场。
