【中环置地中心·润府】售楼处电话:400-8800-703结合控规图,我们可以看到除了6个产业组团外,分别结合15号线的南大路站和丰翔路站将有两个中心,一个是高等级的地区中心,一个是社区中心,另在东侧结合南何…
15号线丰翔路地铁上盖TOD,中环置地中心·润府网传户型图发布!
建面约99-175㎡3-4房预备入市,联动价6.9万/㎡!
售楼处电话:400-8800-703 欢迎来电咨询!
可预约销售人员,专业一对一热情服务,让您用专业眼光去买房。(来电尊享内部优惠活动)
最新消息!
宝山大场,南大智慧城,15号线丰翔路地铁上盖TOD项目—— 中环置地中心·润府的城市展厅已开放,建面约99-175㎡3-4房预备入市,联动价6.9万/㎡!
网传户型图如下:(过程稿仅供参考,以开发商正式公示为准)
建面约99㎡户型图

建面约140㎡户型图

【中环置地中心·润府】售楼处电话:400-8800-703去年10月,华润以699962万元竞得宝山区大场镇W12-1301单元07-01、36-01、37-01、40-01地块,联动价69000元/㎡。
拿地当天,华润大场镇项目设计方案已经公示。

【中环置地中心·润府】售楼处电话:400-8800-703 项目分为3个地块,为13-26层高层住宅小区,其中最西侧36-01地块西北角设置一栋23层保障房。
商品住宅楼有3梯6户、2梯4户和2梯2户类型,其中2梯2户楼栋梯户比较高,使用较为方便。
3个地块人行、车行共用出入口,地库出入口靠近车行出入口设置,保证车行进入后能最快进入地库,减少对住宅的影响。小区内部中央区域无车行道路,无地面停车位,保障小区内部人行安全。
3个地块均设有直通城市道路的垃圾清运出入口,最大程度减小了垃圾流线对住户的影响,较为合理。
3个地块配套公建均集中布置于小区主出入口处和其它小区外围,方便业主使用的同时减小了对小区内部空间的影响。
小区内局部住宅楼设置有底层架空层,丰富小区内部公共空间。
说到华润项目,那就不得不提南大智慧城的规划。
【中环置地中心·润府】售楼处电话:400-8800-703南大地区规划的编制范围大约是6.3平方公里,2018年,市委、市政府进一步将南大地区列为“3+5+x”重点转型地区之一,同时明确南大地区重点承担 车联网、智能服务机器人等高端创新产业,并联动周边打造上海中心城西北部的 科创引擎。
宝山区(中心城区)单元规划进一步落实南大为创新功能集聚区。

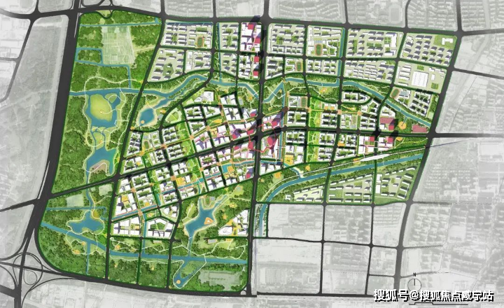
【中环置地中心·润府】售楼处电话:400-8800-703 区域规划建设40个特色公园,打造2.6平方公里自然生态绿心,板块绿化率高达43%。其中300亩南大中央公园已经开工。
在大生态结构的基础上,区域用一条条小的组团绿廊划分出了多个产业组团,形成了“组团式、多中心、网络化”的规划结构,而这些组团绿廊本身也是地区的公园,这些组团绿廊宽度都大于100米。

【中环置地中心·润府】售楼处电话:400-8800-703如果你质疑南大 43万方的商业建筑量和 126万方的商务办公建筑量是否能够落地,那么这个产业发展的框架的搭建就是回答了这个问题。


【中环置地中心·润府】售楼处电话:400-8800-703 针对这个产业组团的规划设计,明确每个组团内建筑空间种类多样,提供不同体量、形式、位置的多样化产业空间,适应不同类型、规模企业的需求。组团内考虑产业、服务配套、租赁住房三项基本功能,精准提供生产生活“双配套”。
这种组团式的布局也自然形成了 小街区密路网的良好城市空间,南大地区的平均路网密度达到了10.6km/km²,直接达到了中心城区路网密度的建设标准。

【中环置地中心·润府】售楼处电话:400-8800-703同时,结合城市设计,南大作为一片整体规划和开发建设的地区,必须拥有非常好的城市环境,而在规划中就明确了葑厚路沿街和陈家江沿河为宜人、活力的城市公共空间。

【中环置地中心·润府】售楼处电话:400-8800-703 在各个产业组团内都布局了不同类型的租赁住房,而在产业组团外布局商品住宅,能够一定程度上既满足产业人群租住的需求,又能够满足置业人群安宁的愿望。 根据南大最新控规,南大地区将有268万方的住宅建筑,其中租赁住宅将新增39万方,主要集中于各个产业组团之内给产业提供支持,另外229万方为普通住宅(其中100万方为现状住宅)。


【中环置地中心·润府】售楼处电话:400-8800-703 结合控规图,我们可以看到除了6个产业组团外, 分别结合15号线的南大路站和丰翔路站将有两个中心,一个是高等级的地区中心,一个是社区中心,另在东侧结合南何支线的桃浦站也将规划一处社区中心,在这个1个地区中心和2个社区中心规划有超高层的商业办公建筑地块11块,其中南大路站东南侧商办地块的规划建筑高度达到250米,应该是未来的南大地区的地标所在。

【中环置地中心·润府】售楼处电话:400-8800-703作为宝山推动转型发展的核心功能区,宝山区委、区政府“十年磨一剑”,花了10年时间将南大6平方公里全部收储,现在进入整体开发阶段。
当前已经建成和在建的产业载体近100万方;
双子塔楼实现交付;

实景图
数智绿洲一期、国际人才社区、科创之门等标志性项目已经实现交付或者结构封顶,并同步启动招商运营工作,加快推进已建成产业载体产业导入。

实景图
上师大附中宝山分校、南大中央公园都在加快建设;
南大路和丰翔路两个地铁TOD联动开发建设;其中丰翔路TOD今年年内要开工,我们将把这两个TOD打造成上海北部重量级的旗舰商圈。
【中环置地中心·润府】售楼处电话:400-8800-703作为“北转型”中的重点,南大智慧城以极快的速度从蓝图变为现实,大量高精尖产业、城市地标、高端商业、完善教育资源不断落地。
未来会如何璀璨,我们拭目以待!

15号线丰翔路地铁上盖TOD,中环置地中心·润府网传户型图发布!建面约99-175㎡3-4房预备入市,联动价6.9万/㎡!
售楼处电话:400-8800-703欢迎来电咨询!
可预约销售人员,专业一对一热情服务,让您用专业眼光去买房。(来电尊享内部优惠活动)