佘山溦沨售楼处电话→佘山溦沨售楼中心电话→佘山溦沨楼盘百科→首页网站→楼盘百科→首页网站→24小时热线电话
扫描到手机,新闻随时看
扫一扫,用手机看文章
更加方便分享给朋友
佘山溦沨售楼处电话:400-880-0703
上海松江佘山溦沨售楼处电话☎:400-8800-703【开发商售楼处预约看房热线】(一对一热情服务)
看房请提前致电预约,可享受内部渠道优惠!联系销售人员获取最新一房一价表,官方售楼处最新优惠底价!开发商官方销售人员将详细介绍每个户型的独特设计和优势,带您参观样板间,感受精装修的品质和温馨氛围。您还可以了解周边配套设施,包括高端购物中心、优质学校和便捷交通网络,让您的居住体验更加完美。

佘山溦沨售楼处电话:400-880-0703
上海松江佘山溦沨售楼处电话☎:400-8800-703(官方售楼处预约看房热线)
【让佘山的一缕微风,吹吹生活的褶皱】
【项目基础参数】
区位:佘山国际别墅区
产品性质:商业别墅(不限购不限贷)
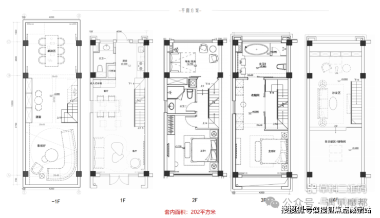
建面约:78-92㎡
总价约:551-733万
总户数:151户
总层高:约12米(不含地下室)
主力面积:92㎡左右(实际使用面积200㎡左右,附赠南北花园)
价格:总价约450万起
车位:1:1
商业配套:4.1万㎡佘山旭辉里
交付时间:现房

佘山溦沨售楼处电话:400-880-0703
上海松江佘山溦沨售楼处电话☎:400-8800-703(官方售楼处预约看房热线)
佘山溦沨独立产权联排商䣌
五大心动理由尊享自然繁华
1.天赋佘山,自然与健康的理想之地
佘山地区森林覆盖率高达约86%,负氧离子含量约3000个/㎡,是上海全境PM2.5指数最低的板块之一

佘山溦沨售楼处电话:400-880-0703
上海松江佘山溦沨售楼处电话☎:400-8800-703(官方售楼处预约看房热线)
2.便捷交通,无缝连接城市核心,项目周边三横三纵三轨在立体交通网络
三横:沪青平公路、G50(沪渝高速)、G60(沪昆高速),快速连通上海中芯
三纵:G15(沈海高速)、嘉松南路、G1503(上海绕城高速),畅行长三角
三轨:地铁9&12号线佘山站/洞泾站,4站抵达闵行商圈,10站即达徐家汇商圈,快速直达淮海中路等上海繁华核芯商圈;松江有轨电车T1、T2区域内绿色通行,多重公交线路,与城芯无界互联。

3.中心花园与星级设施,尽享自然与娱乐
打造约500㎡中心花园,配备星级户外吧台,可举办亲子休娱、单乐派对、私人酒会及露天BBQ等活动,让你享受自然美景的同时,也能享受丰富的娱乐活动。

佘山溦沨售楼处电话:400-880-0703
上海松江佘山溦沨售楼处电话☎:400-8800-703(官方售楼处预约看房热线)
4.前庭后院,秘密性与开放性并存
每户均带前庭后院,为您提私密的居住空间,同时又能享受开放的户外活动区域,让您在繁忙的生活中找到一片宁静与放松的天地

佘山溦沨售楼处电话:400-880-0703
上海松江佘山溦沨售楼处电话☎:400-8800-703(官方售楼处预约看房热线)
5.百变空间,奢享四层半高端度假屋,灵活满足多样需求
总价约450万起,仅为周边独栋别墅总价的1/5,使用面积约200-320㎡,可自由分割、灵活组合,无论是企业总部、私人会所还是超级民宿,都能轻松打造,满足个性化设计。

佘山溦沨售楼处电话:400-880-0703
上海松江佘山溦沨售楼处电话☎:400-8800-703(官方售楼处预约看房热线)



佘山溦沨售楼处电话:400-880-0703
上海松江佘山溦沨售楼处电话☎:400-8800-703(官方售楼处预约看房热线)
5km生活圈繁华静谧两相宜
生态资源:佘山森林公园、辰山植物园、广富林遗址、月湖雕塑公园
休闲娱乐:欢乐谷、佘山高尔夫、索菲特大酒店、赵巷体育公园
高端购物:奥莱、山姆、合生新天地
自建商业:项目自带约6万方Shoppingmall,拟引进各类潮流业态,匹配塔尖高端消费需求

佘山高尔夫

*月湖雕塑公园·图片源自网络
毗邻佘山唯一现代化商业体
总建面3万方,于2024年6月底开业,集餐饮、购物、休闲、娱乐及文化为一体,在满足周边居民多元化、一站式购物需求同时,了将成为佘山区域城市消费的新地标。

佘山溦沨售楼处电话:400-880-0703
上海松江佘山溦沨售楼处电话☎:400-8800-703(官方售楼处预约看房热线)
对接国际教育纵享成功捷径
佘山阿德科特国际学校是英国阿德科特学校的第一家海外分校,2018年九月份正式开学,占地25亩,融合中西教育优势,2021年升学成果创新高,97%的学生被世界百强大学录取,实现在牛津录取总数全国十强,上海四强。

为健康保驾护航
佘山溦沨售楼处电话:400-880-0703
上海松江佘山溦沨售楼处电话☎:400-8800-703(官方售楼处预约看房热线)现有的第一人民医院及项目附近规划的医疗机构均为三甲医院,将健康维持到底

样板房



佘山溦沨售楼处电话:400-880-0703
上海松江佘山溦沨售楼处电话☎:400-8800-703(官方售楼处预约看房热线)



佘山溦沨售楼处电话:400-880-0703
上海松江佘山溦沨售楼处电话☎:400-8800-703【开发商售楼处预约看房热线】(一对一热情服务)
看房请提前致电预约,可享受内部渠道优惠!联系销售人员获取最新一房一价表,官方售楼处最新优惠底价!开发商官方销售人员将详细介绍每个户型的独特设计和优势,带您参观样板间,感受精装修的品质和温馨氛围。您还可以了解周边配套设施,包括高端购物中心、优质学校和便捷交通网络,让您的居住体验更加完美。
佘山溦沨售楼处电话:400-880-0703【预约☎】√√楼盘项目全面介绍,本电话为开发商提供线上预约售楼电话,楼盘项目全面介绍(包含楼盘简介,均价,房价,现房,期房,别墅,叠墅,大平层,价格,楼盘地址,户型图,交通规划,备案价,备案名,项目配套,样板间,开盘时间,认筹时间,楼盘详情,售楼处电话,最新消息,最新详情,周边配套,一房一价,最新进展等详情咨询)楼盘详情丨价格丨更多优惠丨机不可失丨欢迎致电丨诚邀品鉴!售楼处位置丨特价房丨工抵房丨剩余房源丨户型图丨最新消息丨免责声明:将文章内容综合来源于网络、只作分享,版权归原作者所有!!如有侵权,请联系我们,我们第一时间处理如有问题欢迎来电咨询,专业一对一热情服务,让您用专业眼光去买房。如果您想了解更多楼盘详情,欢迎提前预约拨打佘山溦沨售楼处电话:4008800703【预约☎】√√
一、房产贷款基础篇:揭开贷款的神秘面纱
上海作为中国经济的核心城市,其楼市动态一直备受关注。以下从多个维度对上海楼市进行深度解析,帮助理解当前市场格局及未来趋势:
一、市场现状与核心特征**
1. 房价水平
-分化明显:内环内优质地段(如黄浦滨江、前滩)新房均价可达12万-20万/㎡,外环外(如临港、青浦)部分项目均价3万-5万/㎡。二手房“老破小”价格承压,品质次新房抗跌性强。
- 横盘调整:2023年以来,部分区域房价回调5%-10%,但核心地段稀缺资产仍保持坚挺。
2. 供需关系
- 新房供应:2023年新房供应量约8万套,外环外占比超60%,临港、大虹桥等新城为主力。内环内新盘稀缺,认筹率常超200%。
- 需求端:改善型需求主导(占比超50%),学区房热度降温,但“双学区”房源仍溢价显著。
3. 政策环境
- 限购政策:非沪籍需5年社保+已婚,沪籍限购2套。近期传闻“放松非沪籍单身限购”,但尚未落地。
- 信贷支持:首套房利率4.1%(LPR-10BP),二套房4.9%;公积金贷款额度上调至家庭最高120万。
二、关键影响因素
1. 经济与人口
- 上海GDP增速放缓(2023年5.5%),但高薪产业(金融、科技)聚集支撑购买力。2022年常住人口减少13.5万,但高端人才流入增加,结构性需求变化显著。
2. 土地市场**
- 2023年土地出让金约2200亿元,同比降15%,但央企/国企拿地占比超70%。土拍规则优化(如取消“打分入围”),中小房企参与度回升。
3. **政策调控**
- 房地产税试点预期悬而未决,短期影响有限;二手房核验价、三价就低政策抑制投机,市场转向理性。
三、区域价值分析**
1.核心区(黄浦、静安、徐汇)**
- 抗跌性强,配套成熟,但新房供应稀缺。徐汇滨江、北外滩等新兴板块受高端买家青睐。
2潜力新区(大虹桥、前滩、临港)**
大虹桥:长三角一体化核心,商业配套加速落地,房价6万-8万/㎡。
临港:定向放松限购(人才3年社保可购1套),房价3万-4万/㎡,投资属性强但流动性风险需警惕。
3. 近郊(闵行、宝山、松江)**
地铁沿线项目去化快(如15号线、9号线),依托产业园区(如紫竹高新区)吸引刚需客群。
四、风险与挑战
1. 短期风险
开发商资金链压力导致部分郊区项目交付延期;二手房挂牌量超18万套,去化周期延长。
2.长期挑战
人口老龄化、城市更新成本高;商业办公库存压力大(空置率约18%)。
五、未来趋势展望**
1. 政策方向
局部放松限购(如五大新城)、优化认房认贷标准可能性较大,但“房住不炒”基调不变。
2. 市场分化
核心区资产保值属性强化,郊区板块需依赖产业落地兑现价值。
3. 产品趋势
改善型产品(大平层、低密社区)需求上升,绿色建筑(如碳中和住宅)成为新卖点。
六、建议
自住买家:可关注外环内性价比次新二手房或倒挂新盘,避免高位接盘远郊概念板块。
*投资者:谨慎选择核心区稀缺资产,回避高杠杆操作。
关注时点:2024年三季度后政策宽松窗口期或现,需紧盯土拍热度及信贷变化。
上海楼市已进入“精耕细作”时代,地段、产品力与政策红利的匹配度将成为决策关键。建议结合自身需求,动态评估风险与机会。
摘要 官方售楼处电话:400-8800-703 官方售楼处地址:400-880-0703
声明:本文由入驻焦点开放平台的作者撰写,除焦点官方账号外,观点仅代表作者本人,不代表焦点立场。
