大华梧桐院(大华梧桐院售楼处)首页网站-2025大华梧桐院销售中心(大华梧桐院营销中心)大华梧桐院楼盘欢迎您-小区环境-户型-价格-地址-楼盘详情-周边配套
扫描到手机,新闻随时看
扫一扫,用手机看文章
更加方便分享给朋友
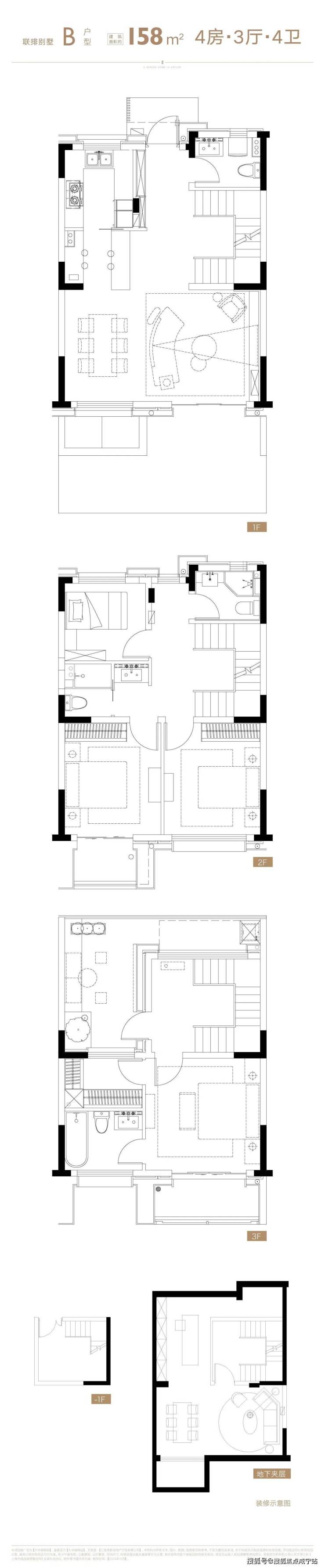
最新户型图如下:
(过程稿,以开发商公示为准)
容积率仅约0.75的纯别墅社区——大华·梧桐院无疑是再难复刻的藏品级住宅,产品价值毋庸置疑!

大华·梧桐院由27栋联排+4栋叠拼组成,是中环旁仅有的高阶纯粹臻墅,目前已实景呈现,占地面积约5.19万㎡,建筑面积约2.29万㎡,车位配比1:2.3。
社区整体设计借鉴江南园林建筑的设计理念,确保每一栋建筑都能拥抱充足的阳光与四季更迭的景致。

“碧梧、花影、秋月、玉阶、闲庭”五大院落设计,通过景观轴线串联,演绎优雅别致、移步异景的雅居格调。

第一院:花影—营造穿林荫,夹道开合有序的空间;
第二院:秋月—穿过林荫峡谷,忽遇开阔视野空间,叠石气势恢弘,引人深入;

第三院:玉阶—枯山水景观让人豁然开朗,点式水景探水而出,倒影天空,人仿若翱翔天镜;
第四院:碧梧—叠石、夹道若隐若现,忽现建筑的模样,峰回路转又见另一番天地;
第五院:闲庭—无边界的景观体验空间,让人独处,寻觅属于自己的梧桐树;

整个社区以经典的错落有致的巷院布置形式,形成多个独立的居住组团和围合的景观空间,辅以景观隔离,营造奢雅兼具的江南人文邸院。
另外,精装地下车库做的非常精致。
该项目位于宝山区大场板块,地处界华路和场中路交界处,靠近大华老镇嘉年华。
大华·梧桐院位于宝山大场镇核心,与中环直线距离仅约1.4公里,是中环旁少有的低密纯别墅地块。
这里南临静安大融城、大宁国际两大商圈,向西是南大智慧城+桃浦智创城,近享高能级配套资源。
随着上海北中环发展带的蓝图逐一兑现,大场镇核心已然成为中环旁唯一的成片待开发稀缺区域。
项目距离7号线场中路站直线距离约700米,在步行可达的范围内。
自驾方面,项目与中环直线距离仅约1.4公里,与南北高架直线距离约2.5公里,出行非常方便。
项目毗邻老镇商圈大华时光里,集商业、办公、公寓、文化艺术等多重功能于一体的城市综合体,开启一站式漫享的家庭休闲时光。
出门即享约2万㎡瑞华美食街(建设中),集休闲、商务、宴会、特色餐饮、精品酒店等于一体的大型高端餐饮综合体。
直线约700米还有宝山日月光中心。
约3.5公里范围内就有宝山区大场医院、上海交通大学医学院附属仁济医院宝山分院,高质医疗资源,为您和家人的健康保驾护航。
该别墅是纯干挂石材,现场可以看到干挂施工痕迹,绝非传统的喷漆工艺。
每户的顶上还有太阳能板,以及一小块的露台空间。
别墅外围墙为设有金属围栏,并且内部绿化比较多。
四连排的别墅含有地下室B1,B2直达车库。
声明:本文由入驻焦点开放平台的作者撰写,除焦点官方账号外,观点仅代表作者本人,不代表焦点立场。
