奉发·云邸(2026年奉发·云邸)2026年奉发·云邸首页网站(奉发·云邸最新详情)奉发·云邸楼盘详情 /价格/户型
扫描到手机,新闻随时看
扫一扫,用手机看文章
更加方便分享给朋友
临港新片区 海湾全新盘
【奉发·云邸】
首推约99-251㎡高层+叠墅
共计214套 均价27639元/㎡
奉发·云邸售楼处电话:400-8800-703☎️☎️
奉发·云邸售楼处电话:400-8800-703☎️☎️
奉发·云邸售楼处电话:400-8800-703☎️☎️
一房一价表
项目基本信息
【开发商】上海浦东星火开发区联合发展有限公司
【所属板块】自贸新区生态宜居区
【总建筑面积】约8.3万㎡,
【容积率】1.5,
【绿地率】35%,
【总户数】409户。
【产品类型】高层:99㎡、127㎡;叠加:138-252㎡。
【交付标准】高层精装,叠加毛坯
【交房时间】2024年年底左右
【产权年限】70年
【占地面积】3.4万平方
【建筑面积】8.5万平方
【物业公司】奉信
【总户数】409
【物业费】3元/㎡/月
【车位配比】1:1.2
【容积率】1.5
【绿化率】35%
奉发·云邸售楼处电话:400-8800-703☎️☎️
【奉发·云邸】奉发·云邸售楼处电话:400-8800-703☎️☎️以上海“闲仕生活”为精神内核,秉承奉发集团精工匠心与品质,敬呈全周期宽景轻平层与会生长的轻别墅两大主力产品。空间灵动,超宽尺度,打造全龄段家庭的舒适生活空间,尽享公园湖海之间的闲适生活意境。
奉发·云邸售楼处电话:400-8800-703☎️☎️

以浦江烟雨为主线,设计中轴对称多维景观,匠造诗意栖居。规划长者、幼儿、青年全龄化游览、运动、互动空间,臻造酒店式美学住区。
奉发·云邸售楼处电话:400-8800-703☎️☎️

项目在立面设计和装修上采用仿古铜金属铝板、LOW-E钢化中空玻璃、干挂石材等豪宅常用的高端建材。高层选用博洛尼、TOTO、摩恩等知名品牌,精工臻装,配备户外、全屋、楼宇、照明四大智能系统,完全是按照当代精英家庭的生活需求专属定制。
奉发·云邸售楼处电话:400-8800-703☎️☎️

综合高潜力的区位发展、公园密布的生态优势,醇熟便利的生活,以及自身国企匠心的实力和极具前瞻性的产品规划和精工品质,【奉发·云邸】或将成为2022年下半年上海南部市场的一匹“红盘黑马”
奉发·云邸售楼处电话:400-8800-703☎️☎️
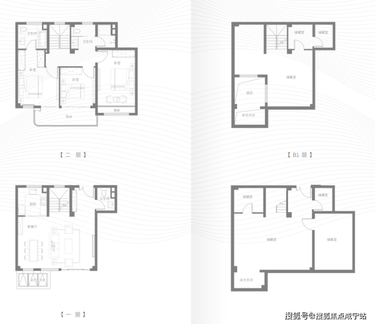
【奉发·云邸】主推会生长的轻别墅和宽尺度全周期轻平层两种产品。
叠加别墅配有双层地下室,前后环绕式花园绿化,三代同堂的三孩家庭居住都游刃有余。叠加产品最大的亮点还在于它的超大面宽,最大可做到五开间朝南,把宽景生活演绎到极致。
奉发·云邸售楼处电话:400-8800-703☎️☎️

奉发·云邸售楼处电话:400-8800-703☎️☎️
3房2厅3卫+双层地下室

奉发·云邸售楼处电话:400-8800-703☎️☎️

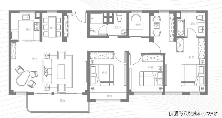
高层产品为南北通透的板式住宅,配有大面宽横厅和阳台,即便宅在家里,也有散心和观景的空间。户型还设计可变空间,对于新婚或者多孩家庭非常实用。
奉发·云邸售楼处电话:400-8800-703☎️☎️

奉发·云邸售楼处电话:400-8800-703☎️☎️

奉发·云邸售楼处电话:400-8800-703☎️☎️

奉发·云邸售楼处电话:400-8800-703☎️☎️
项目区位配套
【奉发·云邸】择址奉贤新城东南板块,坐享自贸新区产城融合和奉贤“三区两镇”双重发展红利。区域将围绕新能源汽车、精准医疗、生物医药和世界级大健康产业发展,打造“宜居、宜业、宜游、宜学”的湾区。
奉发·云邸售楼处电话:400-8800-703☎️☎️

交通配套方面: 纵横立体路网 闲适与繁华随意切换 林海公路/浦星公路/沪金高速/沪奉高速(建设中)/金海公路多条纵线与绕城高速、申嘉湖高速双横向干道组成立体路网,辐射大浦东黄金生活圈。规划中的市域奉贤线直抵海湾大学城,项目门口即有公交站点布局,便捷路网,畅享上海主场生活。
奉发·云邸售楼处电话:400-8800-703☎️☎️

生态资源方面:一湖三公园 推门即享诗意悠然 项目周边布局海湾国际森林公园、碧海金沙、都市菜园等3大国家级4A级景区,以及15公顷星火体育公园约2.7万㎡湖域,形成“一湖三公园”多维生态系统,打造滨海生态宜居宜养住区。
奉发·云邸售楼处电话:400-8800-703☎️☎️

教育资源方面:星火学校、海湾小学、上海师大第四附中、上海师范大学奉贤校区、华南理工大学奉贤校区等政务、医疗、教育机构,全维成熟配套触手可及。
奉发·云邸售楼处电话:400-8800-703☎️☎️

奉发·云邸售楼处电话:400-8800-703☎️☎️
奉发·云邸售楼处电话:400-8800-703☎️☎️
声明:本文由入驻焦点开放平台的作者撰写,除焦点官方账号外,观点仅代表作者本人,不代表焦点立场。
