保利梅陇项目首页网站-保利梅陇项目2025年最新价格 | 户型-生活配套-楼盘地址
扫描到手机,新闻随时看
扫一扫,用手机看文章
更加方便分享给朋友
最新户型曝光!保利置业梅陇项目主推建面约108-148㎡3-4房预计二季度取证!

该项目无联动价,预计整盘均价可能会在7.6~8万之间!
据了解,项目将推出建面约108㎡、128㎡以及建面约148㎡3-4房。其中:
建面约108㎡3房2厅2卫,共计约136套,一梯两户无连廊;
建面约128㎡4房2厅2卫,共计约188套,一梯两户无连廊;
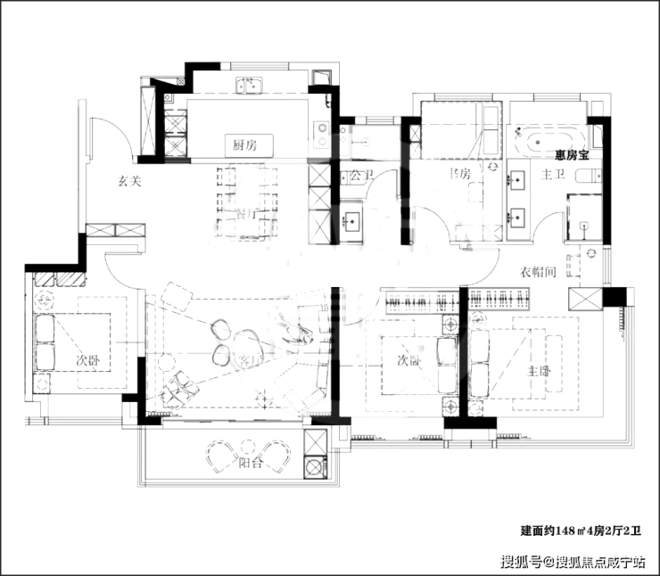
建面约148㎡4房2厅2卫,共计约80套,一梯两户(电梯门双开)!
所有户型层高均为3.1米!
建面约108㎡3房2厅2卫,该户型为经典的动静分离户型,三开间朝南,预留分户S墙设计,客厅面宽约4.85米,边套户型主卧为270°转角飘窗!

建面约128㎡4房2厅2卫,独立入户玄关,四开间朝南,客厅面宽约4.05米,南北直通,厨房附赠飘窗,可增加实用面积,边套户型主卧为270转角飘窗!

建面约148㎡4房2厅2卫,该户型也可以说是128户型的进阶版本,各个空间会稍微大一些,客厅面宽约5米,厨房同样附赠飘窗,边套户型主卧为270转角飘窗!

保利置业梅陇项目即闵行区MHP0-0303单元01-28-01a地块,为保利置业于2024年11月27日七批次土拍中竞得的地块,地块总价25.9亿,楼面价48665元/㎡,堪称「梅陇地王」。

主要经济技术指标:
用地面积:29622.91平方米
总建筑面积:87364.68平方米
其中地上建筑面积:59593.79平方米,地上计容建筑面积:53321.238平方米
地下建筑面积:27770.89平方米
容积率:1.80
绿地率:35%
此外,根据出让要求显示,项目需配建5%以上的保障性住房,要求中小套户型不低于30%,全装修比例不低于50%,装标>3000元/㎡。
就在地块隔壁:
2021年,仁恒越秀联合体以楼板价约4.3万元/平拿下梅陇;
2023年,安高以楼板价4.84万元/平拿下申陇院地块;
2024年,保利置业4.87万/平楼板价略微涨了一些,但这是建立在东侧就是高压线的不利因素条件下。
可见,这里的地价梯度向上,这里的价值稳步向前。
保利置业梅陇项目规划设计方案公示:
从设计方案可以看出,项目地面无车位,全人车分流,一梯两户无连廊设计,楼间距约30-32米另外,项目设置有下沉式庭院,同时在5#、7#、10#、11#设置有架空层预计会配置地下会所。
保利置业梅陇项目地处梅富路与兴梅路交叉口,位于安高申陇院东侧,项目楼下紧挨着的就是闵行一梯队学校之一的莘松中学新校区。

地块周边实景:
项目位于闵行梅陇板块的核心位置。
梅陇周边有3大国家级产业区、5大科创中心、12大科创园、3000+企业,直线距离约7公里范围内拥有漕河泾开发区、紫竹高新技术产业园等科创基地。

梅陇还有15号线(已通车)、19号线(在建中)、机场联络线(即将通车)3轨交汇。再加上虹梅路高架直插中环外环,南侧银都路越江隧道2024年年底建成后,可直通“浦东金色中环”。

项目距离地铁15号线景西路站约800米,拥有虹梅高架路、沪金高速等快速路。
商业方面,项目周边有兴梅路尚乐坊、绚荟城、海梦一方、麦多生活广场等成熟商业,还有四大TOD将带区级商业中心。
教育方面,闵行实验小学是闵行公办的优质学校,莘松中学与项目几乎是门对门的距离。
医疗方面,步行到复旦大学附属中山医院(闵行梅陇院区)也不过400多米,可为全家人的健康保驾护航!
声明:本文由入驻焦点开放平台的作者撰写,除焦点官方账号外,观点仅代表作者本人,不代表焦点立场。
