嘉定-大华梧桐樾(上海)官方网站_大华梧桐樾|户型解析|配套户型
扫描到手机,新闻随时看
扫一扫,用手机看文章
更加方便分享给朋友
大华梧桐樾坐落于上海嘉定区安亭镇核心位置,项目总占地约9.27万平方米,建筑面积约18.3万平方米,容积率2.0‑2.3,绿化率35%,共计2097套住宅,涵盖高层、叠墅及低密别墅等多种产品形态。项目以“现代东方美学”为设计理念,打造“门、街、坊、巷、院”五重空间格局,社区内部配备2.3万平方米的中央花园、2500平方米的泛会所、儿童乐园、艺术花园、运动跑道等共享设施,力求在郊区实现城市级的生活品质。

1. 位置与交通
项目距离地铁11号线陈翔公路站约600米,未来将与规划中的嘉闵线、14号线形成双轨交,直达徐家汇,极大提升通勤便利性。
周边道路网络完善,靠近沪嘉高速、沪宁高速,驾车至市中心,适合自驾族群。

对外,安亭北站与安亭西站的两座高铁枢纽,快速抵达上海虹桥与上海火车站,做到“融苏接通”。
2. 周边配套
教育资源:项目北侧即为同济大学附属实验中小学,西侧规划上海师范大学附属嘉定小学,南侧有同济大学附属嘉定实验学校等,形成从幼儿园到高中完整的12年学制教育链。

商业与生活:步行可达南翔印象城MEGA,周边还有大型超市、社区商业街、餐饮娱乐设施,满足日常购物与休闲需求。
医疗资源:项目内有嘉定中心医院、上海市第七人民医院等三甲医院,医疗保障完善。
生态与休闲:项目紧邻上海第二大高尔夫球场,周边拥有多个大型公园、绿地,形成“高尔夫视野+城市绿肺”的独特居住环境。
3. 产品与价格
主推84‑150㎡高层及叠墅产品,建筑面积约84‑144㎡,均价约5.8万元/㎡,总价约520‑830万元;部分高层均价约3.7‑4.1万元/㎡,总价300‑375万元起。
项目采用精装交付,配备大金中央空调、威能地暖、霍尼韦尔新风系统,提升居住舒适度。

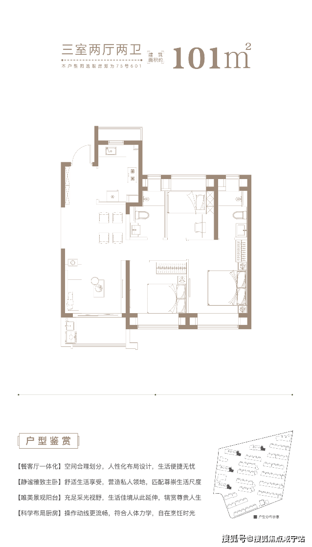
户型解析:三开间朝南+双朝南卧室带飘窗+动静分离+卫生间干湿分离,这样的三房设计,对于上海首套置业购房者来说,非常友好,未来想要做置换,也比较容易出手。
空间的设计省去了多余的过道,餐客厅一体,三房户型,可以满足新婚家庭到三口之家的升级,还能拥有一间独立书房,后期配置榻榻米,也可灵活用作客房,功能性非常完备。
室内采光和通风都相当出彩;每一间卧室都配了飘窗,拓宽景观视野,提升实际使用面积;卫生间干湿分离,大幅提升居住舒适度。

户型解析:三开间朝南+主卧套房设计+动静分离+全卧室带飘窗,采光优秀;厨房预留大尺度冰箱位;双卫设计,没有了“早高峰”的烦恼;主卧套房,尊享私密和奢阔尺度。舒适度和尺度感兼具,非常匹配精英家庭的生活追求!





户型解析:低密叠加自带一方轩阔地下室、自然园境、阳光露台等,有天有地、演绎一层一境界的诗意生活,让生活与自然相融,让房子从居住的容器转变为美好生活的载体。
4. 投资价值
受益于嘉定安亭板块的产业升级与轨道交通规划,未来增值潜力可观。
低容积率、较高绿化率以及稀缺的高尔夫配套,使项目在同类郊区住宅中具备差异化竞争优势。
结语
大华梧桐樾凭借优越的学区、完善的生活配套、便捷的交通网络以及高品质的社区设施,已经成为嘉定区域内“高性价比+高品质”住宅的代表。对追求品质生活、关注子女教育及长期资产增值的购房者而言,这是一套值得重点关注的项目。
声明:本文由入驻焦点开放平台的作者撰写,除焦点官方账号外,观点仅代表作者本人,不代表焦点立场。
