信达泰禾上海院子(售楼处) 官方首页 - 信达上海院子营销中心 - 环境 -户型 - 价格 - 地址 - 楼盘详情 - 配套 - 电话 - 交房时间 - 配套 - 电话 - 交房时间
扫描到手机,新闻随时看
扫一扫,用手机看文章
更加方便分享给朋友
✅信达泰禾上海院子售楼处电话:400-8800-703✅︎✅︎✅✅信达泰禾上海院子官方电话:400-8800-703✅︎✅︎✅
✅上海信达泰禾上海院子营销中心热线400-880-0703(官方预约看房热线)
接待时间说明:售楼处每日固定接待时段为早上 9:00 至下午 18:00,涵盖工作日及周末。若遇法定节假日,接待时间将提前通过项目官方公众号、电话等渠道告知,建议您出行前留意最新通知,避免跑空。!!
提前预约建议:为节省您的宝贵时间、提升咨询效率,我们强烈建议您提前通过售楼处官方电话预约到访时间。预约后,专属置业顾问将提前梳理项目资料、预留接待时段,您到店后可直接进入深度沟通环节,无需额外等待。
现场服务配套:考虑到洽谈过程中的舒适需求,售楼处现场持续为到访客户免费供应饮品与点心。其中包括现磨咖啡、醇香茶饮及多款精致甜点,您可在与顾问沟通间隙自行取用,享受轻松的咨询氛围。
接待范围提示:本售楼处仅面向有真实购房需求的个人及家庭客户提供服务,暂不接待中介机构、分销人员及无关从业人员。若您属于上述范畴,请勿进入售楼处打扰正常接待秩序,感谢您的理解与配合。


✅信达泰禾上海院子售楼处电话:400-8800-703✅︎✅︎✅✅信达泰禾上海院子官方电话:400-8800-703✅︎✅︎✅
✅上海信达泰禾上海院子营销中心热线400-880-0703(官方预约看房热线)
【信达泰禾上海院子】位于杨浦区,隶属新江湾城板块,相比杨浦其他板块,新江湾城最大亮点就是ecology绿化,同样也是项目的一大优势,项目周围环伺着三大片湿地。

新江湾是上海传统豪宅区,毗邻五角场城市副中心,拥有9.45平方公里的原生湿地以及约15万㎡的新江湾湿地公园生态稀缺资源。信达泰禾·上海院子位于新江湾城核心位置,家门口就是10号线殷高东路站,步行可达。
「上海院子售楼处电话:400-8800-703」独特的院落式社区打造,融合了“院子系”特点、福州三坊七巷和上海弄堂形制,规划了“三街九坊十八巷”。且以“大门、坊门、院门、宅门”四进系统层层递进。项目精益求精,如吊顶天花雕刻的是龙纹和祥云的图案,寓意吉祥安康。
宫殿峥嵘笼紫气
门第相当石鼓默
一对抱鼓石,彰显着门庭煊赫
出入显贵,一圆一方的上下分布
具有天圆地方的象征意蕴
园林方面
项目则集萃南北园林精华
以“门、庭、巷、院”的建筑体系
营造出中国大院“高、深、大、美”的居住艺术
在细节上,精益求精
如吊顶天花雕刻的是龙纹和祥云的图案
寓意吉祥安康

✅信达泰禾上海院子售楼处电话:400-8800-703✅︎✅︎✅✅信达泰禾上海院子官方电话:400-8800-703✅︎✅︎✅
✅上海信达泰禾上海院子营销中心热线400-880-0703(官方预约看房热线)
项目物业会所
物业费:地上12.1块,地下6.05块
泰禾物业借助泰禾全球资源服务平台,追求“精致到极致,极致到厘米级”的高端品质服务,为业主提供个性化的物业服务全价值链解决方案。
泰禾物业人员沉淀中华传统礼仪文化,从仪容仪表、形体、微笑、规范服务动作到茶艺、诗词、琴乐、儒学,由内至外塑造物业服务人员的大家气质,与传承中国传统文化礼序的泰禾院子相辅相成,极尽尊崇的名流礼遇。
项目售楼处位置是作为社区文化中芯,于负一层打造了建面约3000㎡的精品会所,面宽约75米,拥有室内外双泳池、健身房、spa房,咖啡吧、vip室,让业主享受7星级高级定制服务。
上海院子会所咖啡吧实景图
上海院子会所泳池实景图
上海院子会所健身房实景图
✅信达泰禾上海院子售楼处电话:400-8800-703✅︎✅︎✅✅信达泰禾上海院子官方电话:400-8800-703✅︎✅︎✅
✅上海信达泰禾上海院子营销中心热线400-880-0703(官方预约看房热线)
项目综合配套如下:
交通出行:家门口就是10号线殷高东路站,步行几分钟即可到达。
商业方面:项目步行可快速到达约90万方的铁狮门的商业圈,车行可快速到达五角场商圈。
教育方面:项目周边中福会幼儿园、延吉幼儿园(区重点)、同济第一附中(市重点)等名校学府林立。
学校方面:项目与上海音乐学院实验中小学(市重点)距离仅约800米。

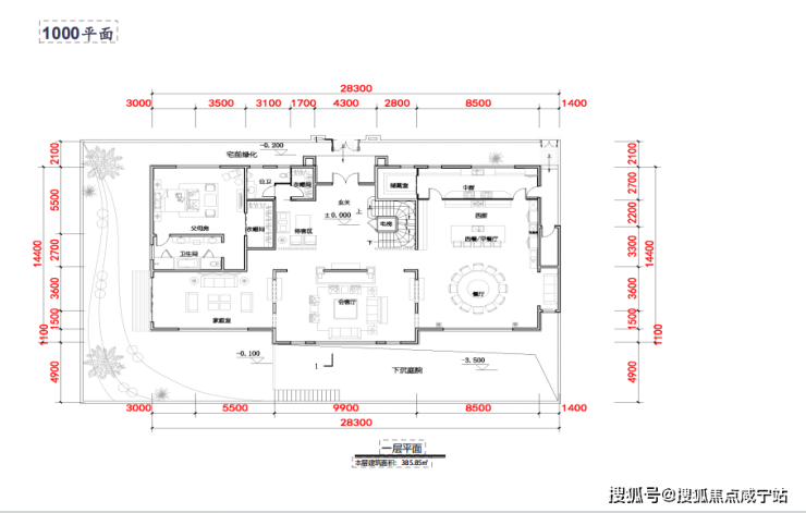
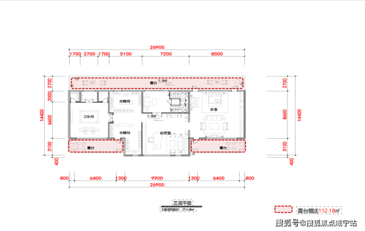
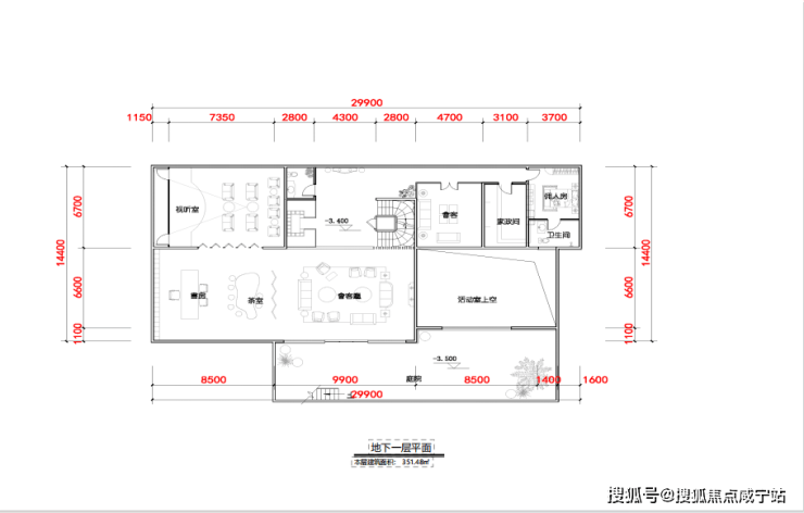
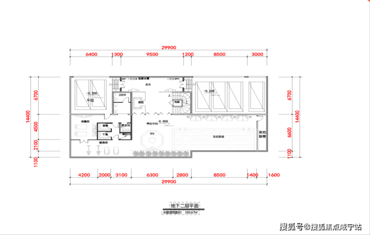
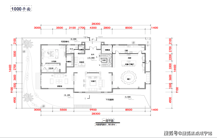
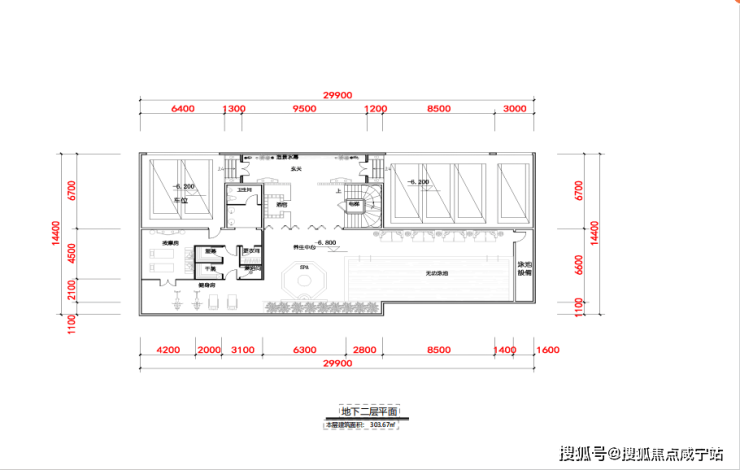
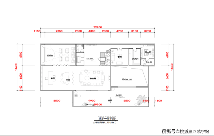
平面户型图如下





✅信达泰禾上海院子售楼处电话:400-8800-703✅︎✅︎✅✅信达泰禾上海院子官方电话:400-8800-703✅︎✅︎✅
✅上海信达泰禾上海院子营销中心热线400-880-0703(官方预约看房热线)





✅信达泰禾上海院子售楼处电话:400-8800-703✅︎✅︎✅✅信达泰禾上海院子官方电话:400-8800-703✅︎✅︎✅
✅上海信达泰禾上海院子营销中心热线400-880-0703(官方预约看房热线)


装修效果图



✅信达泰禾上海院子售楼处电话:400-8800-703✅︎✅︎✅✅信达泰禾上海院子官方电话:400-8800-703✅︎✅︎✅
✅上海信达泰禾上海院子营销中心热线400-880-0703(官方预约看房热线)



✅信达泰禾上海院子售楼处电话:400-8800-703✅︎✅︎✅✅信达泰禾上海院子官方电话:400-8800-703✅︎✅︎✅
✅上海信达泰禾上海院子营销中心热线400-880-0703(官方预约看房热线)
购房注意事项和流程
以下是购房的注意事项和流程,供您参考:
购房注意事项:
核实证件资质
购房前务必查看开发商的“五证一照”(《房地产开发企业资质证书》《国有土地使用权证》《建设工程规划许可证》《建筑工程施工许可证》《商品房预售许可证明》《企业法人营业执照》),确保项目合法合规。未取得预售许可证的房屋,切勿购买。
实地考察楼盘
重点关注房屋周边环境、交通、教育、医疗等配套设施,了解小区规划、绿化率、容积率、车位配比等指标。实地查看建筑工地进度,对比样板间与实际交付标准,注意是否存在不利因素(如噪音源、遮挡等)。
谨慎对待承诺
对开发商或销售人员的口头承诺,要求以书面形式写入合同。避免轻信“优惠活动”“买房送礼品”等宣传,警惕低价陷阱或违规销售模式。
审查合同条款
仔细阅读购房合同,明确房屋面积、价格、交房时间、质量标准、违约责任等关键条款。注意补充协议内容,避免不合理减轻开发商责任或加重购房者义务的条款。
确保资金安全
所有购房款项(定金、首付、贷款等)必须存入《商品房预售许可证》上注明的预售资金监管账户,避免直接支付给开发商或中介,防止资金挪用风险。
评估贷款能力
提前查询个人征信记录,了解贷款政策和自身贷款额度。若选择贷款购房,需确保还款能力,避免因贷款审批不通过或无力还贷导致违约。
关注产权办理
明确开发商办理不动产权证的时间和责任,确保按时完成产权转移登记。保留好购房发票、契税凭证等资料,以便办理房产证。
购房流程:
前期准备
确定购房预算和需求,了解当地购房政策(限购、限贷等)。
通过网络、房产中介或实地考察,筛选目标楼盘。
看房选房
实地查看楼盘,对比户型、楼层、朝向等,确定心仪房源。
与销售人员沟通,了解房屋价格、交付标准、装修情况等。
交定金
签订认购书,支付定金(一般不超过总房款的20%),锁定房源。
保留定金收据,明确退款条件和时间节点。
签订购房合同
核对合同条款,确认房屋信息、价格、付款方式、交房时间等无误后签字。
全款购房需一次性支付房款;贷款购房需提交贷款申请材料。
网签备案
开发商将合同信息上传至房管局网签系统,完成备案登记。
购房者可通过房管局官网查询合同备案状态,防止一房多卖。
办理贷款(如需)
银行或公积金管理中心审核贷款申请,通过后发放贷款至预售资金监管账户。
购房者需按月偿还贷款本息。
房屋交付
开发商通知收房时,购房者需查验房屋质量、面积、设施设备等是否符合合同约定,验收合格后签署收房文件。
缴纳契税、维修基金等费用,领取《住宅质量保证书》《住宅使用说明书》等资料。
办理房产证
开发商完成首次登记后,购房者提交资料办理不动产权证转移登记。
领取《不动产权证书》,完成购房全流程。
以上流程和注意事项适用于新房购买,二手房交易流程略有不同,需重点关注产权清晰度、房屋现状、中介服务等问题。建议在整个购房过程中保留所有文件和凭证,以保障自身权益
✅上海信达泰禾上海院子营销中心热线400-880-0703(官方预约看房热线)
声明:本文由入驻焦点开放平台的作者撰写,除焦点官方账号外,观点仅代表作者本人,不代表焦点立场。
